4.9
Рейтинг на основании 120 отзывов
Дмитров
Опорный проезд 28Б
(индустриальный парк Ниагара)
Бренд "Дмитров-Дело" c 2008 года на рынке строительства в Дмитрове
Звоните 9:00 до 18:00 8 (915) 055-33-61
Бренд "Дмитров-Дело" c 2008 года на рынке строительства в Дмитрове

Загородный дом СВАЛБАРД 80

Стоимость проекта от:
41 850 ₽
БЕСПЛАТНО! ПРИ ЗАКАЗЕ СТРОИТЕЛЬСТВА
Стоимость строительства от:
6 363 060 ₽
Артикул ART-17026
Дата 26.12.2025
Архитектурный стиль Скандинавский
Количество надземных этажей 1
Круглогодичное проживание Да
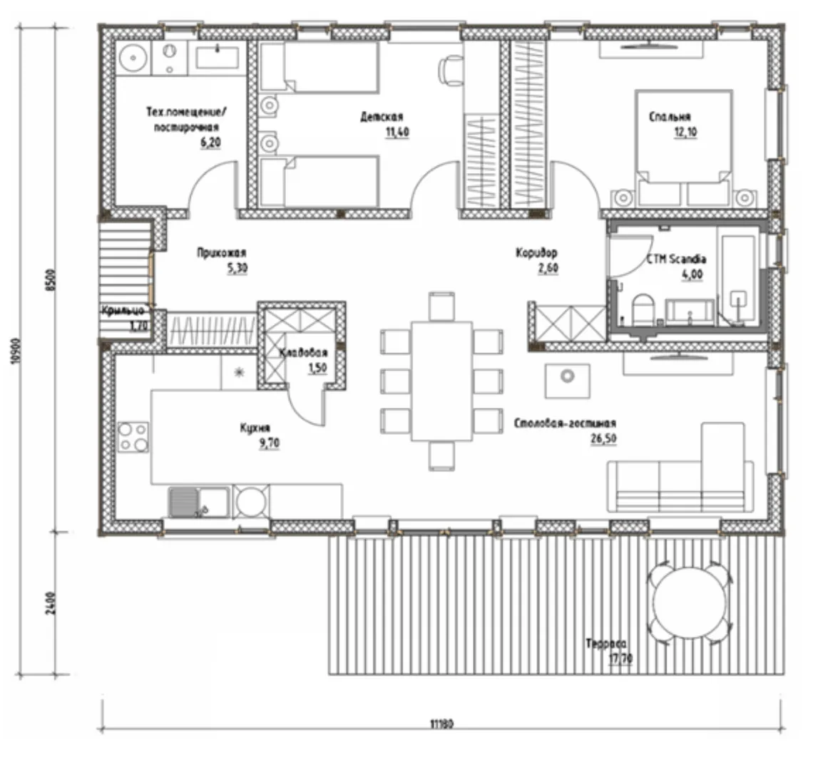
Площадь дома 93 м2
Санузлы 1
Спальни 2

Описание

Откройте для себя идеальный уголок уюта и гармонии — загородный дом «СВАЛБАРД 80». Потрясающий скандинавский дизайн в сочетании с практичностью каркасно‑панельной конструкции дарит ощущение чистоты и легкости. Это единственногодневное пространство, где каждая деталь продумана до мелочей: от просторного, светлого интерьера до аккуратной двускатной крыши, скрытой от глаз в небесной простоте. Жизнь здесь наполнена гармонией с природой: безупречная терраса становится вашим личным оазисом, где можно наслаждаться рассветами и закатами в тишине окрестных лесов и озер. Круглогодичное проживание гарантирует не только тепло и комфорт, но и уверенность в любой погоде — ваш дом станет крепостью в течение всей жизни. «СВАЛБАРД 80» воплощает в себе идеальный баланс между современным комфортом и скандинавской философией «люкс» в простоте. Пусть этот дом станет вашим убежищем, в котором уют встречается с красотой природы, а функциональность гармонирует с эстетикой. Позвольте себе жить в стиле, который вдохновляет, и откройте двери для новых, прекрасных моментов в «СВАЛБАРД 80».

Характеристики дома

Архитектурный стиль
Автоматизированное регулирование параметров теплоносителя
Да
Балконы/лоджии
Отсутствуют
Чердачное помещение
Нет
Датчики протечки воды
Да
Эксплуатируемая или зеленая кровля
Нет
Электроснабжение
2 варианта
Газоснабжение
2 варианта
Изоляция воздушного шума
Да
Камин
Нет
Класс энергоэффективности
-
Класс энергосбережения
-
Количество надземных этажей
1
Круглогодичное проживание
Да
Материал кровли
Металлические рулонные или листовые материалы
Материал перекрытий
Деревянные
Материал внешних стен
Материал внутренних перегородок
Деревянные
Модульное строительство с конструкциями заводского изготовления
Да
Объем надземной части
-
Основной материал фасадов
Дерево
Отопление
2 варианта
Площадь дома
93 м2
Площадь застройки
122 м2
Подвальное помещение
Нет
Показатель компактности здания
-
Приборы учета тепловой энергии
Да
Пристроенный гараж/крытая автостоянка
Нет
Противопожарная система
Да
Санузлы
1
Совмещенная кухня-гостиная
Да
Спальни
2
Терраса
Да
Тип фундамента
Плитный
Тип кровли
Толщина внешних стен
300 мм
Толщина внутренних перегородок
150 мм
Улучшенные шумовые характеристики
Да
Вентиляция
3 варианта
Веранда
Нет
Водоотведение
2 варианта
Водоснабжение
2 варианта
Высота дома
4.7 м
Высота потолков
2.9 м

Планировка

Фасад дома

Александр

Закажите выезд инженера

Александр

Выездной инженер
Закажите выезд инженера для точной диагностики и профессиональной консультации по инженерным системам. Специалист приедет в удобное время, проведёт осмотр, рассчитает стоимость работ и подберёт оптимальные решения для вашего дома.


    Похожие проекты

    Ипотека и
    рассрочка
    Проект 108 из кирпича и бетона
    Стоимость от:
    6 164 840
    Проект от: 36 900
    Этажей 1
    Санузлы 1
    Спальни 3
    Смотреть
    Ипотека и
    рассрочка
    Загородный дом «FlatHaus»
    Стоимость от:
    7 731 460
    Проект от: 50 850
    Этажей 1
    Санузлы 2
    Спальни 3
    Смотреть
    Ипотека и
    рассрочка
    Озера 1
    Стоимость от:
    23 810 160
    Проект от: 156 600
    Этажей 1
    Санузлы 4
    Спальни 5
    Смотреть
    Ипотека и
    рассрочка
    Одноэтажный дом с большими окнами S-108
    Стоимость от:
    11 446 160
    Проект от: 66 600
    Этажей 1
    Санузлы 2
    Спальни 3
    Смотреть
    Ипотека и
    рассрочка
    ОН-1/159 4 спальни
    Стоимость от:
    10 169 280
    Проект от: 64 800
    Этажей 1
    Санузлы 2
    Спальни 4
    Смотреть
    Ипотека и
    рассрочка
    ДомPRO 120-3К-КТ
    Стоимость от:
    11 056 980
    Проект от: 62 550
    Этажей 1
    Санузлы 2
    Спальни 3
    Смотреть

    Как узнать стоимость дома

    back
    Оставляете заявку
    Вы заполняете форму на сайте или звоните нам. Менеджер Лайвкрафт связывается с вами для уточнения деталей: тип дома, площадь, материалы, участок строительства.
    back
    Консультация и подбор решения
    Наш специалист помогает выбрать оптимальный тип дома и конструкцию с учётом бюджета, сроков и целей — будь то дом для постоянного проживания или дача.
    back
    Расчёт предварительной стоимости
    Инженер делает первичный расчёт стоимости строительства по вашим параметрам: фундамент, коробка, кровля, отделка. Вы получаете смету с разбивкой по этапам.
    back
    Корректировка и утверждение сметы
    При необходимости вносим изменения — например, замену материалов или сокращение этапов. После согласования формируется окончательная фиксированная смета.
    back
    Заключение договора и старт работ
    После утверждения сметы заключаем официальный договор с гарантией. Вы получаете прозрачный график и точную стоимость — без скрытых расходов.

    Заказать конусльтацию по:Загородный дом СВАЛБАРД 80

    Фото 1 Загородный дом СВАЛБАРД 80


      Наши
      контакты

      Дмитров
      Опорный проезд 28Б
      (индустриальный парк Ниагара)
      9:00 до 18:00

      Корзина