4.9
Рейтинг на основании 120 отзывов
Дмитров
Опорный проезд 28Б
(индустриальный парк Ниагара)
Бренд "Дмитров-Дело" c 2008 года на рынке строительства в Дмитрове
Звоните 9:00 до 18:00 8 (915) 055-33-61
Бренд "Дмитров-Дело" c 2008 года на рынке строительства в Дмитрове

Йонкерс

Стоимость проекта от:
54 900 ₽
Стоимость строительства от:
8 033 700 ₽
Артикул ART-14228
Дата 25.12.2025
Архитектурный стиль Скандинавский
Количество надземных этажей 2
Круглогодичное проживание Да
Площадь дома 122 м2
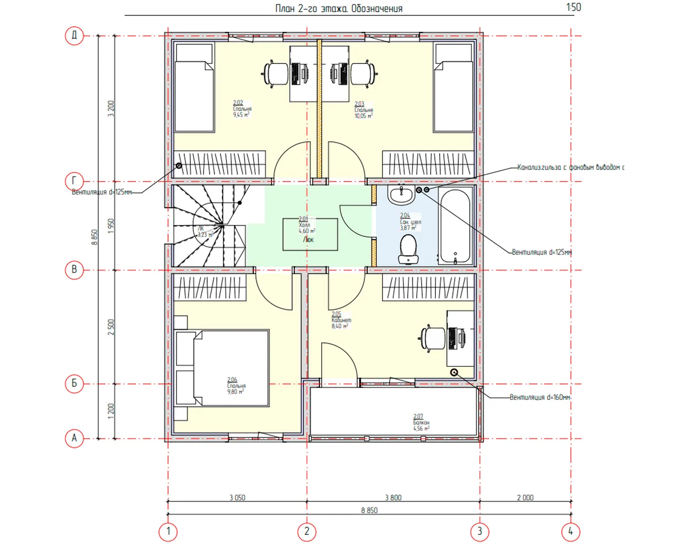
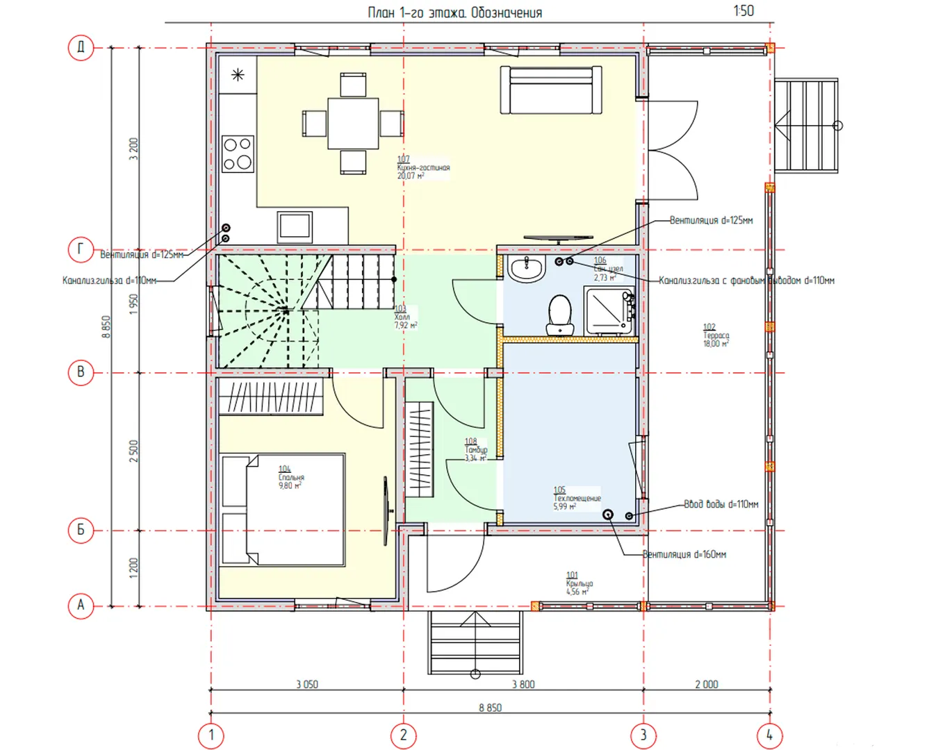
Санузлы 2
Спальни 4

Описание

Заглянув в ваш новый дом в Йонкерсе, вы сразу почувствуете атмосферу современного скандинавского уюта. Два открытых и светлых этажа, построенные в рамках каркасно‑панельной технологии, позволяют создать просторные, воздушные комнаты, где естественный свет льется на мягкие нейтральные стены, подчёркивая лаконичность и элегантность стиля. Весь дом удобен для круглогодичного проживания: изысканная теплоизоляция, современная система вентиляции и два крывых пола создают приятную микроклиматическую среду, защищая от холодных ветров и жаркой летней жары. Ключевое место в архитектуре играет простая, но мощная двускатная крыша, которая добавляет нотки традиционного скандинавского дизайна, сочетаясь с современными линиями и элегантными формами. Придайте особое внимание изысканному балкону, где можно насладиться уединённой прогулкой в любое время года: застрявший над полом, он становится вашим личным уголком для завтрака на свежем воздухе, просмотра закатных лучей или тихой вечерней чате. А просторная терраса, открытая с балкона, предлагает идеальное место для летних барбекю или отдыха с друзьями, создавая дополнительное пространство для жизни, которое не существует в других домах с подобным стилем. Эти уникальные детали делают ваш новый дом не просто зданием, а настоящим убежищем, где современные технологии и скандинавский минимализм создают гармоничную среду для вашего комфорта и вдохновения. Приглашаем вас стать частью этого стильного, экологичного места, где каждая деталь продумана до мелочей и предназначена для вашего счастья.

Характеристики дома

Архитектурный стиль
Скандинавский
Автоматизированное регулирование параметров теплоносителя
Да
Балконы/лоджии
1
Чердачное помещение
Нет
Датчики протечки воды
Да
Эксплуатируемая или зеленая кровля
Нет
Электроснабжение
2 варианта
Газоснабжение
2 варианта
Изоляция воздушного шума
Да
Камин
Нет
Класс энергоэффективности
-
Класс энергосбережения
-
Количество надземных этажей
2
Круглогодичное проживание
Да
Материал кровли
Металлочерепица
Материал перекрытий
Деревянные
Материал внешних стен
Каркасно-панельная технология
Материал внутренних перегородок
Деревянные
Модульное строительство с конструкциями заводского изготовления
Нет
Объем надземной части
702 м3
Основной материал фасадов
Дерево
Отопление
2 варианта
Площадь дома
122 м2
Площадь застройки
144 м2
Подвальное помещение
Нет
Показатель компактности здания
-
Приборы учета тепловой энергии
Да
Пристроенный гараж/крытая автостоянка
Нет
Противопожарная система
Да
Санузлы
2
Совмещенная кухня-гостиная
Да
Спальни
4
Терраса
Да
Тип фундамента
Свайно-винтовой
Тип кровли
Двускатная
Толщина внешних стен
250 мм
Толщина внутренних перегородок
100 мм
Улучшенные шумовые характеристики
Да
Вентиляция
Естественная
Веранда
Нет
Водоотведение
2 варианта
Водоснабжение
2 варианта
Высота дома
6 м
Высота потолков
2.5 м

Планировка

Фасад дома

Александр

Закажите выезд инженера

Александр

Выездной инженер
Закажите выезд инженера для точной диагностики и профессиональной консультации по инженерным системам. Специалист приедет в удобное время, проведёт осмотр, рассчитает стоимость работ и подберёт оптимальные решения для вашего дома.


    Похожие проекты

    Ипотека и
    рассрочка
    Каменный дом по проекту Марсель 75
    Стоимость от:
    6 002 700
    Проект от: 38 250
    Этажей 1
    Санузлы 1
    Спальни 3
    Смотреть
    Ипотека и
    рассрочка
    Проект одноэтажного дома РЛ-55
    Стоимость от:
    5 414 640
    Проект от: 32 400
    Этажей 1
    Санузлы 1
    Спальни 2
    Смотреть
    Ипотека и
    рассрочка
    Загородный жилой дом №6
    Стоимость от:
    8 940 580
    Проект от: 53 550
    Этажей 1
    Санузлы 3
    Спальни 2
    Смотреть
    Ипотека и
    рассрочка
    Одноэтажный дом из бруса
    Стоимость от:
    3 355 165
    Проект от: 23 850
    Этажей 1
    Санузлы 1
    Спальни 2
    Смотреть
    Ипотека и
    рассрочка
    Basis
    Стоимость от:
    8 620 920
    Проект от: 56 700
    Этажей 1
    Санузлы 2
    Спальни 3
    Смотреть
    Ипотека и
    рассрочка
    МО-96,5
    Стоимость от:
    7 047 260
    Проект от: 46 350
    Этажей 1
    Санузлы 1
    Спальни 3
    Смотреть

    Как узнать стоимость дома

    back
    Оставляете заявку
    Вы заполняете форму на сайте или звоните нам. Менеджер Лайвкрафт связывается с вами для уточнения деталей: тип дома, площадь, материалы, участок строительства.
    back
    Консультация и подбор решения
    Наш специалист помогает выбрать оптимальный тип дома и конструкцию с учётом бюджета, сроков и целей — будь то дом для постоянного проживания или дача.
    back
    Расчёт предварительной стоимости
    Инженер делает первичный расчёт стоимости строительства по вашим параметрам: фундамент, коробка, кровля, отделка. Вы получаете смету с разбивкой по этапам.
    back
    Корректировка и утверждение сметы
    При необходимости вносим изменения — например, замену материалов или сокращение этапов. После согласования формируется окончательная фиксированная смета.
    back
    Заключение договора и старт работ
    После утверждения сметы заключаем официальный договор с гарантией. Вы получаете прозрачный график и точную стоимость — без скрытых расходов.

    Заказать конусльтацию по:Йонкерс

    Фото 1 Йонкерс


      Наши
      контакты

      Дмитров
      Опорный проезд 28Б
      (индустриальный парк Ниагара)
      9:00 до 18:00