4.9
Рейтинг на основании 120 отзывов
Дмитров
Опорный проезд 28Б
(индустриальный парк Ниагара)
Бренд "Дмитров-Дело" c 2008 года на рынке строительства в Дмитрове
Звоните 9:00 до 18:00 8 (915) 055-33-61
Бренд "Дмитров-Дело" c 2008 года на рынке строительства в Дмитрове

Загородный дом — Тип 3

Стоимость проекта от:
33 750 ₽
БЕСПЛАТНО! ПРИ ЗАКАЗЕ СТРОИТЕЛЬСТВА
Стоимость строительства от:
5 809 100 ₽
Артикул ART-11881
Дата 25.12.2025
Архитектурный стиль Европейский
Количество надземных этажей 1
Круглогодичное проживание Да
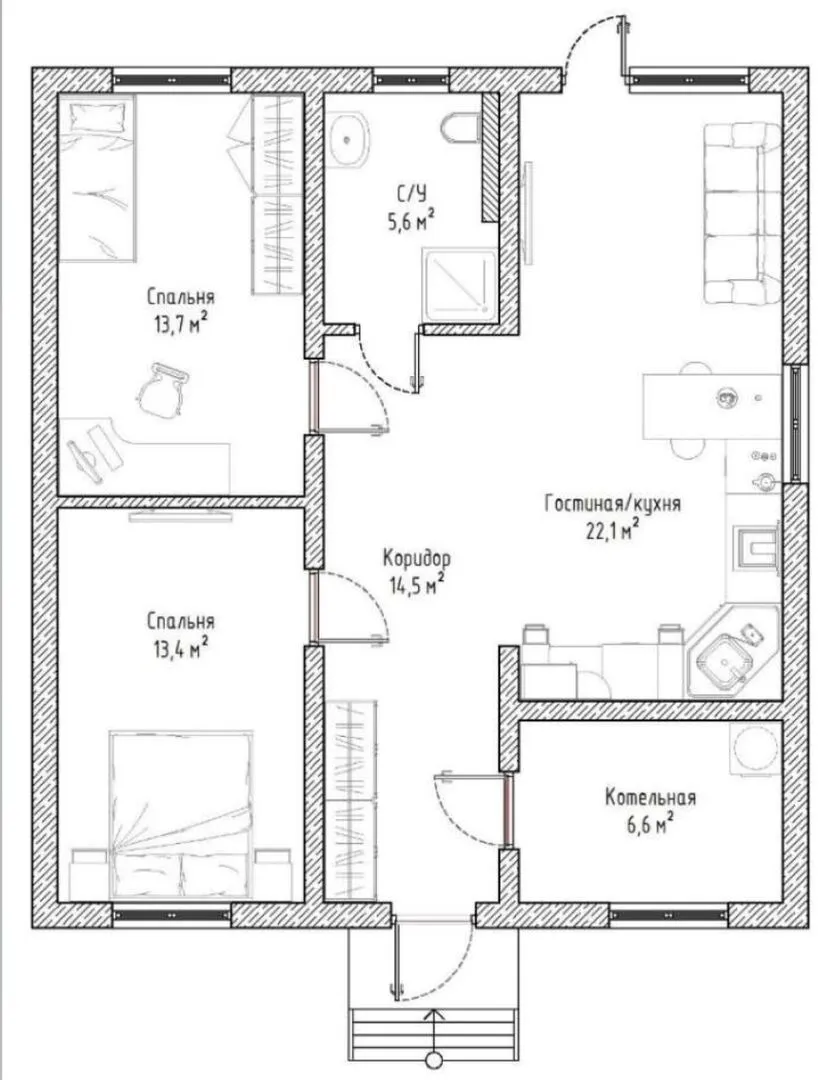
Площадь дома 75 м2
Санузлы 1
Спальни 2

Описание

Вас ждет уютный загородный уголок, где каждая деталь продумана до мелочей. Дом одного надземного этажа выполнен в стиле европейского шика – элегантные линии, гармоничный пропорциональный облик и лёгкая, но прочная керамзитобетонная кладка создают теплую атмосферу, идеально подходящую для круглогодичного проживания. При проектировании уделено внимание функциональности: от классического деревянного пола до современных отделок, которые придают помещению светлую и воздушную обстановку. Готовый к жизни дом с двускатной крышей дарит вам простоту и уют без лишних архитектурных акцентов. В отсутствие балконов и веранды уют складывается в уютных стенах: здесь вы можете спокойно собраться всей семьей, а в открытой зоне во дворе можно устроить пикник, окружённый зеленью. В данном проекте нет прицепленных гаражей и чердачного пространства, но керамзитобетонные стены сохраняют тепло в любой сезон, а простая, но элегантная крыша создаёт идеальны условия для отдыха и восстановления сил. Этот дом – идеальный выбор для тех, кто ищет простоту, комфорт и неповторимый загородный шарм. С его помощью вы обретёте настоящий дом на природе, где каждая минутка наполнена гармонией и безмятежностью.

Характеристики дома

Архитектурный стиль
Автоматизированное регулирование параметров теплоносителя
Нет
Балконы/лоджии
Отсутствуют
Чердачное помещение
Нет
Датчики протечки воды
Нет
Эксплуатируемая или зеленая кровля
Нет
Электроснабжение
Центральное
Газоснабжение
Центральное
Изоляция воздушного шума
Да
Камин
Нет
Класс энергоэффективности
-
Класс энергосбережения
-
Количество надземных этажей
1
Круглогодичное проживание
Да
Материал кровли
Битумная черепица
Материал перекрытий
Деревянные
Материал внешних стен
Материал внутренних перегородок
Блочные
Модульное строительство с конструкциями заводского изготовления
Нет
Объем надземной части
-
Основной материал фасадов
Штукатурка
Отопление
Индивидуальное
Площадь дома
75 м2
Площадь застройки
85 м2
Подвальное помещение
Нет
Показатель компактности здания
-
Приборы учета тепловой энергии
Нет
Пристроенный гараж/крытая автостоянка
Нет
Противопожарная система
Нет
Санузлы
1
Совмещенная кухня-гостиная
Да
Спальни
2
Терраса
Нет
Тип фундамента
Ленточный
Тип кровли
Толщина внешних стен
400 мм
Толщина внутренних перегородок
200 мм
Улучшенные шумовые характеристики
Да
Вентиляция
Естественная
Веранда
Нет
Водоотведение
Локальные очистные сооружения
Водоснабжение
Индивидуальное
Высота дома
6 м
Высота потолков
3 м

Планировка

Фасад дома

Александр

Закажите выезд инженера

Александр

Выездной инженер
Закажите выезд инженера для точной диагностики и профессиональной консультации по инженерным системам. Специалист приедет в удобное время, проведёт осмотр, рассчитает стоимость работ и подберёт оптимальные решения для вашего дома.


    Похожие проекты

    Ипотека и
    рассрочка
    Суксун-159
    Стоимость от:
    9 684 240
    Проект от: 63 450
    Этажей 2
    Санузлы 2
    Спальни 4
    Смотреть
    Ипотека и
    рассрочка
    Линейка «Современная Европа» . Проект «Добрый Дом».
    Стоимость от:
    7 215 120
    Проект от: 43 200
    Этажей 1
    Санузлы 2
    Спальни 2
    Смотреть
    Ипотека и
    рассрочка
    Одноэтажный дом линейки «Эстетика» 1-150
    Стоимость от:
    10 593 000
    Проект от: 67 500
    Этажей 1
    Санузлы 2
    Спальни 3
    Смотреть
    Ипотека и
    рассрочка
    Елена 120
    Стоимость от:
    8 403 780
    Проект от: 53 550
    Этажей 1
    Санузлы 2
    Спальни 3
    Смотреть
    Ипотека и
    рассрочка
    Двухэтажный дом Флагман
    Стоимость от:
    11 949 120
    Проект от: 75 600
    Этажей 2
    Санузлы 1
    Спальни 3
    Смотреть
    Ипотека и
    рассрочка
    Каркасный дом «Оккервиль»
    Стоимость от:
    3 826 020
    Проект от: 29 700
    Этажей 1
    Санузлы 1
    Спальни 2
    Смотреть

    Как узнать стоимость дома

    back
    Оставляете заявку
    Вы заполняете форму на сайте или звоните нам. Менеджер Лайвкрафт связывается с вами для уточнения деталей: тип дома, площадь, материалы, участок строительства.
    back
    Консультация и подбор решения
    Наш специалист помогает выбрать оптимальный тип дома и конструкцию с учётом бюджета, сроков и целей — будь то дом для постоянного проживания или дача.
    back
    Расчёт предварительной стоимости
    Инженер делает первичный расчёт стоимости строительства по вашим параметрам: фундамент, коробка, кровля, отделка. Вы получаете смету с разбивкой по этапам.
    back
    Корректировка и утверждение сметы
    При необходимости вносим изменения — например, замену материалов или сокращение этапов. После согласования формируется окончательная фиксированная смета.
    back
    Заключение договора и старт работ
    После утверждения сметы заключаем официальный договор с гарантией. Вы получаете прозрачный график и точную стоимость — без скрытых расходов.

    Заказать конусльтацию по:Загородный дом — Тип 3

    Фото 1 Загородный дом — Тип 3


      Наши
      контакты

      Дмитров
      Опорный проезд 28Б
      (индустриальный парк Ниагара)
      9:00 до 18:00

      Корзина