4.9
Рейтинг на основании 120 отзывов
Дмитров
Опорный проезд 28Б
(индустриальный парк Ниагара)
Бренд "Дмитров-Дело" c 2008 года на рынке строительства в Дмитрове
Звоните 9:00 до 18:00 8 (915) 055-33-61
Бренд "Дмитров-Дело" c 2008 года на рынке строительства в Дмитрове

Эргономичный дом с гаражом на две машины S-258

Стоимость проекта от:
160 200 ₽
БЕСПЛАТНО! ПРИ ЗАКАЗЕ СТРОИТЕЛЬСТВА
Стоимость строительства от:
26 163 840 ₽
Артикул ART-4204
Дата 26.12.2025
Архитектурный стиль Хайтек
Количество надземных этажей 2
Круглогодичное проживание Да
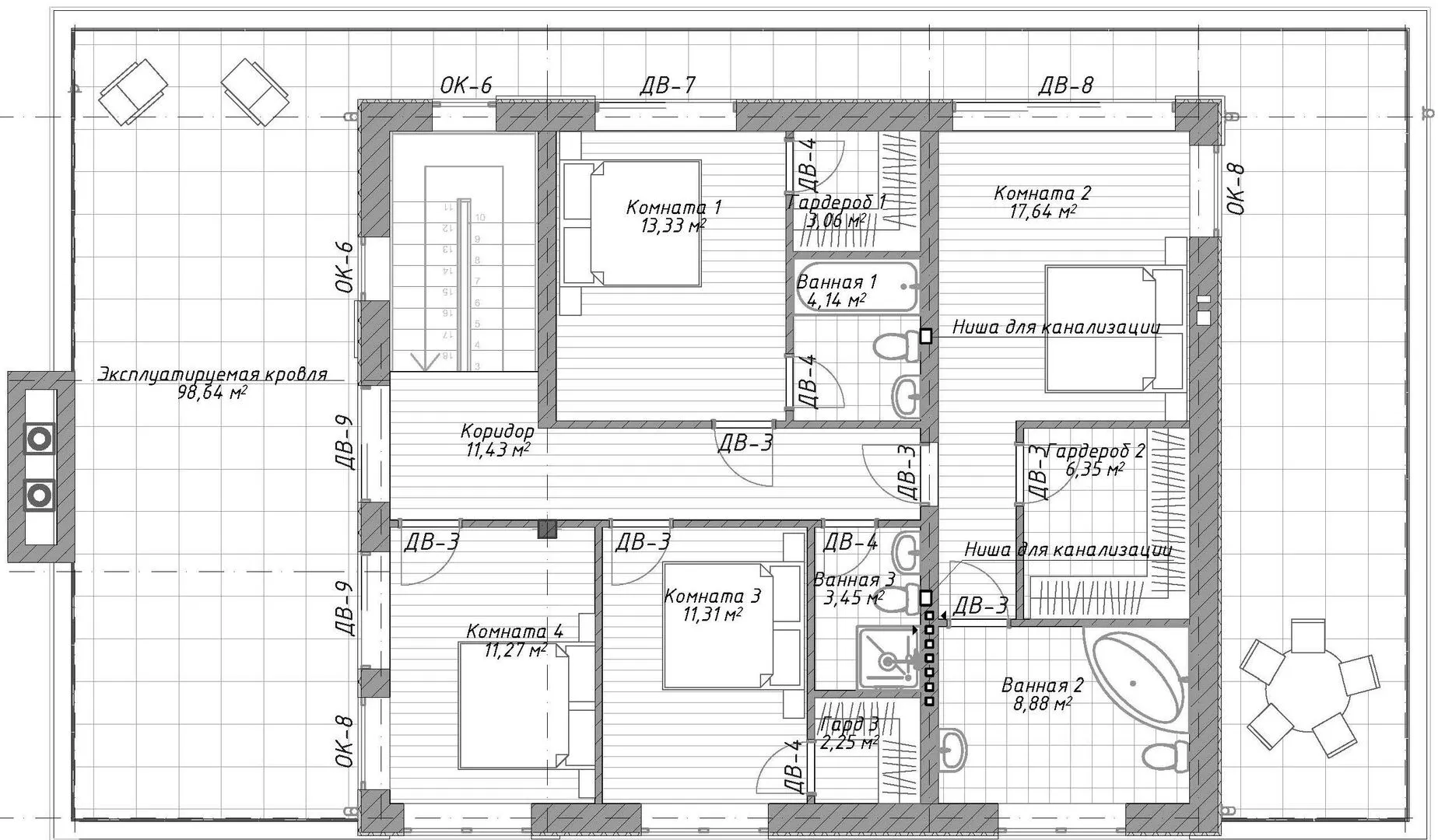
Площадь дома 356 м2
Санузлы 5
Спальни 6

Описание

Откройте дверь в дом, где современность встречается с комфортом. Эргономичный дом серии S‑258 – это идеальное решение для тех, кто ценит стиль и функциональность. Его две надземные элегантные палитры – как два плана: в первом вы находитесь, где работаете и отдыхаете, а во втором – место для уединения и вдохновения. Круглогодичная пригодность здания позволяет радоваться уюту в любое время года, не переживая о климатических перепадах. Фасад, выполненный из высококлассного газобетонного блока, дарит мягкое тепло и изысканный вид, а плоская крыша, сдерживая строгий хай‑тек характер, придает дому не только современный облик, но и практичность: оттуда легко управлять системой освещения и водоотведения. Объединённый гараж, рассчитанный на две машины, скрытно вписывается в общий ансамбль, обеспечивая безопасность и дополнительное пространство для хранения. Терраса, открываясь на светлые пространства вокруг, становится идеальным уголком для утренних кофе‑брейков, ужинов при восходе солнца или вечерних дискуссий. Здесь каждый уголок продуман до мелочей, а материалы – это прочность и долговечность без потери эстетики. Никаких балконов и веранд, лишь чистый линийный рисунок, придающий дому лаконичность и элегантность. Высокотехнологичный стиль и эргономичный план создают идеальное пространство для жизни и творчества, которое вдохновит ваше сердце и сделает каждый день особенным.

Характеристики дома

Архитектурный стиль
Автоматизированное регулирование параметров теплоносителя
Да
Балконы/лоджии
Отсутствуют
Чердачное помещение
Нет
Датчики протечки воды
Да
Эксплуатируемая или зеленая кровля
Да
Электроснабжение
Центральное
Газоснабжение
Центральное
Изоляция воздушного шума
Да
Камин
Нет
Класс энергоэффективности
-
Класс энергосбережения
-
Количество надземных этажей
2
Круглогодичное проживание
Да
Материал кровли
Битумная мастика
Материал перекрытий
Монолитные железобетонные
Материал внешних стен
Материал внутренних перегородок
Блочные
Модульное строительство с конструкциями заводского изготовления
Нет
Объем надземной части
-
Основной материал фасадов
Штукатурка
Отопление
Центральное
Площадь дома
356 м2
Площадь застройки
427 м2
Подвальное помещение
Нет
Показатель компактности здания
-
Приборы учета тепловой энергии
Да
Пристроенный гараж/крытая автостоянка
Да
Противопожарная система
Да
Санузлы
5
Совмещенная кухня-гостиная
Нет
Спальни
6
Терраса
Да
Тип фундамента
Ленточный
Тип кровли
Толщина внешних стен
425 мм
Толщина внутренних перегородок
100 мм
Улучшенные шумовые характеристики
Да
Вентиляция
Естественная
Веранда
Нет
Водоотведение
Локальные очистные сооружения
Водоснабжение
Центральное
Высота дома
7.4 м
Высота потолков
3 м

Планировка

Фасад дома

Александр

Закажите выезд инженера

Александр

Выездной инженер
Закажите выезд инженера для точной диагностики и профессиональной консультации по инженерным системам. Специалист приедет в удобное время, проведёт осмотр, рассчитает стоимость работ и подберёт оптимальные решения для вашего дома.


    Похожие проекты

    Ипотека и
    рассрочка
    Двухэтажный загородный дом
    Стоимость от:
    7 061 040
    Проект от: 45 450
    Этажей 2
    Санузлы 2
    Спальни 3
    Смотреть
    Ипотека и
    рассрочка
    Кирпичный дом «Рождествено»
    Стоимость от:
    7 172 110
    Проект от: 50 850
    Этажей 1
    Санузлы 2
    Спальни 2
    Смотреть
    Ипотека и
    рассрочка
    Бавария -125
    Стоимость от:
    8 909 520
    Проект от: 55 350
    Этажей 2
    Санузлы 2
    Спальни 3
    Смотреть
    Ипотека и
    рассрочка
    S 1-103
    Стоимость от:
    7 665 240
    Проект от: 45 900
    Этажей 1
    Санузлы 2
    Спальни 3
    Смотреть
    Ипотека и
    рассрочка
    Индивидуальный проект Князевское 1
    Стоимость от:
    12 902 340
    Проект от: 79 650
    Этажей 1
    Санузлы 3
    Спальни 4
    Смотреть
    Ипотека и
    рассрочка
    Серия «КЛАССИКА» КД-2
    Стоимость от:
    3 583 910
    Проект от: 27 900
    Этажей 1
    Санузлы 1
    Спальни 2
    Смотреть

    Как узнать стоимость дома

    back
    Оставляете заявку
    Вы заполняете форму на сайте или звоните нам. Менеджер Лайвкрафт связывается с вами для уточнения деталей: тип дома, площадь, материалы, участок строительства.
    back
    Консультация и подбор решения
    Наш специалист помогает выбрать оптимальный тип дома и конструкцию с учётом бюджета, сроков и целей — будь то дом для постоянного проживания или дача.
    back
    Расчёт предварительной стоимости
    Инженер делает первичный расчёт стоимости строительства по вашим параметрам: фундамент, коробка, кровля, отделка. Вы получаете смету с разбивкой по этапам.
    back
    Корректировка и утверждение сметы
    При необходимости вносим изменения — например, замену материалов или сокращение этапов. После согласования формируется окончательная фиксированная смета.
    back
    Заключение договора и старт работ
    После утверждения сметы заключаем официальный договор с гарантией. Вы получаете прозрачный график и точную стоимость — без скрытых расходов.

    Заказать конусльтацию по:Эргономичный дом с гаражом на две машины S-258

    Фото 1 Эргономичный дом с гаражом на две машины S-258


      Наши
      контакты

      Дмитров
      Опорный проезд 28Б
      (индустриальный парк Ниагара)
      9:00 до 18:00

      Корзина