4.9
Рейтинг на основании 120 отзывов
Дмитров
Опорный проезд 28Б
(индустриальный парк Ниагара)
Бренд "Дмитров-Дело" c 2008 года на рынке строительства в Дмитрове
Звоните 9:00 до 18:00 8 (915) 055-33-61
Бренд "Дмитров-Дело" c 2008 года на рынке строительства в Дмитрове

Загородный дом — Тип 6

Стоимость проекта от:
45 000 ₽
БЕСПЛАТНО! ПРИ ЗАКАЗЕ СТРОИТЕЛЬСТВА
Стоимость строительства от:
7 739 600 ₽
Артикул ART-11911
Дата 25.12.2025
Архитектурный стиль Европейский
Количество надземных этажей 1
Круглогодичное проживание Да
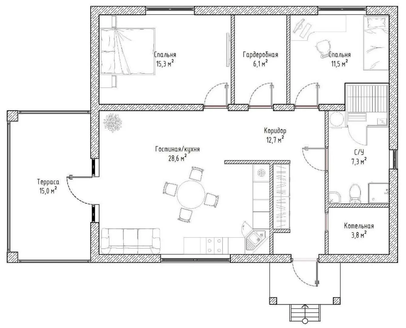
Площадь дома 100 м2
Санузлы 1
Спальни 2

Описание

В самом сердце тихой деревенской застройки открывается этот уникальный загородный дом — идеальная встреча европейской элегантности и практичности современного образа жизни. Уже при первом взгляде в очаровательном фасаде керамзитобетонных блоков вы почувствуете тепло и надежность, а комбинированная кровля придает дому стойкость и изысканность даже в самые непредсказуемые погодные условия. Просторная терраса приглашает на утренний кофе или вечерние посиделки под звездами, создавая дополнительное место для отдыха без лишней загроможденности. Несмотря на компактные размеры — один надземный этаж, — дом пропитан светом и воздухом. Удобная планировка позволяет почувствовать себя в каждом уголке: уютная гостиная, рабочая зона, кухня, где аромат свежих продуктов будет всегда рядом, и спальня с панорамным окном, открывающим вид на живописные ландшафты. Все внутренние стены из качественных керамзитобетонных блоков обеспечивают шумоизоляцию и энергоэффективность, а отсутствие балконов и веранд делает интерьер более сдержанным и неприкладным. Вы сможете полностью погрузиться в атмосферу уюта, не отвлекаясь на лишние детали. Этот дом — ваш персональный уголок уединения, где каждый день можно наслаждаться гармонией природы и комфорта современных технологий. Приходите и убедитесь сами: сочетание европейского стиля, годового проживания и продуманной архитектуры создают неповторимый рай для всей семьи. Позвольте себе шагнуть в новый этап жизни, где дом становится настоящим убежищем, а каждое мгновение наполнено лёгкостью и удовольствием.

Характеристики дома

Архитектурный стиль
Автоматизированное регулирование параметров теплоносителя
Нет
Балконы/лоджии
Отсутствуют
Чердачное помещение
Нет
Датчики протечки воды
Нет
Эксплуатируемая или зеленая кровля
Нет
Электроснабжение
Центральное
Газоснабжение
Центральное
Изоляция воздушного шума
Да
Камин
Нет
Класс энергоэффективности
-
Класс энергосбережения
-
Количество надземных этажей
1
Круглогодичное проживание
Да
Материал кровли
Битумная черепица
Материал перекрытий
Деревянные
Материал внешних стен
Материал внутренних перегородок
Блочные
Модульное строительство с конструкциями заводского изготовления
Нет
Объем надземной части
-
Основной материал фасадов
Штукатурка
Отопление
Индивидуальное
Площадь дома
100 м2
Площадь застройки
110 м2
Подвальное помещение
Нет
Показатель компактности здания
-
Приборы учета тепловой энергии
Нет
Пристроенный гараж/крытая автостоянка
Нет
Противопожарная система
Нет
Санузлы
1
Совмещенная кухня-гостиная
Да
Спальни
2
Терраса
Да
Тип фундамента
Ленточный
Тип кровли
Толщина внешних стен
400 мм
Толщина внутренних перегородок
200 мм
Улучшенные шумовые характеристики
Да
Вентиляция
Естественная
Веранда
Нет
Водоотведение
Локальные очистные сооружения
Водоснабжение
Индивидуальное
Высота дома
6.17 м
Высота потолков
3.1 м

Планировка

Фасад дома

Александр

Закажите выезд инженера

Александр

Выездной инженер
Закажите выезд инженера для точной диагностики и профессиональной консультации по инженерным системам. Специалист приедет в удобное время, проведёт осмотр, рассчитает стоимость работ и подберёт оптимальные решения для вашего дома.


    Похожие проекты

    Ипотека и
    рассрочка
    Одноэтажный кирпичный дом MIDDLE — 87 m2 (Декоративная штукатурка)
    Стоимость от:
    4 941 640
    Проект от: 27 900
    Этажей 1
    Санузлы 1
    Спальни 2
    Смотреть
    Ипотека и
    рассрочка
    Конаково-2
    Стоимость от:
    8 600 460
    Проект от: 59 850
    Этажей 2
    Санузлы 2
    Спальни 4
    Смотреть
    Ипотека и
    рассрочка
    Одноэтажный небольшой дом «Уютный»
    Стоимость от:
    7 006 560
    Проект от: 39 600
    Этажей 1
    Санузлы 1
    Спальни 2
    Смотреть
    Ипотека и
    рассрочка
    Дом ГД-909
    Стоимость от:
    1 645 930
    Проект от: 11 700
    Этажей 1
    Санузлы 1
    Спальни 1
    Смотреть
    Ипотека и
    рассрочка
    Авторский проект «Самар»
    Стоимость от:
    11 453 760
    Проект от: 73 800
    Этажей 2
    Санузлы 2
    Спальни 4
    Смотреть
    Ипотека и
    рассрочка
    Дом из газобетона ГБ-178
    Стоимость от:
    10 416 960
    Проект от: 64 800
    Этажей 2
    Санузлы 3
    Спальни 4
    Смотреть

    Как узнать стоимость дома

    back
    Оставляете заявку
    Вы заполняете форму на сайте или звоните нам. Менеджер Лайвкрафт связывается с вами для уточнения деталей: тип дома, площадь, материалы, участок строительства.
    back
    Консультация и подбор решения
    Наш специалист помогает выбрать оптимальный тип дома и конструкцию с учётом бюджета, сроков и целей — будь то дом для постоянного проживания или дача.
    back
    Расчёт предварительной стоимости
    Инженер делает первичный расчёт стоимости строительства по вашим параметрам: фундамент, коробка, кровля, отделка. Вы получаете смету с разбивкой по этапам.
    back
    Корректировка и утверждение сметы
    При необходимости вносим изменения — например, замену материалов или сокращение этапов. После согласования формируется окончательная фиксированная смета.
    back
    Заключение договора и старт работ
    После утверждения сметы заключаем официальный договор с гарантией. Вы получаете прозрачный график и точную стоимость — без скрытых расходов.

    Заказать конусльтацию по:Загородный дом — Тип 6

    Фото 1 Загородный дом — Тип 6


      Наши
      контакты

      Дмитров
      Опорный проезд 28Б
      (индустриальный парк Ниагара)
      9:00 до 18:00

      Корзина