4.9
Рейтинг на основании 120 отзывов
Дмитров
Опорный проезд 28Б
(индустриальный парк Ниагара)
Бренд "Дмитров-Дело" c 2008 года на рынке строительства в Дмитрове
Звоните 9:00 до 18:00 8 (915) 055-33-61
Бренд "Дмитров-Дело" c 2008 года на рынке строительства в Дмитрове

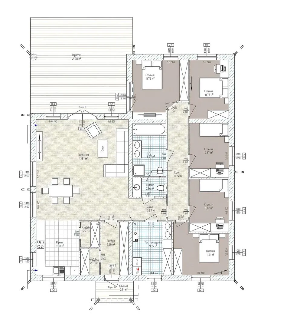
Загородный дом ВС-114

Стоимость проекта от:
90 900 ₽
БЕСПЛАТНО! ПРИ ЗАКАЗЕ СТРОИТЕЛЬСТВА
Стоимость строительства от:
12 820 940 ₽
Артикул ART-20492
Дата 26.12.2025
Архитектурный стиль Классический
Количество надземных этажей 1
Круглогодичное проживание Да
Площадь дома 202 м2
Санузлы 2
Спальни 5

Описание

Пример уютного семейного уголка на краю леса, где спокойствие и простота становятся вашим ежедневным приютом. Загородный дом ВС‑114 – это идеальное сочетание классической элегантности и практической эффективности. Его один надземный этаж, выполненный в строгих, но теплых тонах, позволяет легко ориентироваться и создает ощущение простора без лишних громоздких деталей. Вся площадь дома оборудована для круглогодичного проживания: от теплоизоляционных газобетонных блоков до крепкой деревянной крыши с четырёхскатной, вальмовой конструкцией, которую защитили от атмосферных наводнений. Превосходно продуманный уголок на чердачном уровне даст простор для хранения или превращения в уютную «альтернативную» комнату. Внешний вид дома – это гармония простоты и классического стиля. Отсутствие балконов и пристроенных веранд позволяет сосредоточиться на открытых пространствах, а наличие просторной террасы открывает вам виды на живописные окрестности. Вы сможете наслаждаться завтраком на открытом воздухе, пока далекие деревья шепчут истории о прошлых летах. И, конечно же, отсутствие крытой автостоянки – это символ чистоты и неприкосновенности этого места, где жизнь идёт своим чередом, в гармонии с природой. Дом ВС‑114 – это место, где каждая деталь создана для вашего комфорта: от уютных углов в камине до светлых комнат, наполненных естественным светом. Он призван стать вашим личным оазисом, куда можно возвращаться со всех уголков мира. Этот дом обещает вам спокойствие, безопасность и простые радости, которые делают каждый день особенным. 🌿✨

Характеристики дома

Архитектурный стиль
Автоматизированное регулирование параметров теплоносителя
Нет
Балконы/лоджии
Отсутствуют
Чердачное помещение
Да
Датчики протечки воды
Нет
Эксплуатируемая или зеленая кровля
Нет
Электроснабжение
Центральное
Газоснабжение
Индивидуальное
Изоляция воздушного шума
Нет
Камин
Нет
Класс энергоэффективности
-
Класс энергосбережения
-
Количество надземных этажей
1
Круглогодичное проживание
Да
Материал кровли
Металлочерепица
Материал перекрытий
Деревянные
Материал внешних стен
Материал внутренних перегородок
Блочные
Модульное строительство с конструкциями заводского изготовления
Нет
Объем надземной части
1460 м3
Основной материал фасадов
Штукатурка
Отопление
Индивидуальное
Площадь дома
202 м2
Площадь застройки
240 м2
Подвальное помещение
Нет
Показатель компактности здания
-
Приборы учета тепловой энергии
Нет
Пристроенный гараж/крытая автостоянка
Нет
Противопожарная система
Нет
Санузлы
2
Совмещенная кухня-гостиная
Да
Спальни
5
Терраса
Да
Тип фундамента
Свайный
Толщина внешних стен
400 мм
Толщина внутренних перегородок
100 мм
Улучшенные шумовые характеристики
Нет
Вентиляция
Естественная
Веранда
Нет
Водоотведение
Локальные очистные сооружения
Водоснабжение
Центральное
Высота дома
5.9 м
Высота потолков
3 м

Планировка

Фасад дома

Александр

Закажите выезд инженера

Александр

Выездной инженер
Закажите выезд инженера для точной диагностики и профессиональной консультации по инженерным системам. Специалист приедет в удобное время, проведёт осмотр, рассчитает стоимость работ и подберёт оптимальные решения для вашего дома.


    Похожие проекты

    Ипотека и
    рассрочка
    A-frame № 1
    Стоимость от:
    7 509 120
    Проект от: 50 850
    Этажей 2
    Санузлы 1
    Спальни 2
    Смотреть
    Ипотека и
    рассрочка
    Дом в Княжево 96
    Стоимость от:
    4 740 010
    Проект от: 36 900
    Этажей 1
    Санузлы 1
    Спальни 3
    Смотреть
    Ипотека и
    рассрочка
    Фолк Village 100
    Стоимость от:
    5 577 000
    Проект от: 45 000
    Этажей 1
    Санузлы 1
    Спальни 2
    Смотреть
    Ипотека и
    рассрочка
    Загородный коттедж Самарк
    Стоимость от:
    19 820 240
    Проект от: 122 400
    Этажей 1
    Санузлы 4
    Спальни 4
    Смотреть
    Ипотека и
    рассрочка
    СЛИП-1
    Стоимость от:
    5 423 000
    Проект от: 31 500
    Этажей 1
    Санузлы 1
    Спальни 3
    Смотреть
    Ипотека и
    рассрочка
    Дом из газобетона Мирамар-М
    Стоимость от:
    7 619 760
    Проект от: 49 050
    Этажей 2
    Санузлы 2
    Спальни 4
    Смотреть

    Как узнать стоимость дома

    back
    Оставляете заявку
    Вы заполняете форму на сайте или звоните нам. Менеджер Лайвкрафт связывается с вами для уточнения деталей: тип дома, площадь, материалы, участок строительства.
    back
    Консультация и подбор решения
    Наш специалист помогает выбрать оптимальный тип дома и конструкцию с учётом бюджета, сроков и целей — будь то дом для постоянного проживания или дача.
    back
    Расчёт предварительной стоимости
    Инженер делает первичный расчёт стоимости строительства по вашим параметрам: фундамент, коробка, кровля, отделка. Вы получаете смету с разбивкой по этапам.
    back
    Корректировка и утверждение сметы
    При необходимости вносим изменения — например, замену материалов или сокращение этапов. После согласования формируется окончательная фиксированная смета.
    back
    Заключение договора и старт работ
    После утверждения сметы заключаем официальный договор с гарантией. Вы получаете прозрачный график и точную стоимость — без скрытых расходов.

    Заказать конусльтацию по:Загородный дом ВС-114

    Фото 1 Загородный дом ВС-114


      Наши
      контакты

      Дмитров
      Опорный проезд 28Б
      (индустриальный парк Ниагара)
      9:00 до 18:00

      Корзина