4.9
Рейтинг на основании 120 отзывов
Дмитров
Опорный проезд 28Б
(индустриальный парк Ниагара)
Бренд "Дмитров-Дело" c 2008 года на рынке строительства в Дмитрове
Звоните 9:00 до 18:00 8 (915) 055-33-61
Бренд "Дмитров-Дело" c 2008 года на рынке строительства в Дмитрове

Загородный дом ВС-116

Стоимость проекта от:
115 200 ₽
БЕСПЛАТНО! ПРИ ЗАКАЗЕ СТРОИТЕЛЬСТВА
Стоимость строительства от:
18 477 160 ₽
Артикул ART-20496
Дата 26.12.2025
Архитектурный стиль Хайтек
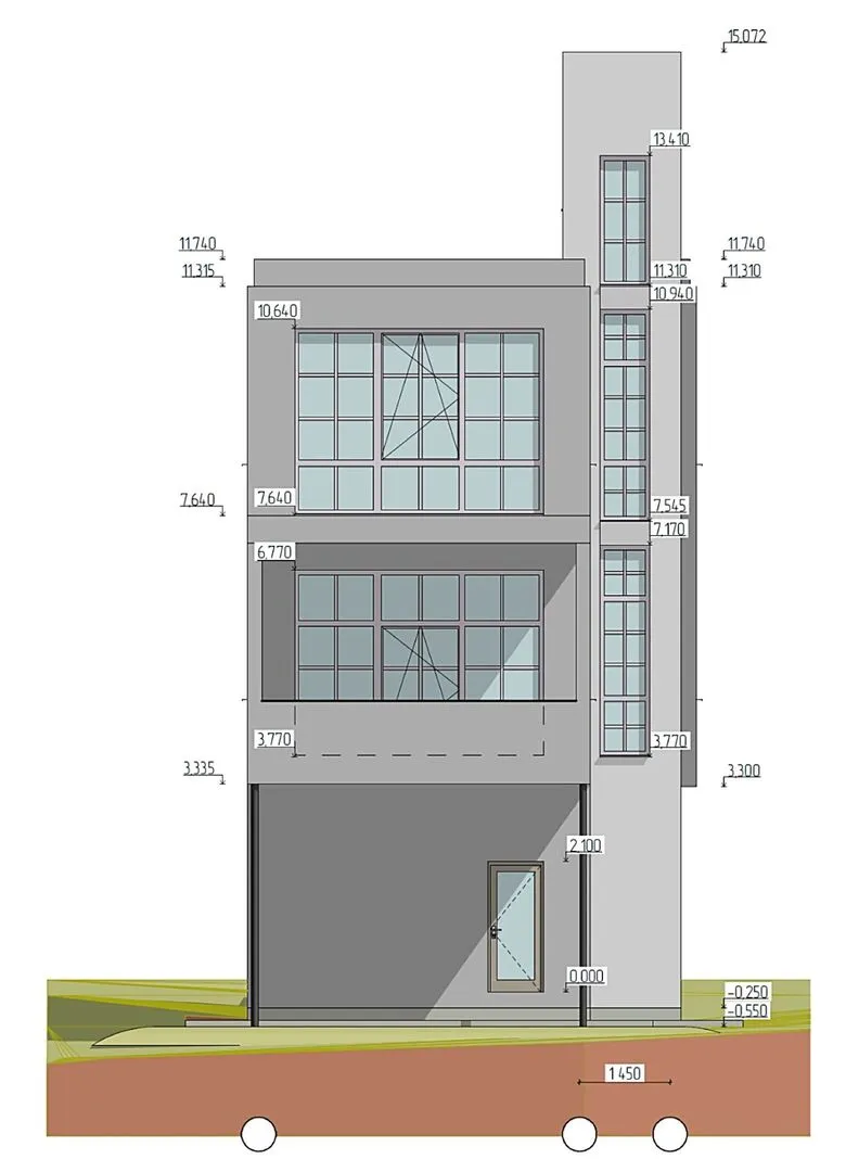
Количество надземных этажей 3
Круглогодичное проживание Да
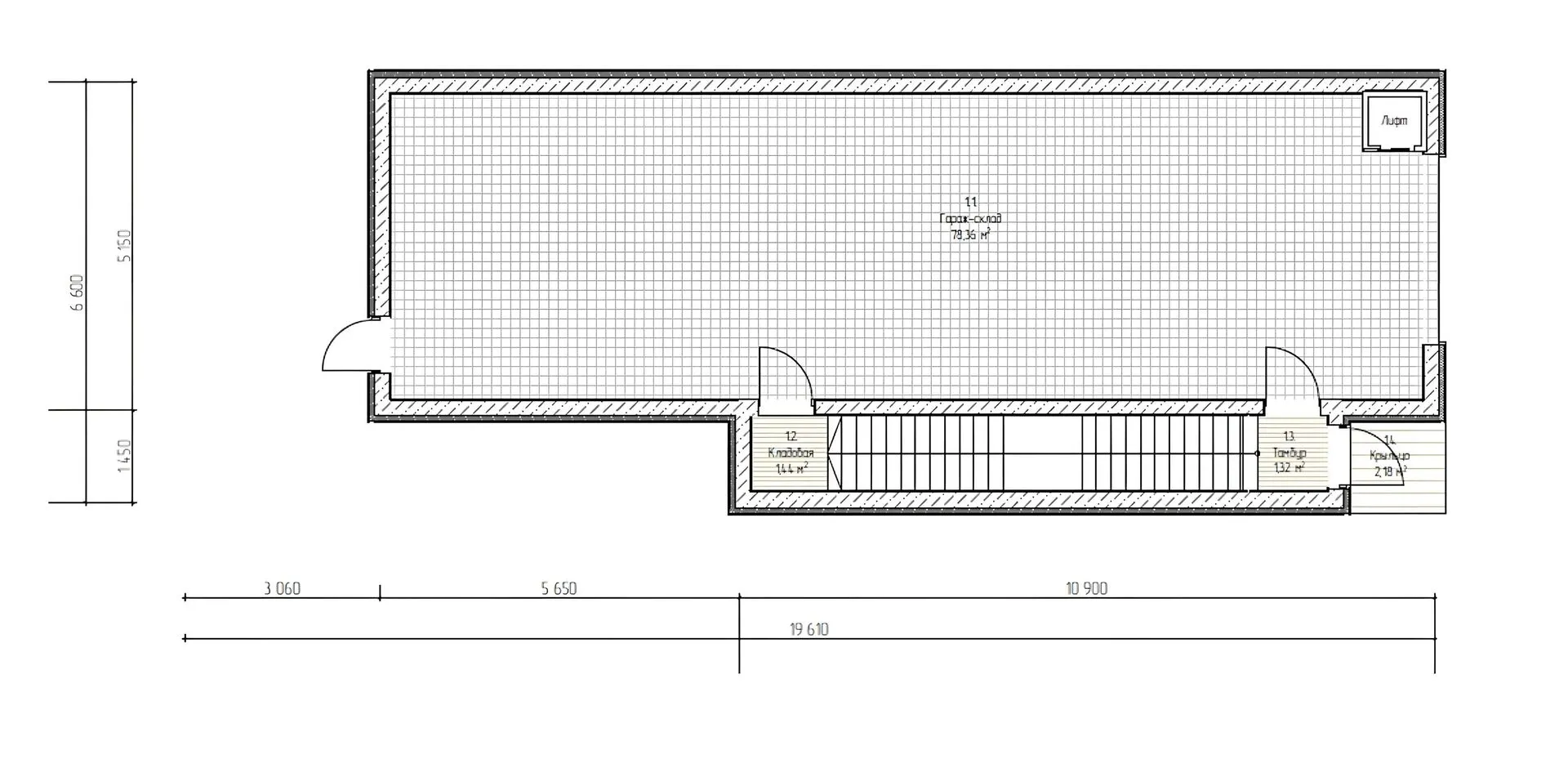
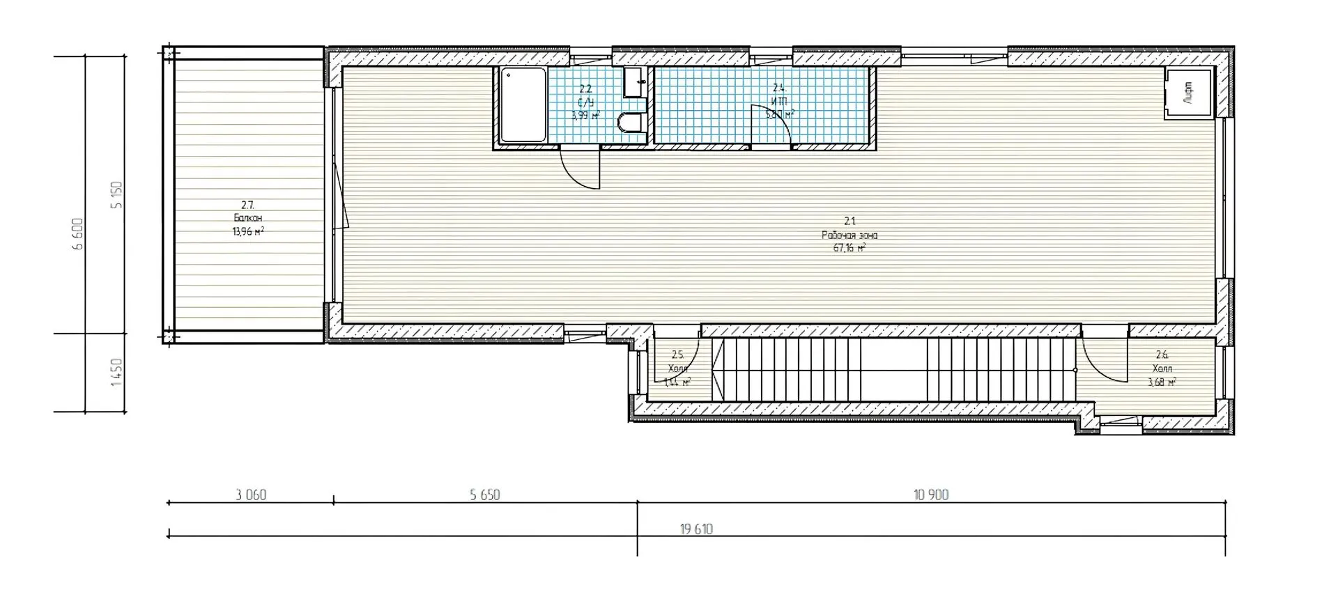
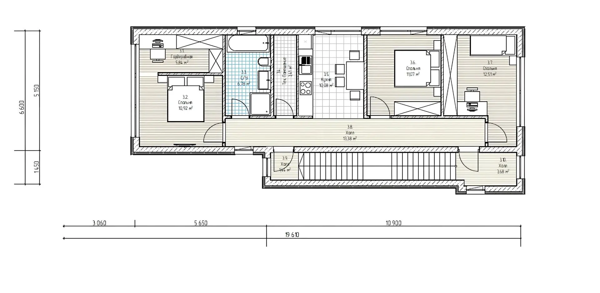
Площадь дома 256 м2
Санузлы 2
Спальни 3

Описание

Дом «ВС‑116» — это яркий пример современной сельской жизни, где каждая деталь пронизана технологическим изяществом и функциональностью. Трёхэтажный монолитный бетонный корпус в стиле хай‑тек создаёт ощущение прочности и долговечности, а плоская крыша позволяет использовать пространство максимально рационально, даже в условиях круглогодичного проживания. Благодаря высокому уровню теплоизоляции и современным строительным материалам, в этом доме лето будет приносить приятный уют, а зима — тепло и комфорт. Удобство повседневной жизни в «ВС‑116» подчеркнуто практичностью: закрытый пристроенный гараж даёт надежную защиту от непогоды, а просторные внутренние помещения легко адаптируются под любой образ жизни. На балконе с панорамным видом можно наслаждаться свежим воздухом и видом на природу, создавая неповторимую атмосферу уединения. Если вы мечтаете о современном загородном доме, где технологии встречаются с комфортом, «ВС‑116» готов предложить вам уют, спокойствие и стиль в каждом квадратном метре.

Характеристики дома

Архитектурный стиль
Автоматизированное регулирование параметров теплоносителя
Нет
Балконы/лоджии
1
Чердачное помещение
Нет
Датчики протечки воды
Нет
Эксплуатируемая или зеленая кровля
Нет
Электроснабжение
Центральное
Газоснабжение
Индивидуальное
Изоляция воздушного шума
Нет
Камин
Нет
Класс энергоэффективности
-
Класс энергосбережения
-
Количество надземных этажей
3
Круглогодичное проживание
Да
Материал кровли
Битумные листы
Материал перекрытий
Монолитные железобетонные
Материал внешних стен
Материал внутренних перегородок
Кирпичные
Модульное строительство с конструкциями заводского изготовления
Нет
Объем надземной части
1886 м3
Основной материал фасадов
Штукатурка
Отопление
Индивидуальное
Площадь дома
256 м2
Площадь застройки
109 м2
Подвальное помещение
Нет
Показатель компактности здания
-
Приборы учета тепловой энергии
Нет
Пристроенный гараж/крытая автостоянка
Да
Противопожарная система
Нет
Санузлы
2
Совмещенная кухня-гостиная
Нет
Спальни
3
Терраса
Нет
Тип фундамента
Плитный
Тип кровли
Толщина внешних стен
250 мм
Толщина внутренних перегородок
100 мм
Улучшенные шумовые характеристики
Нет
Вентиляция
Естественная
Веранда
Нет
Водоотведение
Локальные очистные сооружения
Водоснабжение
Центральное
Высота дома
15.07 м
Высота потолков
3.5 м

Планировка

Фасад дома

Александр

Закажите выезд инженера

Александр

Выездной инженер
Закажите выезд инженера для точной диагностики и профессиональной консультации по инженерным системам. Специалист приедет в удобное время, проведёт осмотр, рассчитает стоимость работ и подберёт оптимальные решения для вашего дома.


    Похожие проекты

    Ипотека и
    рассрочка
    Каркасный дом Фараон 5
    Стоимость от:
    8 049 480
    Проект от: 61 650
    Этажей 2
    Санузлы 2
    Спальни 3
    Смотреть
    Ипотека и
    рассрочка
    «Барнхаус 9х13»
    Стоимость от:
    5 744 310
    Проект от: 46 350
    Этажей 1
    Санузлы 2
    Спальни 3
    Смотреть
    Ипотека и
    рассрочка
    Модульный дом CUBA 70 (УН70)
    Стоимость от:
    4 740 450
    Проект от: 38 250
    Этажей 1
    Санузлы 1
    Спальни 3
    Смотреть
    Ипотека и
    рассрочка
    Е 137
    Стоимость от:
    8 833 220
    Проект от: 49 950
    Этажей 1
    Санузлы 2
    Спальни 3
    Смотреть
    Ипотека и
    рассрочка
    Жилой дом из кирпича
    Стоимость от:
    5 648 830
    Проект от: 40 050
    Этажей 1
    Санузлы 1
    Спальни 2
    Смотреть
    Ипотека и
    рассрочка
    Индивидуальный проект каркасного дома
    Стоимость от:
    6 410 470
    Проект от: 45 450
    Этажей 1
    Санузлы 1
    Спальни 3
    Смотреть

    Как узнать стоимость дома

    back
    Оставляете заявку
    Вы заполняете форму на сайте или звоните нам. Менеджер Лайвкрафт связывается с вами для уточнения деталей: тип дома, площадь, материалы, участок строительства.
    back
    Консультация и подбор решения
    Наш специалист помогает выбрать оптимальный тип дома и конструкцию с учётом бюджета, сроков и целей — будь то дом для постоянного проживания или дача.
    back
    Расчёт предварительной стоимости
    Инженер делает первичный расчёт стоимости строительства по вашим параметрам: фундамент, коробка, кровля, отделка. Вы получаете смету с разбивкой по этапам.
    back
    Корректировка и утверждение сметы
    При необходимости вносим изменения — например, замену материалов или сокращение этапов. После согласования формируется окончательная фиксированная смета.
    back
    Заключение договора и старт работ
    После утверждения сметы заключаем официальный договор с гарантией. Вы получаете прозрачный график и точную стоимость — без скрытых расходов.

    Заказать конусльтацию по:Загородный дом ВС-116

    Фото 1 Загородный дом ВС-116


      Наши
      контакты

      Дмитров
      Опорный проезд 28Б
      (индустриальный парк Ниагара)
      9:00 до 18:00

      Корзина