4.9
Рейтинг на основании 120 отзывов
Дмитров
Опорный проезд 28Б
(индустриальный парк Ниагара)
Бренд "Дмитров-Дело" c 2008 года на рынке строительства в Дмитрове
Звоните 9:00 до 18:00 8 (915) 055-33-61
Бренд "Дмитров-Дело" c 2008 года на рынке строительства в Дмитрове

Загородный дом ВС-120

Стоимость проекта от:
39 600 ₽
БЕСПЛАТНО! ПРИ ЗАКАЗЕ СТРОИТЕЛЬСТВА
Стоимость строительства от:
6 265 920 ₽
Артикул ART-20503
Дата 26.12.2025
Архитектурный стиль Классический
Количество надземных этажей 2
Круглогодичное проживание Да
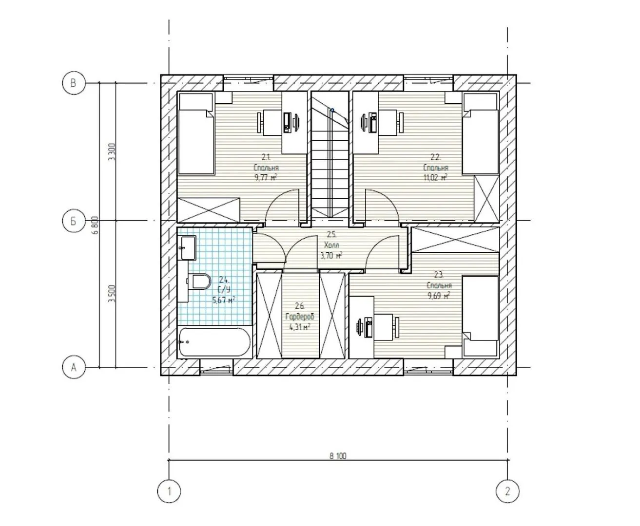
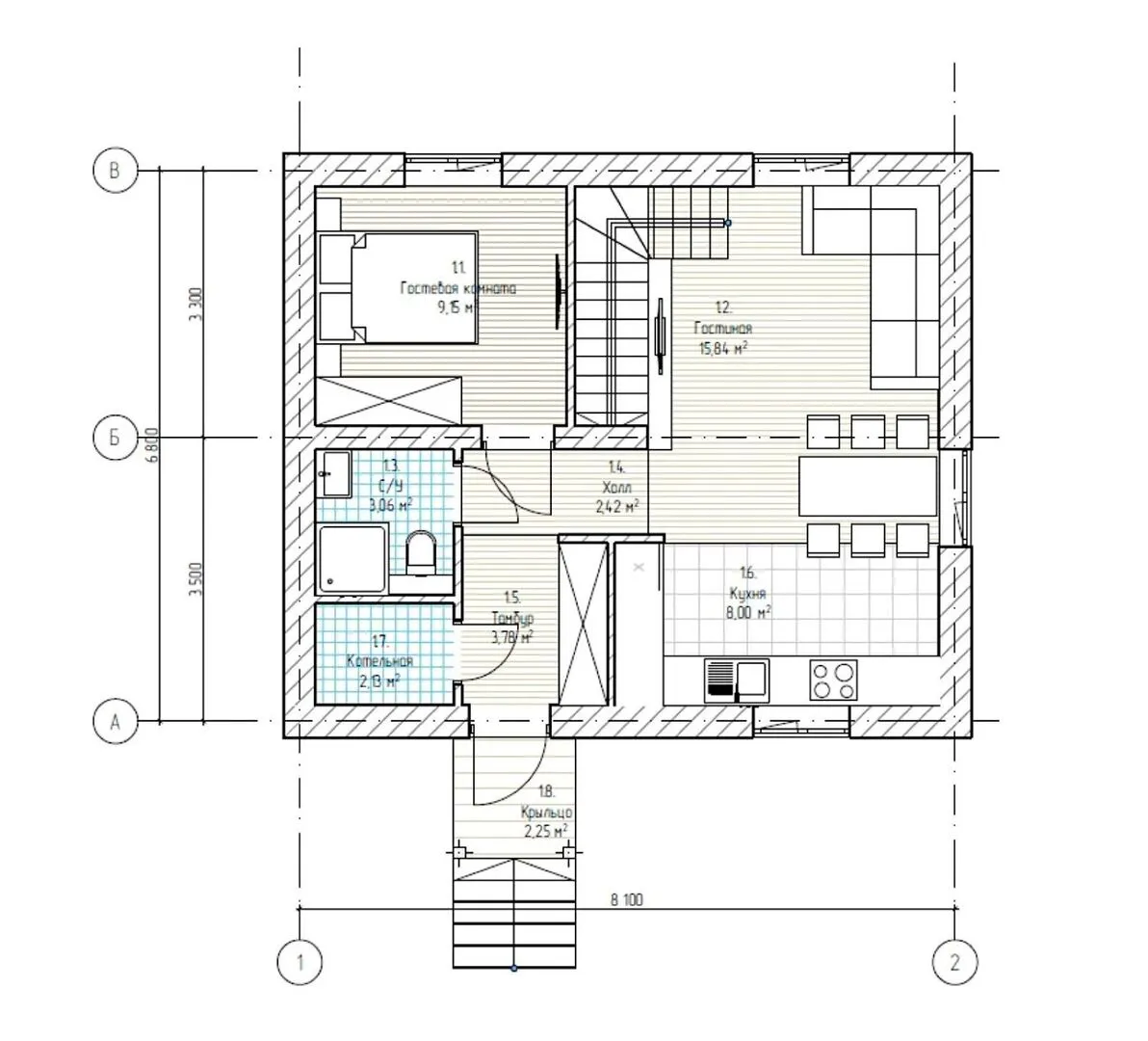
Площадь дома 88 м2
Санузлы 2
Спальни 4

Описание

Загородный дом ВС‑120 – это идеальное сочетание традиционного классического стиля и современных удобств, предлагающее пространство, где каждый может почувствовать себя дома круглый год. Двухэтажная конструкция с высокими потолками и двускатной крышей дарит ощущение простора и свободы, а использованные газобетонные блоки обеспечивают теплоизоляцию и акустическую изоляцию даже в самые холодные зимние дни. Внутри уютные комнаты, пропитанные светом, создают атмосферу уюта и безопасности, а наличие чердачного помещения открывает возможности для хранилищ, мастерских или дополнительной гостиной. Эта усадьба прекрасно вписывается в любой природный ландшафт. Несмотря на отсутствие балконов и веранд, здание гармонично сочетается с садами и огородами, предоставляя простор для семейных вылазок на свежем воздухе. Большое внимание уделено деталям, таким как высококачественные отделочные материалы и продуманный планировочный проект, которые делают каждый уголок дома комфортным и практичным. Если вы ищете место, где можно отдохнуть от городской суеты, наслаждаться спокойствием и уютом собственного уголка, Загородный дом ВС‑120 станет идеальным выбором. Позвоните нам сегодня, и мы предложим вам персональный просмотр, чтобы вы могли убедиться во всей его красоте и функциональности лично.

Характеристики дома

Архитектурный стиль
Автоматизированное регулирование параметров теплоносителя
Нет
Балконы/лоджии
Отсутствуют
Чердачное помещение
Да
Датчики протечки воды
Нет
Эксплуатируемая или зеленая кровля
Нет
Электроснабжение
Центральное
Газоснабжение
Индивидуальное
Изоляция воздушного шума
Нет
Камин
Нет
Класс энергоэффективности
-
Класс энергосбережения
-
Количество надземных этажей
2
Круглогодичное проживание
Да
Материал кровли
ЭПДМ мембраны
Материал перекрытий
Монолитные железобетонные
Материал внешних стен
Материал внутренних перегородок
Блочные
Модульное строительство с конструкциями заводского изготовления
Нет
Объем надземной части
503 м3
Основной материал фасадов
Штукатурка
Отопление
Индивидуальное
Площадь дома
88 м2
Площадь застройки
63 м2
Подвальное помещение
Нет
Показатель компактности здания
-
Приборы учета тепловой энергии
Нет
Пристроенный гараж/крытая автостоянка
Нет
Противопожарная система
Нет
Санузлы
2
Совмещенная кухня-гостиная
Да
Спальни
4
Терраса
Нет
Тип фундамента
Свайно-ростверковый
Тип кровли
Толщина внешних стен
400 мм
Толщина внутренних перегородок
100 мм
Улучшенные шумовые характеристики
Нет
Вентиляция
Естественная
Веранда
Нет
Водоотведение
Локальные очистные сооружения
Водоснабжение
Центральное
Высота дома
8.04 м
Высота потолков
2.7 м

Планировка

Фасад дома

Александр

Закажите выезд инженера

Александр

Выездной инженер
Закажите выезд инженера для точной диагностики и профессиональной консультации по инженерным системам. Специалист приедет в удобное время, проведёт осмотр, рассчитает стоимость работ и подберёт оптимальные решения для вашего дома.


    Похожие проекты

    Ипотека и
    рассрочка
    Терем ЛК-1 6х9м
    Стоимость от:
    4 978 320
    Проект от: 37 350
    Этажей 2
    Санузлы 1
    Спальни 4
    Смотреть
    Ипотека и
    рассрочка
    Прованс 5
    Стоимость от:
    7 462 080
    Проект от: 57 150
    Этажей 2
    Санузлы 2
    Спальни 4
    Смотреть
    Ипотека и
    рассрочка
    ВЕНТО-1
    Стоимость от:
    4 872 780
    Проект от: 31 050
    Этажей 1
    Санузлы 1
    Спальни 2
    Смотреть
    Ипотека и
    рассрочка
    Барн 166 от Строй и Живи
    Стоимость от:
    7 304 220
    Проект от: 56 700
    Этажей 1
    Санузлы 4
    Спальни 4
    Смотреть
    Ипотека и
    рассрочка
    П2
    Стоимость от:
    6 389 900
    Проект от: 38 250
    Этажей 1
    Санузлы 1
    Спальни 3
    Смотреть
    Ипотека и
    рассрочка
    Дом с плоской крышей «Ярославль»
    Стоимость от:
    8 173 935
    Проект от: 66 150
    Этажей 1
    Санузлы 2
    Спальни 3
    Смотреть

    Как узнать стоимость дома

    back
    Оставляете заявку
    Вы заполняете форму на сайте или звоните нам. Менеджер Лайвкрафт связывается с вами для уточнения деталей: тип дома, площадь, материалы, участок строительства.
    back
    Консультация и подбор решения
    Наш специалист помогает выбрать оптимальный тип дома и конструкцию с учётом бюджета, сроков и целей — будь то дом для постоянного проживания или дача.
    back
    Расчёт предварительной стоимости
    Инженер делает первичный расчёт стоимости строительства по вашим параметрам: фундамент, коробка, кровля, отделка. Вы получаете смету с разбивкой по этапам.
    back
    Корректировка и утверждение сметы
    При необходимости вносим изменения — например, замену материалов или сокращение этапов. После согласования формируется окончательная фиксированная смета.
    back
    Заключение договора и старт работ
    После утверждения сметы заключаем официальный договор с гарантией. Вы получаете прозрачный график и точную стоимость — без скрытых расходов.

    Заказать конусльтацию по:Загородный дом ВС-120

    Фото 1 Загородный дом ВС-120


      Наши
      контакты

      Дмитров
      Опорный проезд 28Б
      (индустриальный парк Ниагара)
      9:00 до 18:00

      Корзина