4.9
Рейтинг на основании 120 отзывов
Дмитров
Опорный проезд 28Б
(индустриальный парк Ниагара)
Бренд "Дмитров-Дело" c 2008 года на рынке строительства в Дмитрове
Звоните 9:00 до 18:00 8 (915) 055-33-61
Бренд "Дмитров-Дело" c 2008 года на рынке строительства в Дмитрове

Загородный двухэтажный дом с облицовочным кирпичом

Стоимость проекта от:
63 000 ₽
Стоимость строительства от:
10 128 000 ₽
Артикул ART-14576
Дата 25.12.2025
Архитектурный стиль Минимализм
Количество надземных этажей 2
Круглогодичное проживание Да
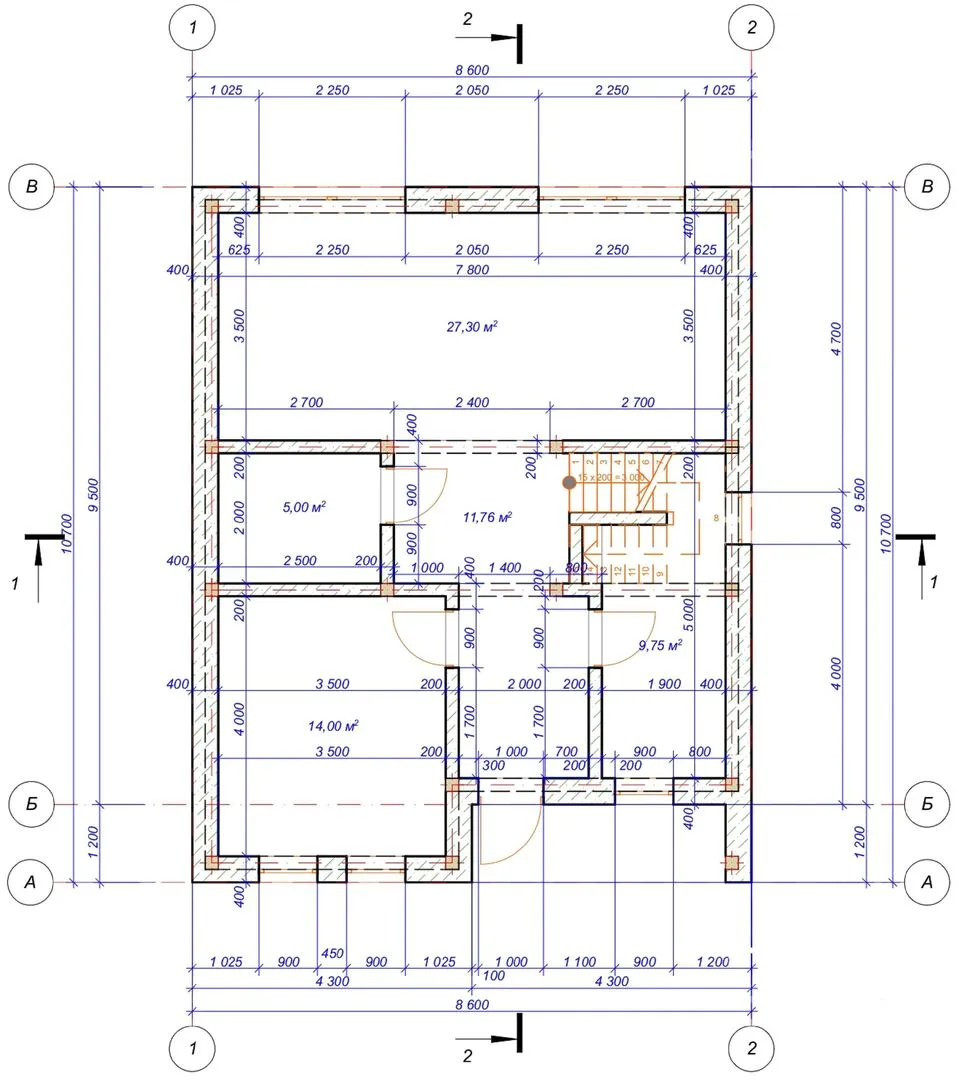
Площадь дома 140 м2
Санузлы 2
Спальни 3

Описание

Загородный двухэтажный дом, возведённый в простом и элегантном минималистском стиле, представляет собой идеальный уголок спокойствия и уюта. Его облицовочный кирпич придаёт фасаду теплоту и традиционность, а газобетонные блоки в стенах обеспечивают прочность и теплоизоляцию, создавая комфортную атмосферу в любой поре года. Окрестности изумительно гармонируют с природой: лёгкие шумы природы заменяют городской ритм, а просторные лужайки и живописные виды делают каждое утро особенным. Дом сочетает функциональность и изысканность: два надземных этажа позволяют удобно разместить всё необходимое, а единственный балкон/лоджия становится вашим личным пристанищем для отдыха с чашкой кофе или вечернего освещения. Пристроенный гараж обеспечивает надёжную укрывающую автопарковку, избавляя от лишних забот о погоде. Двускатная крыша не только визуально подчёркивает строгую простоту дома, но и эффективна в защите от осадков. Всё, что нужно для круглогодичного проживания, собрано в одном месте: уютные, светлые интерьеры, продуманная планировка помещений, и простота обслуживания без ущерба для комфорта. Если вы ищете гармонию между стилем, практичностью и природной красотой, то этот дом — ваш идеальный выбор. Впустите в свой дом тепло и простоту, и дайте ему стать вашим личным убежищем от суеты повседневной жизни.

Характеристики дома

Архитектурный стиль
Минимализм
Автоматизированное регулирование параметров теплоносителя
Нет
Балконы/лоджии
1
Чердачное помещение
Нет
Датчики протечки воды
Нет
Эксплуатируемая или зеленая кровля
Нет
Электроснабжение
Центральное
Газоснабжение
Не предусмотрено
Изоляция воздушного шума
Нет
Камин
Нет
Класс энергоэффективности
-
Класс энергосбережения
-
Количество надземных этажей
2
Круглогодичное проживание
Да
Материал кровли
Металлочерепица
Материал перекрытий
Деревянные по металлическим балкам
Материал внешних стен
Газобетонные блоки
Материал внутренних перегородок
Пенобетонные
Модульное строительство с конструкциями заводского изготовления
Нет
Объем надземной части
420 м3
Основной материал фасадов
Облицовочный кирпич
Отопление
Центральное
Площадь дома
140 м2
Площадь застройки
80 м2
Подвальное помещение
Нет
Показатель компактности здания
-
Приборы учета тепловой энергии
Нет
Пристроенный гараж/крытая автостоянка
Да
Противопожарная система
Нет
Санузлы
2
Совмещенная кухня-гостиная
Да
Спальни
3
Терраса
Нет
Тип фундамента
Свайно-ростверковый
Тип кровли
Двускатная
Толщина внешних стен
400 мм
Толщина внутренних перегородок
200 мм
Улучшенные шумовые характеристики
Нет
Вентиляция
Принудительная
Веранда
Нет
Водоотведение
Центральное
Водоснабжение
Центральное
Высота дома
7.78 м
Высота потолков
3 м

Планировка

Фасад дома

Александр

Закажите выезд инженера

Александр

Выездной инженер
Закажите выезд инженера для точной диагностики и профессиональной консультации по инженерным системам. Специалист приедет в удобное время, проведёт осмотр, рассчитает стоимость работ и подберёт оптимальные решения для вашего дома.


    Похожие проекты

    Ипотека и
    рассрочка
    Одноэтажный ИЖД 125
    Стоимость от:
    7 362 520
    Проект от: 52 200
    Этажей 1
    Санузлы 2
    Спальни 3
    Смотреть
    Ипотека и
    рассрочка
    Витекс 2200
    Стоимость от:
    15 305 400
    Проект от: 94 500
    Этажей 1
    Санузлы 2
    Спальни 3
    Смотреть
    Ипотека и
    рассрочка
    Дом из клееного бруса «ХВОЙНЫЙ»
    Стоимость от:
    8 387 500
    Проект от: 51 750
    Этажей 1
    Санузлы 2
    Спальни 3
    Смотреть
    Ипотека и
    рассрочка
    24ЯС08.01 RUF
    Стоимость от:
    2 168 595
    Проект от: 17 550
    Этажей 1
    Санузлы 1
    Спальни 1
    Смотреть
    Ипотека и
    рассрочка
    ФинДом 71
    Стоимость от:
    4 802 160
    Проект от: 30 600
    Этажей 1
    Санузлы 1
    Спальни 2
    Смотреть
    Ипотека и
    рассрочка
    Загородный дом МОНЕ 75
    Стоимость от:
    4 595 250
    Проект от: 33 750
    Этажей 1
    Санузлы 1
    Спальни 2
    Смотреть

    Как узнать стоимость дома

    back
    Оставляете заявку
    Вы заполняете форму на сайте или звоните нам. Менеджер Лайвкрафт связывается с вами для уточнения деталей: тип дома, площадь, материалы, участок строительства.
    back
    Консультация и подбор решения
    Наш специалист помогает выбрать оптимальный тип дома и конструкцию с учётом бюджета, сроков и целей — будь то дом для постоянного проживания или дача.
    back
    Расчёт предварительной стоимости
    Инженер делает первичный расчёт стоимости строительства по вашим параметрам: фундамент, коробка, кровля, отделка. Вы получаете смету с разбивкой по этапам.
    back
    Корректировка и утверждение сметы
    При необходимости вносим изменения — например, замену материалов или сокращение этапов. После согласования формируется окончательная фиксированная смета.
    back
    Заключение договора и старт работ
    После утверждения сметы заключаем официальный договор с гарантией. Вы получаете прозрачный график и точную стоимость — без скрытых расходов.

    Заказать конусльтацию по:Загородный двухэтажный дом с облицовочным кирпичом

    Фото 1 Загородный двухэтажный дом с облицовочным кирпичом


      Наши
      контакты

      Дмитров
      Опорный проезд 28Б
      (индустриальный парк Ниагара)
      9:00 до 18:00