4.9
Рейтинг на основании 120 отзывов
Дмитров
Опорный проезд 28Б
(индустриальный парк Ниагара)
Бренд "Дмитров-Дело" c 2008 года на рынке строительства в Дмитрове
Звоните 9:00 до 18:00 8 (915) 055-33-61
Бренд "Дмитров-Дело" c 2008 года на рынке строительства в Дмитрове

Загородный двухэтажный дом GSB-2F-161-Т33

Стоимость проекта от:
89 550 ₽
Стоимость строительства от:
13 665 360 ₽
Артикул ART-12485
Дата 25.12.2025
Архитектурный стиль Классический
Количество надземных этажей 2
Круглогодичное проживание Да
Площадь дома 199 м2
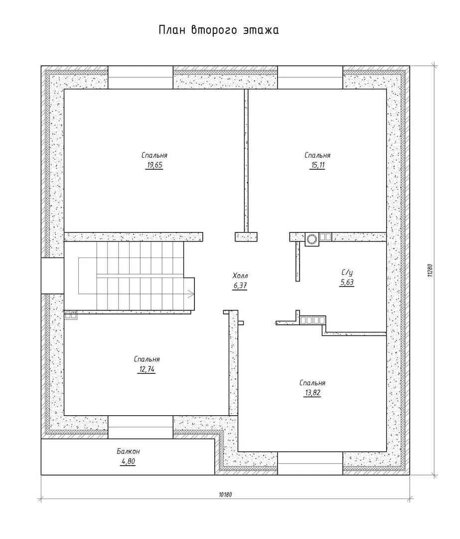
Санузлы 2
Спальни 4

Описание

Добро пожаловать в уютный загородный уголок, где слияние классической архитектуры и практичности создаёт идеальное пространство для жизни круглый год. Дом GSB‑2F‑161‑Т33 – это два надземных этажа, тщательно продуманных в стиле, напоминающем традиционные европейские усадьбы. Здесь каждая деталь говорит о комфорте: широкие окна впускают мягкий свет, а один просторный балкон/лоджия становится личным оазисом, где можно расслабиться и наслаждаться панорамой окрестностей. На первом этаже предусмотрены гостеприимные, светлые помещения, а во втором – уютные спальни, где каждый найдет тишину. Внешние стены, выстроенные из лёгкого газобетонного материала, обеспечивают тепло и шумоизоляцию, а двускатная кровля добавляет не только визуальной легкости, но и практической надежности. Дополнительный простор даёт терраса, где можно устроить барбекю, встретиться с друзьями под открытым небом и почувствовать связь с природой. Этот дом – идеальное сочетание классической эстетики, современного комфорта и функциональности. Он отлично подходит для семей, ценящих тихую атмосферу и частную жизнь, а также для тех, кто ищет второе убежище от городской суеты. Вдохновитесь возможностью отдохнуть в собственном уголке природы, где каждый день начинается с прекрасных видов и завершается уютом домашнего очага.

Характеристики дома

Архитектурный стиль
Классический
Автоматизированное регулирование параметров теплоносителя
Нет
Балконы/лоджии
1
Чердачное помещение
Нет
Датчики протечки воды
Нет
Эксплуатируемая или зеленая кровля
Нет
Электроснабжение
Центральное
Газоснабжение
Центральное
Изоляция воздушного шума
Нет
Камин
Нет
Класс энергоэффективности
-
Класс энергосбережения
-
Количество надземных этажей
2
Круглогодичное проживание
Да
Материал кровли
Битумная черепица
Материал перекрытий
Монолитные железобетонные
Материал внешних стен
Газобетонные блоки
Материал внутренних перегородок
Пенобетонные
Модульное строительство с конструкциями заводского изготовления
Нет
Объем надземной части
691 м3
Основной материал фасадов
Облицовочный кирпич
Отопление
Индивидуальное
Площадь дома
199 м2
Площадь застройки
115 м2
Подвальное помещение
Нет
Показатель компактности здания
-
Приборы учета тепловой энергии
Нет
Пристроенный гараж/крытая автостоянка
Нет
Противопожарная система
Нет
Санузлы
2
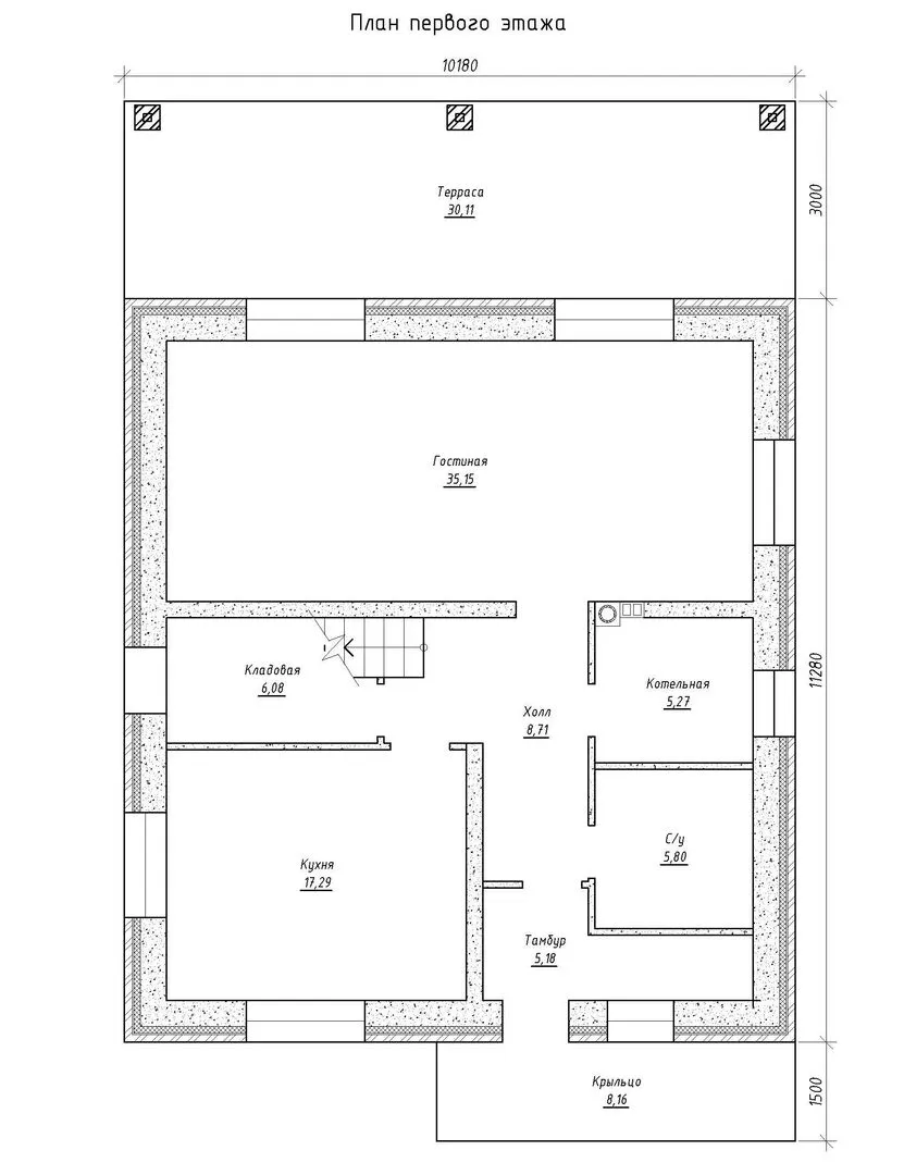
Совмещенная кухня-гостиная
Да
Спальни
4
Терраса
Да
Тип фундамента
Плитный
Тип кровли
Двускатная
Толщина внешних стен
400 мм
Толщина внутренних перегородок
150 мм
Улучшенные шумовые характеристики
Нет
Вентиляция
Естественная
Веранда
Нет
Водоотведение
Центральное
Водоснабжение
Центральное
Высота дома
6 м
Высота потолков
3 м

Планировка

Фасад дома

Александр

Закажите выезд инженера

Александр

Выездной инженер
Закажите выезд инженера для точной диагностики и профессиональной консультации по инженерным системам. Специалист приедет в удобное время, проведёт осмотр, рассчитает стоимость работ и подберёт оптимальные решения для вашего дома.


    Похожие проекты

    Ипотека и
    рассрочка
    Загородный дом 2
    Стоимость от:
    10 767 360
    Проект от: 64 800
    Этажей 2
    Санузлы 2
    Спальни 3
    Смотреть
    Ипотека и
    рассрочка
    Одноэтажный дом РП-140
    Стоимость от:
    8 057 830
    Проект от: 62 550
    Этажей 1
    Санузлы 2
    Спальни 4
    Смотреть
    Ипотека и
    рассрочка
    Коттедж PG-4 «Alfa»
    Стоимость от:
    7 389 360
    Проект от: 48 600
    Этажей 1
    Санузлы 2
    Спальни 3
    Смотреть
    Ипотека и
    рассрочка
    Загородный дом Эльбрус
    Стоимость от:
    13 828 320
    Проект от: 89 100
    Этажей 2
    Санузлы 3
    Спальни 4
    Смотреть
    Ипотека и
    рассрочка
    Одноэтажный жилой дом Афина 125 кв.м.
    Стоимость от:
    9 390 700
    Проект от: 56 250
    Этажей 1
    Санузлы 2
    Спальни 3
    Смотреть
    Ипотека и
    рассрочка
    Одноэтажный дом Е-33
    Стоимость от:
    6 028 880
    Проект от: 46 800
    Этажей 1
    Санузлы 1
    Спальни 3
    Смотреть

    Как узнать стоимость дома

    back
    Оставляете заявку
    Вы заполняете форму на сайте или звоните нам. Менеджер Лайвкрафт связывается с вами для уточнения деталей: тип дома, площадь, материалы, участок строительства.
    back
    Консультация и подбор решения
    Наш специалист помогает выбрать оптимальный тип дома и конструкцию с учётом бюджета, сроков и целей — будь то дом для постоянного проживания или дача.
    back
    Расчёт предварительной стоимости
    Инженер делает первичный расчёт стоимости строительства по вашим параметрам: фундамент, коробка, кровля, отделка. Вы получаете смету с разбивкой по этапам.
    back
    Корректировка и утверждение сметы
    При необходимости вносим изменения — например, замену материалов или сокращение этапов. После согласования формируется окончательная фиксированная смета.
    back
    Заключение договора и старт работ
    После утверждения сметы заключаем официальный договор с гарантией. Вы получаете прозрачный график и точную стоимость — без скрытых расходов.

    Заказать конусльтацию по:Загородный двухэтажный дом GSB-2F-161-Т33

    Фото 1 Загородный двухэтажный дом GSB-2F-161-Т33


      Наши
      контакты

      Дмитров
      Опорный проезд 28Б
      (индустриальный парк Ниагара)
      9:00 до 18:00