4.9
Рейтинг на основании 120 отзывов
Дмитров
Опорный проезд 28Б
(индустриальный парк Ниагара)
Бренд "Дмитров-Дело" c 2008 года на рынке строительства в Дмитрове
Звоните 9:00 до 18:00 8 (915) 055-33-61
Бренд "Дмитров-Дело" c 2008 года на рынке строительства в Дмитрове

Загородный каркасный дом для большой семьи 8,4х8,9 — 126 м²

Стоимость проекта от:
56 700 ₽
БЕСПЛАТНО! ПРИ ЗАКАЗЕ СТРОИТЕЛЬСТВА
Стоимость строительства от:
7 552 440 ₽
Артикул ART-10817
Дата 25.12.2025
Архитектурный стиль Классический
Количество надземных этажей 2
Круглогодичное проживание Да
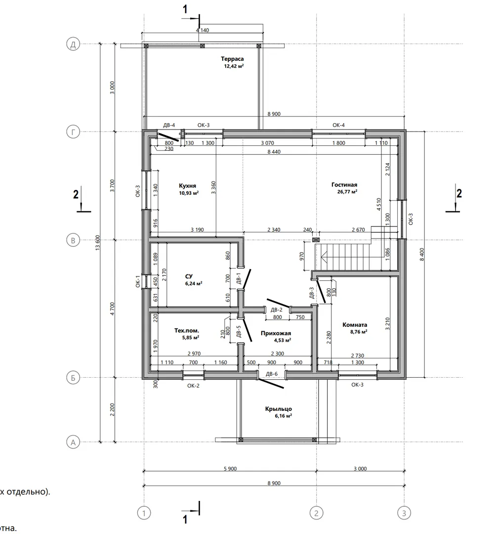
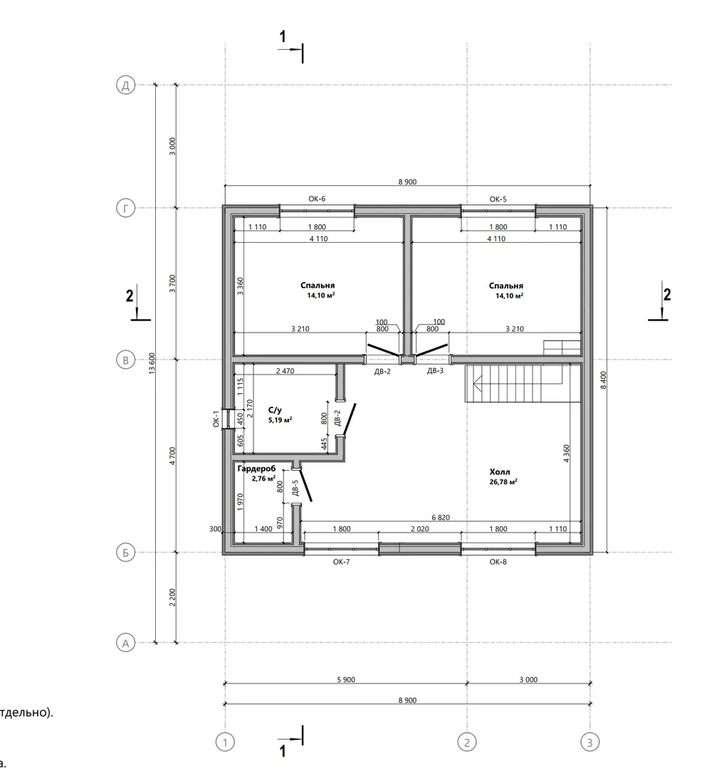
Площадь дома 126 м2
Санузлы 2
Спальни 3

Описание

Изысканный загородный каркасный дом, созданный для того, чтобы объединить комфорт семьи и простоту быта на природе. Просторная планировка 126 м² распределена по уютным двум этажам, а классический архитектурный стиль – отсылка к традициям, придающей дому душевность и теплоту. Деревянные каркасные стены и двускатная крыша создают ощущение гармонии с окружающим лесом и придают структуре элегантность и прочность. Первые впечатления от дома – открытая гостиная с большим окном, через которое льётся естественный свет и открывает вид на живописный ландшафт. На втором этаже размещены спальни, где каждый может найти своё тихое уголок; просторные шкафы и качественная отделка делают комнату уютной. Вместе с этим дом предоставляет много места для хранения и практичных решений, которые легко вписать в семейный быт. Ничто не делает ощущение дома более комфортным, как широкая терраса у входа: весенние балконы для отдыха, вечера в окружении зелёных насаждений, а также возможность устроить пикник с близкими. В доме нет лишних элементов, как пристроенные гаражи или веранда, но это добавляет ему аутентичность и ощущение простоты. Дом готов к круглогодичному проживанию, предлагая уют и безопасность даже в суровых климатических условиях. Выбирая эту площадь, вы получаете не просто жильё, а пространство, где каждый день заполнят тепло, улыбки и безмятежные вечера.

Характеристики дома

Архитектурный стиль
Автоматизированное регулирование параметров теплоносителя
Нет
Балконы/лоджии
Отсутствуют
Чердачное помещение
Нет
Датчики протечки воды
Нет
Эксплуатируемая или зеленая кровля
Нет
Электроснабжение
Не предусмотрено
Газоснабжение
Не предусмотрено
Изоляция воздушного шума
Нет
Камин
Нет
Класс энергоэффективности
-
Класс энергосбережения
-
Количество надземных этажей
2
Круглогодичное проживание
Да
Материал кровли
Металлочерепица
Материал перекрытий
Деревянные
Материал внешних стен
Материал внутренних перегородок
Деревянные
Модульное строительство с конструкциями заводского изготовления
Нет
Объем надземной части
680 м3
Основной материал фасадов
Дерево
Отопление
Не предусмотрено
Площадь дома
126 м2
Площадь застройки
82 м2
Подвальное помещение
Нет
Показатель компактности здания
-
Приборы учета тепловой энергии
Нет
Пристроенный гараж/крытая автостоянка
Нет
Противопожарная система
Нет
Санузлы
2
Совмещенная кухня-гостиная
Да
Спальни
3
Терраса
Да
Тип фундамента
Свайный
Тип кровли
Толщина внешних стен
200 мм
Толщина внутренних перегородок
100 мм
Улучшенные шумовые характеристики
Нет
Вентиляция
Естественная
Веранда
Нет
Водоотведение
Не предусмотрено
Водоснабжение
Не предусмотрено
Высота дома
8.2 м
Высота потолков
2.7 м

Планировка

Фасад дома

Александр

Закажите выезд инженера

Александр

Выездной инженер
Закажите выезд инженера для точной диагностики и профессиональной консультации по инженерным системам. Специалист приедет в удобное время, проведёт осмотр, рассчитает стоимость работ и подберёт оптимальные решения для вашего дома.


    Похожие проекты

    Ипотека и
    рассрочка
    Дом из профилированного бруса «Одноэтажное шале ПБ-113»
    Стоимость от:
    7 153 465
    Проект от: 50 850
    Этажей 1
    Санузлы 1
    Спальни 2
    Смотреть
    Ипотека и
    рассрочка
    Своим Строим 002
    Стоимость от:
    10 863 380
    Проект от: 67 050
    Этажей 1
    Санузлы 2
    Спальни 3
    Смотреть
    Ипотека и
    рассрочка
    Жилой дом DC-103
    Стоимость от:
    7 641 920
    Проект от: 43 200
    Этажей 1
    Санузлы 2
    Спальни 3
    Смотреть
    Ипотека и
    рассрочка
    Brick 109/2
    Стоимость от:
    8 190 380
    Проект от: 49 050
    Этажей 1
    Санузлы 2
    Спальни 3
    Смотреть
    Ипотека и
    рассрочка
    Таврия
    Стоимость от:
    17 141 520
    Проект от: 104 850
    Этажей 2
    Санузлы 2
    Спальни 3
    Смотреть
    Ипотека и
    рассрочка
    ONE_120
    Стоимость от:
    10 741 060
    Проект от: 64 350
    Этажей 1
    Санузлы 2
    Спальни 3
    Смотреть

    Как узнать стоимость дома

    back
    Оставляете заявку
    Вы заполняете форму на сайте или звоните нам. Менеджер Лайвкрафт связывается с вами для уточнения деталей: тип дома, площадь, материалы, участок строительства.
    back
    Консультация и подбор решения
    Наш специалист помогает выбрать оптимальный тип дома и конструкцию с учётом бюджета, сроков и целей — будь то дом для постоянного проживания или дача.
    back
    Расчёт предварительной стоимости
    Инженер делает первичный расчёт стоимости строительства по вашим параметрам: фундамент, коробка, кровля, отделка. Вы получаете смету с разбивкой по этапам.
    back
    Корректировка и утверждение сметы
    При необходимости вносим изменения — например, замену материалов или сокращение этапов. После согласования формируется окончательная фиксированная смета.
    back
    Заключение договора и старт работ
    После утверждения сметы заключаем официальный договор с гарантией. Вы получаете прозрачный график и точную стоимость — без скрытых расходов.

    Заказать конусльтацию по:Загородный каркасный дом для большой семьи 8,4х8,9 — 126 м²

    Фото 1 Загородный каркасный дом для большой семьи 8,4х8,9 — 126 м²


      Наши
      контакты

      Дмитров
      Опорный проезд 28Б
      (индустриальный парк Ниагара)
      9:00 до 18:00

      Корзина