4.9
Рейтинг на основании 120 отзывов
Дмитров
Опорный проезд 28Б
(индустриальный парк Ниагара)
Бренд "Дмитров-Дело" c 2008 года на рынке строительства в Дмитрове
Звоните 9:00 до 18:00 8 (915) 055-33-61
Бренд "Дмитров-Дело" c 2008 года на рынке строительства в Дмитрове

ЗАЛЬЦБУРГ-198

Стоимость проекта от:
93 150 ₽
БЕСПЛАТНО! ПРИ ЗАКАЗЕ СТРОИТЕЛЬСТВА
Стоимость строительства от:
14 977 680 ₽
Артикул ART-4126
Дата 26.12.2025
Архитектурный стиль Европейский
Количество надземных этажей 2
Круглогодичное проживание Да
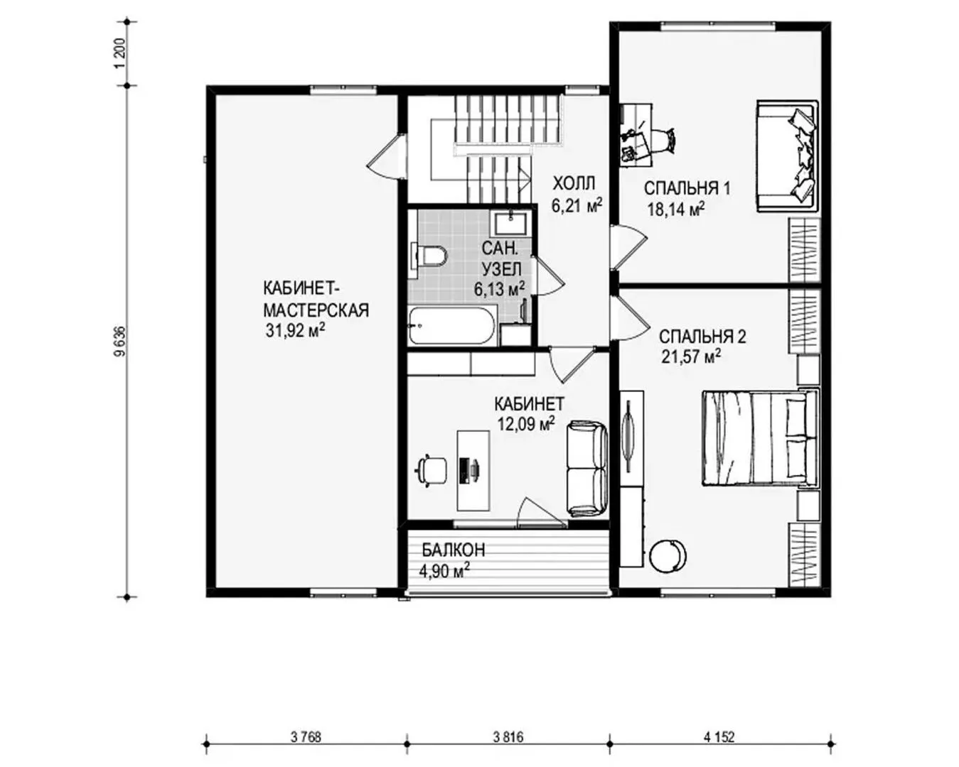
Площадь дома 207 м2
Санузлы 2
Спальни 2

Описание

ЗАЛЬЦБУРГ‑198 – это воплощение европейской элегантности, сочетающее в себе практичность и изысканность. Двухэтажная конструкция создаёт просторные, светлые комнаты, где каждый член семьи найдёт своё уютное уголок. Благодаря современной каркасно‑панельной технологии внешних стен, дом сохраняет тепло в холодные зимы и прохладу в жаркое лето, предлагая комфортное круглогодичное проживание. Шаг за порог — и вы ощущаете дух европейской архитектуры: строгие линии, изящные изогнутые крыши, которые придают дому неповторимый характер. В доме предусмотрен единственный балкон, где можно насладиться чашечкой кофе под открытым небом, одновременно с видом на ухоженный двор. Пристроенный гараж и крытая автостоянка обеспечивают удобство и защиту вашего автомобиля от непогоды. Тихий, спокойный внутренний двор и современный дизайн интерьера делают ЗАЛЬЦБУРГ‑198 идеальным выбором для тех, кто ценит уют, функциональность и стиль. Добро пожаловать домой, где каждая деталь продумана, а атмосфера заставит вас почувствовать себя по‑меру, как на европейской балаклаве.

Характеристики дома

Архитектурный стиль
Автоматизированное регулирование параметров теплоносителя
Нет
Балконы/лоджии
1
Чердачное помещение
Нет
Датчики протечки воды
Нет
Эксплуатируемая или зеленая кровля
Да
Электроснабжение
Центральное
Газоснабжение
Не предусмотрено
Изоляция воздушного шума
Нет
Камин
Нет
Класс энергоэффективности
-
Класс энергосбережения
-
Количество надземных этажей
2
Круглогодичное проживание
Да
Материал кровли
Металлочерепица
Материал перекрытий
Деревянные
Материал внешних стен
Материал внутренних перегородок
Цементно-стружечная плита
Модульное строительство с конструкциями заводского изготовления
Нет
Объем надземной части
684 м3
Основной материал фасадов
Штукатурка
Отопление
Индивидуальное
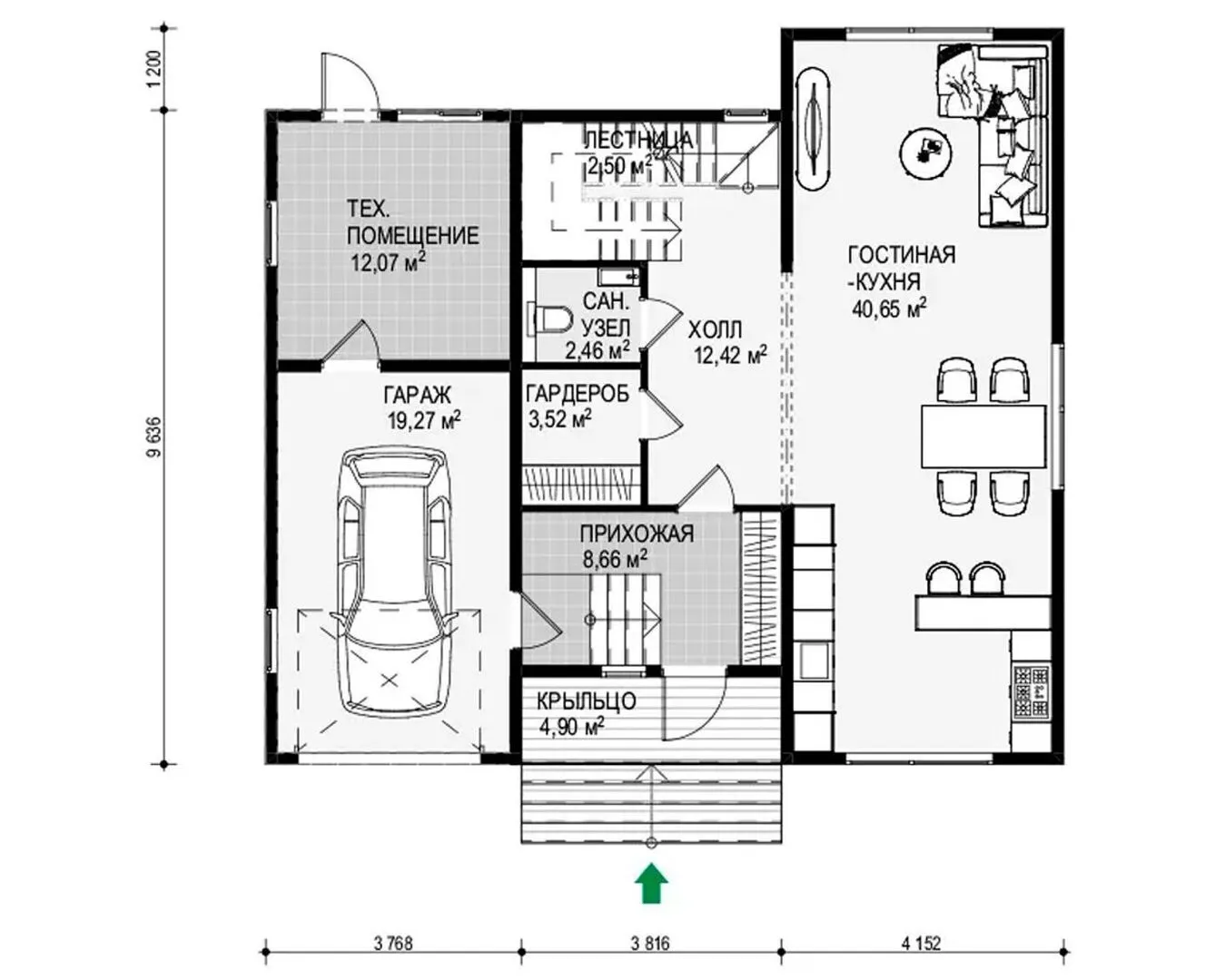
Площадь дома
207 м2
Площадь застройки
117 м2
Подвальное помещение
Нет
Показатель компактности здания
-
Приборы учета тепловой энергии
Нет
Пристроенный гараж/крытая автостоянка
Да
Противопожарная система
Нет
Санузлы
2
Совмещенная кухня-гостиная
Да
Спальни
2
Терраса
Нет
Тип фундамента
Свайно-ростверковый
Тип кровли
Толщина внешних стен
168 мм
Толщина внутренних перегородок
100 мм
Улучшенные шумовые характеристики
Нет
Вентиляция
Естественная
Веранда
Нет
Водоотведение
Локальные очистные сооружения
Водоснабжение
Индивидуальное
Высота дома
7.3 м
Высота потолков
2.6 м

Планировка

Фасад дома

Александр

Закажите выезд инженера

Александр

Выездной инженер
Закажите выезд инженера для точной диагностики и профессиональной консультации по инженерным системам. Специалист приедет в удобное время, проведёт осмотр, рассчитает стоимость работ и подберёт оптимальные решения для вашего дома.


    Похожие проекты

    Ипотека и
    рассрочка
    Одноэтажный каркасный дом «Белла-Вита»
    Стоимость от:
    5 029 035
    Проект от: 39 150
    Этажей 1
    Санузлы 1
    Спальни 2
    Смотреть
    Ипотека и
    рассрочка
    Одноэтажный дом по проекту № 14
    Стоимость от:
    3 355 165
    Проект от: 23 850
    Этажей 1
    Санузлы 1
    Спальни 3
    Смотреть
    Ипотека и
    рассрочка
    Статус 8х8,5 Ария
    Стоимость от:
    6 583 500
    Проект от: 49 500
    Этажей 2
    Санузлы 2
    Спальни 4
    Смотреть
    Ипотека и
    рассрочка
    Печорин
    Стоимость от:
    12 377 040
    Проект от: 76 950
    Этажей 2
    Санузлы 3
    Спальни 4
    Смотреть
    Ипотека и
    рассрочка
    Barn1-90
    Стоимость от:
    4 461 600
    Проект от: 36 000
    Этажей 1
    Санузлы 1
    Спальни 2
    Смотреть
    Ипотека и
    рассрочка
    24ПФ06.00 Дом от Строй и Живи
    Стоимость от:
    6 782 490
    Проект от: 52 650
    Этажей 1
    Санузлы 2
    Спальни 3
    Смотреть

    Как узнать стоимость дома

    back
    Оставляете заявку
    Вы заполняете форму на сайте или звоните нам. Менеджер Лайвкрафт связывается с вами для уточнения деталей: тип дома, площадь, материалы, участок строительства.
    back
    Консультация и подбор решения
    Наш специалист помогает выбрать оптимальный тип дома и конструкцию с учётом бюджета, сроков и целей — будь то дом для постоянного проживания или дача.
    back
    Расчёт предварительной стоимости
    Инженер делает первичный расчёт стоимости строительства по вашим параметрам: фундамент, коробка, кровля, отделка. Вы получаете смету с разбивкой по этапам.
    back
    Корректировка и утверждение сметы
    При необходимости вносим изменения — например, замену материалов или сокращение этапов. После согласования формируется окончательная фиксированная смета.
    back
    Заключение договора и старт работ
    После утверждения сметы заключаем официальный договор с гарантией. Вы получаете прозрачный график и точную стоимость — без скрытых расходов.

    Заказать конусльтацию по:ЗАЛЬЦБУРГ-198

    Фото 1 ЗАЛЬЦБУРГ-198


      Наши
      контакты

      Дмитров
      Опорный проезд 28Б
      (индустриальный парк Ниагара)
      9:00 до 18:00

      Корзина