4.9
Рейтинг на основании 120 отзывов
Дмитров
Опорный проезд 28Б
(индустриальный парк Ниагара)
Бренд "Дмитров-Дело" c 2008 года на рынке строительства в Дмитрове
Звоните 9:00 до 18:00 8 (915) 055-33-61
Бренд "Дмитров-Дело" c 2008 года на рынке строительства в Дмитрове

Жилой дом № 15

Стоимость проекта от:
47 250 ₽
БЕСПЛАТНО! ПРИ ЗАКАЗЕ СТРОИТЕЛЬСТВА
Стоимость строительства от:
7 890 300 ₽
Артикул ART-15877
Дата 25.12.2025
Архитектурный стиль Классический
Количество надземных этажей 1
Круглогодичное проживание Да
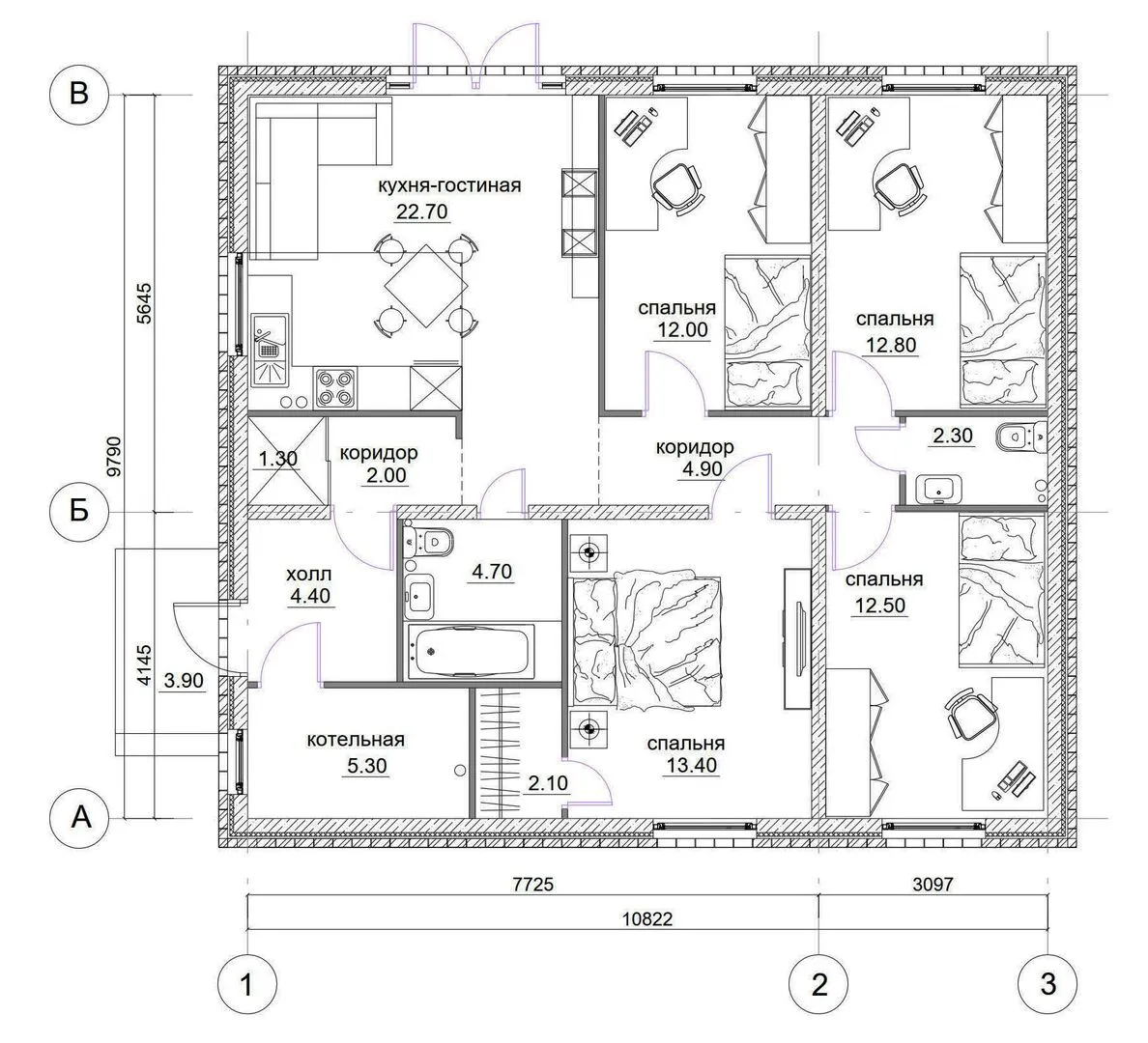
Площадь дома 105 м2
Санузлы 2
Спальни 4

Описание

Величественный классический дом № 15 приглашает Вас почувствовать домашний уют, обретенный не только в современном комфорте, но и в вечном стиле. Один надземный уровень, гармонично изогнутый четырехскатной вальмовой крышей, создаёт ощущение объёма и надёжности. Бетонные керамзитобетонные блоки, надёжно защищающие от холода и шума, придают фасаду спокойную, но непоколебимую элегантность. Круглогодичное проживание здесь — это не просто слово, а реальность: утеплённые стены, правильная вентиляция и надёжный водоотвод гарантируют комфорт в любой погоде. Дом открывает свой внутренний мир мягкими, светлыми интерьерами, где каждый уголок пронизан духом покоя и уюта. Здесь вы легко сможете погрузиться в атмосферу спокойствия, устраивая семейные вечера, приятные встречи друзей и творческие моменты, не задумываясь о лишних усложнениях наружных конструкций. Если Вы мечтаете о стабильности, благородной эстетике и уюте, который остаётся с вами весь год, наш «Жилой дом № 15» станет именно тем местом, где каждый день будет наполнен гармонией и ощущением домашнего тепла. Приходите, откройте свой новый дом, где традиции встречаются с современными удобствами, и почувствуйте, что теперь для вас открылось новое счастливое завтра.

Характеристики дома

Архитектурный стиль
Автоматизированное регулирование параметров теплоносителя
Нет
Балконы/лоджии
Отсутствуют
Чердачное помещение
Нет
Датчики протечки воды
Нет
Эксплуатируемая или зеленая кровля
Нет
Электроснабжение
Центральное
Газоснабжение
Не предусмотрено
Изоляция воздушного шума
Нет
Камин
Нет
Класс энергоэффективности
-
Класс энергосбережения
-
Количество надземных этажей
1
Круглогодичное проживание
Да
Материал кровли
Металлочерепица
Материал перекрытий
Деревянные
Материал внешних стен
Материал внутренних перегородок
Блочные
Модульное строительство с конструкциями заводского изготовления
Нет
Объем надземной части
603 м3
Основной материал фасадов
Облицовочный кирпич
Отопление
Индивидуальное
Площадь дома
105 м2
Площадь застройки
120 м2
Подвальное помещение
Нет
Показатель компактности здания
-
Приборы учета тепловой энергии
Нет
Пристроенный гараж/крытая автостоянка
Нет
Противопожарная система
Нет
Санузлы
2
Совмещенная кухня-гостиная
Да
Спальни
4
Терраса
Нет
Тип фундамента
Свайно-ростверковый
Толщина внешних стен
500 мм
Толщина внутренних перегородок
100 мм
Улучшенные шумовые характеристики
Нет
Вентиляция
Естественная
Веранда
Нет
Водоотведение
Локальные очистные сооружения
Водоснабжение
Индивидуальное
Высота дома
5 м
Высота потолков
2.8 м

Планировка

Фасад дома

Александр

Закажите выезд инженера

Александр

Выездной инженер
Закажите выезд инженера для точной диагностики и профессиональной консультации по инженерным системам. Специалист приедет в удобное время, проведёт осмотр, рассчитает стоимость работ и подберёт оптимальные решения для вашего дома.


    Похожие проекты

    Ипотека и
    рассрочка
    Одноэтажный дом с террасой, 3 спальнями и отделкой штукатуркой
    Стоимость от:
    7 890 300
    Проект от: 47 250
    Этажей 1
    Санузлы 2
    Спальни 3
    Смотреть
    Ипотека и
    рассрочка
    Дом White Box из газобетона G-BOX 88
    Стоимость от:
    6 735 740
    Проект от: 39 150
    Этажей 1
    Санузлы 1
    Спальни 4
    Смотреть
    Ипотека и
    рассрочка
    Загородный дом АС-278
    Стоимость от:
    23 673 320
    Проект от: 155 700
    Этажей 1
    Санузлы 4
    Спальни 7
    Смотреть
    Ипотека и
    рассрочка
    Динская 167
    Стоимость от:
    12 088 080
    Проект от: 75 150
    Этажей 2
    Санузлы 2
    Спальни 3
    Смотреть
    Ипотека и
    рассрочка
    Кирпичный дом 70 м²
    Стоимость от:
    4 731 540
    Проект от: 30 150
    Этажей 1
    Санузлы 2
    Спальни 2
    Смотреть
    Ипотека и
    рассрочка
    Одноэтажный дом Смарт 6
    Стоимость от:
    4 964 960
    Проект от: 30 600
    Этажей 1
    Санузлы 1
    Спальни 2
    Смотреть

    Как узнать стоимость дома

    back
    Оставляете заявку
    Вы заполняете форму на сайте или звоните нам. Менеджер Лайвкрафт связывается с вами для уточнения деталей: тип дома, площадь, материалы, участок строительства.
    back
    Консультация и подбор решения
    Наш специалист помогает выбрать оптимальный тип дома и конструкцию с учётом бюджета, сроков и целей — будь то дом для постоянного проживания или дача.
    back
    Расчёт предварительной стоимости
    Инженер делает первичный расчёт стоимости строительства по вашим параметрам: фундамент, коробка, кровля, отделка. Вы получаете смету с разбивкой по этапам.
    back
    Корректировка и утверждение сметы
    При необходимости вносим изменения — например, замену материалов или сокращение этапов. После согласования формируется окончательная фиксированная смета.
    back
    Заключение договора и старт работ
    После утверждения сметы заключаем официальный договор с гарантией. Вы получаете прозрачный график и точную стоимость — без скрытых расходов.

    Заказать конусльтацию по:Жилой дом № 15

    Фото 1 Жилой дом № 15


      Наши
      контакты

      Дмитров
      Опорный проезд 28Б
      (индустриальный парк Ниагара)
      9:00 до 18:00

      Корзина