4.9
Рейтинг на основании 120 отзывов
Дмитров
Опорный проезд 28Б
(индустриальный парк Ниагара)
Бренд "Дмитров-Дело" c 2008 года на рынке строительства в Дмитрове
Звоните 9:00 до 18:00 8 (915) 055-33-61
Бренд "Дмитров-Дело" c 2008 года на рынке строительства в Дмитрове

Жилой дом 9,3/10,4

Стоимость проекта от:
41 850 ₽
БЕСПЛАТНО! ПРИ ЗАКАЗЕ СТРОИТЕЛЬСТВА
Стоимость строительства от:
5 391 210 ₽
Артикул ART-19326
Дата 26.12.2025
Архитектурный стиль Классический
Количество надземных этажей 1
Круглогодичное проживание Да
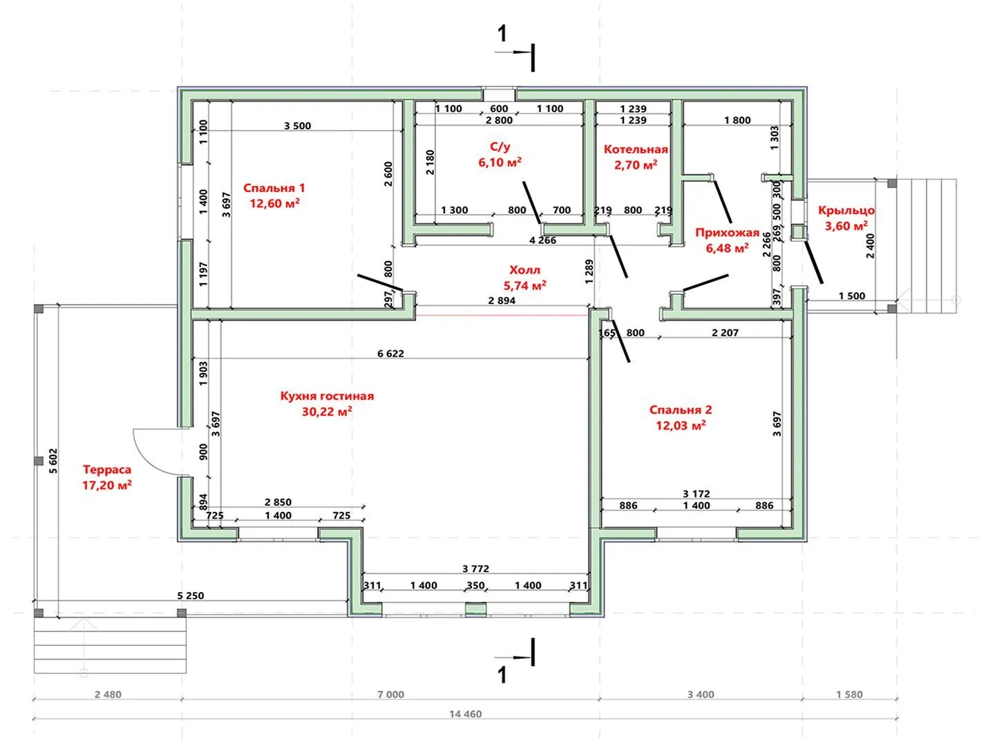
Площадь дома 93 м2
Санузлы 1
Спальни 2

Описание

Неподвижное уединение в сердце города: это ваш будущий дом, который сочетает в себе простоту и очарование классической архитектуры. Уникальный одноэтажный дизайн, выполненный в традиционном стиле, приглашает к жизни в гармонии с природой, создавая ощущение уюта и тепла от самого основания к крышам. С площадью приблизительно 10 квадратных метров в длину и 9,3 метра в ширину, такой дом легко впишется в любой двор, не отвлекаясь от важного – уютного интерьера, где каждый элемент продуман до мелочей. Крыша с двускатным профилем, покрытая качественной кровельной мембраной, дарит ощущение защищенности и защищенности от непогоды. Внешние стены – это сочетание природного дерева и современного каркасного решения, которое сохраняет тепло в зимнее время и прохладу в летние дни. Без лишнего шума от прицепленных гаражных помещений, вы можете наслаждаться полным комфортом, при этом сохраняя свободу и возможность использовать пространство для сада или сада. Насладитесь свободой открытой террасы, созданной для бесконечных летних вечеров и романтических ужинов на свежем воздухе. Пространство для отдыха не требует посещения балконов или веранд, а благодаря классическому стилю и качественным материалам ваш дом станет идеальным убежищем для всей семьи, в котором каждый уголок наполнен теплом и стилем. Это не просто жильё – это ваш личный уголок, где традиции встречаются с современностью, создавая уютный и привлекательный дом для настоящего и будущего.

Характеристики дома

Архитектурный стиль
Автоматизированное регулирование параметров теплоносителя
Да
Балконы/лоджии
Отсутствуют
Чердачное помещение
Нет
Датчики протечки воды
Нет
Эксплуатируемая или зеленая кровля
Нет
Электроснабжение
Центральное
Газоснабжение
Не предусмотрено
Изоляция воздушного шума
Нет
Камин
Нет
Класс энергоэффективности
-
Класс энергосбережения
-
Количество надземных этажей
1
Круглогодичное проживание
Да
Материал кровли
Металлочерепица
Материал перекрытий
Деревянные
Материал внешних стен
Материал внутренних перегородок
Деревянные
Модульное строительство с конструкциями заводского изготовления
Нет
Объем надземной части
459 м3
Основной материал фасадов
Дерево
Отопление
Индивидуальное
Площадь дома
93 м2
Площадь застройки
96 м2
Подвальное помещение
Нет
Показатель компактности здания
-
Приборы учета тепловой энергии
Да
Пристроенный гараж/крытая автостоянка
Нет
Противопожарная система
Нет
Санузлы
1
Совмещенная кухня-гостиная
Да
Спальни
2
Терраса
Да
Тип фундамента
Свайный
Тип кровли
Толщина внешних стен
350 мм
Толщина внутренних перегородок
210 мм
Улучшенные шумовые характеристики
Нет
Вентиляция
Естественная
Веранда
Нет
Водоотведение
Локальные очистные сооружения
Водоснабжение
Индивидуальное
Высота дома
4.75 м
Высота потолков
2.7 м

Планировка

Фасад дома

Александр

Закажите выезд инженера

Александр

Выездной инженер
Закажите выезд инженера для точной диагностики и профессиональной консультации по инженерным системам. Специалист приедет в удобное время, проведёт осмотр, рассчитает стоимость работ и подберёт оптимальные решения для вашего дома.


    Похожие проекты

    Ипотека и
    рассрочка
    1ЁК90
    Стоимость от:
    6 765 000
    Проект от: 40 500
    Этажей 1
    Санузлы 1
    Спальни 3
    Смотреть
    Ипотека и
    рассрочка
    Одноэтажный дом Fixplans — 0692
    Стоимость от:
    7 768 200
    Проект от: 49 500
    Этажей 1
    Санузлы 2
    Спальни 3
    Смотреть
    Ипотека и
    рассрочка
    АЛЬВИК
    Стоимость от:
    6 981 700
    Проект от: 49 500
    Этажей 1
    Санузлы 2
    Спальни 3
    Смотреть
    Ипотека и
    рассрочка
    Загородный дом АС-207
    Стоимость от:
    18 268 140
    Проект от: 120 150
    Этажей 1
    Санузлы 3
    Спальни 4
    Смотреть
    Ипотека и
    рассрочка
    LITE 106
    Стоимость от:
    6 494 620
    Проект от: 47 700
    Этажей 1
    Санузлы 1
    Спальни 2
    Смотреть
    Ипотека и
    рассрочка
    Дом 70
    Стоимость от:
    5 110 600
    Проект от: 31 500
    Этажей 1
    Санузлы 1
    Спальни 3
    Смотреть

    Как узнать стоимость дома

    back
    Оставляете заявку
    Вы заполняете форму на сайте или звоните нам. Менеджер Лайвкрафт связывается с вами для уточнения деталей: тип дома, площадь, материалы, участок строительства.
    back
    Консультация и подбор решения
    Наш специалист помогает выбрать оптимальный тип дома и конструкцию с учётом бюджета, сроков и целей — будь то дом для постоянного проживания или дача.
    back
    Расчёт предварительной стоимости
    Инженер делает первичный расчёт стоимости строительства по вашим параметрам: фундамент, коробка, кровля, отделка. Вы получаете смету с разбивкой по этапам.
    back
    Корректировка и утверждение сметы
    При необходимости вносим изменения — например, замену материалов или сокращение этапов. После согласования формируется окончательная фиксированная смета.
    back
    Заключение договора и старт работ
    После утверждения сметы заключаем официальный договор с гарантией. Вы получаете прозрачный график и точную стоимость — без скрытых расходов.

    Заказать конусльтацию по:Жилой дом 9,3/10,4

    Фото 1 Жилой дом 9,3/10,4


      Наши
      контакты

      Дмитров
      Опорный проезд 28Б
      (индустриальный парк Ниагара)
      9:00 до 18:00

      Корзина