4.9
Рейтинг на основании 120 отзывов
Дмитров
Опорный проезд 28Б
(индустриальный парк Ниагара)
Бренд "Дмитров-Дело" c 2008 года на рынке строительства в Дмитрове
Звоните 9:00 до 18:00 8 (915) 055-33-61
Бренд "Дмитров-Дело" c 2008 года на рынке строительства в Дмитрове

Жилой дом БКД-78

Стоимость проекта от:
50 850 ₽
БЕСПЛАТНО! ПРИ ЗАКАЗЕ СТРОИТЕЛЬСТВА
Стоимость строительства от:
6 531 965 ₽
Артикул ART-19867
Дата 26.12.2025
Архитектурный стиль Скандинавский
Количество надземных этажей 1
Круглогодичное проживание Да
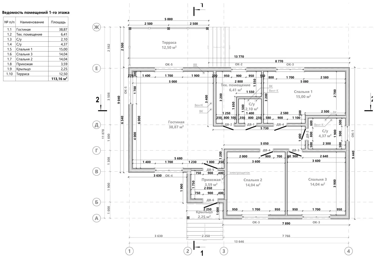
Площадь дома 113 м2
Санузлы 2
Спальни 3

Описание

Этот очаровательный одноэтажный дом БКД‑78 – настоящий уголок уюта в окружении природы. Его скандинавский дизайн подчёркивает простоту линий и гармонию с окружающей средой: деревянные каркасы, изысканная двускатная крыша, и открытая терраса создают атмосферу домашнего тепла и спокойствия. Благодаря полной защищённости от погодных условий, в этом доме можно комфортно жить круглый год, наслаждаясь природной светой и уютом, даже в прохладные зимние месяцы. Внутри простота соединяется с функциональностью: просторные, световые помещения, обвешанные природными материалами, словно природа «входит» в ваш новый жилищный уголок. Просторные окна, обрамлённые тонкими деревянными рамами, дарят панорамный вид на сад и лес, а деревянные стены усиливают ощущение естественности и спонтанного тепла. Не хватает в этом доме лишних аксессуаров: балконов, веранд, гаражных пристроев, но именно в этом и заключён его шарм – чистый, лаконичный образ, который легко адаптируется под индивидуальные потребности. Простая, но элегантная архитектура, объединённая с практичностью террасы, делает этот дом идеальным выбором тем, кто ищет благополучие и гармонию в гармонии с природой.

Характеристики дома

Архитектурный стиль
Автоматизированное регулирование параметров теплоносителя
Нет
Балконы/лоджии
Отсутствуют
Чердачное помещение
Нет
Датчики протечки воды
Нет
Эксплуатируемая или зеленая кровля
Нет
Электроснабжение
Центральное
Газоснабжение
Не предусмотрено
Изоляция воздушного шума
Да
Камин
Нет
Класс энергоэффективности
-
Класс энергосбережения
-
Количество надземных этажей
1
Круглогодичное проживание
Да
Материал кровли
Металлочерепица
Материал перекрытий
Деревянные
Материал внешних стен
Материал внутренних перегородок
Гипсокартонные
Модульное строительство с конструкциями заводского изготовления
Нет
Объем надземной части
202 м3
Основной материал фасадов
Фасадная плитка
Отопление
Индивидуальное
Площадь дома
113 м2
Площадь застройки
142 м2
Подвальное помещение
Нет
Показатель компактности здания
-
Приборы учета тепловой энергии
Нет
Пристроенный гараж/крытая автостоянка
Нет
Противопожарная система
Нет
Санузлы
2
Совмещенная кухня-гостиная
Да
Спальни
3
Терраса
Да
Тип фундамента
Свайно-винтовой
Тип кровли
Толщина внешних стен
240 мм
Толщина внутренних перегородок
125 мм
Улучшенные шумовые характеристики
Да
Вентиляция
Естественная
Веранда
Нет
Водоотведение
Локальные очистные сооружения
Водоснабжение
Индивидуальное
Высота дома
6.54 м
Высота потолков
2.7 м

Планировка

Фасад дома

Александр

Закажите выезд инженера

Александр

Выездной инженер
Закажите выезд инженера для точной диагностики и профессиональной консультации по инженерным системам. Специалист приедет в удобное время, проведёт осмотр, рассчитает стоимость работ и подберёт оптимальные решения для вашего дома.


    Похожие проекты

    Ипотека и
    рассрочка
    Одноэтажный дачный дом с террасой и 1 спальней
    Стоимость от:
    3 998 610
    Проект от: 28 350
    Этажей 1
    Санузлы 1
    Спальни 1
    Смотреть
    Ипотека и
    рассрочка
    Двухэтажный дом ЭС-252
    Стоимость от:
    14 638 680
    Проект от: 99 900
    Этажей 2
    Санузлы 2
    Спальни 7
    Смотреть
    Ипотека и
    рассрочка
    Мансардный дом в стиле Барн «Адара»
    Стоимость от:
    7 111 500
    Проект от: 49 500
    Этажей 2
    Санузлы 2
    Спальни 3
    Смотреть
    Ипотека и
    рассрочка
    Проект 10
    Стоимость от:
    7 365 160
    Проект от: 44 100
    Этажей 1
    Санузлы 2
    Спальни 2
    Смотреть
    Ипотека и
    рассрочка
    ЛИНДАУ
    Стоимость от:
    6 389 900
    Проект от: 38 250
    Этажей 1
    Санузлы 1
    Спальни 2
    Смотреть
    Ипотека и
    рассрочка
    Загородный дом Барн 55
    Стоимость от:
    2 937 275
    Проект от: 24 750
    Этажей 1
    Санузлы 1
    Спальни 2
    Смотреть

    Как узнать стоимость дома

    back
    Оставляете заявку
    Вы заполняете форму на сайте или звоните нам. Менеджер Лайвкрафт связывается с вами для уточнения деталей: тип дома, площадь, материалы, участок строительства.
    back
    Консультация и подбор решения
    Наш специалист помогает выбрать оптимальный тип дома и конструкцию с учётом бюджета, сроков и целей — будь то дом для постоянного проживания или дача.
    back
    Расчёт предварительной стоимости
    Инженер делает первичный расчёт стоимости строительства по вашим параметрам: фундамент, коробка, кровля, отделка. Вы получаете смету с разбивкой по этапам.
    back
    Корректировка и утверждение сметы
    При необходимости вносим изменения — например, замену материалов или сокращение этапов. После согласования формируется окончательная фиксированная смета.
    back
    Заключение договора и старт работ
    После утверждения сметы заключаем официальный договор с гарантией. Вы получаете прозрачный график и точную стоимость — без скрытых расходов.

    Заказать конусльтацию по:Жилой дом БКД-78

    Фото 1 Жилой дом БКД-78


      Наши
      контакты

      Дмитров
      Опорный проезд 28Б
      (индустриальный парк Ниагара)
      9:00 до 18:00

      Корзина