4.9
Рейтинг на основании 120 отзывов
Дмитров
Опорный проезд 28Б
(индустриальный парк Ниагара)
Бренд "Дмитров-Дело" c 2008 года на рынке строительства в Дмитрове
Звоните 9:00 до 18:00 8 (915) 055-33-61
Бренд "Дмитров-Дело" c 2008 года на рынке строительства в Дмитрове

140Т

Стоимость проекта от:
63 000 ₽
Стоимость строительства от:
9 886 800 ₽
Артикул ART-10085
Дата 25.12.2025
Архитектурный стиль Классический
Количество надземных этажей 1
Круглогодичное проживание Да
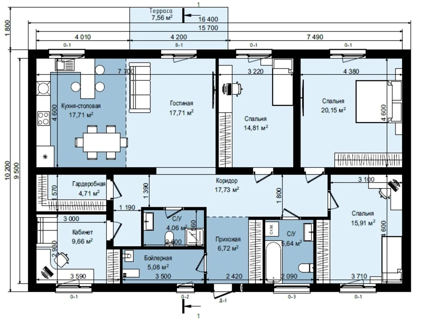
Площадь дома 140 м2
Санузлы 2
Спальни 3

Описание

Сердце этого дома, построенного в строгом классическом стиле, раскрывается через просторную гостиную с высокими окнами, которые пропускают мягкий, но живой свет на протяжении всего дня. Уютное пространство обогащено атмосферой спокойствия и тепла, создавая идеальное место для кругового семейного уединения и празднования важнейших моментов жизни. Здесь легко ощущать чувство стабильности, ведь каждый уголок обустроен так, чтобы радовать глаз и душу в любой сезон. Внутреннее пространство разворачивается надобрано и гибко: открытая планировка с продуманной мебелью позволяет легко адаптировать интерьеры под современные нужды. Выгодное чердачное помещение можно превратить в стильную мастерскую, детскую комнату или гостевой офис. А закрытый двор и изящная терраса станут вашим личным оазисом, где можно наслаждаться вечерами, запечатлёнными в лучах заката, и проводить встречи с друзьями в приподнятой атмосфере. Бескомпромиссное внимание к материалам гарантирует долгую службу и низкие эксплуатационные расходы: газобетонные блоки обеспечивают тепло- и звукоизоляцию, а вальмовая, четырёхскатная крыша защищает от непогоды и добавляет неповторимый очаровательный силуэт. Даже без пристроенного гаража, увыка можно легко адаптировать под открытое стояние автомобилей или установить индивидуальный автокомплект. Всё это делает дом не только красивым и функциональным, но и экономичным вложением, которое порадует вас и вашу семью долгие годы.

Характеристики дома

Архитектурный стиль
Классический
Автоматизированное регулирование параметров теплоносителя
-
Балконы/лоджии
Отсутствуют
Чердачное помещение
Да
Датчики протечки воды
-
Эксплуатируемая или зеленая кровля
-
Электроснабжение
Индивидуальное
Газоснабжение
Индивидуальное
Изоляция воздушного шума
-
Камин
Нет
Класс энергоэффективности
-
Класс энергосбережения
-
Количество надземных этажей
1
Круглогодичное проживание
Да
Материал кровли
Металлочерепица
Материал перекрытий
Деревянные
Материал внешних стен
Газобетонные блоки
Материал внутренних перегородок
Пенобетонные
Модульное строительство с конструкциями заводского изготовления
Нет
Объем надземной части
-
Основной материал фасадов
Штукатурка
Отопление
Индивидуальное
Площадь дома
140 м2
Площадь застройки
167 м2
Подвальное помещение
Нет
Показатель компактности здания
-
Приборы учета тепловой энергии
-
Пристроенный гараж/крытая автостоянка
Нет
Противопожарная система
Нет
Санузлы
2
Совмещенная кухня-гостиная
Да
Спальни
3
Терраса
Да
Тип фундамента
Плитный
Тип кровли
Четырехскатная (вальмовая)
Толщина внешних стен
400 мм
Толщина внутренних перегородок
100 мм
Улучшенные шумовые характеристики
-
Вентиляция
Принудительная
Веранда
Нет
Водоотведение
Локальные очистные сооружения
Водоснабжение
Индивидуальное
Высота дома
6.29 м
Высота потолков
2.65 м

Планировка

Фасад дома

Александр

Закажите выезд инженера

Александр

Выездной инженер
Закажите выезд инженера для точной диагностики и профессиональной консультации по инженерным системам. Специалист приедет в удобное время, проведёт осмотр, рассчитает стоимость работ и подберёт оптимальные решения для вашего дома.


    Похожие проекты

    Ипотека и
    рассрочка
    Одноэтажный дом с гаражом ПРОРЫВ-2024
    Стоимость от:
    17 623 760
    Проект от: 102 600
    Этажей 1
    Санузлы 1
    Спальни 3
    Смотреть
    Ипотека и
    рассрочка
    Е-25-77
    Стоимость от:
    5 797 000
    Проект от: 45 000
    Этажей 1
    Санузлы 2
    Спальни 3
    Смотреть
    Ипотека и
    рассрочка
    ТАЙНЫЙ СУНДУК
    Стоимость от:
    3 676 200
    Проект от: 27 000
    Этажей 1
    Санузлы 1
    Спальни 2
    Смотреть
    Ипотека и
    рассрочка
    Next-94
    Стоимость от:
    7 276 280
    Проект от: 42 300
    Этажей 1
    Санузлы 2
    Спальни 3
    Смотреть
    Ипотека и
    рассрочка
    Одноэтажный дом c террасой LV-146
    Стоимость от:
    10 966 120
    Проект от: 65 700
    Этажей 1
    Санузлы 2
    Спальни 3
    Смотреть
    Ипотека и
    рассрочка
    Проект двухэтажного дома Леон
    Стоимость от:
    12 439 680
    Проект от: 77 400
    Этажей 2
    Санузлы 2
    Спальни 4
    Смотреть

    Как узнать стоимость дома

    back
    Оставляете заявку
    Вы заполняете форму на сайте или звоните нам. Менеджер Лайвкрафт связывается с вами для уточнения деталей: тип дома, площадь, материалы, участок строительства.
    back
    Консультация и подбор решения
    Наш специалист помогает выбрать оптимальный тип дома и конструкцию с учётом бюджета, сроков и целей — будь то дом для постоянного проживания или дача.
    back
    Расчёт предварительной стоимости
    Инженер делает первичный расчёт стоимости строительства по вашим параметрам: фундамент, коробка, кровля, отделка. Вы получаете смету с разбивкой по этапам.
    back
    Корректировка и утверждение сметы
    При необходимости вносим изменения — например, замену материалов или сокращение этапов. После согласования формируется окончательная фиксированная смета.
    back
    Заключение договора и старт работ
    После утверждения сметы заключаем официальный договор с гарантией. Вы получаете прозрачный график и точную стоимость — без скрытых расходов.

    Заказать конусльтацию по:140Т

    Фото 1 140Т


      Наши
      контакты

      Дмитров
      Опорный проезд 28Б
      (индустриальный парк Ниагара)
      9:00 до 18:00

      Корзина