4.9
Рейтинг на основании 120 отзывов
Дмитров
Опорный проезд 28Б
(индустриальный парк Ниагара)
Бренд "Дмитров-Дело" c 2008 года на рынке строительства в Дмитрове
Звоните 9:00 до 18:00 8 (915) 055-33-61
Бренд "Дмитров-Дело" c 2008 года на рынке строительства в Дмитрове

А-ФРЕЙМ FARM-VILLAGE

Стоимость проекта от:
55 800 ₽
БЕСПЛАТНО! ПРИ ЗАКАЗЕ СТРОИТЕЛЬСТВА
Стоимость строительства от:
7 421 400 ₽
Артикул ART-13296
Дата 25.12.2025
Архитектурный стиль Шале
Количество надземных этажей 2
Круглогодичное проживание Да
Площадь дома 124 м2
Санузлы 1
Спальни 2

Описание

А‑ФРЕЙМ FARM‑VILLAGE — это утончённый дом в стиле шале, созданный для тех, кто ценит гармонию с природой и комфорт круглый год. Два полностью обустроенных надземных этажа открывают просторные зоны, где традиционный деревянный каркас, выполненный из прочных древесных элементов, соединяется с мягкими, светлыми интерьерами. Парадигма уютного шале подчёркивает тепло, которое сразу ощущается при входе: высокие потолки, изогнутые формы и естественные материалы создают неповторимую атмосферу спокойствующей тишины по соседству с шумом города. Сочетание простого, но элегантного дизайна и практичных решений — без балконов, веранд и прицепных гаражей, но с просторной террасой, позволяет максимально использовать наружные пространства. Вы сможете наслаждаться восходами и закатами на свежем воздухе, а приём гостей будет выглядеть стильно и современно. Птицы и дикие птицы, шуршащие в лесу, звучат как музыка для ушей, а двухскатная крыша защищает от любых погодных условий, делая проживание круглогодичным и беззаботным. Точный подбор древесины и теплоизоляционных материалов придает дому изысканность и надёжность, одновременно обеспечивая экологическую чистоту и уют. А стильные детали интерьера, которые подчёркивают архитектурную концепцию шале, делают А‑ФРЕЙМ FARM‑VILLAGE идеальным средством для создания вашего личного оазиса в современных реалиях. Этот дом приглашает вас обрести баланс между роскошью и природной простотой, создавая для вас и вашей семьи место, куда хочется возвращаться каждую минуту.

Характеристики дома

Архитектурный стиль
Автоматизированное регулирование параметров теплоносителя
Нет
Балконы/лоджии
Отсутствуют
Чердачное помещение
Нет
Датчики протечки воды
Нет
Эксплуатируемая или зеленая кровля
Нет
Электроснабжение
Центральное
Газоснабжение
Не предусмотрено
Изоляция воздушного шума
Нет
Камин
Нет
Класс энергоэффективности
-
Класс энергосбережения
-
Количество надземных этажей
2
Круглогодичное проживание
Да
Материал кровли
Металлочерепица
Материал перекрытий
Деревянные
Материал внешних стен
Материал внутренних перегородок
Деревянные
Модульное строительство с конструкциями заводского изготовления
Нет
Объем надземной части
390 м3
Основной материал фасадов
Дерево
Отопление
Центральное
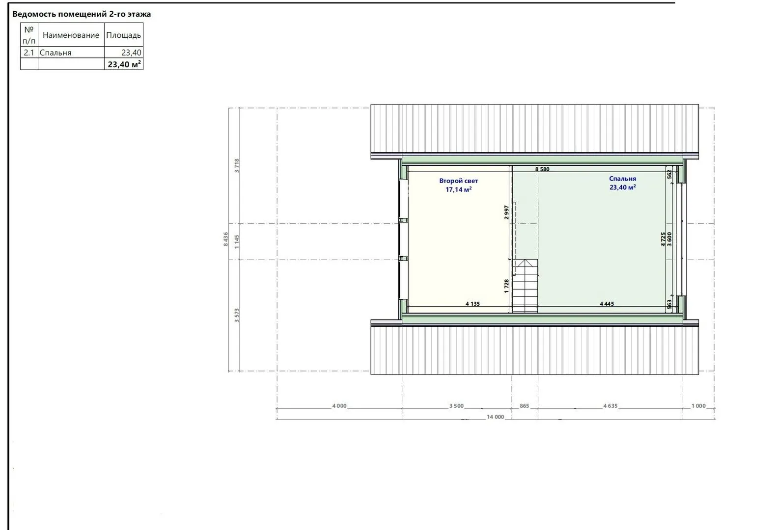
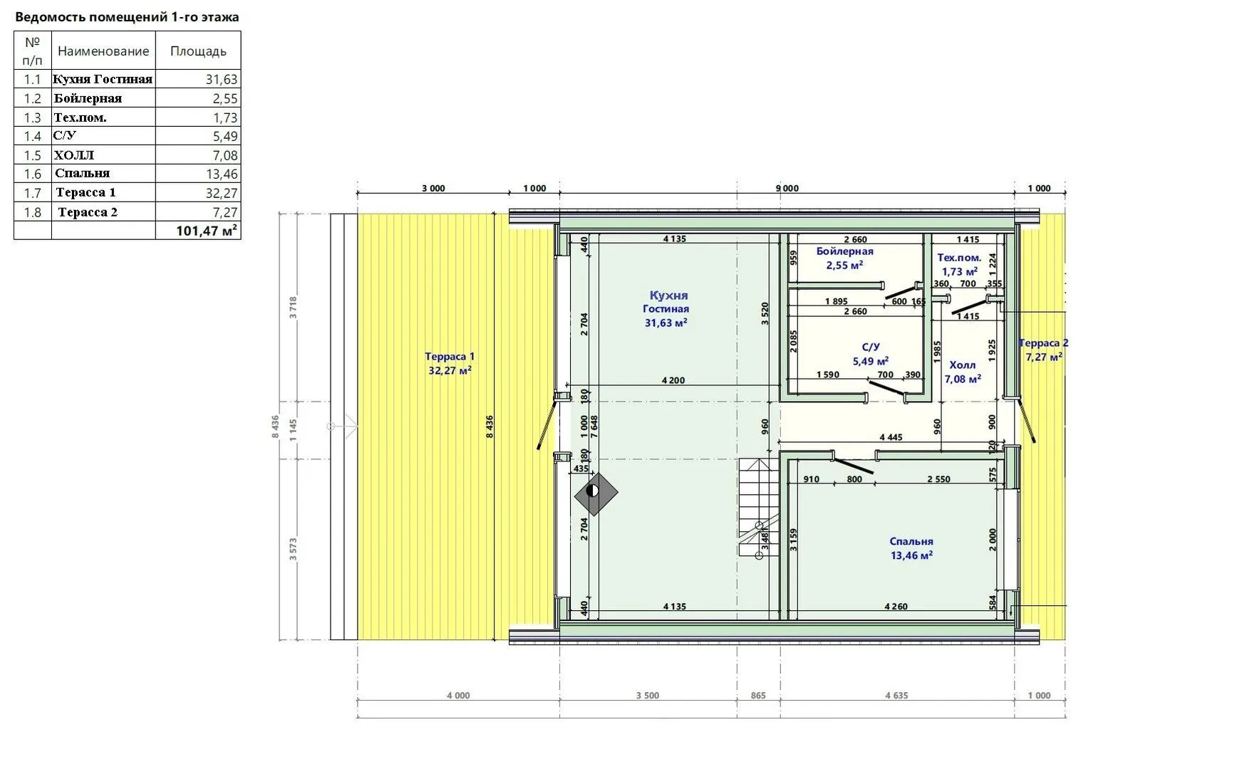
Площадь дома
124 м2
Площадь застройки
118 м2
Подвальное помещение
Нет
Показатель компактности здания
-
Приборы учета тепловой энергии
Нет
Пристроенный гараж/крытая автостоянка
Нет
Противопожарная система
Нет
Санузлы
1
Совмещенная кухня-гостиная
Да
Спальни
2
Терраса
Да
Тип фундамента
Свайно-винтовой
Тип кровли
Толщина внешних стен
145 мм
Толщина внутренних перегородок
100 мм
Улучшенные шумовые характеристики
Нет
Вентиляция
Естественная
Веранда
Нет
Водоотведение
Центральное
Водоснабжение
Центральное
Высота дома
8.72 м
Высота потолков
2.7 м

Планировка

Фасад дома

Александр

Закажите выезд инженера

Александр

Выездной инженер
Закажите выезд инженера для точной диагностики и профессиональной консультации по инженерным системам. Специалист приедет в удобное время, проведёт осмотр, рассчитает стоимость работ и подберёт оптимальные решения для вашего дома.


    Похожие проекты

    Ипотека и
    рассрочка
    Проект одноэтажного дома F-7820
    Стоимость от:
    8 894 600
    Проект от: 58 500
    Этажей 1
    Санузлы 3
    Спальни 3
    Смотреть
    Ипотека и
    рассрочка
    Дом 3
    Стоимость от:
    7 244 820
    Проект от: 40 950
    Этажей 1
    Санузлы 1
    Спальни 3
    Смотреть
    Ипотека и
    рассрочка
    Одноэтажный коттедж, 85 кв.м.
    Стоимость от:
    6 202 900
    Проект от: 38 250
    Этажей 1
    Санузлы 2
    Спальни 3
    Смотреть
    Ипотека и
    рассрочка
    Загородный дом «Баланс» площадью застройки 75м2
    Стоимость от:
    4 214 320
    Проект от: 25 200
    Этажей 1
    Санузлы 1
    Спальни 2
    Смотреть
    Ипотека и
    рассрочка
    Сканди
    Стоимость от:
    8 460 320
    Проект от: 52 200
    Этажей 1
    Санузлы 2
    Спальни 3
    Смотреть
    Ипотека и
    рассрочка
    Загородный дом 90
    Стоимость от:
    7 165 400
    Проект от: 40 500
    Этажей 1
    Санузлы 2
    Спальни 3
    Смотреть

    Как узнать стоимость дома

    back
    Оставляете заявку
    Вы заполняете форму на сайте или звоните нам. Менеджер Лайвкрафт связывается с вами для уточнения деталей: тип дома, площадь, материалы, участок строительства.
    back
    Консультация и подбор решения
    Наш специалист помогает выбрать оптимальный тип дома и конструкцию с учётом бюджета, сроков и целей — будь то дом для постоянного проживания или дача.
    back
    Расчёт предварительной стоимости
    Инженер делает первичный расчёт стоимости строительства по вашим параметрам: фундамент, коробка, кровля, отделка. Вы получаете смету с разбивкой по этапам.
    back
    Корректировка и утверждение сметы
    При необходимости вносим изменения — например, замену материалов или сокращение этапов. После согласования формируется окончательная фиксированная смета.
    back
    Заключение договора и старт работ
    После утверждения сметы заключаем официальный договор с гарантией. Вы получаете прозрачный график и точную стоимость — без скрытых расходов.

    Заказать конусльтацию по:А-ФРЕЙМ FARM-VILLAGE

    Фото 1 А-ФРЕЙМ FARM-VILLAGE


      Наши
      контакты

      Дмитров
      Опорный проезд 28Б
      (индустриальный парк Ниагара)
      9:00 до 18:00

      Корзина