4.9
Рейтинг на основании 120 отзывов
Дмитров
Опорный проезд 28Б
(индустриальный парк Ниагара)
Бренд "Дмитров-Дело" c 2008 года на рынке строительства в Дмитрове
Звоните 9:00 до 18:00 8 (915) 055-33-61
Бренд "Дмитров-Дело" c 2008 года на рынке строительства в Дмитрове

Аббакумово

Стоимость проекта от:
13 050 ₽
БЕСПЛАТНО! ПРИ ЗАКАЗЕ СТРОИТЕЛЬСТВА
Стоимость строительства от:
1 681 130 ₽
Артикул ART-11404
Дата 25.12.2025
Архитектурный стиль Скандинавский
Количество надземных этажей 1
Круглогодичное проживание Да
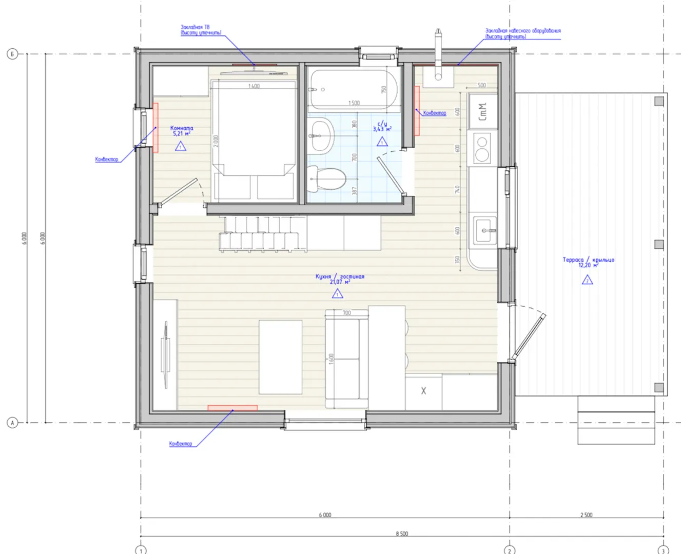
Площадь дома 29 м2
Санузлы 1
Спальни 1

Описание

Вдохновляющий уют скандинавского дизайна встречается с функциональностью в этом великолепном доме, созданном для тех, кто ценит спокойствие и простоту современной жизни. Оформленный в лаконичном стиле со светлым деревянным каркасом, он излучает тепло и природную нотку, соединяя традиционные материалы с современными технологиями. Двускатная крыша плавно контурирует фасад, создавая ощущение объёма и воздушности, а наличие чердачного помещения открывает перспективы для творчества – возможно, дополнительный кабинет, развеселые хобби или пространство для уединённого чтения. Внутреннее пространство спроектировано так, чтобы каждый уголок напоминал о комфорте круглый год. Светлые, просторные комнаты наполняются естественным освещением, обрамляя открытые зоны, где можно собраться со семьёй или устроить вечеринку. Современная кухня с изысканными фасадами и высокотехнологичными приборами приглашает к кулинарным экспериментам, а уютные зоны отдыха создают идеальное место для восстановления сил после динамичного дня. Терраса, выходящая из главного этажа, становится живительным простором, где можно наслаждаться закатами или утренними чашками кофе, впитывая спокойствие окружающей природы. Этот дом – идеальной выбор для тех, кто ищет гармонию и эстетику в сочетании с практичностью повседневной жизни. Его скандинавский шарм, сочетание деревянных материалов и продуманного планирования делает его идеальным убежищем из суеты города. Приглашаем вас открыть для себя этот уникальный уголок спокойствия – сделайте первый шаг к новому дому и позвольте себе почувствовать радость домашнего уюта с каждым вдохом.

Характеристики дома

Архитектурный стиль
Автоматизированное регулирование параметров теплоносителя
Нет
Балконы/лоджии
Отсутствуют
Чердачное помещение
Да
Датчики протечки воды
Нет
Эксплуатируемая или зеленая кровля
Нет
Электроснабжение
Не предусмотрено
Газоснабжение
Не предусмотрено
Изоляция воздушного шума
Да
Камин
Нет
Класс энергоэффективности
-
Класс энергосбережения
-
Количество надземных этажей
1
Круглогодичное проживание
Да
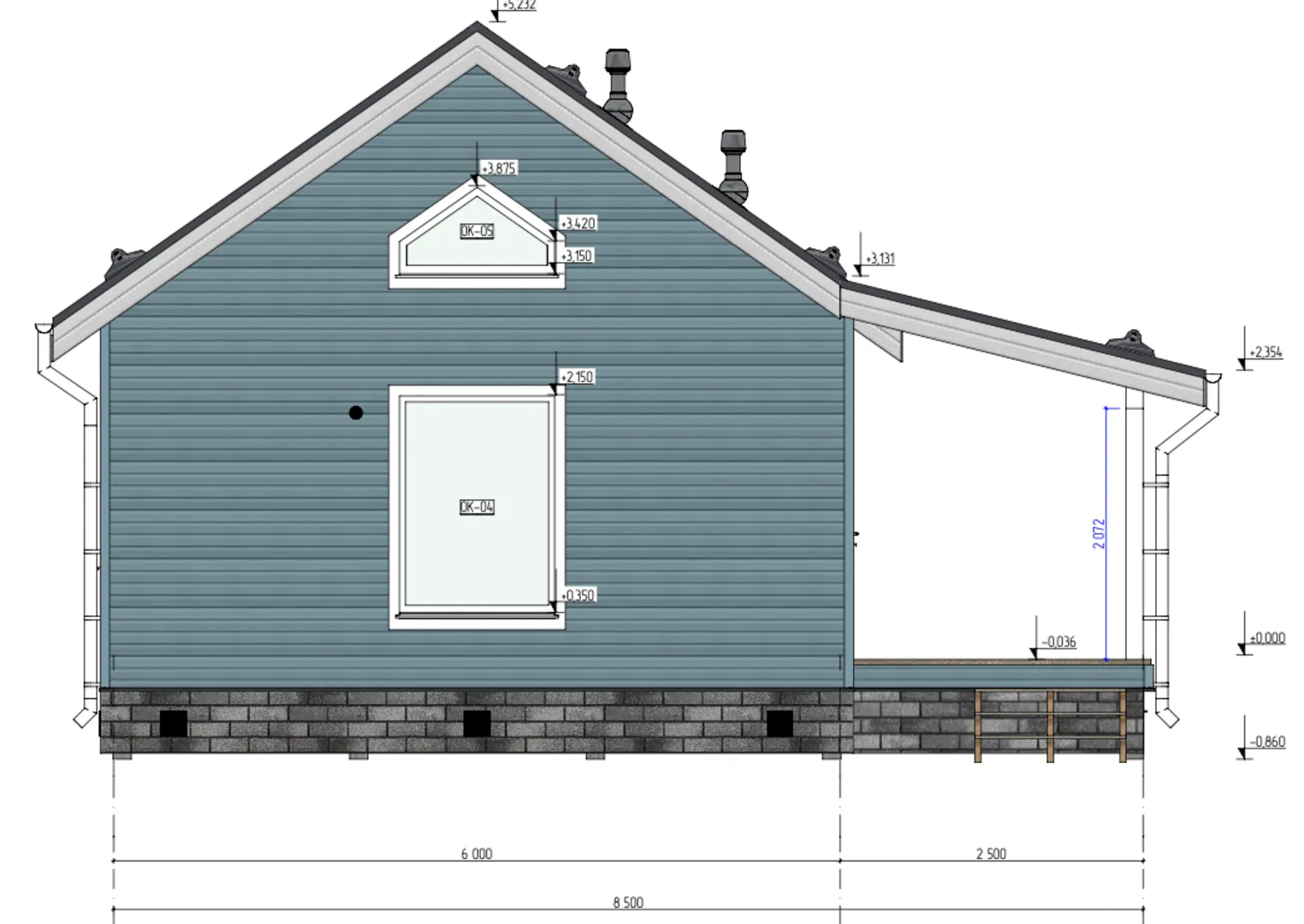
Материал кровли
Металлочерепица
Материал перекрытий
Деревянные
Материал внешних стен
Материал внутренних перегородок
Деревянные
Модульное строительство с конструкциями заводского изготовления
Нет
Объем надземной части
145 м3
Основной материал фасадов
Сайдинг
Отопление
Не предусмотрено
Площадь дома
29 м2
Площадь застройки
41 м2
Подвальное помещение
Нет
Показатель компактности здания
-
Приборы учета тепловой энергии
Нет
Пристроенный гараж/крытая автостоянка
Нет
Противопожарная система
Нет
Санузлы
1
Совмещенная кухня-гостиная
Да
Спальни
1
Терраса
Да
Тип фундамента
Свайный
Тип кровли
Толщина внешних стен
283 мм
Толщина внутренних перегородок
206 мм
Улучшенные шумовые характеристики
Да
Вентиляция
Естественная
Веранда
Нет
Водоотведение
Не предусмотрено
Водоснабжение
Не предусмотрено
Высота дома
5.23 м
Высота потолков
2.6 м

Планировка

Фасад дома

Александр

Закажите выезд инженера

Александр

Выездной инженер
Закажите выезд инженера для точной диагностики и профессиональной консультации по инженерным системам. Специалист приедет в удобное время, проведёт осмотр, рассчитает стоимость работ и подберёт оптимальные решения для вашего дома.


    Похожие проекты

    Ипотека и
    рассрочка
    Двух этажный дом с гаражом КС 220
    Стоимость от:
    15 040 320
    Проект от: 93 600
    Этажей 2
    Санузлы 2
    Спальни 5
    Смотреть
    Ипотека и
    рассрочка
    БарнХаус 82-23КД
    Стоимость от:
    5 434 440
    Проект от: 41 400
    Этажей 1
    Санузлы 1
    Спальни 3
    Смотреть
    Ипотека и
    рассрочка
    К 1-90-1
    Стоимость от:
    6 689 980
    Проект от: 40 050
    Этажей 1
    Санузлы 2
    Спальни 3
    Смотреть
    Ипотека и
    рассрочка
    Авторский проект «Санфор 2.0»
    Стоимость от:
    6 779 520
    Проект от: 43 200
    Этажей 1
    Санузлы 1
    Спальни 3
    Смотреть
    Ипотека и
    рассрочка
    ДОМ СП-099KD
    Стоимость от:
    7 362 190
    Проект от: 57 150
    Этажей 1
    Санузлы 1
    Спальни 3
    Смотреть
    Ипотека и
    рассрочка
    Одноэтажный дом «Арлас»
    Стоимость от:
    5 296 500
    Проект от: 33 750
    Этажей 1
    Санузлы 1
    Спальни 2
    Смотреть

    Как узнать стоимость дома

    back
    Оставляете заявку
    Вы заполняете форму на сайте или звоните нам. Менеджер Лайвкрафт связывается с вами для уточнения деталей: тип дома, площадь, материалы, участок строительства.
    back
    Консультация и подбор решения
    Наш специалист помогает выбрать оптимальный тип дома и конструкцию с учётом бюджета, сроков и целей — будь то дом для постоянного проживания или дача.
    back
    Расчёт предварительной стоимости
    Инженер делает первичный расчёт стоимости строительства по вашим параметрам: фундамент, коробка, кровля, отделка. Вы получаете смету с разбивкой по этапам.
    back
    Корректировка и утверждение сметы
    При необходимости вносим изменения — например, замену материалов или сокращение этапов. После согласования формируется окончательная фиксированная смета.
    back
    Заключение договора и старт работ
    После утверждения сметы заключаем официальный договор с гарантией. Вы получаете прозрачный график и точную стоимость — без скрытых расходов.

    Заказать конусльтацию по:Аббакумово

    Фото 1 Аббакумово


      Наши
      контакты

      Дмитров
      Опорный проезд 28Б
      (индустриальный парк Ниагара)
      9:00 до 18:00

      Корзина