4.9
Рейтинг на основании 120 отзывов
Дмитров
Опорный проезд 28Б
(индустриальный парк Ниагара)
Бренд "Дмитров-Дело" c 2008 года на рынке строительства в Дмитрове
Звоните 9:00 до 18:00 8 (915) 055-33-61
Бренд "Дмитров-Дело" c 2008 года на рынке строительства в Дмитрове

Авторский проект «Хантер»

Стоимость проекта от:
121 050 ₽
БЕСПЛАТНО! ПРИ ЗАКАЗЕ СТРОИТЕЛЬСТВА
Стоимость строительства от:
18 794 160 ₽
Артикул ART-6427
Дата 26.12.2025
Архитектурный стиль Хайтек
Количество надземных этажей 2
Круглогодичное проживание Да
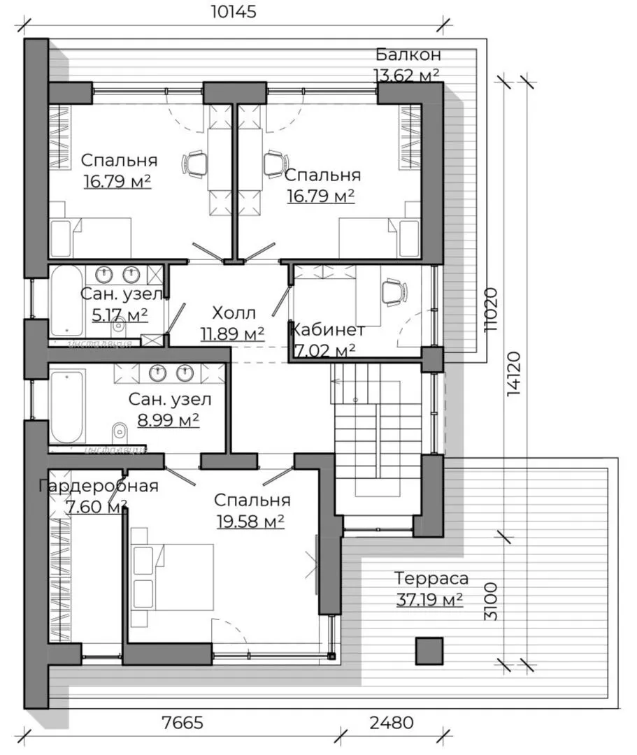
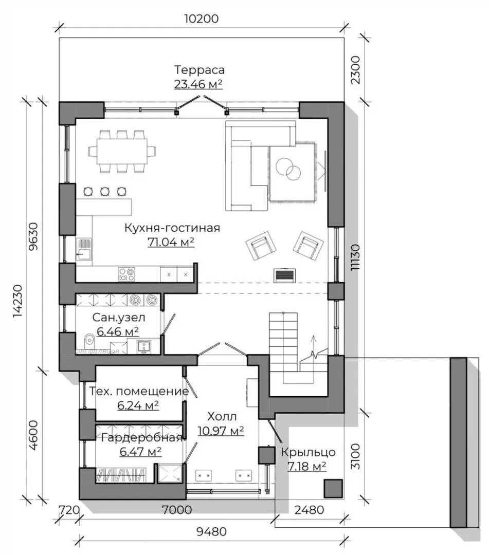
Площадь дома 269 м2
Санузлы 3
Спальни 3

Описание

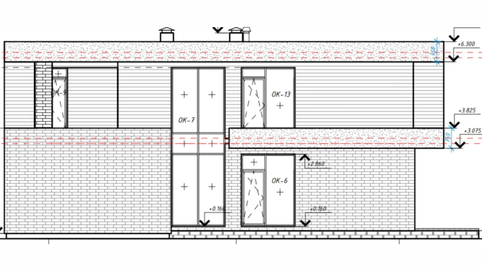
Авторский проект «Хантер» воплощает в себе идеальное сочетание современного хай‑тек дизайна и комфорта уютного семейного дома. Два надземных этажа, выполненные из износостойких газобетонных блоков, создают открытый и светлый внутренний простор. Плоская кровля, выполненная из современных материалов, придаёт зданию современный геометрический профиль, а большие окна пропускают мягкий свет на протяжении всех сезонов, гарантируя круглогодичное проживание без потери уюта. Особое внимание уделено деталям: просторный балкон с лоджией приглашает насладиться свежим воздухом, а отдельная терраса – идеальное место для вечеров в компании друзей и семейных ужинов на открытом воздухе. В доме отсутствуют лишние элементы, такие как веранда или чердяк, что позволяет сфокусироваться на современных акцентах дизайна и функциональности. Просторные коридоры и рациональная планировка обеспечивают лёгкость перемещения и максимальную приватность для всех жителей. «Хантер» – это место, где высокие технологии встречаются с уютом. Каждый метр этой элегантной архитектурной жемчужины раскрывает новый уровень комфорта, позволяя ощущать гармонию и стиль даже в самых повседневных моментах. Это дом, который станет естественной частью вашей жизни и гарантированно будет приносить радость на долгие годы.

Характеристики дома

Архитектурный стиль
Автоматизированное регулирование параметров теплоносителя
Нет
Балконы/лоджии
1
Чердачное помещение
Нет
Датчики протечки воды
Нет
Эксплуатируемая или зеленая кровля
Нет
Электроснабжение
2 варианта
Газоснабжение
2 варианта
Изоляция воздушного шума
Нет
Камин
Нет
Класс энергоэффективности
-
Класс энергосбережения
-
Количество надземных этажей
2
Круглогодичное проживание
Да
Материал кровли
Металлочерепица
Материал перекрытий
Монолитные железобетонные
Материал внешних стен
Материал внутренних перегородок
Блочные
Модульное строительство с конструкциями заводского изготовления
Нет
Объем надземной части
-
Основной материал фасадов
Штукатурка
Отопление
2 варианта
Площадь дома
269 м2
Площадь застройки
333 м2
Подвальное помещение
Нет
Показатель компактности здания
-
Приборы учета тепловой энергии
Нет
Пристроенный гараж/крытая автостоянка
Нет
Противопожарная система
Нет
Санузлы
3
Совмещенная кухня-гостиная
Да
Спальни
3
Терраса
Да
Тип фундамента
Плитный
Тип кровли
Толщина внешних стен
375 мм
Толщина внутренних перегородок
100 мм
Улучшенные шумовые характеристики
Нет
Вентиляция
2 варианта
Веранда
Нет
Водоотведение
2 варианта
Водоснабжение
2 варианта
Высота дома
8 м
Высота потолков
2.7 м

Планировка

Фасад дома

Александр

Закажите выезд инженера

Александр

Выездной инженер
Закажите выезд инженера для точной диагностики и профессиональной консультации по инженерным системам. Специалист приедет в удобное время, проведёт осмотр, рассчитает стоимость работ и подберёт оптимальные решения для вашего дома.


    Похожие проекты

    Ипотека и
    рассрочка
    Одноэтажный каменный классический дом Ц-52-67
    Стоимость от:
    6 847 720
    Проект от: 38 700
    Этажей 1
    Санузлы 1
    Спальни 2
    Смотреть
    Ипотека и
    рассрочка
    «Загородный дом Венера»
    Стоимость от:
    13 418 130
    Проект от: 98 550
    Этажей 1
    Санузлы 2
    Спальни 3
    Смотреть
    Ипотека и
    рассрочка
    Дом из CLT «Береговое»
    Стоимость от:
    601 920
    Проект от: 43 200
    Этажей 1
    Санузлы 1
    Спальни 1
    Смотреть
    Ипотека и
    рассрочка
    Уютный 112
    Стоимость от:
    8 347 240
    Проект от: 54 900
    Этажей 1
    Санузлы 2
    Спальни 3
    Смотреть
    Ипотека и
    рассрочка
    Просторный загородный дом для большой семьи П 78.24
    Стоимость от:
    9 079 200
    Проект от: 58 500
    Этажей 2
    Санузлы 2
    Спальни 5
    Смотреть
    Ипотека и
    рассрочка
    Современный одноэтажный дом без гаража S3-147-5 (ZX103 bG)
    Стоимость от:
    16 619 900
    Проект от: 96 750
    Этажей 1
    Санузлы 2
    Спальни 3
    Смотреть

    Как узнать стоимость дома

    back
    Оставляете заявку
    Вы заполняете форму на сайте или звоните нам. Менеджер Лайвкрафт связывается с вами для уточнения деталей: тип дома, площадь, материалы, участок строительства.
    back
    Консультация и подбор решения
    Наш специалист помогает выбрать оптимальный тип дома и конструкцию с учётом бюджета, сроков и целей — будь то дом для постоянного проживания или дача.
    back
    Расчёт предварительной стоимости
    Инженер делает первичный расчёт стоимости строительства по вашим параметрам: фундамент, коробка, кровля, отделка. Вы получаете смету с разбивкой по этапам.
    back
    Корректировка и утверждение сметы
    При необходимости вносим изменения — например, замену материалов или сокращение этапов. После согласования формируется окончательная фиксированная смета.
    back
    Заключение договора и старт работ
    После утверждения сметы заключаем официальный договор с гарантией. Вы получаете прозрачный график и точную стоимость — без скрытых расходов.

    Заказать конусльтацию по:Авторский проект «Хантер»

    Фото 1 Авторский проект «Хантер»


      Наши
      контакты

      Дмитров
      Опорный проезд 28Б
      (индустриальный парк Ниагара)
      9:00 до 18:00

      Корзина