4.9
Рейтинг на основании 120 отзывов
Дмитров
Опорный проезд 28Б
(индустриальный парк Ниагара)
Бренд "Дмитров-Дело" c 2008 года на рынке строительства в Дмитрове
Звоните 9:00 до 18:00 8 (915) 055-33-61
Бренд "Дмитров-Дело" c 2008 года на рынке строительства в Дмитрове

Авторский проект «Тибет»

Стоимость проекта от:
83 700 ₽
Стоимость строительства от:
13 135 320 ₽
Артикул ART-6431
Дата 26.12.2025
Архитектурный стиль Американский/Канадский
Количество надземных этажей 1
Круглогодичное проживание Да
Площадь дома 186 м2
Санузлы 2
Спальни 3

Описание

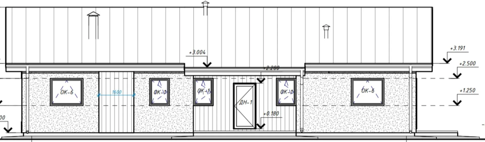
Авторский проект **«Тибет»** воплощает идею уединённого очарования, присущую американской и канадской архитектуре, но с изысканностью простоты и элегантности. Это одноэтажное решение, созданное для круглогодичного проживания, где каждый уголок пропитан мягким светом и гармонией с природой. Чистые линии фасада, выполненные из газобетонных блоков, создают ощущение лёгкости и стойкости, а два конических крыша добавляет изюминку и современность. Дом приглашает вас начать день на уютной террасе, где можно насладиться свежим воздухом и завораживающим окном в сад. Отсутствие балконов и веранд позволяет сосредоточиться на плавных переходах между внутренним и внешним пространством, делая дом более закрытым и защищённым от непогоды. Пристроенный гараж отсутствует, но это дает владельцу больше свободы в планировании личного пространства и дизайна. Всё это делает «Тибет» идеальным местом для тех, кто ценит спокойствие домашнего уюта и одновременно наслаждается свободой открытого пространства.

Характеристики дома

Архитектурный стиль
Американский/Канадский
Автоматизированное регулирование параметров теплоносителя
Нет
Балконы/лоджии
Отсутствуют
Чердачное помещение
Нет
Датчики протечки воды
Нет
Эксплуатируемая или зеленая кровля
Нет
Электроснабжение
2 варианта
Газоснабжение
2 варианта
Изоляция воздушного шума
Нет
Камин
Нет
Класс энергоэффективности
-
Класс энергосбережения
-
Количество надземных этажей
1
Круглогодичное проживание
Да
Материал кровли
Металлочерепица
Материал перекрытий
Монолитные железобетонные
Материал внешних стен
Газобетонные блоки
Материал внутренних перегородок
Блочные
Модульное строительство с конструкциями заводского изготовления
Нет
Объем надземной части
-
Основной материал фасадов
Штукатурка
Отопление
2 варианта
Площадь дома
186 м2
Площадь застройки
195 м2
Подвальное помещение
Нет
Показатель компактности здания
-
Приборы учета тепловой энергии
Нет
Пристроенный гараж/крытая автостоянка
Нет
Противопожарная система
Нет
Санузлы
2
Совмещенная кухня-гостиная
Да
Спальни
3
Терраса
Да
Тип фундамента
Плитный
Тип кровли
Двускатная
Толщина внешних стен
375 мм
Толщина внутренних перегородок
100 мм
Улучшенные шумовые характеристики
Нет
Вентиляция
2 варианта
Веранда
Нет
Водоотведение
2 варианта
Водоснабжение
2 варианта
Высота дома
5.7 м
Высота потолков
2.7 м

Планировка

Фасад дома

Александр

Закажите выезд инженера

Александр

Выездной инженер
Закажите выезд инженера для точной диагностики и профессиональной консультации по инженерным системам. Специалист приедет в удобное время, проведёт осмотр, рассчитает стоимость работ и подберёт оптимальные решения для вашего дома.


    Похожие проекты

    Ипотека и
    рассрочка
    Загородный дом
    Стоимость от:
    9 578 800
    Проект от: 63 000
    Этажей 1
    Санузлы 2
    Спальни 3
    Смотреть
    Ипотека и
    рассрочка
    Каркасный дом. Проект КД-20
    Стоимость от:
    5 075 070
    Проект от: 40 950
    Этажей 1
    Санузлы 1
    Спальни 2
    Смотреть
    Ипотека и
    рассрочка
    88м2
    Стоимость от:
    6 421 360
    Проект от: 39 600
    Этажей 1
    Санузлы 1
    Спальни 3
    Смотреть
    Ипотека и
    рассрочка
    Проект дома КС-14
    Стоимость от:
    12 963 060
    Проект от: 73 350
    Этажей 1
    Санузлы 2
    Спальни 4
    Смотреть
    Ипотека и
    рассрочка
    Январь
    Стоимость от:
    4 802 160
    Проект от: 30 600
    Этажей 1
    Санузлы 1
    Спальни 2
    Смотреть
    Ипотека и
    рассрочка
    Кит 59
    Стоимость от:
    4 166 580
    Проект от: 26 550
    Этажей 1
    Санузлы 1
    Спальни 2
    Смотреть

    Как узнать стоимость дома

    back
    Оставляете заявку
    Вы заполняете форму на сайте или звоните нам. Менеджер Лайвкрафт связывается с вами для уточнения деталей: тип дома, площадь, материалы, участок строительства.
    back
    Консультация и подбор решения
    Наш специалист помогает выбрать оптимальный тип дома и конструкцию с учётом бюджета, сроков и целей — будь то дом для постоянного проживания или дача.
    back
    Расчёт предварительной стоимости
    Инженер делает первичный расчёт стоимости строительства по вашим параметрам: фундамент, коробка, кровля, отделка. Вы получаете смету с разбивкой по этапам.
    back
    Корректировка и утверждение сметы
    При необходимости вносим изменения — например, замену материалов или сокращение этапов. После согласования формируется окончательная фиксированная смета.
    back
    Заключение договора и старт работ
    После утверждения сметы заключаем официальный договор с гарантией. Вы получаете прозрачный график и точную стоимость — без скрытых расходов.

    Заказать конусльтацию по:Авторский проект «Тибет»

    Фото 1 Авторский проект «Тибет»


      Наши
      контакты

      Дмитров
      Опорный проезд 28Б
      (индустриальный парк Ниагара)
      9:00 до 18:00

      Корзина