4.9
Рейтинг на основании 120 отзывов
Дмитров
Опорный проезд 28Б
(индустриальный парк Ниагара)
Бренд "Дмитров-Дело" c 2008 года на рынке строительства в Дмитрове
Звоните 9:00 до 18:00 8 (915) 055-33-61
Бренд "Дмитров-Дело" c 2008 года на рынке строительства в Дмитрове

Двухэтажный дом «Касабланка»

Стоимость проекта от:
51 750 ₽
Стоимость строительства от:
7 436 760 ₽
Артикул ART-16186
Дата 25.12.2025
Архитектурный стиль Барнхаус
Количество надземных этажей 2
Круглогодичное проживание Да
Площадь дома 115 м2
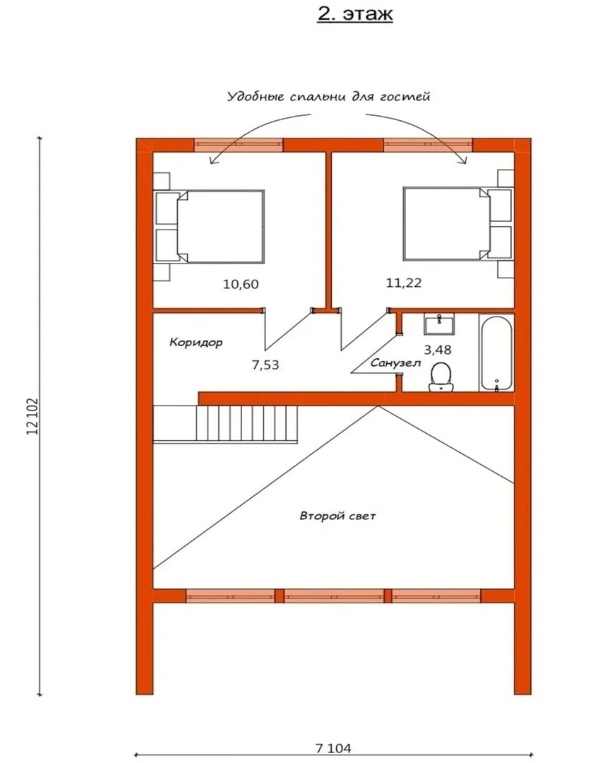
Санузлы 2
Спальни 4

Описание

Двухэтажный дом «Касабланка» – это сочетание уюта и современной функциональности, воплощённое в стиле barnhouse. Здесь каждая деталь продумана: от массивных деревянных блоков, которые создают тепло и защищают от ветров и холода, до строгой двускатной крыши, от которой отбрасываются ненужные звуки. Дом разработан под круглогодичное проживание, благодаря хорошей теплоизоляции и удобному планировочному решению, что делает его идеальным выбором как для уютных семейных дней, так и для вдохновляющих вечеров у камина. Благодаря просторной террасе гости могут наслаждаться свежим воздухом, наблюдать закат и устраивать пикники прямо за порогом, без лишних конструкций и балконов, что сохраняет чистую визуальную простоту. Внутри «Касабланка» сочетает открытость пространства с индивидуальностью: большие окна пропускают свет, а просторные комнаты позволяют легко распределить пространство по своим потребностям. Никаких прикрытых автостоянок, ни чердачних помещений – вместо этого каждый квадратный метр использован с максимальной отдачей, создавая ощущение свежести и порядка. Именно так, без лишней шумной суеты и лишних балконов, «Касабланка» становится вашим спокойным уголком уюта, где классический barnhouse-стиль встречается с современными удобствами. Это не просто дом; это ваша крепость, ваш оазис тепла и простора, где каждый день начинается с вдохновения.

Характеристики дома

Архитектурный стиль
Барнхаус
Автоматизированное регулирование параметров теплоносителя
Нет
Балконы/лоджии
Отсутствуют
Чердачное помещение
Нет
Датчики протечки воды
Нет
Эксплуатируемая или зеленая кровля
Нет
Электроснабжение
2 варианта
Газоснабжение
2 варианта
Изоляция воздушного шума
Нет
Камин
Нет
Класс энергоэффективности
-
Класс энергосбережения
-
Количество надземных этажей
2
Круглогодичное проживание
Да
Материал кровли
Фальцевая кровля Кликфальц
Материал перекрытий
Деревянные
Материал внешних стен
Деревянные блоки
Материал внутренних перегородок
Деревянные
Модульное строительство с конструкциями заводского изготовления
Нет
Объем надземной части
3000 м3
Основной материал фасадов
Фальцевая кровля кликфальц
Отопление
2 варианта
Площадь дома
115 м2
Площадь застройки
140 м2
Подвальное помещение
Нет
Показатель компактности здания
-
Приборы учета тепловой энергии
Нет
Пристроенный гараж/крытая автостоянка
Нет
Противопожарная система
Нет
Санузлы
2
Совмещенная кухня-гостиная
Да
Спальни
4
Терраса
Да
Тип фундамента
Свайно-винтовой
Тип кровли
Двускатная
Толщина внешних стен
300 мм
Толщина внутренних перегородок
100 мм
Улучшенные шумовые характеристики
Нет
Вентиляция
Принудительная
Веранда
Нет
Водоотведение
2 варианта
Водоснабжение
2 варианта
Высота дома
6 м
Высота потолков
4 м

Планировка

Фасад дома

Александр

Закажите выезд инженера

Александр

Выездной инженер
Закажите выезд инженера для точной диагностики и профессиональной консультации по инженерным системам. Специалист приедет в удобное время, проведёт осмотр, рассчитает стоимость работ и подберёт оптимальные решения для вашего дома.


    Похожие проекты

    Ипотека и
    рассрочка
    Шолохова
    Стоимость от:
    4 514 400
    Проект от: 27 000
    Этажей 1
    Санузлы 1
    Спальни 3
    Смотреть
    Ипотека и
    рассрочка
    Барн Хаус 63
    Стоимость от:
    4 739 460
    Проект от: 28 350
    Этажей 1
    Санузлы 1
    Спальни 2
    Смотреть
    Ипотека и
    рассрочка
    Одноэтажный дом Trend 126
    Стоимость от:
    7 027 020
    Проект от: 56 700
    Этажей 1
    Санузлы 2
    Спальни 4
    Смотреть
    Ипотека и
    рассрочка
    Загородный дом Берлин
    Стоимость от:
    3 362 260
    Проект от: 26 100
    Этажей 1
    Санузлы 1
    Спальни 1
    Смотреть
    Ипотека и
    рассрочка
    Жилой дом Уют 1.0
    Стоимость от:
    11 396 320
    Проект от: 68 400
    Этажей 3
    Санузлы 1
    Спальни 3
    Смотреть
    Ипотека и
    рассрочка
    Одноэтажный дом из газобетона WG-157
    Стоимость от:
    9 533 700
    Проект от: 60 750
    Этажей 1
    Санузлы 2
    Спальни 4
    Смотреть

    Как узнать стоимость дома

    back
    Оставляете заявку
    Вы заполняете форму на сайте или звоните нам. Менеджер Лайвкрафт связывается с вами для уточнения деталей: тип дома, площадь, материалы, участок строительства.
    back
    Консультация и подбор решения
    Наш специалист помогает выбрать оптимальный тип дома и конструкцию с учётом бюджета, сроков и целей — будь то дом для постоянного проживания или дача.
    back
    Расчёт предварительной стоимости
    Инженер делает первичный расчёт стоимости строительства по вашим параметрам: фундамент, коробка, кровля, отделка. Вы получаете смету с разбивкой по этапам.
    back
    Корректировка и утверждение сметы
    При необходимости вносим изменения — например, замену материалов или сокращение этапов. После согласования формируется окончательная фиксированная смета.
    back
    Заключение договора и старт работ
    После утверждения сметы заключаем официальный договор с гарантией. Вы получаете прозрачный график и точную стоимость — без скрытых расходов.

    Заказать конусльтацию по:Двухэтажный дом «Касабланка»

    Фото 1 Двухэтажный дом «Касабланка»


      Наши
      контакты

      Дмитров
      Опорный проезд 28Б
      (индустриальный парк Ниагара)
      9:00 до 18:00