4.9
Рейтинг на основании 120 отзывов
Дмитров
Опорный проезд 28Б
(индустриальный парк Ниагара)
Бренд "Дмитров-Дело" c 2008 года на рынке строительства в Дмитрове
Звоните 9:00 до 18:00 8 (915) 055-33-61
Бренд "Дмитров-Дело" c 2008 года на рынке строительства в Дмитрове

Barnhouse 13х13

Стоимость проекта от:
60 750 ₽
Стоимость строительства от:
7 506 675 ₽
Артикул ART-12359
Дата 25.12.2025
Архитектурный стиль Барнхаус
Количество надземных этажей 1
Круглогодичное проживание Да
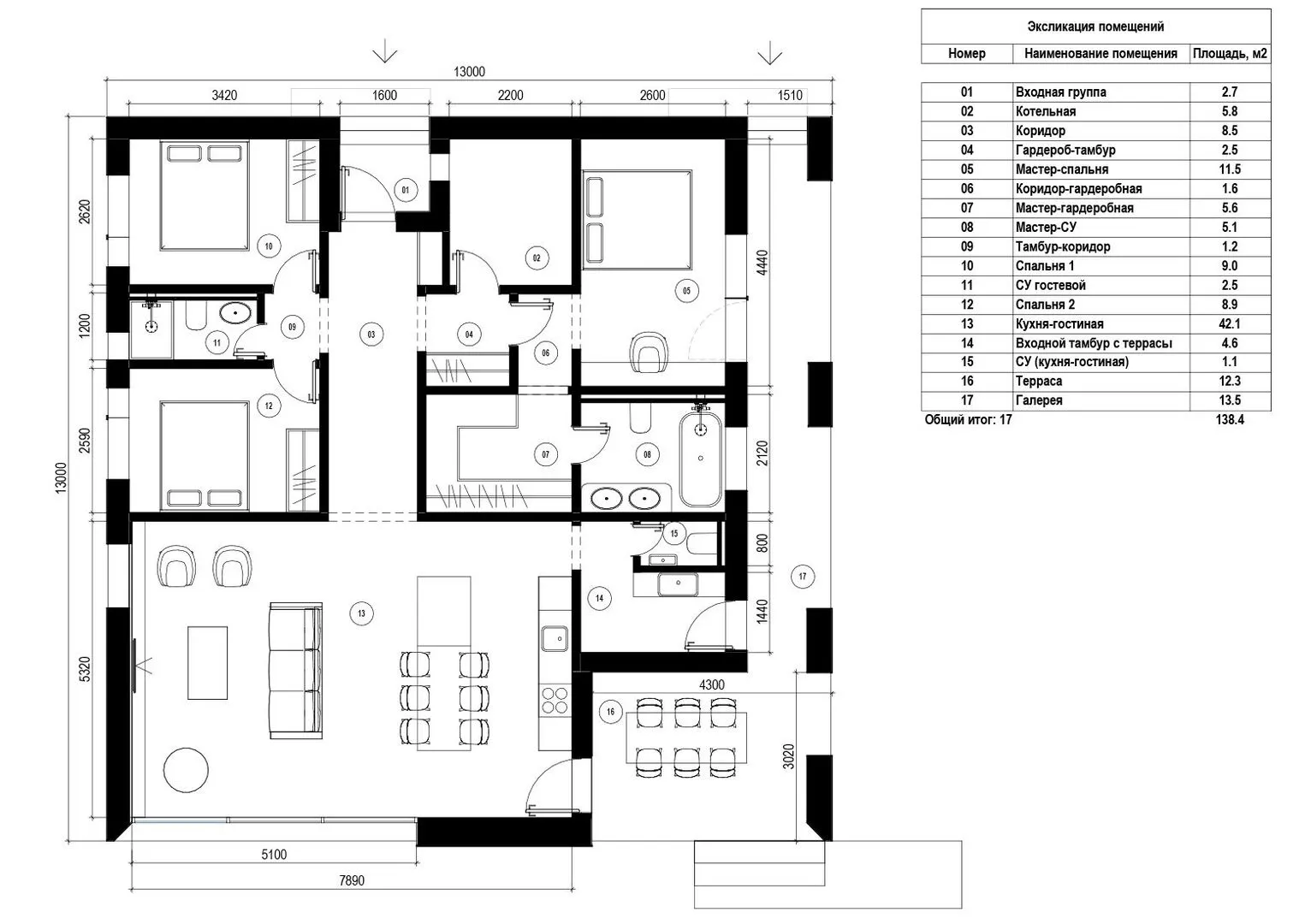
Площадь дома 135 м2
Санузлы 3
Спальни 3

Описание

Уютный уголок, где природа становится соседом, а душевный комфорт – вторым домом. Barnhouse 13 × 13 – это единственное надземное помещение, которое раскрывает всё пространство, даря широкие окна с панорамным видом на зелёные просторы. Квартиры здесь созданы для круглогодичного проживания: утепленные деревянные стены и качественная двухскатная крыша гарантируют тепло и тихий сон даже в зимнее время. Каждый метр здесь используется рационально и вкусно: от яркого солнечного двора до тихой тени, которую создаёт обширная терраса, где можно проводить уютные вечера, наблюдая закат за открытым небом. Стиль Barnhouse – это воплощение гармонии с природой: натуральный дерево, простые линии и функциональная планировка создают атмосферу спокойствия и вдохновения. Нет лишних балконов, веранд или чердачных помещений – всё, что нужно, тут уже. Отдельный гараж отсутствует, но это даёт больше свободы в планировке – можно превратить свободную площадь в сад, игровую зону или просторный хозовоконц. Здесь каждая деталь продумана для того, чтобы вам не пришлось искать компромиссы: от уютного гостевого уголка до приватного рабочего пространства, вы всегда будете чувствовать, что находитесь в своём личном убежище. Если мечтаете об уютном доме, где каждая комната ощущается как часть единого целого, а связь с природой становится естественной частью дня – Barnhouse 13 × 13 приглашает вас открыть дверь в новую главу вашего жизненного пути. Это дом, в котором вам не нужно искать компромиссы между комфортом и функциональностью: всё уже соединено и готово к жизни!

Характеристики дома

Архитектурный стиль
Барнхаус
Автоматизированное регулирование параметров теплоносителя
Нет
Балконы/лоджии
Отсутствуют
Чердачное помещение
Нет
Датчики протечки воды
Нет
Эксплуатируемая или зеленая кровля
Нет
Электроснабжение
Индивидуальное
Газоснабжение
Индивидуальное
Изоляция воздушного шума
Нет
Камин
Нет
Класс энергоэффективности
A
Класс энергосбережения
A
Количество надземных этажей
1
Круглогодичное проживание
Да
Материал кровли
Металлические листовые гофрированные профили
Материал перекрытий
Деревянные
Материал внешних стен
Деревянные каркасные
Материал внутренних перегородок
Гипсокартонные
Модульное строительство с конструкциями заводского изготовления
Нет
Объем надземной части
500 м3
Основной материал фасадов
Дерево
Отопление
Индивидуальное
Площадь дома
135 м2
Площадь застройки
169 м2
Подвальное помещение
Нет
Показатель компактности здания
0.99
Приборы учета тепловой энергии
Нет
Пристроенный гараж/крытая автостоянка
Нет
Противопожарная система
Нет
Санузлы
3
Совмещенная кухня-гостиная
Да
Спальни
3
Терраса
Да
Тип фундамента
Свайно-винтовой
Тип кровли
Двускатная
Толщина внешних стен
300 мм
Толщина внутренних перегородок
150 мм
Улучшенные шумовые характеристики
Нет
Вентиляция
Естественная
Веранда
Нет
Водоотведение
Локальные очистные сооружения
Водоснабжение
Индивидуальное
Высота дома
5.3 м
Высота потолков
4 м

Планировка

Фасад дома

Александр

Закажите выезд инженера

Александр

Выездной инженер
Закажите выезд инженера для точной диагностики и профессиональной консультации по инженерным системам. Специалист приедет в удобное время, проведёт осмотр, рассчитает стоимость работ и подберёт оптимальные решения для вашего дома.


    Похожие проекты

    Ипотека и
    рассрочка
    Уютный дом с двумя спальнями и студией
    Стоимость от:
    7 815 280
    Проект от: 46 800
    Этажей 1
    Санузлы 2
    Спальни 2
    Смотреть
    Ипотека и
    рассрочка
    Проект дома КС-16
    Стоимость от:
    7 165 400
    Проект от: 40 500
    Этажей 1
    Санузлы 2
    Спальни 3
    Смотреть
    Ипотека и
    рассрочка
    КАРКАСНЫЙ ДОМ 11.5Х8. ПРОЕКТ «ДК-28»
    Стоимость от:
    7 005 660
    Проект от: 52 650
    Этажей 2
    Санузлы 2
    Спальни 4
    Смотреть
    Ипотека и
    рассрочка
    Кода-73
    Стоимость от:
    3 935 140
    Проект от: 27 900
    Этажей 1
    Санузлы 1
    Спальни 2
    Смотреть
    Ипотека и
    рассрочка
    Леви-Р
    Стоимость от:
    5 449 180
    Проект от: 42 300
    Этажей 1
    Санузлы 1
    Спальни 3
    Смотреть
    Ипотека и
    рассрочка
    208-П
    Стоимость от:
    14 710 300
    Проект от: 96 750
    Этажей 1
    Санузлы 3
    Спальни 4
    Смотреть

    Как узнать стоимость дома

    back
    Оставляете заявку
    Вы заполняете форму на сайте или звоните нам. Менеджер Лайвкрафт связывается с вами для уточнения деталей: тип дома, площадь, материалы, участок строительства.
    back
    Консультация и подбор решения
    Наш специалист помогает выбрать оптимальный тип дома и конструкцию с учётом бюджета, сроков и целей — будь то дом для постоянного проживания или дача.
    back
    Расчёт предварительной стоимости
    Инженер делает первичный расчёт стоимости строительства по вашим параметрам: фундамент, коробка, кровля, отделка. Вы получаете смету с разбивкой по этапам.
    back
    Корректировка и утверждение сметы
    При необходимости вносим изменения — например, замену материалов или сокращение этапов. После согласования формируется окончательная фиксированная смета.
    back
    Заключение договора и старт работ
    После утверждения сметы заключаем официальный договор с гарантией. Вы получаете прозрачный график и точную стоимость — без скрытых расходов.

    Заказать конусльтацию по:Barnhouse 13х13

    Фото 1 Barnhouse 13х13


      Наши
      контакты

      Дмитров
      Опорный проезд 28Б
      (индустриальный парк Ниагара)
      9:00 до 18:00