4.9
Рейтинг на основании 120 отзывов
Дмитров
Опорный проезд 28Б
(индустриальный парк Ниагара)
Бренд "Дмитров-Дело" c 2008 года на рынке строительства в Дмитрове
Звоните 9:00 до 18:00 8 (915) 055-33-61
Бренд "Дмитров-Дело" c 2008 года на рынке строительства в Дмитрове

Classic 13

Стоимость проекта от:
41 850 ₽
БЕСПЛАТНО! ПРИ ЗАКАЗЕ СТРОИТЕЛЬСТВА
Стоимость строительства от:
6 990 060 ₽
Артикул ART-18280
Дата 26.12.2025
Архитектурный стиль Классический
Количество надземных этажей 1
Круглогодичное проживание Да
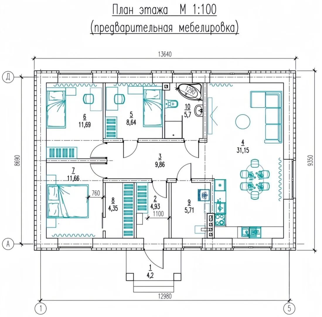
Площадь дома 93 м2
Санузлы 1
Спальни 3

Описание

Добро пожаловать в «Classic 13» — уютную и элегантную 1‑этажную резиденцию, созданную для тех, кто ценит классику и комфорт. Дом из керамзитобетонных блоков отличается стройной и надёжной конструкцией, придающей структуре долговечность и теплоизоляцию. Четырёхскатная (вальмовая) крыша с аккуратной линией добавляет архитектурному обрамлению лёгкости и изысканности. Такое сочетание материалов и дизайна создаёт атмосферу спокойствия и надёжности, как в традиционной усадьбе, но с современным уровнем комфорта. «Classic 13» — это идеальное решение для круглогодичного проживания. Просторный внутренний план без лишних излишних деталей позволяет гибко распределять пространство под нужды любой семьи: от уютной гостиной в центре, где тихий свет льётся через большие окна, до тихой спальни с удобной площадкой под кровать. Внутри дома ощущается тепло, словно с каждым днём вы будете впитывать солнечные лучи, которые мягко наполняют каждый уголок. При этом отсутствие балконов, веранд и других открытых придатков упрощает обслуживание и гарантирует спокойный, защищённый внутренний климат. В «Classic 13» каждая деталь продумана: простые, но элегантные линии придают дому благородный вид, а высококачественные строительные материалы обеспечивают тепло и звукоизоляцию на высоком уровне. Этот дом станет вашим личным уголком тепла и уюта, где традиции встречаются с современным комфортом, а каждый прожитый здесь день будет сопровождаться тихим шёпотом классической архитектуры. Если вы ищете дом, где ценят качество, простоту и неповторимый стиль, «Classic 13» — ваш идеальный выбор.

Характеристики дома

Архитектурный стиль
Автоматизированное регулирование параметров теплоносителя
Нет
Балконы/лоджии
Отсутствуют
Чердачное помещение
Нет
Датчики протечки воды
Нет
Эксплуатируемая или зеленая кровля
Нет
Электроснабжение
Центральное
Газоснабжение
Не предусмотрено
Изоляция воздушного шума
Нет
Камин
Нет
Класс энергоэффективности
-
Класс энергосбережения
-
Количество надземных этажей
1
Круглогодичное проживание
Да
Материал кровли
Металлочерепица
Материал перекрытий
Деревянные
Материал внешних стен
Материал внутренних перегородок
Блочные
Модульное строительство с конструкциями заводского изготовления
Нет
Объем надземной части
281 м3
Основной материал фасадов
Облицовочный кирпич
Отопление
Индивидуальное
Площадь дома
93 м2
Площадь застройки
127 м2
Подвальное помещение
Нет
Показатель компактности здания
-
Приборы учета тепловой энергии
Нет
Пристроенный гараж/крытая автостоянка
Нет
Противопожарная система
Нет
Санузлы
1
Совмещенная кухня-гостиная
Да
Спальни
3
Терраса
Нет
Тип фундамента
Свайно-ростверковый
Толщина внешних стен
600 мм
Толщина внутренних перегородок
120 мм
Улучшенные шумовые характеристики
Нет
Вентиляция
2 варианта
Веранда
Нет
Водоотведение
Локальные очистные сооружения
Водоснабжение
Центральное
Высота дома
5.28 м
Высота потолков
3 м

Планировка

Фасад дома

Александр

Закажите выезд инженера

Александр

Выездной инженер
Закажите выезд инженера для точной диагностики и профессиональной консультации по инженерным системам. Специалист приедет в удобное время, проведёт осмотр, рассчитает стоимость работ и подберёт оптимальные решения для вашего дома.


    Похожие проекты

    Ипотека и
    рассрочка
    А 85
    Стоимость от:
    5 815 700
    Проект от: 38 250
    Этажей 1
    Санузлы 1
    Спальни 3
    Смотреть
    Ипотека и
    рассрочка
    Дом из клееного бруса «Судак»
    Стоимость от:
    23 047 440
    Проект от: 160 200
    Этажей 2
    Санузлы 4
    Спальни 5
    Смотреть
    Ипотека и
    рассрочка
    Рио
    Стоимость от:
    6 862 240
    Проект от: 50 400
    Этажей 1
    Санузлы 1
    Спальни 3
    Смотреть
    Ипотека и
    рассрочка
    Дом из клееного бруса «Горица»
    Стоимость от:
    9 711 000
    Проект от: 67 500
    Этажей 2
    Санузлы 2
    Спальни 6
    Смотреть
    Ипотека и
    рассрочка
    Плаза
    Стоимость от:
    3 988 215
    Проект от: 28 350
    Этажей 1
    Санузлы 1
    Спальни 2
    Смотреть
    Ипотека и
    рассрочка
    Коттедж Т-образной формы S3-166-6 (Z190)
    Стоимость от:
    12 407 120
    Проект от: 70 200
    Этажей 1
    Санузлы 2
    Спальни 3
    Смотреть

    Как узнать стоимость дома

    back
    Оставляете заявку
    Вы заполняете форму на сайте или звоните нам. Менеджер Лайвкрафт связывается с вами для уточнения деталей: тип дома, площадь, материалы, участок строительства.
    back
    Консультация и подбор решения
    Наш специалист помогает выбрать оптимальный тип дома и конструкцию с учётом бюджета, сроков и целей — будь то дом для постоянного проживания или дача.
    back
    Расчёт предварительной стоимости
    Инженер делает первичный расчёт стоимости строительства по вашим параметрам: фундамент, коробка, кровля, отделка. Вы получаете смету с разбивкой по этапам.
    back
    Корректировка и утверждение сметы
    При необходимости вносим изменения — например, замену материалов или сокращение этапов. После согласования формируется окончательная фиксированная смета.
    back
    Заключение договора и старт работ
    После утверждения сметы заключаем официальный договор с гарантией. Вы получаете прозрачный график и точную стоимость — без скрытых расходов.

    Заказать конусльтацию по:Classic 13

    Фото 1 Classic 13


      Наши
      контакты

      Дмитров
      Опорный проезд 28Б
      (индустриальный парк Ниагара)
      9:00 до 18:00

      Корзина