4.9
Рейтинг на основании 120 отзывов
Дмитров
Опорный проезд 28Б
(индустриальный парк Ниагара)
Бренд "Дмитров-Дело" c 2008 года на рынке строительства в Дмитрове
Звоните 9:00 до 18:00 8 (915) 055-33-61
Бренд "Дмитров-Дело" c 2008 года на рынке строительства в Дмитрове

CUBA 70 — Модульный дом под ключ

Стоимость проекта от:
40 050 ₽
БЕСПЛАТНО! ПРИ ЗАКАЗЕ СТРОИТЕЛЬСТВА
Стоимость строительства от:
4 963 530 ₽
Артикул ART-13768
Дата 25.12.2025
Архитектурный стиль Минимализм
Количество надземных этажей 1
Круглогодичное проживание Да
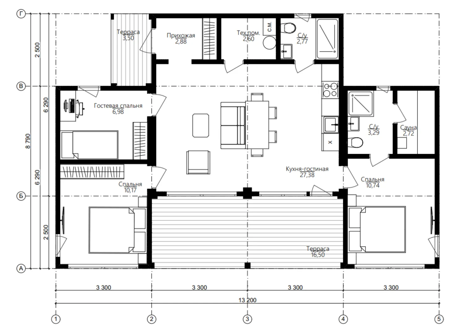
Площадь дома 89 м2
Санузлы 2
Спальни 3

Описание

CUBA 70 – это модульный дом под ключ, созданный для тех, кто ценит простоту, функциональность и комфорт круглый год. Один надземный этаж, открывающий просторную и светлую планировку, выполнена в лаконичном минималистском стиле, который мгновенно привносит в дом ощущение современного уюта. Благодаря высококачественным материалам и современным технологиям строительства, CUBA 70 гарантирует надежность и экономичность эксплуатации, а также минимальные затраты на обслуживание. Дом облекается в элегантный деревянный каркас, который подчёркивает природную теплоту и одновременно обеспечивает превосходную звуко- и теплоизоляцию. Плоская крыша не только придаёт строгую, современную геометрию, но и позволяет в любой момент превратить пространство под крышей в уютное дополнительное помещение или просто использовать как солнечную поляну на свежем воздухе. Вместо традиционных балконов и веранд на CUBA 70 предусмотрена просторная терраса – идеальное место для летних барбекю, уединённых чтений или игр с детьми. Без лишних роскошь – без пристроенных гаражей, чердачных помещений и громоздких лоджий. Всё, что нужно, уже собрано в одном удобном доме: простая, но функциональная планировка, высокая энергоэффективность и возможность быстро переехать в новую жизнь. CUBA 70 создает гармонию между природой и современными технологиями, оставаясь в приоритете тех, кто ищет свой настоящий дом, готовый встречать гостей в любое время года.

Характеристики дома

Архитектурный стиль
Автоматизированное регулирование параметров теплоносителя
Да
Балконы/лоджии
Отсутствуют
Чердачное помещение
Нет
Датчики протечки воды
Да
Эксплуатируемая или зеленая кровля
Нет
Электроснабжение
2 варианта
Газоснабжение
Не предусмотрено
Изоляция воздушного шума
Да
Камин
Нет
Класс энергоэффективности
-
Класс энергосбережения
-
Количество надземных этажей
1
Круглогодичное проживание
Да
Материал кровли
Металлические рулонные или листовые материалы
Материал перекрытий
Деревянные
Материал внешних стен
Материал внутренних перегородок
Деревянные
Модульное строительство с конструкциями заводского изготовления
Нет
Объем надземной части
100 м3
Основной материал фасадов
Дерево
Отопление
Индивидуальное
Площадь дома
89 м2
Площадь застройки
100 м2
Подвальное помещение
Нет
Показатель компактности здания
-
Приборы учета тепловой энергии
Да
Пристроенный гараж/крытая автостоянка
Нет
Противопожарная система
Нет
Санузлы
2
Совмещенная кухня-гостиная
Да
Спальни
3
Терраса
Да
Тип фундамента
Свайный
Тип кровли
Толщина внешних стен
145 мм
Толщина внутренних перегородок
145 мм
Улучшенные шумовые характеристики
Да
Вентиляция
Рекуперация
Веранда
Нет
Водоотведение
2 варианта
Водоснабжение
2 варианта
Высота дома
3.9 м
Высота потолков
2.7 м

Планировка

Фасад дома

Александр

Закажите выезд инженера

Александр

Выездной инженер
Закажите выезд инженера для точной диагностики и профессиональной консультации по инженерным системам. Специалист приедет в удобное время, проведёт осмотр, рассчитает стоимость работ и подберёт оптимальные решения для вашего дома.


    Похожие проекты

    Ипотека и
    рассрочка
    ЭС-44
    Стоимость от:
    7 006 560
    Проект от: 39 600
    Этажей 1
    Санузлы 2
    Спальни 3
    Смотреть
    Ипотека и
    рассрочка
    FORMEHOUSE 118
    Стоимость от:
    8 073 560
    Проект от: 53 100
    Этажей 1
    Санузлы 2
    Спальни 3
    Смотреть
    Ипотека и
    рассрочка
    Садовод 7,5х8 Барн П2
    Стоимость от:
    3 410 495
    Проект от: 26 550
    Этажей 1
    Санузлы 1
    Спальни 2
    Смотреть
    Ипотека и
    рассрочка
    Двухэтажный дом СМ-23
    Стоимость от:
    11 961 600
    Проект от: 72 000
    Этажей 2
    Санузлы 3
    Спальни 4
    Смотреть
    Ипотека и
    рассрочка
    Одноэтажный загородный дом «ИРБИС»
    Стоимость от:
    3 238 565
    Проект от: 23 850
    Этажей 1
    Санузлы 2
    Спальни 2
    Смотреть
    Ипотека и
    рассрочка
    Одноэтажный дом СЕ-3
    Стоимость от:
    7 971 260
    Проект от: 46 350
    Этажей 1
    Санузлы 1
    Спальни 3
    Смотреть

    Как узнать стоимость дома

    back
    Оставляете заявку
    Вы заполняете форму на сайте или звоните нам. Менеджер Лайвкрафт связывается с вами для уточнения деталей: тип дома, площадь, материалы, участок строительства.
    back
    Консультация и подбор решения
    Наш специалист помогает выбрать оптимальный тип дома и конструкцию с учётом бюджета, сроков и целей — будь то дом для постоянного проживания или дача.
    back
    Расчёт предварительной стоимости
    Инженер делает первичный расчёт стоимости строительства по вашим параметрам: фундамент, коробка, кровля, отделка. Вы получаете смету с разбивкой по этапам.
    back
    Корректировка и утверждение сметы
    При необходимости вносим изменения — например, замену материалов или сокращение этапов. После согласования формируется окончательная фиксированная смета.
    back
    Заключение договора и старт работ
    После утверждения сметы заключаем официальный договор с гарантией. Вы получаете прозрачный график и точную стоимость — без скрытых расходов.

    Заказать конусльтацию по:CUBA 70 — Модульный дом под ключ

    Фото 1 CUBA 70 — Модульный дом под ключ


      Наши
      контакты

      Дмитров
      Опорный проезд 28Б
      (индустриальный парк Ниагара)
      9:00 до 18:00

      Корзина