4.9
Рейтинг на основании 120 отзывов
Дмитров
Опорный проезд 28Б
(индустриальный парк Ниагара)
Бренд "Дмитров-Дело" c 2008 года на рынке строительства в Дмитрове
Звоните 9:00 до 18:00 8 (915) 055-33-61
Бренд "Дмитров-Дело" c 2008 года на рынке строительства в Дмитрове

D192-1

Стоимость проекта от:
52 200 ₽
БЕСПЛАТНО! ПРИ ЗАКАЗЕ СТРОИТЕЛЬСТВА
Стоимость строительства от:
7 822 320 ₽
Артикул ART-10514
Дата 25.12.2025
Архитектурный стиль Классический
Количество надземных этажей 1
Круглогодичное проживание Да
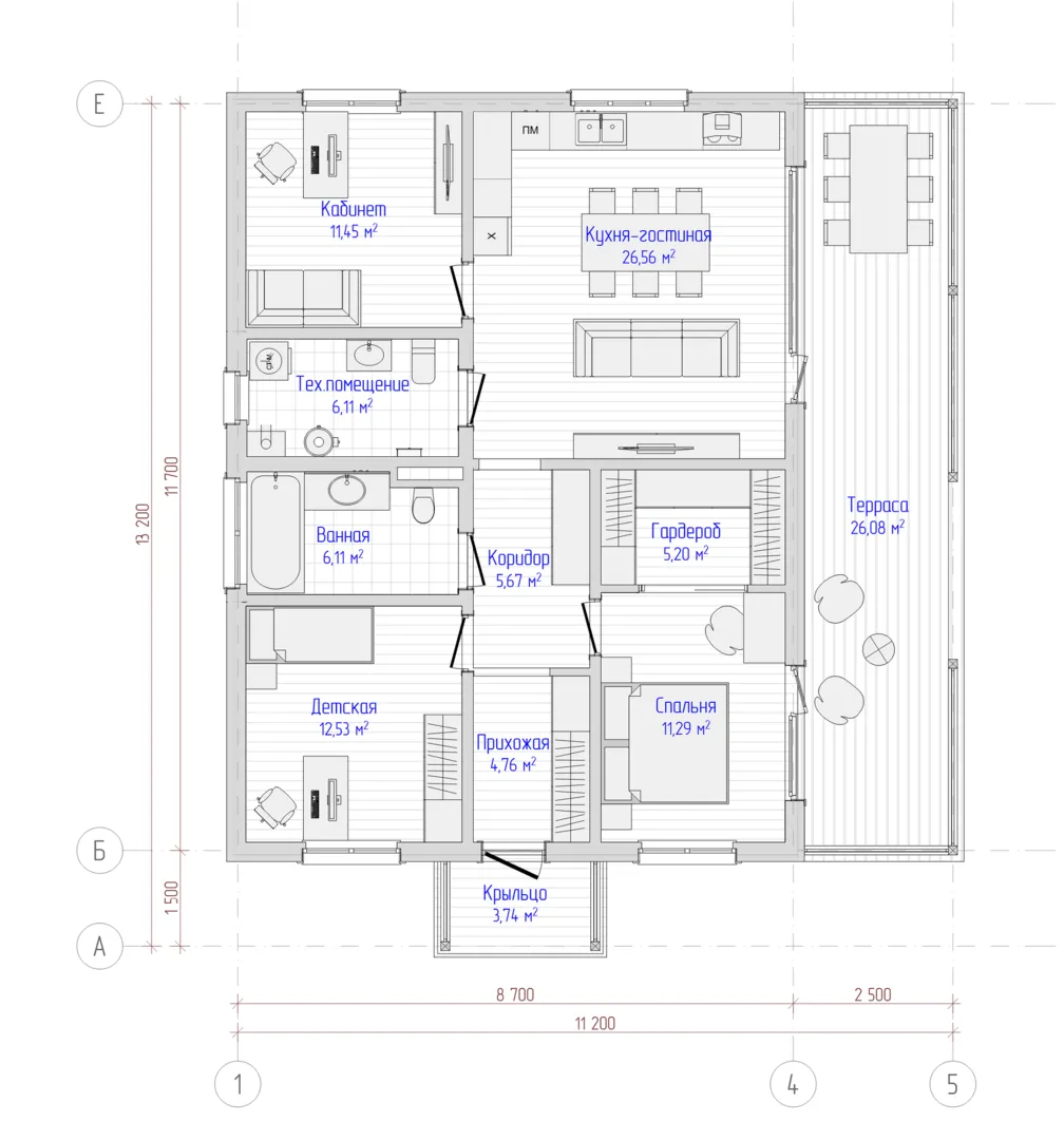
Площадь дома 116 м2
Санузлы 1
Спальни 2

Описание

**Добро пожаловать в D192‑1 – ваш кусочек спокойствия, где классицизм встречается с уютом современного комфорта.** Эта изящная однокомнатная резиденция, выполненная в традиционном классическом стиле, обладает тонкой гармонией между деревом и светом. Внутри вас встретит тёплый, открытый план, где мягкое освещение и натуральные материалы создают атмосферу домашнего уюта. Готический два‑скатный шатер над крышей подчёркивает элегантность фасада и придаёт дому неповторимый шарм, усиливая чувство благого дома. **Каждый элемент дома продуман для вашего комфорта и спокойствия.** Однокомнатный план идеален как для спокойной семейной жизни, так и для работы из дома. Круглогодичное проживание становится возможным благодаря качественной теплоизоляции и современной системе отопления, которая гарантирует тепло даже в самые холодные зимние дни. Внутреннее пространство удобно разделено на зоны: гостям обеспечено просторное и уютное место для отдыха, а рабочий уголок создаёт идеальные условия для продуктивной работы. **Непревзойдённый простор на открытом воздухе.** Большая терраса с наружным доступом превращает ваш дом в настоящий оазис. Здесь можно наслаждаться вечерними закатами, устроить дружеские посиделки с чашкой кофе или даже провести романтический ужин под звёздами. В деревенском окружении тишина и спокойствие делают эту террасу лучшим местом для восстановления гармонии и вдохновения. D192‑1 – это не просто дом, это ваш личный убежище, где классика, комфорт и природа сливаются в одной гармоничной мелодии. Создайте свой идеальный дом уже сегодня!

Характеристики дома

Архитектурный стиль
Автоматизированное регулирование параметров теплоносителя
Нет
Балконы/лоджии
Отсутствуют
Чердачное помещение
Нет
Датчики протечки воды
Нет
Эксплуатируемая или зеленая кровля
Нет
Электроснабжение
Индивидуальное
Газоснабжение
Индивидуальное
Изоляция воздушного шума
Нет
Камин
Нет
Класс энергоэффективности
-
Класс энергосбережения
-
Количество надземных этажей
1
Круглогодичное проживание
Да
Материал кровли
Битумная черепица
Материал перекрытий
Деревянные
Материал внешних стен
Материал внутренних перегородок
Деревянные
Модульное строительство с конструкциями заводского изготовления
Нет
Объем надземной части
-
Основной материал фасадов
Дерево
Отопление
Индивидуальное
Площадь дома
116 м2
Площадь застройки
150 м2
Подвальное помещение
Нет
Показатель компактности здания
-
Приборы учета тепловой энергии
Нет
Пристроенный гараж/крытая автостоянка
Нет
Противопожарная система
Нет
Санузлы
1
Совмещенная кухня-гостиная
Да
Спальни
2
Терраса
Да
Тип фундамента
Свайно-ростверковый
Тип кровли
Толщина внешних стен
250 мм
Толщина внутренних перегородок
150 мм
Улучшенные шумовые характеристики
Нет
Вентиляция
Принудительная
Веранда
Нет
Водоотведение
Локальные очистные сооружения
Водоснабжение
Индивидуальное
Высота дома
-
Высота потолков
2.7 м

Планировка

Фасад дома

Александр

Закажите выезд инженера

Александр

Выездной инженер
Закажите выезд инженера для точной диагностики и профессиональной консультации по инженерным системам. Специалист приедет в удобное время, проведёт осмотр, рассчитает стоимость работ и подберёт оптимальные решения для вашего дома.


    Похожие проекты

    Ипотека и
    рассрочка
    Одноэтажный жилой дом Уровень-90
    Стоимость от:
    7 165 400
    Проект от: 40 500
    Этажей 1
    Санузлы 1
    Спальни 3
    Смотреть
    Ипотека и
    рассрочка
    Каменный одноэтажный дом ДГ-10
    Стоимость от:
    8 436 120
    Проект от: 47 700
    Этажей 1
    Санузлы 2
    Спальни 3
    Смотреть
    Ипотека и
    рассрочка
    Одноэтажный дом c облицовкой кирпичом S-106
    Стоимость от:
    9 786 260
    Проект от: 55 350
    Этажей 1
    Санузлы 2
    Спальни 3
    Смотреть
    Ипотека и
    рассрочка
    Загородный дом из клеёного бруса NIKTON
    Стоимость от:
    8 822 330
    Проект от: 62 550
    Этажей 1
    Санузлы 2
    Спальни 3
    Смотреть
    Ипотека и
    рассрочка
    Жилой дом Ленстер
    Стоимость от:
    6 725 880
    Проект от: 45 900
    Этажей 2
    Санузлы 2
    Спальни 5
    Смотреть
    Ипотека и
    рассрочка
    ШР № 1
    Стоимость от:
    5 489 660
    Проект от: 32 850
    Этажей 1
    Санузлы 1
    Спальни 3
    Смотреть

    Как узнать стоимость дома

    back
    Оставляете заявку
    Вы заполняете форму на сайте или звоните нам. Менеджер Лайвкрафт связывается с вами для уточнения деталей: тип дома, площадь, материалы, участок строительства.
    back
    Консультация и подбор решения
    Наш специалист помогает выбрать оптимальный тип дома и конструкцию с учётом бюджета, сроков и целей — будь то дом для постоянного проживания или дача.
    back
    Расчёт предварительной стоимости
    Инженер делает первичный расчёт стоимости строительства по вашим параметрам: фундамент, коробка, кровля, отделка. Вы получаете смету с разбивкой по этапам.
    back
    Корректировка и утверждение сметы
    При необходимости вносим изменения — например, замену материалов или сокращение этапов. После согласования формируется окончательная фиксированная смета.
    back
    Заключение договора и старт работ
    После утверждения сметы заключаем официальный договор с гарантией. Вы получаете прозрачный график и точную стоимость — без скрытых расходов.

    Заказать конусльтацию по:D192-1

    Фото 1 D192-1


      Наши
      контакты

      Дмитров
      Опорный проезд 28Б
      (индустриальный парк Ниагара)
      9:00 до 18:00

      Корзина