4.9
Рейтинг на основании 120 отзывов
Дмитров
Опорный проезд 28Б
(индустриальный парк Ниагара)
Бренд "Дмитров-Дело" c 2008 года на рынке строительства в Дмитрове
Звоните 9:00 до 18:00 8 (915) 055-33-61
Бренд "Дмитров-Дело" c 2008 года на рынке строительства в Дмитрове

Душоново

Стоимость проекта от:
21 600 ₽
БЕСПЛАТНО! ПРИ ЗАКАЗЕ СТРОИТЕЛЬСТВА
Стоимость строительства от:
2 782 560 ₽
Артикул ART-11821
Дата 25.12.2025
Архитектурный стиль Скандинавский
Количество надземных этажей 1
Круглогодичное проживание Да
Площадь дома 48 м2
Санузлы 1
Спальни 2

Описание

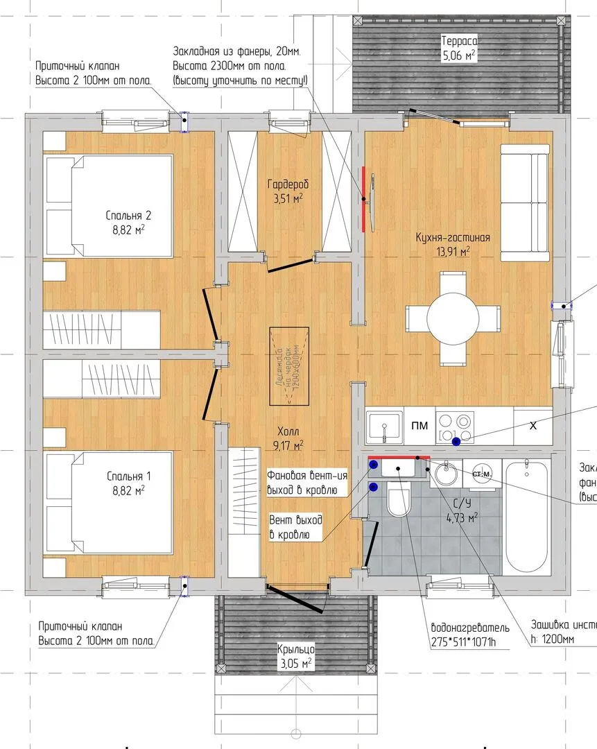
В самом сердце живописных окрестностей «Душоново» раскрывается единственный под крышей дом, который словно приглашает к уютным минутам в круглом году. Кровля, выполненная в классическом гable‑стиле, создаёт тёплый, защищённый уголок, а деревянный каркас наружных стен пропитан натуральным теплом и атмосферой уюта. Зеркальное сочетание строгих линий скандинавского дизайна с природными материалами делает интерьер современным, но одновременно домашним и гармоничным – здесь каждый сантиметр наполнен вниманием к деталям. Одноэтажная планировка избавляет от лишнего шума лестниц, а светлые, просторные комнаты, обрамлённые большими окнами, пропускают мягкий солнечный свет, создавая чувство простора в любом уголке. Чердачное пространство, легко переоборудуемое как домашний офис, библиотека или игровая зона, добавляет гибкости и стиля в жизнь. Вечером же вы сможете наслаждаться спокойной атмосферой на тихой террасе, где можно устроить ужин на открытом воздухе, под шум ветвей деревьев и звуки ночной природы. В «Душоново» отсутствуют балконы, лоджии и веранда, что подчёркивает чистые, беззагорода́ные линии скандинавского фасада и позволяет полностью сосредоточиться на качественной жизни внутри дома. Не требуя прицепного гаража, он приглашает насладиться свободой открытых пространств. Этот дом – идеальное сочетание современности, комфорта и природы, готовый стать вашим личным убежищем в любой мандарной и прохладной погоде.

Характеристики дома

Архитектурный стиль
Автоматизированное регулирование параметров теплоносителя
Нет
Балконы/лоджии
Отсутствуют
Чердачное помещение
Да
Датчики протечки воды
Нет
Эксплуатируемая или зеленая кровля
Нет
Электроснабжение
Не предусмотрено
Газоснабжение
Не предусмотрено
Изоляция воздушного шума
Да
Камин
Нет
Класс энергоэффективности
-
Класс энергосбережения
-
Количество надземных этажей
1
Круглогодичное проживание
Да
Материал кровли
Металлочерепица
Материал перекрытий
Деревянные
Материал внешних стен
Материал внутренних перегородок
Деревянные
Модульное строительство с конструкциями заводского изготовления
Нет
Объем надземной части
211 м3
Основной материал фасадов
Фасадная плитка
Отопление
Не предусмотрено
Площадь дома
48 м2
Площадь застройки
57 м2
Подвальное помещение
Нет
Показатель компактности здания
-
Приборы учета тепловой энергии
Нет
Пристроенный гараж/крытая автостоянка
Нет
Противопожарная система
Нет
Санузлы
1
Совмещенная кухня-гостиная
Да
Спальни
2
Терраса
Да
Тип фундамента
Свайный
Тип кровли
Толщина внешних стен
276 мм
Толщина внутренних перегородок
206 мм
Улучшенные шумовые характеристики
Да
Вентиляция
Естественная
Веранда
Нет
Водоотведение
Не предусмотрено
Водоснабжение
Не предусмотрено
Высота дома
4.61 м
Высота потолков
2.63 м

Планировка

Фасад дома

Александр

Закажите выезд инженера

Александр

Выездной инженер
Закажите выезд инженера для точной диагностики и профессиональной консультации по инженерным системам. Специалист приедет в удобное время, проведёт осмотр, рассчитает стоимость работ и подберёт оптимальные решения для вашего дома.


    Похожие проекты

    Ипотека и
    рассрочка
    Д-140
    Стоимость от:
    8 099 520
    Проект от: 53 100
    Этажей 2
    Санузлы 2
    Спальни 4
    Смотреть
    Ипотека и
    рассрочка
    Проект дома КС-26
    Стоимость от:
    8 992 060
    Проект от: 50 850
    Этажей 1
    Санузлы 2
    Спальни 4
    Смотреть
    Ипотека и
    рассрочка
    Одноэтажный дом «BLOSSOM»
    Стоимость от:
    7 890 300
    Проект от: 47 250
    Этажей 1
    Санузлы 2
    Спальни 3
    Смотреть
    Ипотека и
    рассрочка
    Мансардный дом Бавария M
    Стоимость от:
    8 838 240
    Проект от: 63 450
    Этажей 2
    Санузлы 2
    Спальни 4
    Смотреть
    Ипотека и
    рассрочка
    Одноэтажный дом «ФСК 5788»
    Стоимость от:
    7 890 300
    Проект от: 47 250
    Этажей 1
    Санузлы 2
    Спальни 3
    Смотреть
    Ипотека и
    рассрочка
    FIN 128-H
    Стоимость от:
    7 478 130
    Проект от: 58 050
    Этажей 1
    Санузлы 2
    Спальни 3
    Смотреть

    Как узнать стоимость дома

    back
    Оставляете заявку
    Вы заполняете форму на сайте или звоните нам. Менеджер Лайвкрафт связывается с вами для уточнения деталей: тип дома, площадь, материалы, участок строительства.
    back
    Консультация и подбор решения
    Наш специалист помогает выбрать оптимальный тип дома и конструкцию с учётом бюджета, сроков и целей — будь то дом для постоянного проживания или дача.
    back
    Расчёт предварительной стоимости
    Инженер делает первичный расчёт стоимости строительства по вашим параметрам: фундамент, коробка, кровля, отделка. Вы получаете смету с разбивкой по этапам.
    back
    Корректировка и утверждение сметы
    При необходимости вносим изменения — например, замену материалов или сокращение этапов. После согласования формируется окончательная фиксированная смета.
    back
    Заключение договора и старт работ
    После утверждения сметы заключаем официальный договор с гарантией. Вы получаете прозрачный график и точную стоимость — без скрытых расходов.

    Заказать конусльтацию по:Душоново

    Фото 1 Душоново


      Наши
      контакты

      Дмитров
      Опорный проезд 28Б
      (индустриальный парк Ниагара)
      9:00 до 18:00

      Корзина