4.9
Рейтинг на основании 120 отзывов
Дмитров
Опорный проезд 28Б
(индустриальный парк Ниагара)
Бренд "Дмитров-Дело" c 2008 года на рынке строительства в Дмитрове
Звоните 9:00 до 18:00 8 (915) 055-33-61
Бренд "Дмитров-Дело" c 2008 года на рынке строительства в Дмитрове

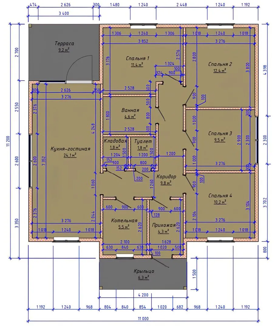
Загородный дом ДК-110

Стоимость проекта от:
42 750 ₽
Стоимость строительства от:
6 013 975 ₽
Артикул ART-6447
Дата 26.12.2025
Архитектурный стиль Классический
Количество надземных этажей 1
Круглогодичное проживание Да
Площадь дома 95 м2
Санузлы 2
Спальни 4

Описание

**Дом «ДК‑110» – ваш уютный уголок у природы** Когда хочется отдохнуть от городской суеты, но не отказывать себе в комфортных условиях, стоит обратить внимание на дом «ДК‑110». Его одноэтажная планировка, выполненная в классическом стиле, позволяет наслаждаться простотой и гармонией круглогодичного проживания. Деревянные SIP‑панели внешних стен не только обеспечивают превосходную теплоизоляцию, но и придают фасаду элегантную, почти «печатную» красоту. Четырехскатная, вальмовая крыша подчёркивает строгую линии и придаёт дому ощущение надёжности и уюта. Внутри «ДК‑110» скроются светлые, просторные комнаты, где каждая деталь продумана под ваши привычки: от уютного уголка чтения до просторной зоны развлечений. Однобалконный дизайн с лоджией приглашает вас открывать окна наружу, а большой террасный участок – к вечерам у огня и весёлым встречам под звёздами. Отдельный чердак превращается в функциональное пространство – будь то кладовая для сезонных предметов или уютная «подземная библиотека». Этот дом – это не просто жильё, а возможность создать свой собственный маленький рай. Приобретая «ДК‑110», вы инвестируете в спокойствие, удобство и эстетическое наслаждение каждым моментом вашего дома. Приглашаем вас открыть дверь в ваш новый, уютный образ жизни!

Характеристики дома

Архитектурный стиль
Классический
Автоматизированное регулирование параметров теплоносителя
-
Балконы/лоджии
1
Чердачное помещение
Да
Датчики протечки воды
-
Эксплуатируемая или зеленая кровля
-
Электроснабжение
Центральное
Газоснабжение
Центральное
Изоляция воздушного шума
-
Камин
Нет
Класс энергоэффективности
-
Класс энергосбережения
-
Количество надземных этажей
1
Круглогодичное проживание
Да
Материал кровли
Металлочерепица
Материал перекрытий
Иной вид материалов перекрытий
Материал внешних стен
SIP-панели
Материал внутренних перегородок
Деревянные
Модульное строительство с конструкциями заводского изготовления
Нет
Объем надземной части
424 м3
Основной материал фасадов
Фасадная плитка
Отопление
Центральное
Площадь дома
95 м2
Площадь застройки
124 м2
Подвальное помещение
Нет
Показатель компактности здания
-
Приборы учета тепловой энергии
-
Пристроенный гараж/крытая автостоянка
Нет
Противопожарная система
Нет
Санузлы
2
Совмещенная кухня-гостиная
Да
Спальни
4
Терраса
Да
Тип фундамента
Свайно-винтовой
Тип кровли
Четырехскатная (вальмовая)
Толщина внешних стен
174 мм
Толщина внутренних перегородок
124 мм
Улучшенные шумовые характеристики
-
Вентиляция
2 варианта
Веранда
Нет
Водоотведение
2 варианта
Водоснабжение
2 варианта
Высота дома
6 м
Высота потолков
2.7 м

Планировка

Фасад дома

Александр

Закажите выезд инженера

Александр

Выездной инженер
Закажите выезд инженера для точной диагностики и профессиональной консультации по инженерным системам. Специалист приедет в удобное время, проведёт осмотр, рассчитает стоимость работ и подберёт оптимальные решения для вашего дома.


    Похожие проекты

    Ипотека и
    рассрочка
    Дом в скандинавском стиле для постоянного проживания «TALO 91»
    Стоимость от:
    6 727 820
    Проект от: 47 700
    Этажей 1
    Санузлы 2
    Спальни 3
    Смотреть
    Ипотека и
    рассрочка
    Индивидуальный жилой дом площадью 99 м2
    Стоимость от:
    7 880 180
    Проект от: 44 550
    Этажей 1
    Санузлы 1
    Спальни 3
    Смотреть
    Ипотека и
    рассрочка
    Одноэтажный дом Fixplans — 1052
    Стоимость от:
    6 991 380
    Проект от: 44 550
    Этажей 1
    Санузлы 2
    Спальни 3
    Смотреть
    Ипотека и
    рассрочка
    Одноэтажный дом FK-98 Мирный
    Стоимость от:
    7 365 160
    Проект от: 44 100
    Этажей 1
    Санузлы 1
    Спальни 2
    Смотреть
    Ипотека и
    рассрочка
    Двухэтажный дом FIXPLANS — 2258
    Стоимость от:
    16 140 240
    Проект от: 103 950
    Этажей 2
    Санузлы 3
    Спальни 3
    Смотреть
    Ипотека и
    рассрочка
    Загородный дом АС-202
    Стоимость от:
    20 183 900
    Проект от: 132 750
    Этажей 1
    Санузлы 2
    Спальни 2
    Смотреть

    Как узнать стоимость дома

    back
    Оставляете заявку
    Вы заполняете форму на сайте или звоните нам. Менеджер Лайвкрафт связывается с вами для уточнения деталей: тип дома, площадь, материалы, участок строительства.
    back
    Консультация и подбор решения
    Наш специалист помогает выбрать оптимальный тип дома и конструкцию с учётом бюджета, сроков и целей — будь то дом для постоянного проживания или дача.
    back
    Расчёт предварительной стоимости
    Инженер делает первичный расчёт стоимости строительства по вашим параметрам: фундамент, коробка, кровля, отделка. Вы получаете смету с разбивкой по этапам.
    back
    Корректировка и утверждение сметы
    При необходимости вносим изменения — например, замену материалов или сокращение этапов. После согласования формируется окончательная фиксированная смета.
    back
    Заключение договора и старт работ
    После утверждения сметы заключаем официальный договор с гарантией. Вы получаете прозрачный график и точную стоимость — без скрытых расходов.

    Заказать конусльтацию по:Загородный дом ДК-110

    Фото 1 Загородный дом ДК-110


      Наши
      контакты

      Дмитров
      Опорный проезд 28Б
      (индустриальный парк Ниагара)
      9:00 до 18:00

      Корзина