4.9
Рейтинг на основании 120 отзывов
Дмитров
Опорный проезд 28Б
(индустриальный парк Ниагара)
Бренд "Дмитров-Дело" c 2008 года на рынке строительства в Дмитрове
Звоните 9:00 до 18:00 8 (915) 055-33-61
Бренд "Дмитров-Дело" c 2008 года на рынке строительства в Дмитрове

Дом BL 15

Стоимость проекта от:
79 650 ₽
БЕСПЛАТНО! ПРИ ЗАКАЗЕ СТРОИТЕЛЬСТВА
Стоимость строительства от:
12 596 880 ₽
Артикул ART-17342
Дата 26.12.2025
Архитектурный стиль Европейский
Количество надземных этажей 2
Круглогодичное проживание Да
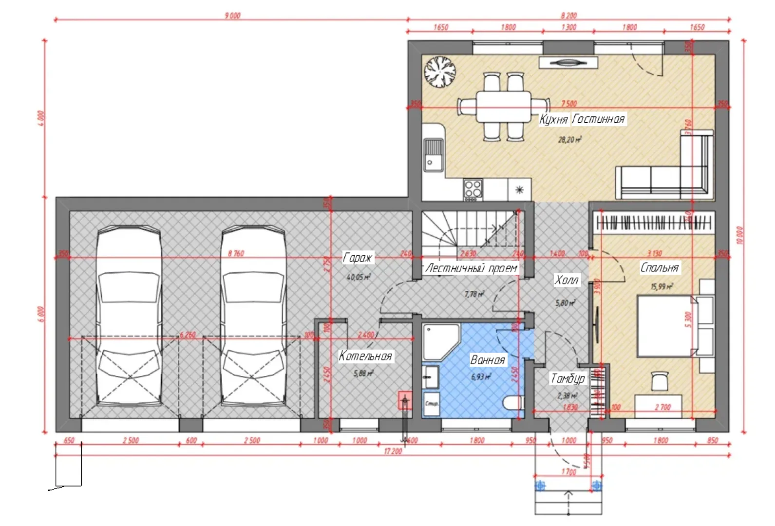
Площадь дома 177 м2
Санузлы 2
Спальни 3

Описание

Дом BL 15 – это воплощение элегантности и практичности в европейском стиле. Застройка выполнена из газобетонных блоков, что гарантирует тепло и акустическую изоляцию без ущерба для внешней привлекательности. Двухэтажная планировка предусматривает круглогодичное проживание: просторные комнаты, большие окна, которые наполнят ваш дом естественным светом, а мягкая двускатная крыша придаёт нежный силуэт, подчёркивая изящность конструкции. Собственный прицепный гараж придаёт дому незаменяемую функциональность. Это не просто место для автомобиля – это удобный уголок для хранения инструментов, ящиков с садовым инвентарём или даже для создания маленькой мастерской. Отсутствие балконов и веранд не мешает наслаждаться семейными моментами: открытая гостиная соединяется с обеденным залом, а светло-добровольные двери позволяют легко перемещать мебель, создавая ощущение простора и свободы. Стиль BL 15 приглашает к уюту и гармонии. Здешняя планировка предусматривает, что каждая полоса естественного света будет использоваться максимально эффективно, а современный материал стен сохранит ваш дом тепло в любую погоду. Это идеальное решение для тех, кто ценит эстетическую изысканность и практичность в одном доме.

Характеристики дома

Архитектурный стиль
Автоматизированное регулирование параметров теплоносителя
Нет
Балконы/лоджии
Отсутствуют
Чердачное помещение
Нет
Датчики протечки воды
Нет
Эксплуатируемая или зеленая кровля
Нет
Электроснабжение
Центральное
Газоснабжение
Не предусмотрено
Изоляция воздушного шума
Нет
Камин
Нет
Класс энергоэффективности
-
Класс энергосбережения
-
Количество надземных этажей
2
Круглогодичное проживание
Да
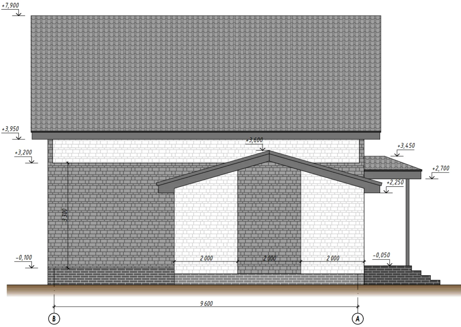
Материал кровли
Металлические листовые гофрированные профили
Материал перекрытий
Деревянные
Материал внешних стен
Материал внутренних перегородок
Блочные
Модульное строительство с конструкциями заводского изготовления
Нет
Объем надземной части
1336 м3
Основной материал фасадов
Штукатурка
Отопление
Индивидуальное
Площадь дома
177 м2
Площадь застройки
172 м2
Подвальное помещение
Нет
Показатель компактности здания
-
Приборы учета тепловой энергии
Нет
Пристроенный гараж/крытая автостоянка
Да
Противопожарная система
Нет
Санузлы
2
Совмещенная кухня-гостиная
Да
Спальни
3
Терраса
Нет
Тип фундамента
Свайно-ростверковый
Тип кровли
Толщина внешних стен
300 мм
Толщина внутренних перегородок
100 мм
Улучшенные шумовые характеристики
Нет
Вентиляция
Принудительная
Веранда
Нет
Водоотведение
Локальные очистные сооружения
Водоснабжение
Индивидуальное
Высота дома
7.9 м
Высота потолков
2.85 м

Планировка

Фасад дома

Александр

Закажите выезд инженера

Александр

Выездной инженер
Закажите выезд инженера для точной диагностики и профессиональной консультации по инженерным системам. Специалист приедет в удобное время, проведёт осмотр, рассчитает стоимость работ и подберёт оптимальные решения для вашего дома.


    Похожие проекты

    Ипотека и
    рассрочка
    Барн
    Стоимость от:
    4 392 795
    Проект от: 35 550
    Этажей 1
    Санузлы 2
    Спальни 2
    Смотреть
    Ипотека и
    рассрочка
    Двухэтажный дом «ЭДМОНТОН»
    Стоимость от:
    9 893 400
    Проект от: 74 250
    Этажей 2
    Санузлы 2
    Спальни 4
    Смотреть
    Ипотека и
    рассрочка
    Двухэтажный дом «Шиен 158»
    Стоимость от:
    9 456 300
    Проект от: 71 100
    Этажей 2
    Санузлы 2
    Спальни 3
    Смотреть
    Ипотека и
    рассрочка
    Загородный дом ВС-116
    Стоимость от:
    18 477 160
    Проект от: 115 200
    Этажей 3
    Санузлы 2
    Спальни 3
    Смотреть
    Ипотека и
    рассрочка
    Загородный дом » Эстония»
    Стоимость от:
    6 143 940
    Проект от: 39 150
    Этажей 1
    Санузлы 1
    Спальни 3
    Смотреть
    Ипотека и
    рассрочка
    Фаворит 6х9
    Стоимость от:
    5 625 900
    Проект от: 42 300
    Этажей 2
    Санузлы 2
    Спальни 4
    Смотреть

    Как узнать стоимость дома

    back
    Оставляете заявку
    Вы заполняете форму на сайте или звоните нам. Менеджер Лайвкрафт связывается с вами для уточнения деталей: тип дома, площадь, материалы, участок строительства.
    back
    Консультация и подбор решения
    Наш специалист помогает выбрать оптимальный тип дома и конструкцию с учётом бюджета, сроков и целей — будь то дом для постоянного проживания или дача.
    back
    Расчёт предварительной стоимости
    Инженер делает первичный расчёт стоимости строительства по вашим параметрам: фундамент, коробка, кровля, отделка. Вы получаете смету с разбивкой по этапам.
    back
    Корректировка и утверждение сметы
    При необходимости вносим изменения — например, замену материалов или сокращение этапов. После согласования формируется окончательная фиксированная смета.
    back
    Заключение договора и старт работ
    После утверждения сметы заключаем официальный договор с гарантией. Вы получаете прозрачный график и точную стоимость — без скрытых расходов.

    Заказать конусльтацию по:Дом BL 15

    Фото 1 Дом BL 15


      Наши
      контакты

      Дмитров
      Опорный проезд 28Б
      (индустриальный парк Ниагара)
      9:00 до 18:00

      Корзина