4.9
Рейтинг на основании 120 отзывов
Дмитров
Опорный проезд 28Б
(индустриальный парк Ниагара)
Бренд "Дмитров-Дело" c 2008 года на рынке строительства в Дмитрове
Звоните 9:00 до 18:00 8 (915) 055-33-61
Бренд "Дмитров-Дело" c 2008 года на рынке строительства в Дмитрове

Дом из клееного бруса по индивидуальному проекту №105

Стоимость проекта от:
58 500 ₽
БЕСПЛАТНО! ПРИ ЗАКАЗЕ СТРОИТЕЛЬСТВА
Стоимость строительства от:
8 251 100 ₽
Артикул ART-18828
Дата 26.12.2025
Архитектурный стиль Скандинавский
Количество надземных этажей 1
Круглогодичное проживание Да
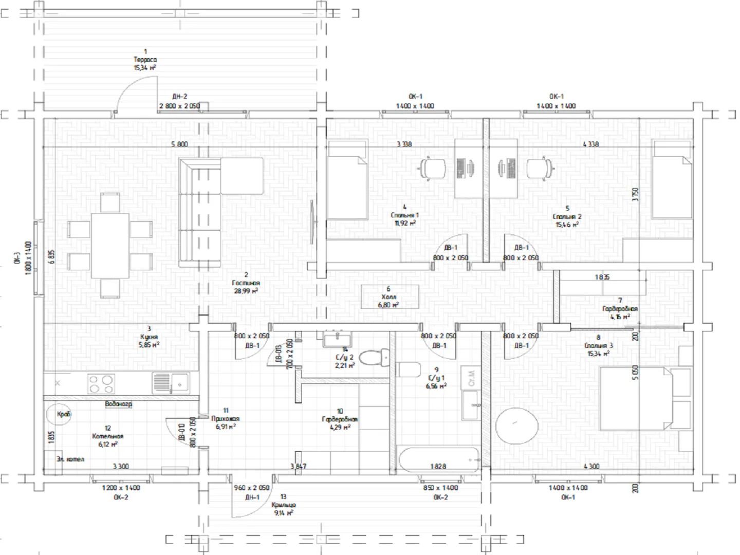
Площадь дома 130 м2
Санузлы 2
Спальни 3

Описание

Трёхлетний уют с элегантностью скандинавского минимализма – вот что представляет собой дом, построенный из клееного бруса по индивидуальному проекту №105. Лёгкая, но надёжная каркаса, покрытая классической двускатной кровлей, дарит дому неповторимый облик, гармонирующий как с северными просторами, так и с теплыми, уютными русскими кварталами. Внутри вы ощутите естественную теплоту дерева, светлые светопрозрачные фасады и просторные комнаты размеренный, без лишних балконов и пристроек, которые только отвлекали бы от истинного значения простоты и функциональности. Благодаря продуманной планировке и качеству сборки дом комфортно адаптируется к любой погоде: от зимних холодов до летних солнышек. Непрерывная эксплуатация за счёт высококонтрольных теплоизоляций делает его идеаль­ным вариантом круглогодичного проживания. При этом в этом компактном, но изысканном доме нет лишних перегородок, гаража, чердака – всё пространство оптимизировано под ваш стиль жизни. Для тех, кто ценит спокойствие и связь с природой, при доме предусмотрена просторная терраса. Это идеальное место для вечернего кофе, чтения любимой книги под открытым небом или проведения чаепития с друзьями. Дизайн, материал и архитектурный стиль скандинавского минимализма создают ощущение, что вы живёте рядом с тёплой природой, а не просто в здании из дерева. Дом из клееного бруса – это ваш индивидуальный уголок, где традиции встречаются с современностью, а каждая деталь прорабатывается до последнего штриха, чтобы стать комфортным и уютным домом вашей мечты.

Характеристики дома

Архитектурный стиль
Автоматизированное регулирование параметров теплоносителя
Нет
Балконы/лоджии
Отсутствуют
Чердачное помещение
Нет
Датчики протечки воды
Нет
Эксплуатируемая или зеленая кровля
Нет
Электроснабжение
Центральное
Газоснабжение
Не предусмотрено
Изоляция воздушного шума
Нет
Камин
Нет
Класс энергоэффективности
-
Класс энергосбережения
-
Количество надземных этажей
1
Круглогодичное проживание
Да
Материал кровли
Металлочерепица
Материал перекрытий
Деревянные
Материал внешних стен
Материал внутренних перегородок
Деревянные
Модульное строительство с конструкциями заводского изготовления
Нет
Объем надземной части
550 м3
Основной материал фасадов
Дерево
Отопление
Индивидуальное
Площадь дома
130 м2
Площадь застройки
155 м2
Подвальное помещение
Нет
Показатель компактности здания
-
Приборы учета тепловой энергии
Нет
Пристроенный гараж/крытая автостоянка
Нет
Противопожарная система
Нет
Санузлы
2
Совмещенная кухня-гостиная
Да
Спальни
3
Терраса
Да
Тип фундамента
Свайный
Тип кровли
Толщина внешних стен
200 мм
Толщина внутренних перегородок
130 мм
Улучшенные шумовые характеристики
Нет
Вентиляция
Естественная
Веранда
Нет
Водоотведение
Локальные очистные сооружения
Водоснабжение
Индивидуальное
Высота дома
4.4 м
Высота потолков
2.8 м

Планировка

Фасад дома

Александр

Закажите выезд инженера

Александр

Выездной инженер
Закажите выезд инженера для точной диагностики и профессиональной консультации по инженерным системам. Специалист приедет в удобное время, проведёт осмотр, рассчитает стоимость работ и подберёт оптимальные решения для вашего дома.


    Похожие проекты

    Ипотека и
    рассрочка
    Каркасный дом «Джела»
    Стоимость от:
    6 666 550
    Проект от: 51 750
    Этажей 1
    Санузлы 2
    Спальни 3
    Смотреть
    Ипотека и
    рассрочка
    Двухэтажный дом
    Стоимость от:
    7 238 400
    Проект от: 45 000
    Этажей 2
    Санузлы 1
    Спальни 3
    Смотреть
    Ипотека и
    рассрочка
    D 244 с террасой
    Стоимость от:
    7 965 320
    Проект от: 47 700
    Этажей 1
    Санузлы 2
    Спальни 4
    Смотреть
    Ипотека и
    рассрочка
    СКАНДИНАВСКИЙ ДОМ 149м2
    Стоимость от:
    9 375 080
    Проект от: 67 050
    Этажей 1
    Санузлы 2
    Спальни 3
    Смотреть
    Ипотека и
    рассрочка
    Авторский проект «Стенли»
    Стоимость от:
    5 790 840
    Проект от: 36 900
    Этажей 1
    Санузлы 1
    Спальни 2
    Смотреть
    Ипотека и
    рассрочка
    Одноэтажный ИЖС14
    Стоимость от:
    7 222 380
    Проект от: 44 550
    Этажей 1
    Санузлы 1
    Спальни 2
    Смотреть

    Как узнать стоимость дома

    back
    Оставляете заявку
    Вы заполняете форму на сайте или звоните нам. Менеджер Лайвкрафт связывается с вами для уточнения деталей: тип дома, площадь, материалы, участок строительства.
    back
    Консультация и подбор решения
    Наш специалист помогает выбрать оптимальный тип дома и конструкцию с учётом бюджета, сроков и целей — будь то дом для постоянного проживания или дача.
    back
    Расчёт предварительной стоимости
    Инженер делает первичный расчёт стоимости строительства по вашим параметрам: фундамент, коробка, кровля, отделка. Вы получаете смету с разбивкой по этапам.
    back
    Корректировка и утверждение сметы
    При необходимости вносим изменения — например, замену материалов или сокращение этапов. После согласования формируется окончательная фиксированная смета.
    back
    Заключение договора и старт работ
    После утверждения сметы заключаем официальный договор с гарантией. Вы получаете прозрачный график и точную стоимость — без скрытых расходов.

    Заказать конусльтацию по:Дом из клееного бруса по индивидуальному проекту №105

    Фото 1 Дом из клееного бруса по индивидуальному проекту №105


      Наши
      контакты

      Дмитров
      Опорный проезд 28Б
      (индустриальный парк Ниагара)
      9:00 до 18:00

      Корзина