4.9
Рейтинг на основании 120 отзывов
Дмитров
Опорный проезд 28Б
(индустриальный парк Ниагара)
Бренд "Дмитров-Дело" c 2008 года на рынке строительства в Дмитрове
Звоните 9:00 до 18:00 8 (915) 055-33-61
Бренд "Дмитров-Дело" c 2008 года на рынке строительства в Дмитрове

Дом с гаражом “HAVEN»

Стоимость проекта от:
87 750 ₽
БЕСПЛАТНО! ПРИ ЗАКАЗЕ СТРОИТЕЛЬСТВА
Стоимость строительства от:
14 213 100 ₽
Артикул ART-12842
Дата 25.12.2025
Архитектурный стиль Европейский
Количество надземных этажей 1
Круглогодичное проживание Да
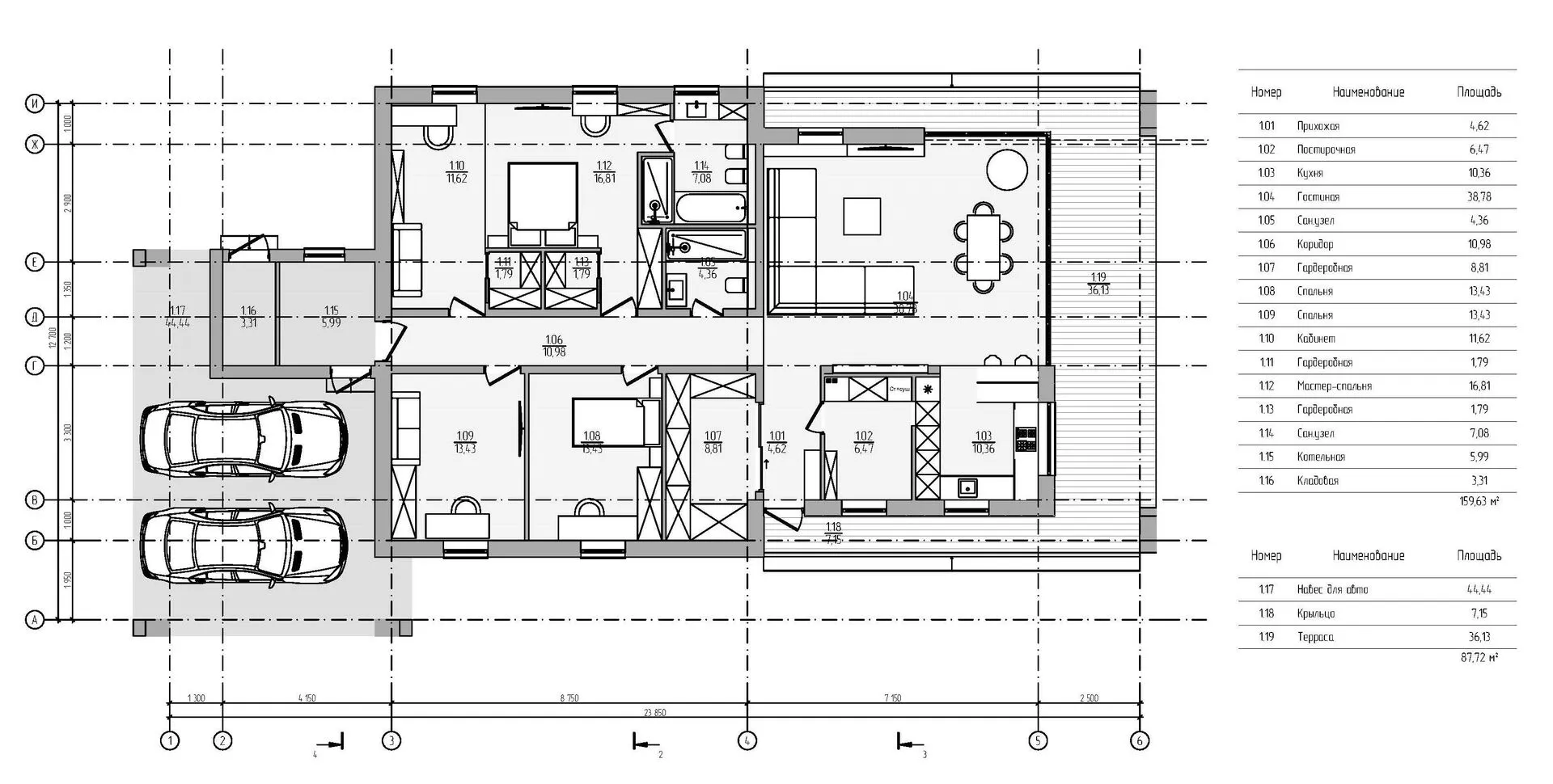
Площадь дома 195 м2
Санузлы 2
Спальни 4

Описание

Дом «HAVEN» – это идеальный выбор для тех, кто ценит простоту, комфорт и европейскую элегантность. Одна открытая эко‑квартира, спроектированная с учётом всех потребностей круглогодичного проживания, позволит вам наслаждаться простым и уютным интерьером, не прибегая к лишним этажам. Просторное расположение и безмятежный дизайн создают атмосферу, где каждая комната открывает своё уютное пространство, а открытые зоны становятся естественным продолжением дома. Сталь и газобетонные блоки, из которых возведена внешняя стена, обеспечивают теплоизоляцию и защиту от шума, а вальмовая черепичная крыша добавляет нотку классического европейского стиля и гарантирует надёжность в любых погодных условиях. Крытая авто-стоянка, включенная в стоимость, избавит вас от лишних забот, а просторный террасный уголок станет местом для ярких летних грилей или тихих вечеров с книгой. Приглашаем вас почувствовать всю гармонию простого, но качественного жилья. Если вы ищете современный дом, где каждая деталь продумана до мельчайших нюансов, «HAVEN» предложит вам настоящее чувство дома. Свяжитесь с нами сейчас и узнайте, как легко сделать ваш новый комфортный уголок реальностью.

Характеристики дома

Архитектурный стиль
Автоматизированное регулирование параметров теплоносителя
Да
Балконы/лоджии
Отсутствуют
Чердачное помещение
Нет
Датчики протечки воды
Да
Эксплуатируемая или зеленая кровля
Нет
Электроснабжение
Центральное
Газоснабжение
Центральное
Изоляция воздушного шума
Да
Камин
Нет
Класс энергоэффективности
-
Класс энергосбережения
-
Количество надземных этажей
1
Круглогодичное проживание
Да
Материал кровли
Битумная черепица
Материал перекрытий
Деревянные
Материал внешних стен
Материал внутренних перегородок
Кирпичные
Модульное строительство с конструкциями заводского изготовления
Нет
Объем надземной части
1468 м3
Основной материал фасадов
Штукатурка
Отопление
Индивидуальное
Площадь дома
195 м2
Площадь застройки
277 м2
Подвальное помещение
Да
Показатель компактности здания
-
Приборы учета тепловой энергии
Да
Пристроенный гараж/крытая автостоянка
Да
Противопожарная система
Да
Санузлы
2
Совмещенная кухня-гостиная
Да
Спальни
4
Терраса
Да
Тип фундамента
Свайно-ростверковый
Толщина внешних стен
400 мм
Толщина внутренних перегородок
200 мм
Улучшенные шумовые характеристики
Да
Вентиляция
Принудительная
Веранда
Нет
Водоотведение
Локальные очистные сооружения
Водоснабжение
Индивидуальное
Высота дома
4.66 м
Высота потолков
3.1 м

Планировка

Фасад дома

Александр

Закажите выезд инженера

Александр

Выездной инженер
Закажите выезд инженера для точной диагностики и профессиональной консультации по инженерным системам. Специалист приедет в удобное время, проведёт осмотр, рассчитает стоимость работ и подберёт оптимальные решения для вашего дома.


    Похожие проекты

    Ипотека и
    рассрочка
    Каркасный дом Шведский 29
    Стоимость от:
    6 971 250
    Проект от: 56 250
    Этажей 1
    Санузлы 2
    Спальни 4
    Смотреть
    Ипотека и
    рассрочка
    Загородный дом АС-264
    Стоимость от:
    13 548 960
    Проект от: 87 300
    Этажей 2
    Санузлы 2
    Спальни 5
    Смотреть
    Ипотека и
    рассрочка
    Проект одноэтажный №5
    Стоимость от:
    5 894 680
    Проект от: 33 300
    Этажей 1
    Санузлы 1
    Спальни 3
    Смотреть
    Ипотека и
    рассрочка
    КЛМ 093
    Стоимость от:
    9 198 480
    Проект от: 57 150
    Этажей 2
    Санузлы 2
    Спальни 3
    Смотреть
    Ипотека и
    рассрочка
    Amsterdam-90
    Стоимость от:
    7 165 400
    Проект от: 40 500
    Этажей 1
    Санузлы 1
    Спальни 3
    Смотреть
    Ипотека и
    рассрочка
    Дом «Аксель 128» в скандинавском стиле
    Стоимость от:
    6 703 200
    Проект от: 50 400
    Этажей 2
    Санузлы 2
    Спальни 1
    Смотреть

    Как узнать стоимость дома

    back
    Оставляете заявку
    Вы заполняете форму на сайте или звоните нам. Менеджер Лайвкрафт связывается с вами для уточнения деталей: тип дома, площадь, материалы, участок строительства.
    back
    Консультация и подбор решения
    Наш специалист помогает выбрать оптимальный тип дома и конструкцию с учётом бюджета, сроков и целей — будь то дом для постоянного проживания или дача.
    back
    Расчёт предварительной стоимости
    Инженер делает первичный расчёт стоимости строительства по вашим параметрам: фундамент, коробка, кровля, отделка. Вы получаете смету с разбивкой по этапам.
    back
    Корректировка и утверждение сметы
    При необходимости вносим изменения — например, замену материалов или сокращение этапов. После согласования формируется окончательная фиксированная смета.
    back
    Заключение договора и старт работ
    После утверждения сметы заключаем официальный договор с гарантией. Вы получаете прозрачный график и точную стоимость — без скрытых расходов.

    Заказать конусльтацию по:Дом с гаражом “HAVEN»

    Фото 1 Дом с гаражом “HAVEN»


      Наши
      контакты

      Дмитров
      Опорный проезд 28Б
      (индустриальный парк Ниагара)
      9:00 до 18:00

      Корзина