4.9
Рейтинг на основании 120 отзывов
Дмитров
Опорный проезд 28Б
(индустриальный парк Ниагара)
Бренд "Дмитров-Дело" c 2008 года на рынке строительства в Дмитрове
Звоните 9:00 до 18:00 8 (915) 055-33-61
Бренд "Дмитров-Дело" c 2008 года на рынке строительства в Дмитрове

Одноэтажный дом FK-70 Б. Кургузи

Стоимость проекта от:
31 500 ₽
Стоимость строительства от:
5 264 600 ₽
Артикул ART-10246
Дата 25.12.2025
Архитектурный стиль Классический
Количество надземных этажей 1
Круглогодичное проживание Да
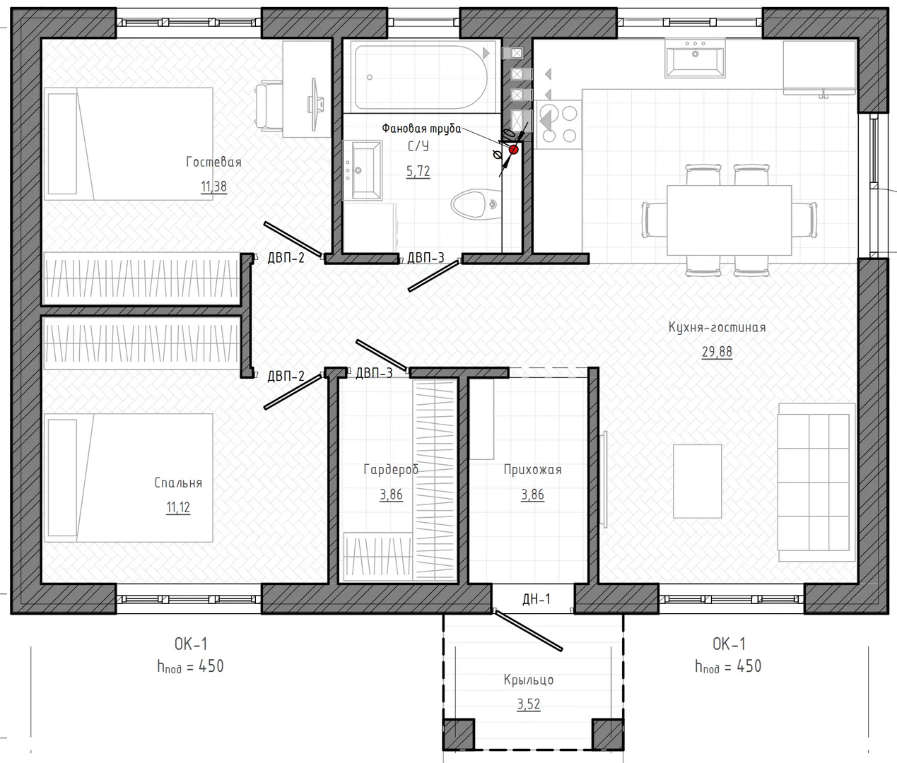
Площадь дома 70 м2
Санузлы 1
Спальни 2

Описание

**Ваше уютное убежище в сердце Кургузовского района** Одноэтажный дом FK‑70 Б — это воплощение классической элегантности и практичности. Стены, облицованные качественным кирпичом, создают ощущение надёжности и тепла, а четырёхскатная (вальмовая) крыша добавляет архитектурной изящности. Дом рассчитан на круглогодичную жизнь: внутренние помещения удобно разделены, а пространство чердака открывает дополнительные возможности для хранения, офисного уголка или детской мастерской. Уникальная простота фасада, лишённая балконов и веранд, придаёт дому спокойную и чистую структуру, которую легко вписать в любой ландшафт. Внутри вас ждёт светлый, просторный интерьер с достаточным количеством естественного света. Гараж в пристройке отсутствует, но это не мешает сделать ваш двор уютным с элементами оформления сада или небольших огородных участков. Приезжайте и окунитесь в атмосферу спокойного семейного уюта, где классический стиль сочетается с функциональностью повседневной жизни. Дом FK‑70 Б в Кургузах — это ваш шанс обрести идеальное место, где каждый день будет наполнен гармонией и комфортом.

Характеристики дома

Архитектурный стиль
Классический
Автоматизированное регулирование параметров теплоносителя
-
Балконы/лоджии
Отсутствуют
Чердачное помещение
Да
Датчики протечки воды
-
Эксплуатируемая или зеленая кровля
-
Электроснабжение
2 варианта
Газоснабжение
2 варианта
Изоляция воздушного шума
-
Камин
Нет
Класс энергоэффективности
-
Класс энергосбережения
-
Количество надземных этажей
1
Круглогодичное проживание
Да
Материал кровли
Металлочерепица
Материал перекрытий
Сборные железобетонные
Материал внешних стен
Кирпич
Материал внутренних перегородок
Кирпичные
Модульное строительство с конструкциями заводского изготовления
Нет
Объем надземной части
-
Основной материал фасадов
Штукатурка
Отопление
Индивидуальное
Площадь дома
70 м2
Площадь застройки
86 м2
Подвальное помещение
Нет
Показатель компактности здания
-
Приборы учета тепловой энергии
-
Пристроенный гараж/крытая автостоянка
Нет
Противопожарная система
Нет
Санузлы
1
Совмещенная кухня-гостиная
Да
Спальни
2
Терраса
Нет
Тип фундамента
Свайно-ростверковый
Тип кровли
Четырехскатная (вальмовая)
Толщина внешних стен
370 мм
Толщина внутренних перегородок
120 мм
Улучшенные шумовые характеристики
-
Вентиляция
2 варианта
Веранда
Нет
Водоотведение
Локальные очистные сооружения
Водоснабжение
2 варианта
Высота дома
5.2 м
Высота потолков
3 м

Планировка

Фасад дома

Александр

Закажите выезд инженера

Александр

Выездной инженер
Закажите выезд инженера для точной диагностики и профессиональной консультации по инженерным системам. Специалист приедет в удобное время, проведёт осмотр, рассчитает стоимость работ и подберёт оптимальные решения для вашего дома.


    Похожие проекты

    Ипотека и
    рассрочка
    Одноэтажный каркасный дом » Проект 3.30″
    Стоимость от:
    6 318 730
    Проект от: 49 050
    Этажей 1
    Санузлы 1
    Спальни 2
    Смотреть
    Ипотека и
    рассрочка
    Одноэтажный дом с террасой 31-22КД
    Стоимость от:
    6 600 880
    Проект от: 46 800
    Этажей 1
    Санузлы 2
    Спальни 3
    Смотреть
    Ипотека и
    рассрочка
    Одноэтажный дом c террасой LV-146
    Стоимость от:
    10 966 120
    Проект от: 65 700
    Этажей 1
    Санузлы 2
    Спальни 3
    Смотреть
    Ипотека и
    рассрочка
    Загородный двухэтажный дом Проект 11-К
    Стоимость от:
    12 571 200
    Проект от: 81 000
    Этажей 2
    Санузлы 2
    Спальни 4
    Смотреть
    Ипотека и
    рассрочка
    Дом в Богатых Сабах
    Стоимость от:
    9 390 700
    Проект от: 56 250
    Этажей 1
    Санузлы 2
    Спальни 2
    Смотреть
    Ипотека и
    рассрочка
    Загородный дом АС-210
    Стоимость от:
    15 450 000
    Проект от: 101 250
    Этажей 2
    Санузлы 2
    Спальни 3
    Смотреть

    Как узнать стоимость дома

    back
    Оставляете заявку
    Вы заполняете форму на сайте или звоните нам. Менеджер Лайвкрафт связывается с вами для уточнения деталей: тип дома, площадь, материалы, участок строительства.
    back
    Консультация и подбор решения
    Наш специалист помогает выбрать оптимальный тип дома и конструкцию с учётом бюджета, сроков и целей — будь то дом для постоянного проживания или дача.
    back
    Расчёт предварительной стоимости
    Инженер делает первичный расчёт стоимости строительства по вашим параметрам: фундамент, коробка, кровля, отделка. Вы получаете смету с разбивкой по этапам.
    back
    Корректировка и утверждение сметы
    При необходимости вносим изменения — например, замену материалов или сокращение этапов. После согласования формируется окончательная фиксированная смета.
    back
    Заключение договора и старт работ
    После утверждения сметы заключаем официальный договор с гарантией. Вы получаете прозрачный график и точную стоимость — без скрытых расходов.

    Заказать конусльтацию по:Одноэтажный дом FK-70 Б. Кургузи

    Фото 1 Одноэтажный дом FK-70 Б. Кургузи


      Наши
      контакты

      Дмитров
      Опорный проезд 28Б
      (индустриальный парк Ниагара)
      9:00 до 18:00

      Корзина