4.9
Рейтинг на основании 120 отзывов
Дмитров
Опорный проезд 28Б
(индустриальный парк Ниагара)
Бренд "Дмитров-Дело" c 2008 года на рынке строительства в Дмитрове
Звоните 9:00 до 18:00 8 (915) 055-33-61
Бренд "Дмитров-Дело" c 2008 года на рынке строительства в Дмитрове

Проект К-12

Стоимость проекта от:
37 350 ₽
БЕСПЛАТНО! ПРИ ЗАКАЗЕ СТРОИТЕЛЬСТВА
Стоимость строительства от:
4 811 510 ₽
Артикул ART-20365
Дата 26.12.2025
Архитектурный стиль Русский
Количество надземных этажей 1
Круглогодичное проживание Да
Площадь дома 83 м2
Санузлы 2
Спальни 3

Описание

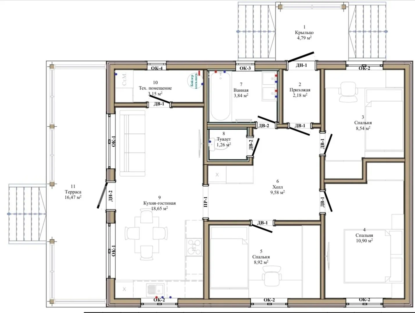
Группа проектов K‑12 представляет уютный одноэтажный дом, воплощающий русский традиционный стиль в современной интерпретации. Благодаря деревянно‑каркасной конструкции, стены сохраняют природную теплоизоляцию и естественный микроклимат, а двускатная крыша придаёт фасаду характерный очерк с ноткой очарования. Это идеальный дом для круглогодичного проживания, где каждая деталь обеспечивает комфорт во все сезоны, а простые, но элегантные линии подчёркивают гармонию с природой. Во входной части вас встретит просторное коридорное пространство, свободно ведущим к светлым комнатам с большим количеством панорамных окон, позволяющих наслаждаться видом на живописные окрестности. Отсутствие балконов, лоджий и веранд оставляет более прямое ощущение связи внутри и вне дома, позволяя полностью погрузиться в атмосферу домашнего уюта. А наличие широкой террасы, выходящей с любой комнаты, делает возможным проводить вечерние посиделки под открытым небом, наслаждаясь свежим воздухом и звуками природы. Никаких прикрытых парковочных зон и чердачных помещений – все пространство здесь используется оптимально, создавая просторы для свободного перемещения и легкой уборки. Дом K‑12 создан для тех, кто ценит традиционные ценности, но не хочет отдаваться в рукопись старинным формочкам. Он приглашает в мир тёплой дружелюбной среды, где каждая стена и каждый уголок напомнят о русском домашнем очаровании. Закажите просмотр уже сегодня и убедитесь, что ваш новый дом – это ваш новый образ жизни.

Характеристики дома

Архитектурный стиль
Автоматизированное регулирование параметров теплоносителя
Нет
Балконы/лоджии
Отсутствуют
Чердачное помещение
Нет
Датчики протечки воды
Нет
Эксплуатируемая или зеленая кровля
Нет
Электроснабжение
Центральное
Газоснабжение
Не предусмотрено
Изоляция воздушного шума
Нет
Камин
Нет
Класс энергоэффективности
-
Класс энергосбережения
-
Количество надземных этажей
1
Круглогодичное проживание
Да
Материал кровли
Металлочерепица
Материал перекрытий
Деревянные
Материал внешних стен
Материал внутренних перегородок
Деревянные
Модульное строительство с конструкциями заводского изготовления
Нет
Объем надземной части
523 м3
Основной материал фасадов
Дерево
Отопление
Индивидуальное
Площадь дома
83 м2
Площадь застройки
100 м2
Подвальное помещение
Нет
Показатель компактности здания
-
Приборы учета тепловой энергии
Нет
Пристроенный гараж/крытая автостоянка
Нет
Противопожарная система
Нет
Санузлы
2
Совмещенная кухня-гостиная
Да
Спальни
3
Терраса
Да
Тип фундамента
Свайный
Тип кровли
Толщина внешних стен
200 мм
Толщина внутренних перегородок
150 мм
Улучшенные шумовые характеристики
Нет
Вентиляция
Естественная
Веранда
Нет
Водоотведение
Локальные очистные сооружения
Водоснабжение
Индивидуальное
Высота дома
5.2 м
Высота потолков
2.8 м

Планировка

Фасад дома

Александр

Закажите выезд инженера

Александр

Выездной инженер
Закажите выезд инженера для точной диагностики и профессиональной консультации по инженерным системам. Специалист приедет в удобное время, проведёт осмотр, рассчитает стоимость работ и подберёт оптимальные решения для вашего дома.


    Похожие проекты

    Ипотека и
    рассрочка
    Классический дом СО-122
    Стоимость от:
    8 615 640
    Проект от: 54 900
    Этажей 1
    Санузлы 2
    Спальни 4
    Смотреть
    Ипотека и
    рассрочка
    «Леуская»
    Стоимость от:
    3 410 495
    Проект от: 26 550
    Этажей 1
    Санузлы 1
    Спальни 2
    Смотреть
    Ипотека и
    рассрочка
    Ксения 60
    Стоимость от:
    4 237 200
    Проект от: 27 000
    Этажей 1
    Санузлы 1
    Спальни 2
    Смотреть
    Ипотека и
    рассрочка
    КБД 554
    Стоимость от:
    6 779 520
    Проект от: 43 200
    Этажей 1
    Санузлы 2
    Спальни 3
    Смотреть
    Ипотека и
    рассрочка
    Двухэтажный дом от компании UNIT серии Классика 125 ТК
    Стоимость от:
    10 749 840
    Проект от: 67 950
    Этажей 2
    Санузлы 2
    Спальни 4
    Смотреть
    Ипотека и
    рассрочка
    Проект ЕР-85
    Стоимость от:
    3 826 020
    Проект от: 29 700
    Этажей 1
    Санузлы 1
    Спальни 3
    Смотреть

    Как узнать стоимость дома

    back
    Оставляете заявку
    Вы заполняете форму на сайте или звоните нам. Менеджер Лайвкрафт связывается с вами для уточнения деталей: тип дома, площадь, материалы, участок строительства.
    back
    Консультация и подбор решения
    Наш специалист помогает выбрать оптимальный тип дома и конструкцию с учётом бюджета, сроков и целей — будь то дом для постоянного проживания или дача.
    back
    Расчёт предварительной стоимости
    Инженер делает первичный расчёт стоимости строительства по вашим параметрам: фундамент, коробка, кровля, отделка. Вы получаете смету с разбивкой по этапам.
    back
    Корректировка и утверждение сметы
    При необходимости вносим изменения — например, замену материалов или сокращение этапов. После согласования формируется окончательная фиксированная смета.
    back
    Заключение договора и старт работ
    После утверждения сметы заключаем официальный договор с гарантией. Вы получаете прозрачный график и точную стоимость — без скрытых расходов.

    Заказать конусльтацию по:Проект К-12

    Фото 1 Проект К-12


      Наши
      контакты

      Дмитров
      Опорный проезд 28Б
      (индустриальный парк Ниагара)
      9:00 до 18:00

      Корзина