4.9
Рейтинг на основании 120 отзывов
Дмитров
Опорный проезд 28Б
(индустриальный парк Ниагара)
Бренд "Дмитров-Дело" c 2008 года на рынке строительства в Дмитрове
Звоните 9:00 до 18:00 8 (915) 055-33-61
Бренд "Дмитров-Дело" c 2008 года на рынке строительства в Дмитрове

Дом Стрюкова

Стоимость проекта от:
70 650 ₽
БЕСПЛАТНО! ПРИ ЗАКАЗЕ СТРОИТЕЛЬСТВА
Стоимость строительства от:
11 749 680 ₽
Артикул ART-16519
Дата 26.12.2025
Архитектурный стиль Классический
Количество надземных этажей 2
Круглогодичное проживание Да
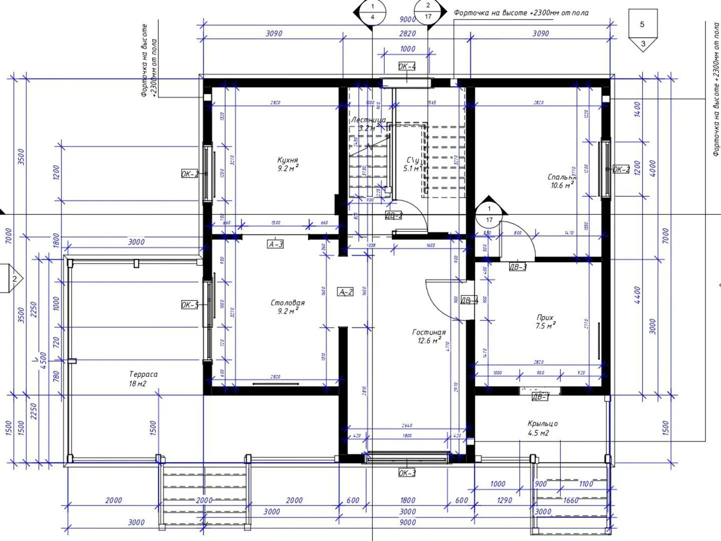
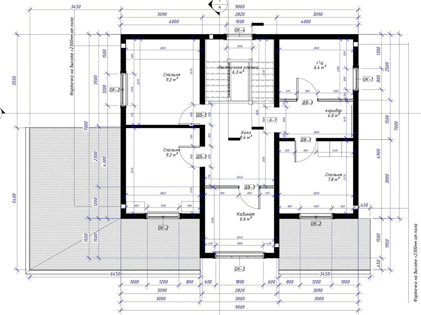
Площадь дома 157 м2
Санузлы 2
Спальни 4

Описание

Добро пожаловать в Дом Стрюкова — воплощение уютной классики и практичности, расположенное в живописном уголке города. Двухэтажный дом, обеспечивающий круглогодичную живность, дарит ощущение тепла и уюта с первого взгляда. Просторные внутренние помещения, пропитанные природным светом, создают идеальное пространство для семейной жизни, где каждый найдет уголок для своих мечтаний. Изысканность архитектурных черт, выполненных в классическом стиле, подчёркнута изысканной отделкой и характерной для эпохи деталями. Внешние стены из пиленого бруса придают дому величественный и одновременно приобщённый к природе вид, а две складные крыши придают ему строгую и непринуждённую элегантность. Прямо у входа встречает вас широкая терраса, где можно провести вечера, наслаждаясь свежим воздухом, а уютная веранда, даже если её нет, подсказывает, что пространство предназначено для расслабления и общения. Отсутствие лишних балконов и прицепных гаражей делает Дом Стрюкова настоящим оазисом спокойствия. Здесь нет чердачных помещений, но это не мешает дому сохранять чистоту и простоту. Его открытая планировка позволяет легко адаптировать пространство под свои индивидуальные потребности: от современного офиса до зоны для детского творчества. В целом, Дом Стрюкова - это ваше новое окно в мир классической архитектуры с нотками современности и практичности.

Характеристики дома

Архитектурный стиль
Автоматизированное регулирование параметров теплоносителя
Нет
Балконы/лоджии
Отсутствуют
Чердачное помещение
Нет
Датчики протечки воды
Нет
Эксплуатируемая или зеленая кровля
Нет
Электроснабжение
Центральное
Газоснабжение
Центральное
Изоляция воздушного шума
Нет
Камин
Нет
Класс энергоэффективности
-
Класс энергосбережения
-
Количество надземных этажей
2
Круглогодичное проживание
Да
Материал кровли
Металлочерепица
Материал перекрытий
Деревянные
Материал внешних стен
Материал внутренних перегородок
Деревянные
Модульное строительство с конструкциями заводского изготовления
Нет
Объем надземной части
540 м3
Основной материал фасадов
Дерево
Отопление
Индивидуальное
Площадь дома
157 м2
Площадь застройки
67 м2
Подвальное помещение
Нет
Показатель компактности здания
-
Приборы учета тепловой энергии
Да
Пристроенный гараж/крытая автостоянка
Нет
Противопожарная система
Нет
Санузлы
2
Совмещенная кухня-гостиная
Нет
Спальни
4
Терраса
Да
Тип фундамента
Ленточный
Тип кровли
Толщина внешних стен
180 мм
Толщина внутренних перегородок
100 мм
Улучшенные шумовые характеристики
Нет
Вентиляция
Естественная
Веранда
Нет
Водоотведение
Локальные очистные сооружения
Водоснабжение
Индивидуальное
Высота дома
8 м
Высота потолков
2.7 м

Планировка

Фасад дома

Александр

Закажите выезд инженера

Александр

Выездной инженер
Закажите выезд инженера для точной диагностики и профессиональной консультации по инженерным системам. Специалист приедет в удобное время, проведёт осмотр, рассчитает стоимость работ и подберёт оптимальные решения для вашего дома.


    Похожие проекты

    Ипотека и
    рассрочка
    Загородный дом ВС-136
    Стоимость от:
    9 758 760
    Проект от: 73 350
    Этажей 2
    Санузлы 1
    Спальни 2
    Смотреть
    Ипотека и
    рассрочка
    Проект Одноэтажный загородный дом Д-77
    Стоимость от:
    6 132 940
    Проект от: 34 650
    Этажей 1
    Санузлы 1
    Спальни 3
    Смотреть
    Ипотека и
    рассрочка
    Прага-150-90-С
    Стоимость от:
    9 901 760
    Проект от: 57 600
    Этажей 1
    Санузлы 1
    Спальни 2
    Смотреть
    Ипотека и
    рассрочка
    Каркасный дом «Мальта»
    Стоимость от:
    6 086 850
    Проект от: 47 250
    Этажей 1
    Санузлы 2
    Спальни 3
    Смотреть
    Ипотека и
    рассрочка
    Одноэтажный дом от компании UNIT серии Премиум 141 TK
    Стоимость от:
    12 538 240
    Проект от: 77 400
    Этажей 1
    Санузлы 3
    Спальни 3
    Смотреть
    Ипотека и
    рассрочка
    ФЛИК
    Стоимость от:
    3 072 410
    Проект от: 23 850
    Этажей 1
    Санузлы 1
    Спальни 1
    Смотреть

    Как узнать стоимость дома

    back
    Оставляете заявку
    Вы заполняете форму на сайте или звоните нам. Менеджер Лайвкрафт связывается с вами для уточнения деталей: тип дома, площадь, материалы, участок строительства.
    back
    Консультация и подбор решения
    Наш специалист помогает выбрать оптимальный тип дома и конструкцию с учётом бюджета, сроков и целей — будь то дом для постоянного проживания или дача.
    back
    Расчёт предварительной стоимости
    Инженер делает первичный расчёт стоимости строительства по вашим параметрам: фундамент, коробка, кровля, отделка. Вы получаете смету с разбивкой по этапам.
    back
    Корректировка и утверждение сметы
    При необходимости вносим изменения — например, замену материалов или сокращение этапов. После согласования формируется окончательная фиксированная смета.
    back
    Заключение договора и старт работ
    После утверждения сметы заключаем официальный договор с гарантией. Вы получаете прозрачный график и точную стоимость — без скрытых расходов.

    Заказать конусльтацию по:Дом Стрюкова

    Фото 1 Дом Стрюкова


      Наши
      контакты

      Дмитров
      Опорный проезд 28Б
      (индустриальный парк Ниагара)
      9:00 до 18:00

      Корзина