4.9
Рейтинг на основании 120 отзывов
Дмитров
Опорный проезд 28Б
(индустриальный парк Ниагара)
Бренд "Дмитров-Дело" c 2008 года на рынке строительства в Дмитрове
Звоните 9:00 до 18:00 8 (915) 055-33-61
Бренд "Дмитров-Дело" c 2008 года на рынке строительства в Дмитрове

Дом в сосновом бору

Стоимость проекта от:
81 000 ₽
БЕСПЛАТНО! ПРИ ЗАКАЗЕ СТРОИТЕЛЬСТВА
Стоимость строительства от:
14 313 200 ₽
Артикул ART-14860
Дата 25.12.2025
Архитектурный стиль Европейский
Количество надземных этажей 1
Круглогодичное проживание Да
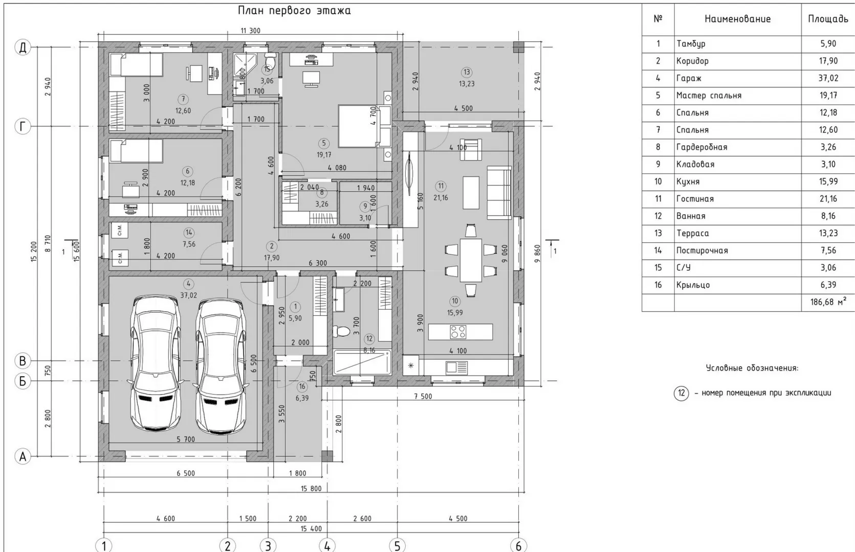
Площадь дома 180 м2
Санузлы 2
Спальни 3

Описание

Среди тишины боровых хвойных полей и свежего, прохладного ветра, здесь вы найдёте уютный уголок, где сливается природная гармония и европейская элегантность. Дом, расположенный в густом сосновом бору, обрамлен живыми изгородями, которые, словно мягкие стены, создают ощущение уединения и безопасности, в то время как лёгкий аромат хвойных деревьев обволакивает всё вокруг, напоминая о просторах русской природы. Круглогодичное проживание предусмотрено: тепло в доме поддерживается благодаря изоляции газобетонных блоков, а воздушная прохлада в летнее время сохраняет комфорт даже в самые жаркие дни. Фасад в классическом европейском стиле восхищает своей симметрией и простотой линий. Полная четырёхскатная крыша вальмового типа придаёт дому характерную «домашнюю» аутентичность, а аккуратный чердачное помещение открывает простор для творчества: здесь можно устроить уютный читальный уголок или дополнительную спальню. Внутри гармонично сочетается открытая планировка и функциональная отделка, позволяющая вам чувствовать пространство как личную обитель, где каждая деталь продумана для вашего комфорта. Отдельно стоит выделить практичные удобства, которые делают этот дом идеальным выбором для современного ритма жизни. Пристроенный гараж, соединённый с жилой зоной, гарантирует удобство парковки в любое время года, а широкая терраса служит идеальным местом для вечерних грилевок, завтраков на свежем воздухе или простого отдыха под звёздным небом. Здесь сочетаются красота природного окружения и функциональность европейского дизайна, создавая неповторимый домашний уют, который хочется назвать своим.

Характеристики дома

Архитектурный стиль
Автоматизированное регулирование параметров теплоносителя
Да
Балконы/лоджии
Отсутствуют
Чердачное помещение
Да
Датчики протечки воды
Нет
Эксплуатируемая или зеленая кровля
Нет
Электроснабжение
Центральное
Газоснабжение
Не предусмотрено
Изоляция воздушного шума
Да
Камин
Нет
Класс энергоэффективности
A
Класс энергосбережения
A
Количество надземных этажей
1
Круглогодичное проживание
Да
Материал кровли
Металлочерепица
Материал перекрытий
Деревянные
Материал внешних стен
Материал внутренних перегородок
Пенобетонные
Модульное строительство с конструкциями заводского изготовления
Нет
Объем надземной части
890 м3
Основной материал фасадов
Штукатурка
Отопление
Индивидуальное
Площадь дома
180 м2
Площадь застройки
224 м2
Подвальное помещение
Нет
Показатель компактности здания
-
Приборы учета тепловой энергии
Нет
Пристроенный гараж/крытая автостоянка
Да
Противопожарная система
Да
Санузлы
2
Совмещенная кухня-гостиная
Да
Спальни
3
Терраса
Да
Тип фундамента
Ленточный
Толщина внешних стен
400 мм
Толщина внутренних перегородок
100 мм
Улучшенные шумовые характеристики
Да
Вентиляция
Естественная
Веранда
Нет
Водоотведение
Локальные очистные сооружения
Водоснабжение
Индивидуальное
Высота дома
6 м
Высота потолков
3.2 м

Планировка

Фасад дома

Александр

Закажите выезд инженера

Александр

Выездной инженер
Закажите выезд инженера для точной диагностики и профессиональной консультации по инженерным системам. Специалист приедет в удобное время, проведёт осмотр, рассчитает стоимость работ и подберёт оптимальные решения для вашего дома.


    Похожие проекты

    Ипотека и
    рассрочка
    МЕГАЛИТ
    Стоимость от:
    14 145 560
    Проект от: 88 200
    Этажей 3
    Санузлы 3
    Спальни 3
    Смотреть
    Ипотека и
    рассрочка
    Малеевка
    Стоимость от:
    8 419 565
    Проект от: 59 850
    Этажей 1
    Санузлы 2
    Спальни 3
    Смотреть
    Ипотека и
    рассрочка
    Одноэтажный дом c антресолью СР-90
    Стоимость от:
    5 815 260
    Проект от: 32 850
    Этажей 1
    Санузлы 1
    Спальни 2
    Смотреть
    Ипотека и
    рассрочка
    Загородный дом «Лесной»
    Стоимость от:
    7 822 080
    Проект от: 50 400
    Этажей 2
    Санузлы 2
    Спальни 4
    Смотреть
    Ипотека и
    рассрочка
    NEXT-56
    Стоимость от:
    6 502 320
    Проект от: 41 850
    Этажей 2
    Санузлы 2
    Спальни 3
    Смотреть
    Ипотека и
    рассрочка
    Двухэтажный жилой дом
    Стоимость от:
    8 939 520
    Проект от: 57 600
    Этажей 2
    Санузлы 2
    Спальни 4
    Смотреть

    Как узнать стоимость дома

    back
    Оставляете заявку
    Вы заполняете форму на сайте или звоните нам. Менеджер Лайвкрафт связывается с вами для уточнения деталей: тип дома, площадь, материалы, участок строительства.
    back
    Консультация и подбор решения
    Наш специалист помогает выбрать оптимальный тип дома и конструкцию с учётом бюджета, сроков и целей — будь то дом для постоянного проживания или дача.
    back
    Расчёт предварительной стоимости
    Инженер делает первичный расчёт стоимости строительства по вашим параметрам: фундамент, коробка, кровля, отделка. Вы получаете смету с разбивкой по этапам.
    back
    Корректировка и утверждение сметы
    При необходимости вносим изменения — например, замену материалов или сокращение этапов. После согласования формируется окончательная фиксированная смета.
    back
    Заключение договора и старт работ
    После утверждения сметы заключаем официальный договор с гарантией. Вы получаете прозрачный график и точную стоимость — без скрытых расходов.

    Заказать конусльтацию по:Дом в сосновом бору

    Фото 1 Дом в сосновом бору


      Наши
      контакты

      Дмитров
      Опорный проезд 28Б
      (индустриальный парк Ниагара)
      9:00 до 18:00

      Корзина