4.9
Рейтинг на основании 120 отзывов
Дмитров
Опорный проезд 28Б
(индустриальный парк Ниагара)
Бренд "Дмитров-Дело" c 2008 года на рынке строительства в Дмитрове
Звоните 9:00 до 18:00 8 (915) 055-33-61
Бренд "Дмитров-Дело" c 2008 года на рынке строительства в Дмитрове

Двухэтажный дом в европейском стиле 604

Стоимость проекта от:
138 150 ₽
БЕСПЛАТНО! ПРИ ЗАКАЗЕ СТРОИТЕЛЬСТВА
Стоимость строительства от:
21 078 480 ₽
Артикул ART-20442
Дата 26.12.2025
Архитектурный стиль Европейский
Количество надземных этажей 2
Круглогодичное проживание Да
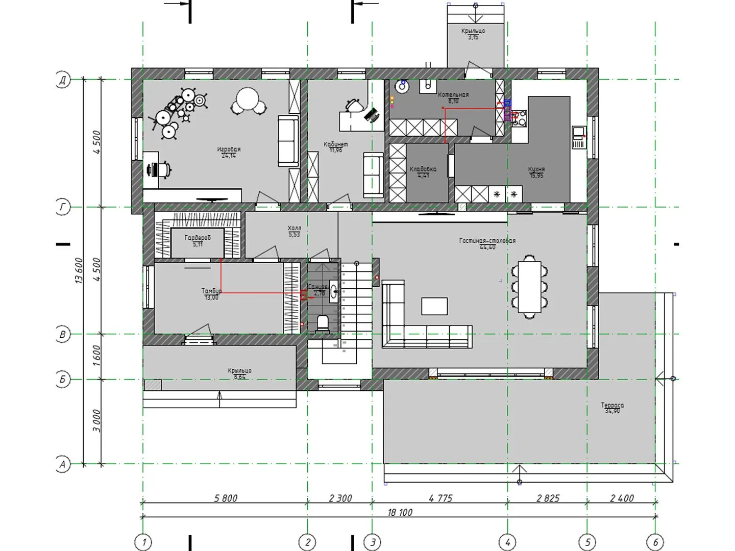
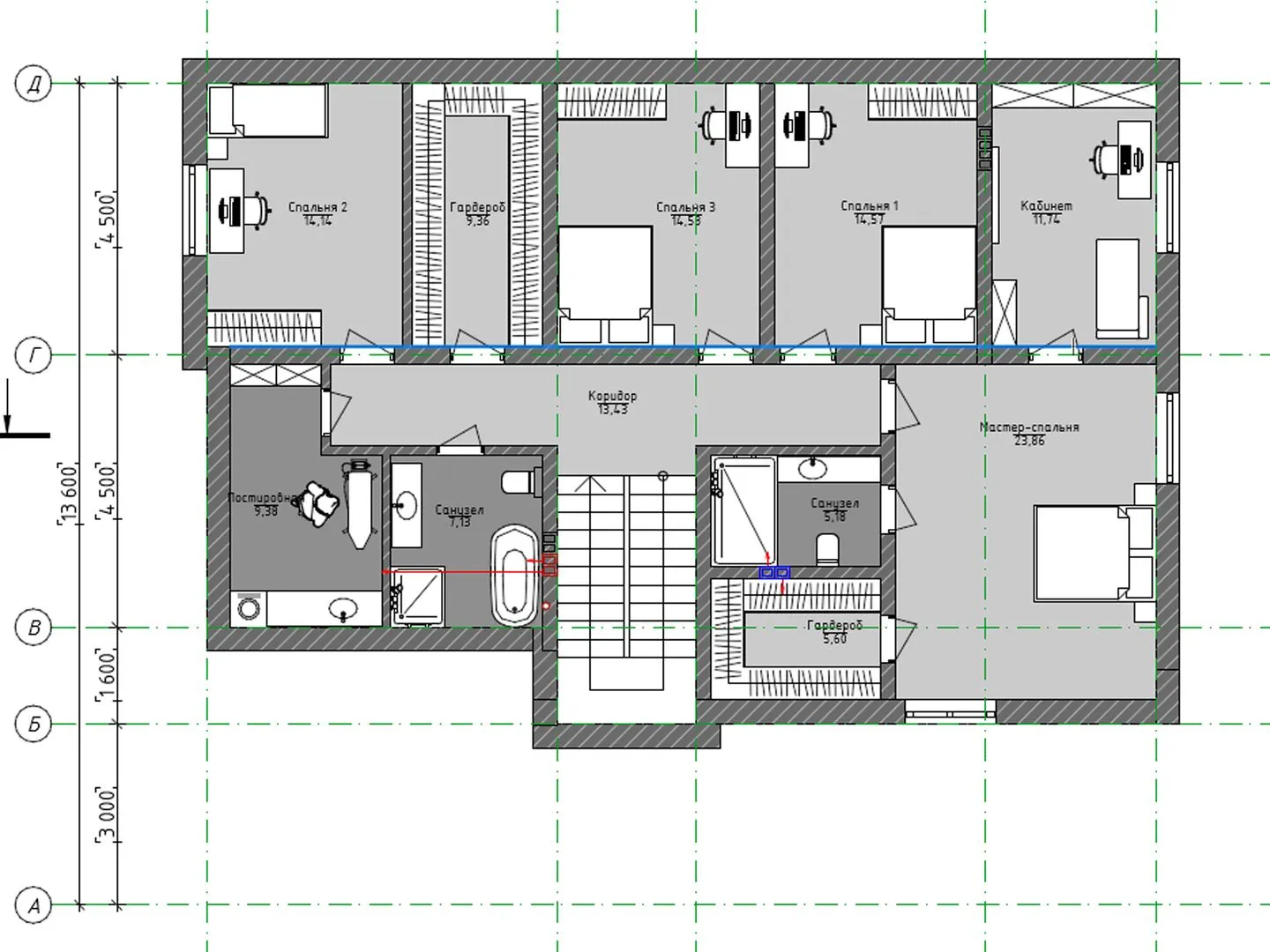
Площадь дома 307 м2
Санузлы 3
Спальни 5

Описание

Добро пожаловать в настоящий уголок европейского уюта, где каждая деталь продумана до совершенства. Этот двухэтажный дом площадью 604 м² сочетает в себе элегантность классического европейского стиля и современные требования к комфорту. Внутри царит непринужденная атмосферность: просторные светлые интерьеры, высокие потолки и продуманная планировка создают ощущение безмятежного дома, где всегда можно отдохнуть от городской суеты. Чаще всего дома таких размеров олицетворяют идеальное решение для семьи, ценящей безопасность, уют и эстетику. Снимок снаружи подтверждает сказочное сочетание простоты и изящества: газобетонные блоки придают конструкции надежность и теплоизоляцию, а двускатная крыша добавляет нотку традиционной европейской архитектуры. Вместе с просторным открытым чердаком, который можно превратить в мастерскую или уютный кабинет, и живописной террасой, на которой можно наслаждаться рассветами и закатами, этот дом предоставляет не только функциональность, но и вдохновение для создания неповторимых моментов. Идеально подойдет для круглогодичного проживания, ведь материал внешних стен и грамотная изоляция сохраняют тепло зимой и прохладу летом, а отсутствие внешних стоек, веранды и привязки к гаражу делает этот дом гибким и практичным для любой планировки участка. Откройте для себя европейский стиль жизни в вашем новом доме и позвольте вдохновиться каждым квадратным сантиметром его пространства.

Характеристики дома

Архитектурный стиль
Автоматизированное регулирование параметров теплоносителя
Да
Балконы/лоджии
Отсутствуют
Чердачное помещение
Да
Датчики протечки воды
Да
Эксплуатируемая или зеленая кровля
Нет
Электроснабжение
Индивидуальное
Газоснабжение
2 варианта
Изоляция воздушного шума
Да
Камин
Нет
Класс энергоэффективности
-
Класс энергосбережения
-
Количество надземных этажей
2
Круглогодичное проживание
Да
Материал кровли
Битумная черепица
Материал перекрытий
Монолитные железобетонные
Материал внешних стен
Материал внутренних перегородок
Блочные
Модульное строительство с конструкциями заводского изготовления
Нет
Объем надземной части
-
Основной материал фасадов
Облицовочный кирпич
Отопление
Индивидуальное
Площадь дома
307 м2
Площадь застройки
221 м2
Подвальное помещение
Нет
Показатель компактности здания
-
Приборы учета тепловой энергии
Да
Пристроенный гараж/крытая автостоянка
Нет
Противопожарная система
Нет
Санузлы
3
Совмещенная кухня-гостиная
Нет
Спальни
5
Терраса
Да
Тип фундамента
Плитный
Тип кровли
Толщина внешних стен
400 мм
Толщина внутренних перегородок
150 мм
Улучшенные шумовые характеристики
Да
Вентиляция
2 варианта
Веранда
Нет
Водоотведение
Локальные очистные сооружения
Водоснабжение
Центральное
Высота дома
11 м
Высота потолков
3 м

Планировка

Фасад дома

Александр

Закажите выезд инженера

Александр

Выездной инженер
Закажите выезд инженера для точной диагностики и профессиональной консультации по инженерным системам. Специалист приедет в удобное время, проведёт осмотр, рассчитает стоимость работ и подберёт оптимальные решения для вашего дома.


    Похожие проекты

    Ипотека и
    рассрочка
    Проект№2
    Стоимость от:
    8 191 920
    Проект от: 52 200
    Этажей 1
    Санузлы 1
    Спальни 3
    Смотреть
    Ипотека и
    рассрочка
    6х6 один этаж
    Стоимость от:
    1 681 130
    Проект от: 13 050
    Этажей 1
    Санузлы 1
    Спальни 1
    Смотреть
    Ипотека и
    рассрочка
    Брусовой дом ТА-70
    Стоимость от:
    5 423 000
    Проект от: 31 500
    Этажей 1
    Санузлы 1
    Спальни 3
    Смотреть
    Ипотека и
    рассрочка
    Сувантоярви 147
    Стоимость от:
    10 560 440
    Проект от: 66 150
    Этажей 1
    Санузлы 2
    Спальни 3
    Смотреть
    Ипотека и
    рассрочка
    Модульный дом FL 103 (C103)
    Стоимость от:
    6 859 710
    Проект от: 55 350
    Этажей 1
    Санузлы 2
    Спальни 3
    Смотреть
    Ипотека и
    рассрочка
    Одноэтажный дом Fixplans — 1052
    Стоимость от:
    6 991 380
    Проект от: 44 550
    Этажей 1
    Санузлы 2
    Спальни 3
    Смотреть

    Как узнать стоимость дома

    back
    Оставляете заявку
    Вы заполняете форму на сайте или звоните нам. Менеджер Лайвкрафт связывается с вами для уточнения деталей: тип дома, площадь, материалы, участок строительства.
    back
    Консультация и подбор решения
    Наш специалист помогает выбрать оптимальный тип дома и конструкцию с учётом бюджета, сроков и целей — будь то дом для постоянного проживания или дача.
    back
    Расчёт предварительной стоимости
    Инженер делает первичный расчёт стоимости строительства по вашим параметрам: фундамент, коробка, кровля, отделка. Вы получаете смету с разбивкой по этапам.
    back
    Корректировка и утверждение сметы
    При необходимости вносим изменения — например, замену материалов или сокращение этапов. После согласования формируется окончательная фиксированная смета.
    back
    Заключение договора и старт работ
    После утверждения сметы заключаем официальный договор с гарантией. Вы получаете прозрачный график и точную стоимость — без скрытых расходов.

    Заказать конусльтацию по:Двухэтажный дом в европейском стиле 604

    Фото 1 Двухэтажный дом в европейском стиле 604


      Наши
      контакты

      Дмитров
      Опорный проезд 28Б
      (индустриальный парк Ниагара)
      9:00 до 18:00

      Корзина