4.9
Рейтинг на основании 120 отзывов
Дмитров
Опорный проезд 28Б
(индустриальный парк Ниагара)
Бренд "Дмитров-Дело" c 2008 года на рынке строительства в Дмитрове
Звоните 9:00 до 18:00 8 (915) 055-33-61
Бренд "Дмитров-Дело" c 2008 года на рынке строительства в Дмитрове

Двухэтажный фахверк MIDI UP

Стоимость проекта от:
82 350 ₽
БЕСПЛАТНО! ПРИ ЗАКАЗЕ СТРОИТЕЛЬСТВА
Стоимость строительства от:
12 070 320 ₽
Артикул ART-18905
Дата 26.12.2025
Архитектурный стиль Фахверк
Количество надземных этажей 2
Круглогодичное проживание Да
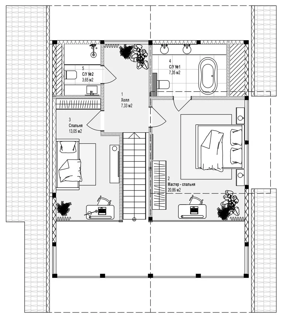
Площадь дома 183 м2
Санузлы 4
Спальни 3

Описание

Уникальная двухэтажная фахверковая «Миди ПУП» – это сочетание традиционного очарования и современных технологий. В доме размещены уютные помещения, позволяющие комфортно проживать круглый год благодаря высококачественным керамическим стенам из сэндвич‑панели PIR, которые обеспечивают надёжную теплоизоляцию и защиту от шума. Классический двускатный кверх покрывает крышу, создавая ощущение глубины и элегантности, а просторная терраса приглашает проводить выходные под открытым небом, наслаждаясь тёплым летним ветром или прохладным вечерним закатом. Фахверковый стиль придаёт этому дому неотразимую атмосферу старой европейской усадьбы, а при этом все элементы выполнены с соблюдением современных строительных норм и требований безопасности. Отсутствие балконов и веранд делает фасад более чистым и лаконичным, а все внутренние помещения обеспечены светлостью и просторностью. Этот дом – идеальное решение для семей, ищущих сочетание традиционной эстетики, практичности и комфорта, при этом без лишних вложений в инфраструктуру: у него нет встроенного гаража и чердачного помещения, но в то же время у него есть ровная терраса, идеально подходящая для барбекю и семейных посиделок. Если вы хотите жить в доме, где каждая деталь продумана до мелочей, а уют и тепло сопровождают вас каждый день, «Миди ПУП» – это ваш выбор. Войдя в его двери, вы почувствуете, как современный комфорт встречается с традиционным шармом – и это только начало истории вашего нового дома.

Характеристики дома

Архитектурный стиль
Автоматизированное регулирование параметров теплоносителя
Нет
Балконы/лоджии
Отсутствуют
Чердачное помещение
Нет
Датчики протечки воды
Нет
Эксплуатируемая или зеленая кровля
Нет
Электроснабжение
Не предусмотрено
Газоснабжение
Не предусмотрено
Изоляция воздушного шума
Нет
Камин
Нет
Класс энергоэффективности
-
Класс энергосбережения
-
Количество надземных этажей
2
Круглогодичное проживание
Да
Материал кровли
Металлочерепица
Материал перекрытий
Деревянные
Материал внешних стен
Материал внутренних перегородок
Гипсокартонные
Модульное строительство с конструкциями заводского изготовления
Нет
Объем надземной части
605 м3
Основной материал фасадов
Штукатурка
Отопление
Не предусмотрено
Площадь дома
183 м2
Площадь застройки
139 м2
Подвальное помещение
Нет
Показатель компактности здания
-
Приборы учета тепловой энергии
Нет
Пристроенный гараж/крытая автостоянка
Нет
Противопожарная система
Нет
Санузлы
4
Совмещенная кухня-гостиная
Да
Спальни
3
Терраса
Да
Тип фундамента
Свайный
Тип кровли
Толщина внешних стен
160 мм
Толщина внутренних перегородок
150 мм
Улучшенные шумовые характеристики
Нет
Вентиляция
Принудительная
Веранда
Нет
Водоотведение
Не предусмотрено
Водоснабжение
Не предусмотрено
Высота дома
7.37 м
Высота потолков
2.64 м

Планировка

Фасад дома

Александр

Закажите выезд инженера

Александр

Выездной инженер
Закажите выезд инженера для точной диагностики и профессиональной консультации по инженерным системам. Специалист приедет в удобное время, проведёт осмотр, рассчитает стоимость работ и подберёт оптимальные решения для вашего дома.


    Похожие проекты

    Ипотека и
    рассрочка
    Одноэтажный дом АН 122
    Стоимость от:
    8 790 540
    Проект от: 52 650
    Этажей 1
    Санузлы 2
    Спальни 3
    Смотреть
    Ипотека и
    рассрочка
    Ангелахта версия 2.0
    Стоимость от:
    3 842 080
    Проект от: 26 550
    Этажей 1
    Санузлы 1
    Спальни 2
    Смотреть
    Ипотека и
    рассрочка
    Деревянный дом Лабаз 9х11
    Стоимость от:
    5 739 030
    Проект от: 44 550
    Этажей 1
    Санузлы 1
    Спальни 3
    Смотреть
    Ипотека и
    рассрочка
    Дом из клееного бруса «Ратибор»
    Стоимость от:
    12 108 480
    Проект от: 84 150
    Этажей 2
    Санузлы 2
    Спальни 4
    Смотреть
    Ипотека и
    рассрочка
    Загородный дом — 107
    Стоимость от:
    7 273 860
    Проект от: 46 350
    Этажей 1
    Санузлы 2
    Спальни 3
    Смотреть
    Ипотека и
    рассрочка
    Cape cod wood-78
    Стоимость от:
    4 937 790
    Проект от: 35 100
    Этажей 1
    Санузлы 1
    Спальни 2
    Смотреть

    Как узнать стоимость дома

    back
    Оставляете заявку
    Вы заполняете форму на сайте или звоните нам. Менеджер Лайвкрафт связывается с вами для уточнения деталей: тип дома, площадь, материалы, участок строительства.
    back
    Консультация и подбор решения
    Наш специалист помогает выбрать оптимальный тип дома и конструкцию с учётом бюджета, сроков и целей — будь то дом для постоянного проживания или дача.
    back
    Расчёт предварительной стоимости
    Инженер делает первичный расчёт стоимости строительства по вашим параметрам: фундамент, коробка, кровля, отделка. Вы получаете смету с разбивкой по этапам.
    back
    Корректировка и утверждение сметы
    При необходимости вносим изменения — например, замену материалов или сокращение этапов. После согласования формируется окончательная фиксированная смета.
    back
    Заключение договора и старт работ
    После утверждения сметы заключаем официальный договор с гарантией. Вы получаете прозрачный график и точную стоимость — без скрытых расходов.

    Заказать конусльтацию по:Двухэтажный фахверк MIDI UP

    Фото 1 Двухэтажный фахверк MIDI UP


      Наши
      контакты

      Дмитров
      Опорный проезд 28Б
      (индустриальный парк Ниагара)
      9:00 до 18:00

      Корзина