4.9
Рейтинг на основании 120 отзывов
Дмитров
Опорный проезд 28Б
(индустриальный парк Ниагара)
Бренд "Дмитров-Дело" c 2008 года на рынке строительства в Дмитрове
Звоните 9:00 до 18:00 8 (915) 055-33-61
Бренд "Дмитров-Дело" c 2008 года на рынке строительства в Дмитрове

Двухэтажный коттедж Д-2023-138

Стоимость проекта от:
76 050 ₽
БЕСПЛАТНО! ПРИ ЗАКАЗЕ СТРОИТЕЛЬСТВА
Стоимость строительства от:
12 232 560 ₽
Артикул ART-17242
Дата 26.12.2025
Архитектурный стиль Классический
Количество надземных этажей 2
Круглогодичное проживание Да
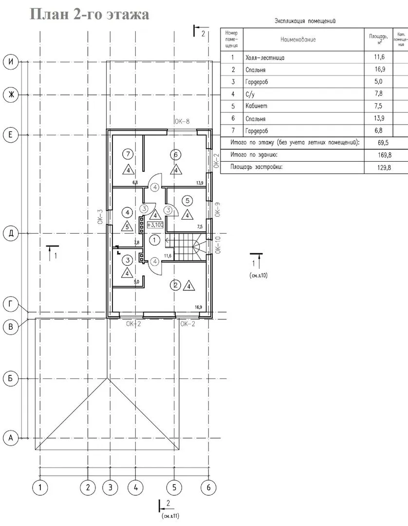
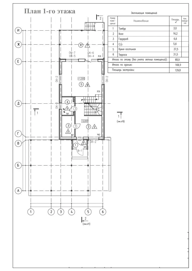
Площадь дома 169 м2
Санузлы 2
Спальни 2

Описание

**Изысканный двухэтажный коттедж «Д-2023-138» – гармония классических традиций и современных удобств** С первого взгляда вы почувствуете притягательную атмосферу настоящего дома. Просторные надземные этажи, выполненные в строгом классическом стиле, создают ощущение времени и уюта. Внутри гармонично сочетаются тепло кирпичной кладки и изысканные декоративные элементы, которые делают каждый уголок поистине особенным. Квартира приспособлена под круглогодичное проживание: изолированные газобетонные блоки обеспечивают оптимальный микроклимат, а чётко выверенная четырёхскатная (валмовая) крыша защищает от любых погодных условий. В дополнение к уютному интерьеру «Д-2023-138» предлагает множество практичных и приятных особенностей. Пристроенный гараж и крытая автостоянка предоставят надёжную защиту вашему автомобилю, устраняя заботы о внешних условиях. Огромная терраса, сквозь которую проникает мягкий солнечный свет, приглашает на прогулку или к приятным домашним собраниям под открытым небом. Чердачное помещение добавляет гибкости – от стильного офиса до уютной комнаты для хобби. Всё, что вы ищете в идеальном домике: классика, комфорт и практичность, собраны в одном великолепном образе. Откройте для себя новое качество жизни и привнесите в свой быт нотки элегантности, воплощающие истинную ценность роскоши.

Характеристики дома

Архитектурный стиль
Автоматизированное регулирование параметров теплоносителя
Да
Балконы/лоджии
Отсутствуют
Чердачное помещение
Да
Датчики протечки воды
Нет
Эксплуатируемая или зеленая кровля
Нет
Электроснабжение
Центральное
Газоснабжение
Центральное
Изоляция воздушного шума
Да
Камин
Нет
Класс энергоэффективности
-
Класс энергосбережения
-
Количество надземных этажей
2
Круглогодичное проживание
Да
Материал кровли
Металлочерепица
Материал перекрытий
Сборные железобетонные многопустотные плиты
Материал внешних стен
Материал внутренних перегородок
Блочные
Модульное строительство с конструкциями заводского изготовления
Нет
Объем надземной части
413 м3
Основной материал фасадов
Облицовочный кирпич
Отопление
Индивидуальное
Площадь дома
169 м2
Площадь застройки
129 м2
Подвальное помещение
Нет
Показатель компактности здания
-
Приборы учета тепловой энергии
Нет
Пристроенный гараж/крытая автостоянка
Да
Противопожарная система
Нет
Санузлы
2
Совмещенная кухня-гостиная
Да
Спальни
2
Терраса
Да
Тип фундамента
Свайно-ростверковый
Толщина внешних стен
450 мм
Толщина внутренних перегородок
100 мм
Улучшенные шумовые характеристики
Да
Вентиляция
Естественная
Веранда
Нет
Водоотведение
Локальные очистные сооружения
Водоснабжение
Индивидуальное
Высота дома
9 м
Высота потолков
3 м

Планировка

Фасад дома

Александр

Закажите выезд инженера

Александр

Выездной инженер
Закажите выезд инженера для точной диагностики и профессиональной консультации по инженерным системам. Специалист приедет в удобное время, проведёт осмотр, рассчитает стоимость работ и подберёт оптимальные решения для вашего дома.


    Похожие проекты

    Ипотека и
    рассрочка
    Одноэтажный дом Шойкир-90
    Стоимость от:
    6 779 520
    Проект от: 43 200
    Этажей 1
    Санузлы 2
    Спальни 3
    Смотреть
    Ипотека и
    рассрочка
    Загородный дом № 6
    Стоимость от:
    6 291 780
    Проект от: 35 550
    Этажей 1
    Санузлы 1
    Спальни 3
    Смотреть
    Ипотека и
    рассрочка
    Одноэтажный дом TLS-143
    Стоимость от:
    7 273 860
    Проект от: 46 350
    Этажей 1
    Санузлы 2
    Спальни 3
    Смотреть
    Ипотека и
    рассрочка
    Ниагара
    Стоимость от:
    8 799 840
    Проект от: 56 700
    Этажей 2
    Санузлы 2
    Спальни 5
    Смотреть
    Ипотека и
    рассрочка
    Дом под ключ №3
    Стоимость от:
    2 335 410
    Проект от: 18 900
    Этажей 1
    Санузлы 1
    Спальни 2
    Смотреть
    Ипотека и
    рассрочка
    Грецкий орех
    Стоимость от:
    10 263 000
    Проект от: 67 500
    Этажей 1
    Санузлы 2
    Спальни 3
    Смотреть

    Как узнать стоимость дома

    back
    Оставляете заявку
    Вы заполняете форму на сайте или звоните нам. Менеджер Лайвкрафт связывается с вами для уточнения деталей: тип дома, площадь, материалы, участок строительства.
    back
    Консультация и подбор решения
    Наш специалист помогает выбрать оптимальный тип дома и конструкцию с учётом бюджета, сроков и целей — будь то дом для постоянного проживания или дача.
    back
    Расчёт предварительной стоимости
    Инженер делает первичный расчёт стоимости строительства по вашим параметрам: фундамент, коробка, кровля, отделка. Вы получаете смету с разбивкой по этапам.
    back
    Корректировка и утверждение сметы
    При необходимости вносим изменения — например, замену материалов или сокращение этапов. После согласования формируется окончательная фиксированная смета.
    back
    Заключение договора и старт работ
    После утверждения сметы заключаем официальный договор с гарантией. Вы получаете прозрачный график и точную стоимость — без скрытых расходов.

    Заказать конусльтацию по:Двухэтажный коттедж Д-2023-138

    Фото 1 Двухэтажный коттедж Д-2023-138


      Наши
      контакты

      Дмитров
      Опорный проезд 28Б
      (индустриальный парк Ниагара)
      9:00 до 18:00

      Корзина