4.9
Рейтинг на основании 120 отзывов
Дмитров
Опорный проезд 28Б
(индустриальный парк Ниагара)
Бренд "Дмитров-Дело" c 2008 года на рынке строительства в Дмитрове
Звоните 9:00 до 18:00 8 (915) 055-33-61
Бренд "Дмитров-Дело" c 2008 года на рынке строительства в Дмитрове

ЭДЕМ 147

Стоимость проекта от:
68 400 ₽
БЕСПЛАТНО! ПРИ ЗАКАЗЕ СТРОИТЕЛЬСТВА
Стоимость строительства от:
11 364 480 ₽
Артикул ART-11416
Дата 25.12.2025
Архитектурный стиль Классический
Количество надземных этажей 2
Круглогодичное проживание Да
Площадь дома 152 м2
Санузлы 1
Спальни 1

Описание

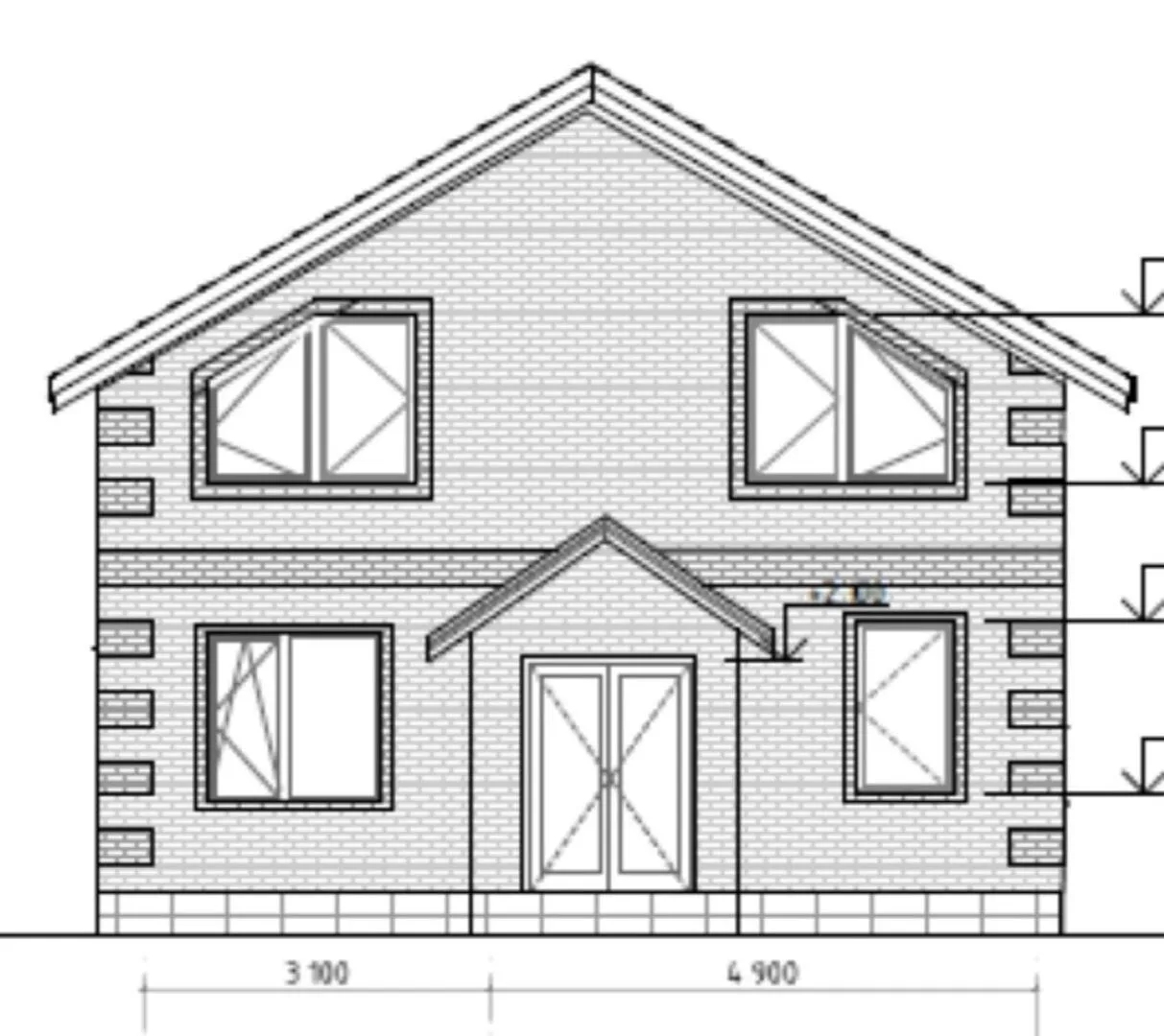
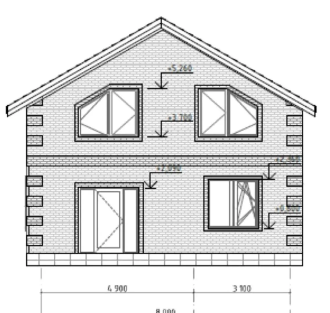
Прекрасный дом ЭДЕМ 147 – ваш идеальный уголок в самом сердце уютного города. Величественный классический фасад, выполненный из качественного кирпича, сразу привлекает внимание и дарит ощущение надёжности и комфорта. Беспрецедентная 2‑этажная планировка, подходящая для круглогодичного проживания, позволит вам наслаждаться теплом и светом в любой поре года. Внутреннее убранство дома сочетает в себе лаконичную элегантность и просторную практичность: отобранные материалы, гармоничная цветовая палитра и продуманные коммуникации создают уединённую атмосферу, где каждый день будет наполнен комфортом. Небольшой, но функциональный двор, свободный от подземных спустов, предлагает живописные места для отдыха и активной семейной жизни, а отсутствие пристроенного гаража подчёркивает чистоту и упорядоченность территории. Если вы ищете дом, где традиции встретятся с современностью, ЭДЕМ 147 станет именно тем местом, где ваши мечты об архитектурной элегантности станут реальностью.

Характеристики дома

Архитектурный стиль
Автоматизированное регулирование параметров теплоносителя
Да
Балконы/лоджии
Отсутствуют
Чердачное помещение
Нет
Датчики протечки воды
Нет
Эксплуатируемая или зеленая кровля
Нет
Электроснабжение
Центральное
Газоснабжение
Центральное
Изоляция воздушного шума
Нет
Камин
Нет
Класс энергоэффективности
-
Класс энергосбережения
-
Количество надземных этажей
2
Круглогодичное проживание
Да
Материал кровли
Металлочерепица
Материал перекрытий
Деревянные
Материал внешних стен
Материал внутренних перегородок
Блочные
Модульное строительство с конструкциями заводского изготовления
Нет
Объем надземной части
690 м3
Основной материал фасадов
Облицовочный кирпич
Отопление
Индивидуальное
Площадь дома
152 м2
Площадь застройки
94 м2
Подвальное помещение
Нет
Показатель компактности здания
-
Приборы учета тепловой энергии
Нет
Пристроенный гараж/крытая автостоянка
Нет
Противопожарная система
Нет
Санузлы
1
Совмещенная кухня-гостиная
Нет
Спальни
1
Терраса
Нет
Тип фундамента
Ленточный
Тип кровли
Толщина внешних стен
425 мм
Толщина внутренних перегородок
200 мм
Улучшенные шумовые характеристики
Да
Вентиляция
Естественная
Веранда
Нет
Водоотведение
Локальные очистные сооружения
Водоснабжение
Индивидуальное
Высота дома
8 м
Высота потолков
2.8 м

Планировка

Фасад дома

Александр

Закажите выезд инженера

Александр

Выездной инженер
Закажите выезд инженера для точной диагностики и профессиональной консультации по инженерным системам. Специалист приедет в удобное время, проведёт осмотр, рассчитает стоимость работ и подберёт оптимальные решения для вашего дома.


    Похожие проекты

    Ипотека и
    рассрочка
    Одноэтажный дом с двумя спальнями и кухней-гостиной
    Стоимость от:
    4 289 340
    Проект от: 25 650
    Этажей 1
    Санузлы 2
    Спальни 2
    Смотреть
    Ипотека и
    рассрочка
    Двухэтажный дом с мансардой ЦН-107
    Стоимость от:
    6 919 560
    Проект от: 48 150
    Этажей 2
    Санузлы 2
    Спальни 2
    Смотреть
    Ипотека и
    рассрочка
    Одноэтажный загородный дом «Рассвет»
    Стоимость от:
    2 832 445
    Проект от: 22 050
    Этажей 1
    Санузлы 1
    Спальни 2
    Смотреть
    Ипотека и
    рассрочка
    Загородный дом из газобетона «M»
    Стоимость от:
    11 331 600
    Проект от: 74 250
    Этажей 2
    Санузлы 3
    Спальни 5
    Смотреть
    Ипотека и
    рассрочка
    Рейн-3
    Стоимость от:
    14 465 880
    Проект от: 89 100
    Этажей 3
    Санузлы 5
    Спальни 3
    Смотреть
    Ипотека и
    рассрочка
    Серия «КЛАССИКА» КД-9
    Стоимость от:
    7 155 300
    Проект от: 54 900
    Этажей 2
    Санузлы 2
    Спальни 3
    Смотреть

    Как узнать стоимость дома

    back
    Оставляете заявку
    Вы заполняете форму на сайте или звоните нам. Менеджер Лайвкрафт связывается с вами для уточнения деталей: тип дома, площадь, материалы, участок строительства.
    back
    Консультация и подбор решения
    Наш специалист помогает выбрать оптимальный тип дома и конструкцию с учётом бюджета, сроков и целей — будь то дом для постоянного проживания или дача.
    back
    Расчёт предварительной стоимости
    Инженер делает первичный расчёт стоимости строительства по вашим параметрам: фундамент, коробка, кровля, отделка. Вы получаете смету с разбивкой по этапам.
    back
    Корректировка и утверждение сметы
    При необходимости вносим изменения — например, замену материалов или сокращение этапов. После согласования формируется окончательная фиксированная смета.
    back
    Заключение договора и старт работ
    После утверждения сметы заключаем официальный договор с гарантией. Вы получаете прозрачный график и точную стоимость — без скрытых расходов.

    Заказать конусльтацию по:ЭДЕМ 147

    Фото 1 ЭДЕМ 147


      Наши
      контакты

      Дмитров
      Опорный проезд 28Б
      (индустриальный парк Ниагара)
      9:00 до 18:00

      Корзина