4.9
Рейтинг на основании 120 отзывов
Дмитров
Опорный проезд 28Б
(индустриальный парк Ниагара)
Бренд "Дмитров-Дело" c 2008 года на рынке строительства в Дмитрове
Звоните 9:00 до 18:00 8 (915) 055-33-61
Бренд "Дмитров-Дело" c 2008 года на рынке строительства в Дмитрове

ЭЛЕГАНТ ПРАВЫЙ

Стоимость проекта от:
63 000 ₽
БЕСПЛАТНО! ПРИ ЗАКАЗЕ СТРОИТЕЛЬСТВА
Стоимость строительства от:
10 468 800 ₽
Артикул ART-15701
Дата 25.12.2025
Архитектурный стиль Классический
Количество надземных этажей 2
Круглогодичное проживание Да
Площадь дома 140 м2
Санузлы 2
Спальни 4

Описание

Претворитесь в уют своего собственного уголка, где каждая деталь хранит традиции времени, а всё вокруг создает ощущение безмятежной домашней уюта. Этот элегантный двухэтажный дом в классическом стиле приглашает вас к круглогодичному пребыванию в гармонии со светом и ветром. Нежная керамзитобетонная конструкция стен дарит тепло и тишину, а просторные окна пропускают утренний солнечный луч, наполняя комнату живой энергией. Вы воспримете его уникальность благодаря большому внутреннему ателье в чердачном помещении, которое позволяет превратить небольшие уголки в уютные рабочие кабинеты, мастерские или гостиную. Балкон с лоджией — маленький уголок уединения, где можно наслаждаться вечерним прохладой, а открытая терраса приглашает к летним ужинам под звёздами. Двускатная крыша придает фасаду величественную элегантность, а отсутствие прицепного гаража и веранд делает дом более открытым и свободным к внешнему пространству. Если вы цените классику и одновременно ищете современное пространство для жизни, этот дом станет для вас идеальным компаньоном. Просторные комнаты, функциональная планировка и внимание к мелким деталям позволят создать атмосферу, где сердце легко открывается, а душа обретает покой. Вбирайтесь в этот дом, а он подарит вам непредсказуемую, но всегда приятную семейную теплоту и вдохновение для новых начинаний.

Характеристики дома

Архитектурный стиль
Автоматизированное регулирование параметров теплоносителя
Да
Балконы/лоджии
1
Чердачное помещение
Да
Датчики протечки воды
Да
Эксплуатируемая или зеленая кровля
Нет
Электроснабжение
Индивидуальное
Газоснабжение
Не предусмотрено
Изоляция воздушного шума
Нет
Камин
Нет
Класс энергоэффективности
-
Класс энергосбережения
-
Количество надземных этажей
2
Круглогодичное проживание
Да
Материал кровли
Металлочерепица
Материал перекрытий
Деревянные
Материал внешних стен
Материал внутренних перегородок
Блочные
Модульное строительство с конструкциями заводского изготовления
Нет
Объем надземной части
100 м3
Основной материал фасадов
Облицовочный кирпич
Отопление
Индивидуальное
Площадь дома
140 м2
Площадь застройки
100 м2
Подвальное помещение
Нет
Показатель компактности здания
-
Приборы учета тепловой энергии
Да
Пристроенный гараж/крытая автостоянка
Нет
Противопожарная система
Нет
Санузлы
2
Совмещенная кухня-гостиная
Да
Спальни
4
Терраса
Да
Тип фундамента
Ленточный
Тип кровли
Толщина внешних стен
380 мм
Толщина внутренних перегородок
380 мм
Улучшенные шумовые характеристики
Да
Вентиляция
Принудительная
Веранда
Нет
Водоотведение
Локальные очистные сооружения
Водоснабжение
Индивидуальное
Высота дома
8.7 м
Высота потолков
3 м

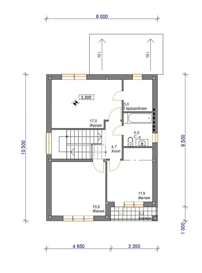
Планировка

Фасад дома

Александр

Закажите выезд инженера

Александр

Выездной инженер
Закажите выезд инженера для точной диагностики и профессиональной консультации по инженерным системам. Специалист приедет в удобное время, проведёт осмотр, рассчитает стоимость работ и подберёт оптимальные решения для вашего дома.


    Похожие проекты

    Ипотека и
    рассрочка
    Одноэтажный дом Липовый
    Стоимость от:
    4 237 200
    Проект от: 27 000
    Этажей 1
    Санузлы 1
    Спальни 3
    Смотреть
    Ипотека и
    рассрочка
    Домик Уюта
    Стоимость от:
    3 724 160
    Проект от: 21 600
    Этажей 1
    Санузлы 1
    Спальни 3
    Смотреть
    Ипотека и
    рассрочка
    ОМП-65
    Стоимость от:
    4 889 500
    Проект от: 29 250
    Этажей 1
    Санузлы 2
    Спальни 3
    Смотреть
    Ипотека и
    рассрочка
    ДомPRO 124-3К-КТ
    Стоимость от:
    12 565 960
    Проект от: 71 100
    Этажей 1
    Санузлы 2
    Спальни 3
    Смотреть
    Ипотека и
    рассрочка
    Дом ИЖС 81 с крыльцом
    Стоимость от:
    5 720 220
    Проект от: 36 450
    Этажей 1
    Санузлы 1
    Спальни 3
    Смотреть
    Ипотека и
    рассрочка
    Дом в стиле «Шале» ЭД-99
    Стоимость от:
    4 338 455
    Проект от: 31 950
    Этажей 1
    Санузлы 1
    Спальни 3
    Смотреть

    Как узнать стоимость дома

    back
    Оставляете заявку
    Вы заполняете форму на сайте или звоните нам. Менеджер Лайвкрафт связывается с вами для уточнения деталей: тип дома, площадь, материалы, участок строительства.
    back
    Консультация и подбор решения
    Наш специалист помогает выбрать оптимальный тип дома и конструкцию с учётом бюджета, сроков и целей — будь то дом для постоянного проживания или дача.
    back
    Расчёт предварительной стоимости
    Инженер делает первичный расчёт стоимости строительства по вашим параметрам: фундамент, коробка, кровля, отделка. Вы получаете смету с разбивкой по этапам.
    back
    Корректировка и утверждение сметы
    При необходимости вносим изменения — например, замену материалов или сокращение этапов. После согласования формируется окончательная фиксированная смета.
    back
    Заключение договора и старт работ
    После утверждения сметы заключаем официальный договор с гарантией. Вы получаете прозрачный график и точную стоимость — без скрытых расходов.

    Заказать конусльтацию по:ЭЛЕГАНТ ПРАВЫЙ

    Фото 1 ЭЛЕГАНТ ПРАВЫЙ


      Наши
      контакты

      Дмитров
      Опорный проезд 28Б
      (индустриальный парк Ниагара)
      9:00 до 18:00

      Корзина