4.9
Рейтинг на основании 120 отзывов
Дмитров
Опорный проезд 28Б
(индустриальный парк Ниагара)
Бренд "Дмитров-Дело" c 2008 года на рынке строительства в Дмитрове
Звоните 9:00 до 18:00 8 (915) 055-33-61
Бренд "Дмитров-Дело" c 2008 года на рынке строительства в Дмитрове

ФОРЕСТА-1

Стоимость проекта от:
56 250 ₽
БЕСПЛАТНО! ПРИ ЗАКАЗЕ СТРОИТЕЛЬСТВА
Стоимость строительства от:
8 827 500 ₽
Артикул ART-18277
Дата 26.12.2025
Архитектурный стиль Европейский
Количество надземных этажей 1
Круглогодичное проживание Да
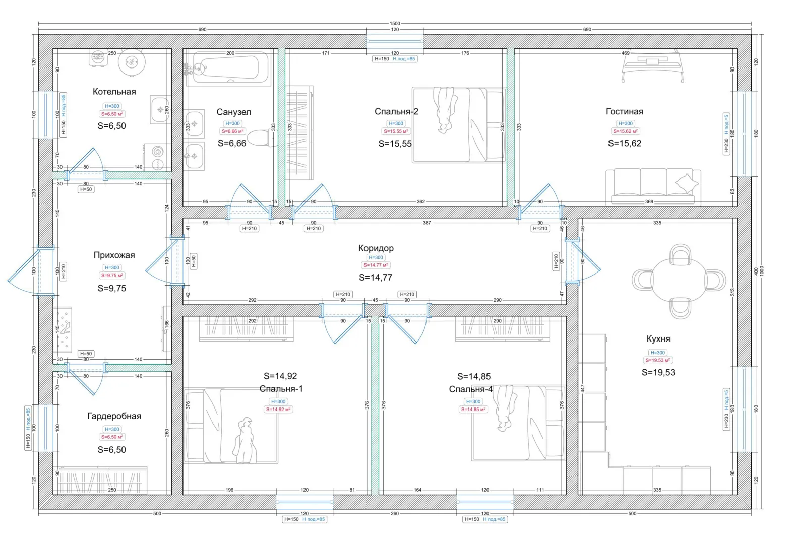
Площадь дома 125 м2
Санузлы 1
Спальни 3

Описание

Дом «ФОРЕСТА‑1» — это истинная сказка для тех, кто ценит уют и простоту, но при этом ищет современный, вневременной стиль. Вдохновлённый европейскими архитектурными традициями, он сочетает в себе строгую геометричность и тепло естественных материалов. В его облик вплетены элегантные линии двускатной крыши, изысканные газобетонные стены и продуманная планировка, позволяющая максимально впитаться в атмосферу природы, не отказывая в комфорте городской жизни. В одиннадцатьнадцать квадратных метров вы открываете двери в светлую, открытуе Wait: The above seems messed.Дом «ФОРЕСТА‑1» – это воплощение европейского стиля в компактной, но уютной форме. Один подземный этаж раскрывает собой просторные и светлые пространства, которые легко можно адаптировать под любой образ жизни. Отпечаток зимы и лет не оставят вас без уюта: утепленные газобетонные стены и двускатная крыша гарантируют комфорт круглый год, а просторный чердак дарит дополнительное пространство для хранения или для превращения в личный кабинет, детскую комнату или уютную игровую площадку. Снимайте на «ФОРЕСТА‑1» и вы получаете идеальное сочетание практичности и эстетики. Нет лишних балконов, веранд и гаражей – всё тщательно продумано для максимальной эффективности и экономии средств. Чистота линий, непритязательное расположение без окон и веранд, и без прикосновений к окружающей среде создают уникальное ощущение целостности и гармонии с природой. Этот дом – место, где каждый уголок, каждый материал продуман в деталях, чтобы создать атмосферу уюта и покоя.

Характеристики дома

Архитектурный стиль
Автоматизированное регулирование параметров теплоносителя
Да
Балконы/лоджии
Отсутствуют
Чердачное помещение
Да
Датчики протечки воды
Нет
Эксплуатируемая или зеленая кровля
Нет
Электроснабжение
Центральное
Газоснабжение
Центральное
Изоляция воздушного шума
Да
Камин
Нет
Класс энергоэффективности
C
Класс энергосбережения
A
Количество надземных этажей
1
Круглогодичное проживание
Да
Материал кровли
Металлочерепица
Материал перекрытий
Деревянные
Материал внешних стен
Материал внутренних перегородок
Пенобетонные
Модульное строительство с конструкциями заводского изготовления
Нет
Объем надземной части
704 м3
Основной материал фасадов
Штукатурка
Отопление
Индивидуальное
Площадь дома
125 м2
Площадь застройки
150 м2
Подвальное помещение
Нет
Показатель компактности здания
1.01
Приборы учета тепловой энергии
Да
Пристроенный гараж/крытая автостоянка
Нет
Противопожарная система
Нет
Санузлы
1
Совмещенная кухня-гостиная
Нет
Спальни
3
Терраса
Нет
Тип фундамента
Плитный
Тип кровли
Толщина внешних стен
300 мм
Толщина внутренних перегородок
150 мм
Улучшенные шумовые характеристики
Да
Вентиляция
Естественная
Веранда
Нет
Водоотведение
2 варианта
Водоснабжение
2 варианта
Высота дома
6.63 м
Высота потолков
3 м

Планировка

Фасад дома

Александр

Закажите выезд инженера

Александр

Выездной инженер
Закажите выезд инженера для точной диагностики и профессиональной консультации по инженерным системам. Специалист приедет в удобное время, проведёт осмотр, рассчитает стоимость работ и подберёт оптимальные решения для вашего дома.


    Похожие проекты

    Ипотека и
    рассрочка
    Одноэтажный дом СИЯНИЕ 100/140
    Стоимость от:
    6 850 140
    Проект от: 43 650
    Этажей 1
    Санузлы 1
    Спальни 3
    Смотреть
    Ипотека и
    рассрочка
    Одноэтажный жилой дом р-111
    Стоимость от:
    7 365 160
    Проект от: 44 100
    Этажей 1
    Санузлы 1
    Спальни 3
    Смотреть
    Ипотека и
    рассрочка
    Жилой дом Юдино-5
    Стоимость от:
    15 184 800
    Проект от: 94 500
    Этажей 2
    Санузлы 2
    Спальни 3
    Смотреть
    Ипотека и
    рассрочка
    Каркасный дом «Васнецов»
    Стоимость от:
    9 893 400
    Проект от: 74 250
    Этажей 2
    Санузлы 2
    Спальни 4
    Смотреть
    Ипотека и
    рассрочка
    Жилой дом БКД-78
    Стоимость от:
    6 531 965
    Проект от: 50 850
    Этажей 1
    Санузлы 2
    Спальни 3
    Смотреть
    Ипотека и
    рассрочка
    КВ-1-104В
    Стоимость от:
    7 662 380
    Проект от: 44 550
    Этажей 1
    Санузлы 2
    Спальни 3
    Смотреть

    Как узнать стоимость дома

    back
    Оставляете заявку
    Вы заполняете форму на сайте или звоните нам. Менеджер Лайвкрафт связывается с вами для уточнения деталей: тип дома, площадь, материалы, участок строительства.
    back
    Консультация и подбор решения
    Наш специалист помогает выбрать оптимальный тип дома и конструкцию с учётом бюджета, сроков и целей — будь то дом для постоянного проживания или дача.
    back
    Расчёт предварительной стоимости
    Инженер делает первичный расчёт стоимости строительства по вашим параметрам: фундамент, коробка, кровля, отделка. Вы получаете смету с разбивкой по этапам.
    back
    Корректировка и утверждение сметы
    При необходимости вносим изменения — например, замену материалов или сокращение этапов. После согласования формируется окончательная фиксированная смета.
    back
    Заключение договора и старт работ
    После утверждения сметы заключаем официальный договор с гарантией. Вы получаете прозрачный график и точную стоимость — без скрытых расходов.

    Заказать конусльтацию по:ФОРЕСТА-1

    Фото 1 ФОРЕСТА-1


      Наши
      контакты

      Дмитров
      Опорный проезд 28Б
      (индустриальный парк Ниагара)
      9:00 до 18:00

      Корзина