4.9
Рейтинг на основании 120 отзывов
Дмитров
Опорный проезд 28Б
(индустриальный парк Ниагара)
Бренд "Дмитров-Дело" c 2008 года на рынке строительства в Дмитрове
Звоните 9:00 до 18:00 8 (915) 055-33-61
Бренд "Дмитров-Дело" c 2008 года на рынке строительства в Дмитрове

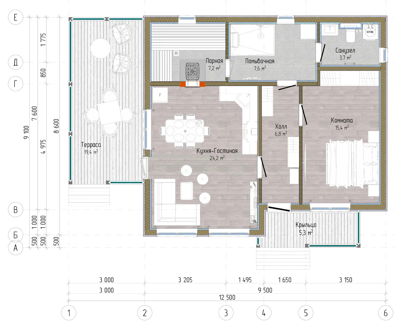
Фрея К101-1 (Каркасный дом с баней/сауной)

Стоимость проекта от:
40 500 ₽
БЕСПЛАТНО! ПРИ ЗАКАЗЕ СТРОИТЕЛЬСТВА
Стоимость строительства от:
5 217 300 ₽
Артикул ART-20515
Дата 26.12.2025
Архитектурный стиль Хайтек
Количество надземных этажей 1
Круглогодичное проживание Да
Площадь дома 90 м2
Санузлы 1
Спальни 1

Описание

Добро пожаловать в «Фрею К101‑1» – гармоничный уголок современного комфорта, где передовые технологии встречаются с уютом природы. Это каркасный дом из высококачественной древесины, выполненный в лаконичном хай‑тек стиле. С одной открытой площадью, продуманной до мельчайших деталей, вы можете наслаждаться спокойствием круглый год: тепло сохраняется, а просторы внутри радуют светом и естественной материалностью. Встроенная бани/сауна создают неповторимую атмосферу роскоши: горячий пар, ароматный кедр, а после этого – расслабляющий отдых на просторной террасе с панорамным видом на лес. Каждая зона «Фреи К101‑1» оформлена с умом и вниманием к деталям. Отсутствие балконов и веранд гарантирует плотный, устойчивый к ветру корпус, а односкатная крыша придаёт дому элегантную силуэтную линию, подчёркивая его современность. Пристроенный гараж отсутствует, но это означает, что автомобиль отдыхает в открытом пространстве, вдохновляя на активные прогулки по живописной окрестности. Благодаря использованию дерева в каркасе, дом естественно «дышит», а система теплоизоляции обеспечивает экономию энергии и стабильное внутреннее микроклимат. В «Фрее» каждый день начинается с улыбки, а завершается – с неповторимого ощущения умиротворения и уюта.

Характеристики дома

Архитектурный стиль
Автоматизированное регулирование параметров теплоносителя
Нет
Балконы/лоджии
Отсутствуют
Чердачное помещение
Нет
Датчики протечки воды
Нет
Эксплуатируемая или зеленая кровля
Нет
Электроснабжение
Индивидуальное
Газоснабжение
Индивидуальное
Изоляция воздушного шума
Нет
Камин
Да
Класс энергоэффективности
-
Класс энергосбережения
-
Количество надземных этажей
1
Круглогодичное проживание
Да
Материал кровли
Металлочерепица
Материал перекрытий
Деревянные
Материал внешних стен
Материал внутренних перегородок
Деревянные
Модульное строительство с конструкциями заводского изготовления
Нет
Объем надземной части
363 м3
Основной материал фасадов
Дерево
Отопление
Индивидуальное
Площадь дома
90 м2
Площадь застройки
101 м2
Подвальное помещение
Нет
Показатель компактности здания
-
Приборы учета тепловой энергии
Нет
Пристроенный гараж/крытая автостоянка
Нет
Противопожарная система
Нет
Санузлы
1
Совмещенная кухня-гостиная
Да
Спальни
1
Терраса
Да
Тип фундамента
Свайный
Тип кровли
Толщина внешних стен
280 мм
Толщина внутренних перегородок
100 мм
Улучшенные шумовые характеристики
Нет
Вентиляция
Принудительная
Веранда
Нет
Водоотведение
Не предусмотрено
Водоснабжение
Индивидуальное
Высота дома
4.5 м
Высота потолков
3.6 м

Планировка

Фасад дома

Александр

Закажите выезд инженера

Александр

Выездной инженер
Закажите выезд инженера для точной диагностики и профессиональной консультации по инженерным системам. Специалист приедет в удобное время, проведёт осмотр, рассчитает стоимость работ и подберёт оптимальные решения для вашего дома.


    Похожие проекты

    Ипотека и
    рассрочка
    Двухэтажный коттедж №299-1
    Стоимость от:
    12 857 280
    Проект от: 77 400
    Этажей 2
    Санузлы 2
    Спальни 5
    Смотреть
    Ипотека и
    рассрочка
    Индвидуальный жилой дом 858-19-01/23-АР
    Стоимость от:
    8 528 160
    Проект от: 51 300
    Этажей 2
    Санузлы 2
    Спальни 2
    Смотреть
    Ипотека и
    рассрочка
    ЧС-141
    Стоимость от:
    10 767 360
    Проект от: 64 800
    Этажей 2
    Санузлы 3
    Спальни 3
    Смотреть
    Ипотека и
    рассрочка
    Хютте 80
    Стоимость от:
    5 610 440
    Проект от: 36 900
    Этажей 1
    Санузлы 2
    Спальни 2
    Смотреть
    Ипотека и
    рассрочка
    Фаворит 6х9 П6
    Стоимость от:
    5 745 600
    Проект от: 43 200
    Этажей 2
    Санузлы 2
    Спальни 4
    Смотреть
    Ипотека и
    рассрочка
    Загородный дом по проекту «Нильсен».
    Стоимость от:
    4 884 000
    Проект от: 33 750
    Этажей 1
    Санузлы 1
    Спальни 2
    Смотреть

    Как узнать стоимость дома

    back
    Оставляете заявку
    Вы заполняете форму на сайте или звоните нам. Менеджер Лайвкрафт связывается с вами для уточнения деталей: тип дома, площадь, материалы, участок строительства.
    back
    Консультация и подбор решения
    Наш специалист помогает выбрать оптимальный тип дома и конструкцию с учётом бюджета, сроков и целей — будь то дом для постоянного проживания или дача.
    back
    Расчёт предварительной стоимости
    Инженер делает первичный расчёт стоимости строительства по вашим параметрам: фундамент, коробка, кровля, отделка. Вы получаете смету с разбивкой по этапам.
    back
    Корректировка и утверждение сметы
    При необходимости вносим изменения — например, замену материалов или сокращение этапов. После согласования формируется окончательная фиксированная смета.
    back
    Заключение договора и старт работ
    После утверждения сметы заключаем официальный договор с гарантией. Вы получаете прозрачный график и точную стоимость — без скрытых расходов.

    Заказать конусльтацию по:Фрея К101-1 (Каркасный дом с баней/сауной)

    Фото 1 Фрея К101-1 (Каркасный дом с баней/сауной)


      Наши
      контакты

      Дмитров
      Опорный проезд 28Б
      (индустриальный парк Ниагара)
      9:00 до 18:00

      Корзина