4.9
Рейтинг на основании 120 отзывов
Дмитров
Опорный проезд 28Б
(индустриальный парк Ниагара)
Бренд "Дмитров-Дело" c 2008 года на рынке строительства в Дмитрове
Звоните 9:00 до 18:00 8 (915) 055-33-61
Бренд "Дмитров-Дело" c 2008 года на рынке строительства в Дмитрове

Индивидуальный жилой дом

Стоимость проекта от:
71 100 ₽
БЕСПЛАТНО! ПРИ ЗАКАЗЕ СТРОИТЕЛЬСТВА
Стоимость строительства от:
10 845 120 ₽
Артикул ART-16792
Дата 26.12.2025
Архитектурный стиль Классический
Количество надземных этажей 2
Круглогодичное проживание Да
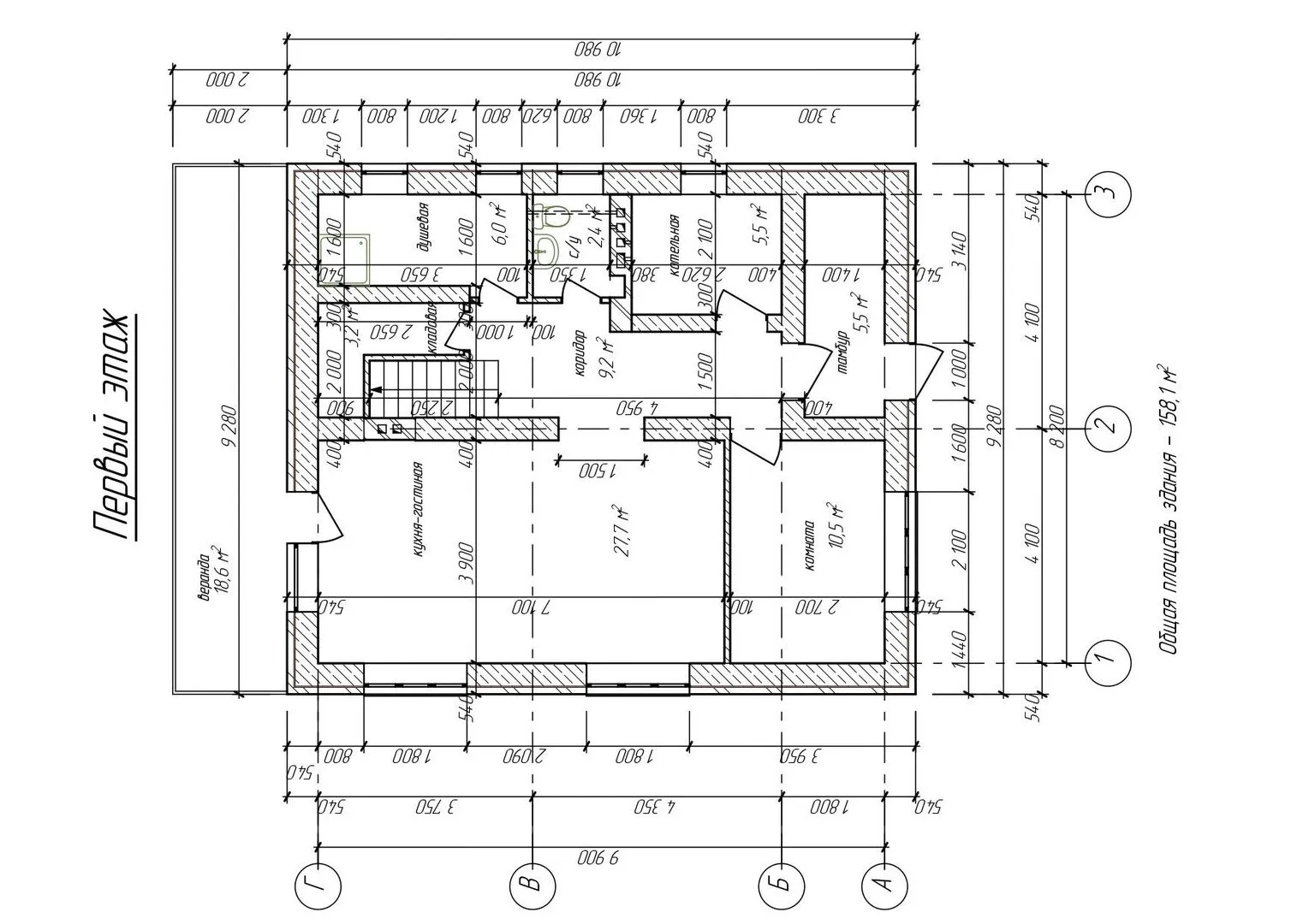
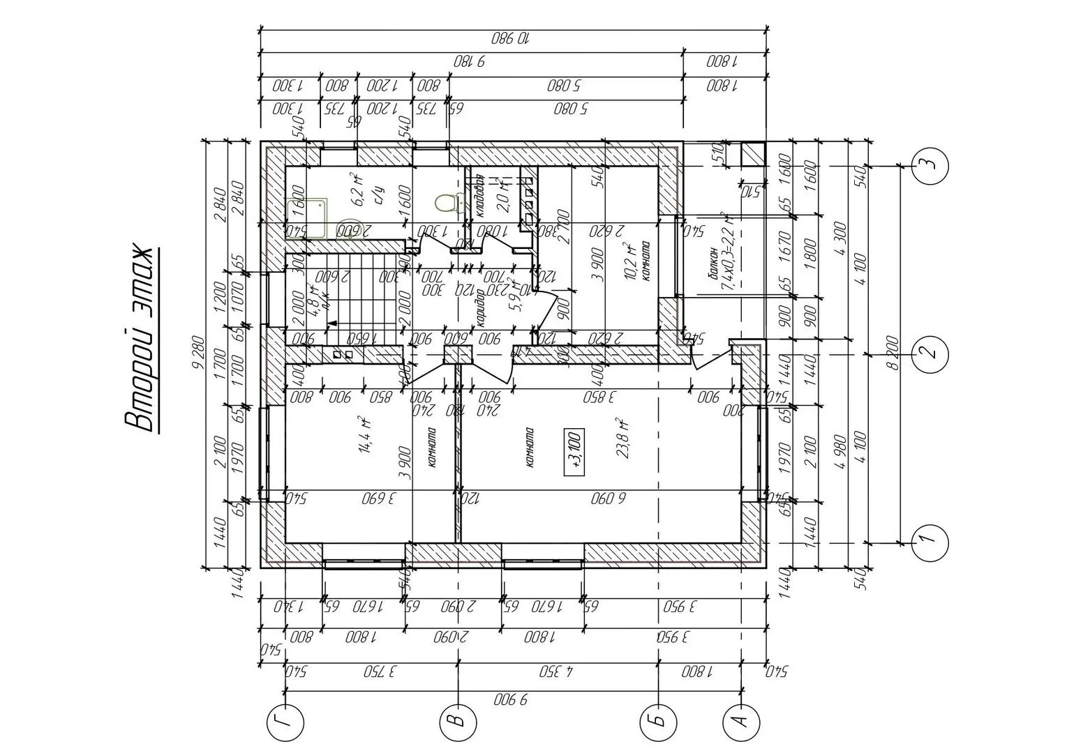
Площадь дома 158 м2
Санузлы 2
Спальни 4

Описание

Утренний туман мягко окутывает фасад этого двухэтажного, круглогодичного дома, где классический стиль сливается с современным комфортом. Плавные линии, обрамленные газобетонными блоками, создают ощущение спокойствия и устойчивости, а четырехскатная, вальмовая крыша – настоящий символ надежности и защищенности от непогоды. Весь дом пронизан светом, а просторные окна позволяют наслаждаться видами из любой комнаты. Дом оборудован уютной верандой, идеальной для спокойных вечеров или семейных завтраков на свежем воздухе. Маленький, но практичный балкон/лоджия предлагает место для отдыха с видом на природу, а чердачное помещение добавляет дополнительное пространство – будь то личная мастерская, детская игровая зона или просто загородный уголок для хранения вещей. Отсутствие прицепленного гаража подчёркивает простоту и свободный дух жизни, а крытая автостоянка, если понадобится, может быть легко обустроена в придомовой территории. Благодаря проработанной планировке, каждая деталь дома продумывается так, чтобы чувствовать себя уютно и защищённо в любое время года. Здесь каждый уголок говорит о комфорте, а каждый элемент – о внимании к деталям. Это не просто жилое пространство; это ваш новый дом, где классика встречается с функциональностью, а природа – с уютом домашнего очага.

Характеристики дома

Архитектурный стиль
Автоматизированное регулирование параметров теплоносителя
Да
Балконы/лоджии
1
Чердачное помещение
Да
Датчики протечки воды
Нет
Эксплуатируемая или зеленая кровля
Нет
Электроснабжение
Центральное
Газоснабжение
Индивидуальное
Изоляция воздушного шума
Нет
Камин
Нет
Класс энергоэффективности
-
Класс энергосбережения
-
Количество надземных этажей
2
Круглогодичное проживание
Да
Материал кровли
Битумная черепица
Материал перекрытий
Сборные железобетонные многопустотные плиты
Материал внешних стен
Материал внутренних перегородок
Кирпичные
Модульное строительство с конструкциями заводского изготовления
Нет
Объем надземной части
840 м3
Основной материал фасадов
Облицовочный кирпич
Отопление
Индивидуальное
Площадь дома
158 м2
Площадь застройки
100 м2
Подвальное помещение
Нет
Показатель компактности здания
-
Приборы учета тепловой энергии
Нет
Пристроенный гараж/крытая автостоянка
Нет
Противопожарная система
Нет
Санузлы
2
Совмещенная кухня-гостиная
Нет
Спальни
4
Терраса
Нет
Тип фундамента
Плитный
Толщина внешних стен
400 мм
Толщина внутренних перегородок
120 мм
Улучшенные шумовые характеристики
Нет
Вентиляция
Естественная
Веранда
Да
Водоотведение
Локальные очистные сооружения
Водоснабжение
Индивидуальное
Высота дома
9.5 м
Высота потолков
3 м

Планировка

Фасад дома

Александр

Закажите выезд инженера

Александр

Выездной инженер
Закажите выезд инженера для точной диагностики и профессиональной консультации по инженерным системам. Специалист приедет в удобное время, проведёт осмотр, рассчитает стоимость работ и подберёт оптимальные решения для вашего дома.


    Похожие проекты

    Ипотека и
    рассрочка
    Садовод 11×14 Барн
    Стоимость от:
    6 705 380
    Проект от: 52 200
    Этажей 1
    Санузлы 2
    Спальни 4
    Смотреть
    Ипотека и
    рассрочка
    Дакота-мини Плоская кровля
    Стоимость от:
    8 552 500
    Проект от: 56 250
    Этажей 1
    Санузлы 2
    Спальни 3
    Смотреть
    Ипотека и
    рассрочка
    Nordic 150
    Стоимость от:
    9 520 500
    Проект от: 67 500
    Этажей 1
    Санузлы 2
    Спальни 4
    Смотреть
    Ипотека и
    рассрочка
    Садовод 7х7
    Стоимость от:
    2 485 615
    Проект от: 19 350
    Этажей 1
    Санузлы 1
    Спальни 1
    Смотреть
    Ипотека и
    рассрочка
    Проект одноэтажного дома Пилот
    Стоимость от:
    14 191 980
    Проект от: 85 050
    Этажей 1
    Санузлы 3
    Спальни 4
    Смотреть
    Ипотека и
    рассрочка
    Авторский проект «Рашмор»
    Стоимость от:
    9 218 880
    Проект от: 59 400
    Этажей 2
    Санузлы 2
    Спальни 2
    Смотреть

    Как узнать стоимость дома

    back
    Оставляете заявку
    Вы заполняете форму на сайте или звоните нам. Менеджер Лайвкрафт связывается с вами для уточнения деталей: тип дома, площадь, материалы, участок строительства.
    back
    Консультация и подбор решения
    Наш специалист помогает выбрать оптимальный тип дома и конструкцию с учётом бюджета, сроков и целей — будь то дом для постоянного проживания или дача.
    back
    Расчёт предварительной стоимости
    Инженер делает первичный расчёт стоимости строительства по вашим параметрам: фундамент, коробка, кровля, отделка. Вы получаете смету с разбивкой по этапам.
    back
    Корректировка и утверждение сметы
    При необходимости вносим изменения — например, замену материалов или сокращение этапов. После согласования формируется окончательная фиксированная смета.
    back
    Заключение договора и старт работ
    После утверждения сметы заключаем официальный договор с гарантией. Вы получаете прозрачный график и точную стоимость — без скрытых расходов.

    Заказать конусльтацию по:Индивидуальный жилой дом

    Фото 1 Индивидуальный жилой дом


      Наши
      контакты

      Дмитров
      Опорный проезд 28Б
      (индустриальный парк Ниагара)
      9:00 до 18:00

      Корзина