4.9
Рейтинг на основании 120 отзывов
Дмитров
Опорный проезд 28Б
(индустриальный парк Ниагара)
Бренд "Дмитров-Дело" c 2008 года на рынке строительства в Дмитрове
Звоните 9:00 до 18:00 8 (915) 055-33-61
Бренд "Дмитров-Дело" c 2008 года на рынке строительства в Дмитрове

Индивидуальный жилой дом910-18-05/23-АР

Стоимость проекта от:
31 950 ₽
БЕСПЛАТНО! ПРИ ЗАКАЗЕ СТРОИТЕЛЬСТВА
Стоимость строительства от:
4 115 870 ₽
Артикул ART-3847
Дата 26.12.2025
Архитектурный стиль Классический
Количество надземных этажей 1
Круглогодичное проживание Да
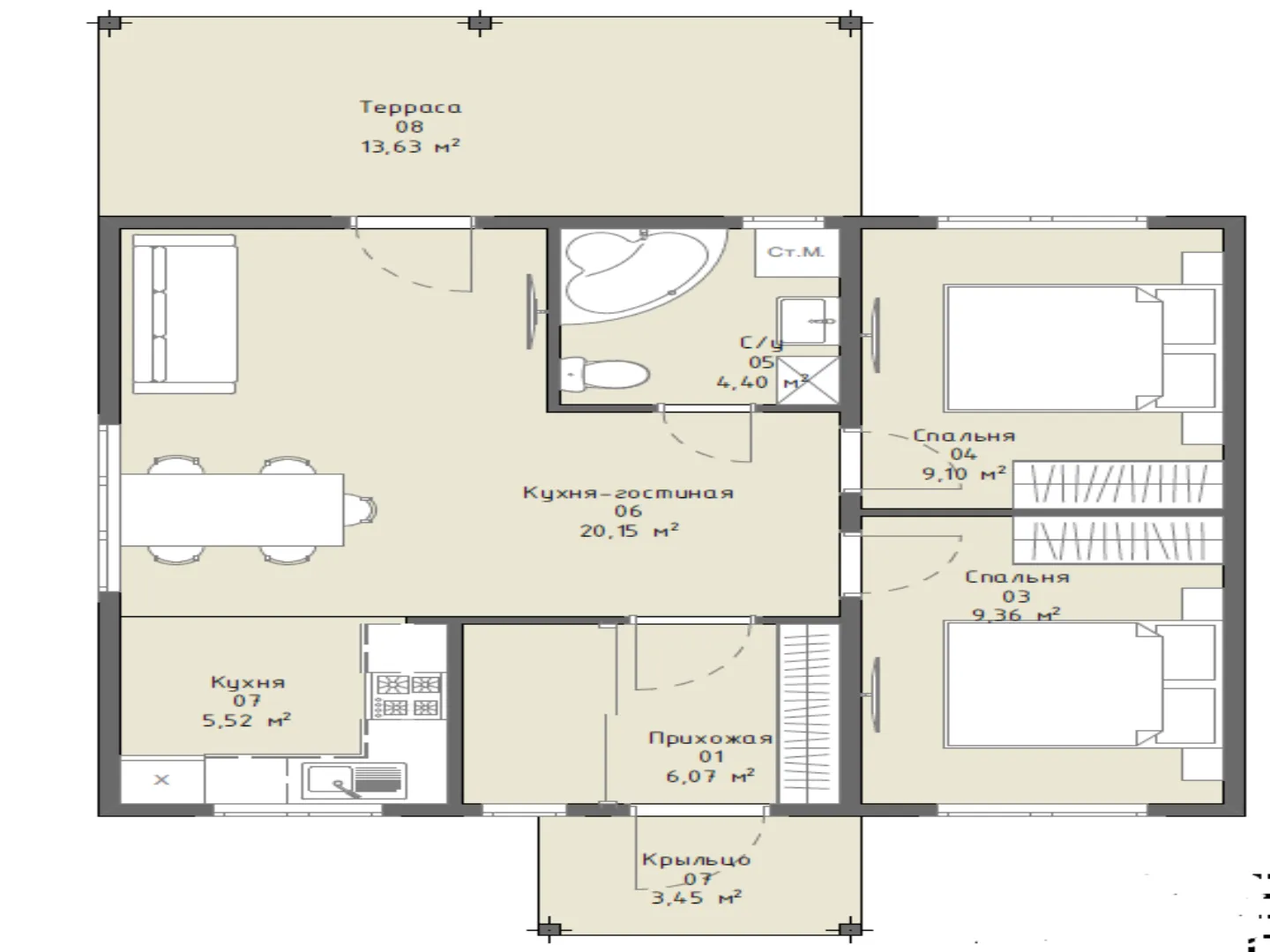
Площадь дома 71 м2
Санузлы 1
Спальни 2

Описание

Незабываемое ощущение уюта и простора раскрывается в каждом сантиметре этого классического семейного дома. Погружённый в традиционный стиль, он сочетает в себе элегантный внешний облик и изысканную продуманность, благодаря которой каждый день здесь будет ощущаться как собственный уголок покоя и благополучия. Беспрецедентно теплый, деревянный каркас придаёт помещению лёгкость и живость, а двускатная крыша подчёркивает силуэт, создавая ощущение, будто дом всегда открывает ветви к небесам. Только один надземный этаж, но он раскрывает просторный и светлый план, оптимально распределённый для круглогодичного проживания. С утра до вечера здесь всегда тепло, даже в прохладные дни, благодаря качественной теплоизоляции и изысканно подобранным материалам. Тераса, выходящая из гостиной, приглашает провести время на свежем воздухе, наслаждаясь прохладой летних вечеров и золотистой прохладой осеннего шёпота. Безусловно, в таком доме ценятся моменты простого счастья — вечер у камина, семейные посиделки и тихие часы чтения под лучами заходящего солнца. Это место, где каждый элемент продуман так, чтобы подчеркнуть ваше качество жизни: от уютных зон отдыха до продуманного пространства, позволяющего вам чувствовать связь с природой и одновременно оставаться в доме на любой сезон. Вы заслуживаете того, чтобы ваш дом стал крепостью уюта и стиля, а этот великолепный образец классической архитектуры точно станет вашим новым убежищем.

Характеристики дома

Архитектурный стиль
Автоматизированное регулирование параметров теплоносителя
-
Балконы/лоджии
Отсутствуют
Чердачное помещение
Нет
Датчики протечки воды
-
Эксплуатируемая или зеленая кровля
-
Электроснабжение
2 варианта
Газоснабжение
Не предусмотрено
Изоляция воздушного шума
-
Камин
Нет
Класс энергоэффективности
-
Класс энергосбережения
-
Количество надземных этажей
1
Круглогодичное проживание
Да
Материал кровли
Металлочерепица
Материал перекрытий
Деревянные
Материал внешних стен
Материал внутренних перегородок
Кирпичные
Модульное строительство с конструкциями заводского изготовления
Нет
Объем надземной части
186 м3
Основной материал фасадов
Сайдинг
Отопление
Индивидуальное
Площадь дома
71 м2
Площадь застройки
71 м2
Подвальное помещение
Нет
Показатель компактности здания
-
Приборы учета тепловой энергии
-
Пристроенный гараж/крытая автостоянка
Нет
Противопожарная система
Нет
Санузлы
1
Совмещенная кухня-гостиная
Да
Спальни
2
Терраса
Да
Тип фундамента
Свайный
Тип кровли
Толщина внешних стен
150 мм
Толщина внутренних перегородок
100 мм
Улучшенные шумовые характеристики
-
Вентиляция
Естественная
Веранда
Нет
Водоотведение
Центральное
Водоснабжение
Центральное
Высота дома
4.98 м
Высота потолков
2.6 м

Планировка

Фасад дома

Александр

Закажите выезд инженера

Александр

Выездной инженер
Закажите выезд инженера для точной диагностики и профессиональной консультации по инженерным системам. Специалист приедет в удобное время, проведёт осмотр, рассчитает стоимость работ и подберёт оптимальные решения для вашего дома.


    Похожие проекты

    Ипотека и
    рассрочка
    Проект Жилой дом № 13
    Стоимость от:
    4 514 400
    Проект от: 27 000
    Этажей 1
    Санузлы 1
    Спальни 2
    Смотреть
    Ипотека и
    рассрочка
    Меласс 90
    Стоимость от:
    5 656 420
    Проект от: 31 950
    Этажей 1
    Санузлы 1
    Спальни 3
    Смотреть
    Ипотека и
    рассрочка
    Дом с тремя спальнями «Березово»
    Стоимость от:
    7 909 440
    Проект от: 50 400
    Этажей 1
    Санузлы 2
    Спальни 3
    Смотреть
    Ипотека и
    рассрочка
    Валенсия
    Стоимость от:
    8 898 120
    Проект от: 56 700
    Этажей 1
    Санузлы 2
    Спальни 3
    Смотреть
    Ипотека и
    рассрочка
    Загородная вилла с террасами на двух уровнях S3-160-1 (Zx63 B+)
    Стоимость от:
    16 700 880
    Проект от: 102 150
    Этажей 2
    Санузлы 3
    Спальни 4
    Смотреть
    Ипотека и
    рассрочка
    Двухэтажный деревянный дом «Д-7»
    Стоимость от:
    12 567 120
    Проект от: 82 350
    Этажей 2
    Санузлы 2
    Спальни 2
    Смотреть

    Как узнать стоимость дома

    back
    Оставляете заявку
    Вы заполняете форму на сайте или звоните нам. Менеджер Лайвкрафт связывается с вами для уточнения деталей: тип дома, площадь, материалы, участок строительства.
    back
    Консультация и подбор решения
    Наш специалист помогает выбрать оптимальный тип дома и конструкцию с учётом бюджета, сроков и целей — будь то дом для постоянного проживания или дача.
    back
    Расчёт предварительной стоимости
    Инженер делает первичный расчёт стоимости строительства по вашим параметрам: фундамент, коробка, кровля, отделка. Вы получаете смету с разбивкой по этапам.
    back
    Корректировка и утверждение сметы
    При необходимости вносим изменения — например, замену материалов или сокращение этапов. После согласования формируется окончательная фиксированная смета.
    back
    Заключение договора и старт работ
    После утверждения сметы заключаем официальный договор с гарантией. Вы получаете прозрачный график и точную стоимость — без скрытых расходов.

    Заказать конусльтацию по:Индивидуальный жилой дом910-18-05/23-АР

    Фото 1 Индивидуальный жилой дом910-18-05/23-АР


      Наши
      контакты

      Дмитров
      Опорный проезд 28Б
      (индустриальный парк Ниагара)
      9:00 до 18:00

      Корзина