4.9
Рейтинг на основании 120 отзывов
Дмитров
Опорный проезд 28Б
(индустриальный парк Ниагара)
Бренд "Дмитров-Дело" c 2008 года на рынке строительства в Дмитрове
Звоните 9:00 до 18:00 8 (915) 055-33-61
Бренд "Дмитров-Дело" c 2008 года на рынке строительства в Дмитрове

Каркасный дом Елагино 21НШ08.00

Стоимость проекта от:
84 600 ₽
БЕСПЛАТНО! ПРИ ЗАКАЗЕ СТРОИТЕЛЬСТВА
Стоимость строительства от:
11 268 720 ₽
Артикул ART-16818
Дата 26.12.2025
Архитектурный стиль Классический
Количество надземных этажей 2
Круглогодичное проживание Да
Площадь дома 188 м2
Санузлы 3
Спальни 4

Описание

**Каркасный дом в Елагино – уют в каждой детали** Этот прекрасный двухэтажный дом 21НШ08.00, выполненный в традиционном классическом стиле, сочетает в себе элегантность и практичную простоту. Его деревянная каркасная конструкция гарантирует тепло и изоляцию на всю длительность года, а четыре скатных крыши придают фасаду строгий, но в то же время дружелюбный вид. Каждый уголок пропитан теплом и гармонией, создавая безупречное пространство для семьи, где каждый день будет наполнен комфортом. Внутри вы ощутите истинный уют: просторные комнаты, светлые детали и продуманная планировка, позволяющие вам легко адаптировать пространство под любые потребности. Два надземных этажа – это возможность разделить зоны общественной и личной жизни, а классический стиль фасада и отделки добавляют образу изысканности. Благодаря качественной теплоизоляции и современным системам, дом идеален для круглогодичного проживания, обеспечивая вам спокойствие и энергоэффективность. Снаружи – это настоящий уголок свободы: большая терраса с видом на живописную местность, куда можно уединиться, отдохнуть и насладиться природой. Отсутствие веранд и лоджий позволяет сконцентрировать внимание на открытой террасе, создавая идеальное место для ярких закатов и утреннего кофе. Плюс, отсутствие конструктивных ограничений обеспечивает вам гибкость в обустройстве личного сада или небольшого участка. Этот дом в Елагино – ваш надежный выбор для комфортной жизни на природе, где классика встречается с функциональностью, а каждый новый день начинает с приятного вида на ваш уютный уголок.

Характеристики дома

Архитектурный стиль
Автоматизированное регулирование параметров теплоносителя
Нет
Балконы/лоджии
Отсутствуют
Чердачное помещение
Нет
Датчики протечки воды
Нет
Эксплуатируемая или зеленая кровля
Нет
Электроснабжение
Индивидуальное
Газоснабжение
Индивидуальное
Изоляция воздушного шума
Нет
Камин
Нет
Класс энергоэффективности
-
Класс энергосбережения
-
Количество надземных этажей
2
Круглогодичное проживание
Да
Материал кровли
Металлочерепица
Материал перекрытий
Деревянные
Материал внешних стен
Материал внутренних перегородок
Деревянные
Модульное строительство с конструкциями заводского изготовления
Нет
Объем надземной части
288 м3
Основной материал фасадов
Сайдинг
Отопление
Индивидуальное
Площадь дома
188 м2
Площадь застройки
160 м2
Подвальное помещение
Нет
Показатель компактности здания
-
Приборы учета тепловой энергии
Нет
Пристроенный гараж/крытая автостоянка
Нет
Противопожарная система
Нет
Санузлы
3
Совмещенная кухня-гостиная
Да
Спальни
4
Терраса
Да
Тип фундамента
Свайный
Толщина внешних стен
200 мм
Толщина внутренних перегородок
150 мм
Улучшенные шумовые характеристики
Нет
Вентиляция
Естественная
Веранда
Нет
Водоотведение
Локальные очистные сооружения
Водоснабжение
Индивидуальное
Высота дома
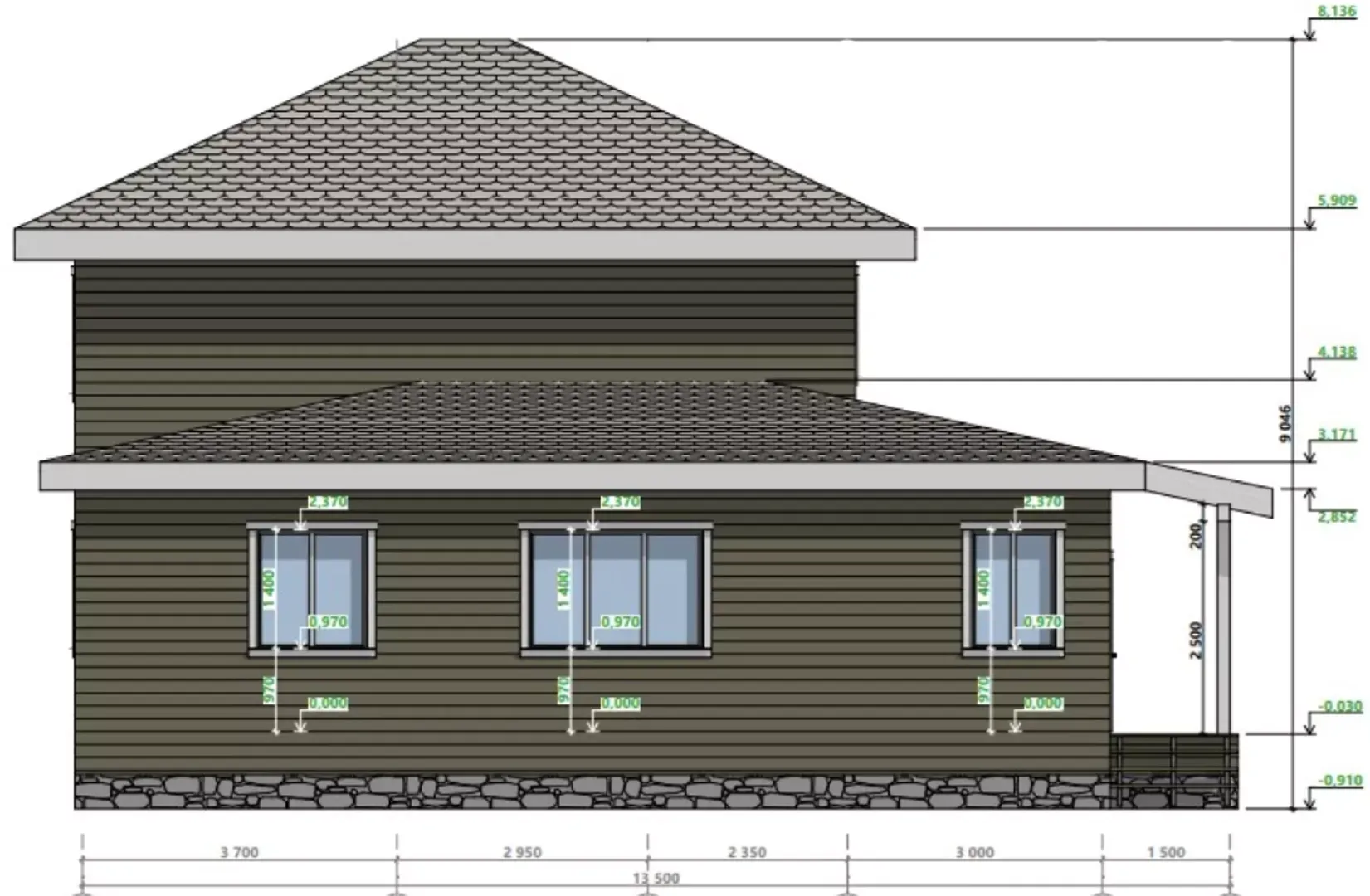
8.14 м
Высота потолков
2.7 м

Планировка

Фасад дома

Александр

Закажите выезд инженера

Александр

Выездной инженер
Закажите выезд инженера для точной диагностики и профессиональной консультации по инженерным системам. Специалист приедет в удобное время, проведёт осмотр, рассчитает стоимость работ и подберёт оптимальные решения для вашего дома.


    Похожие проекты

    Ипотека и
    рассрочка
    Двухэтажный дом Д-7-60
    Стоимость от:
    4 425 600
    Проект от: 27 000
    Этажей 2
    Санузлы 1
    Спальни 2
    Смотреть
    Ипотека и
    рассрочка
    Одноэтажный кирпичный дом ИП-165
    Стоимость от:
    11 341 220
    Проект от: 67 950
    Этажей 1
    Санузлы 2
    Спальни 4
    Смотреть
    Ипотека и
    рассрочка
    Клевер
    Стоимость от:
    4 405 830
    Проект от: 35 550
    Этажей 1
    Санузлы 1
    Спальни 2
    Смотреть
    Ипотека и
    рассрочка
    SB-126
    Стоимость от:
    7 706 880
    Проект от: 50 400
    Этажей 2
    Санузлы 1
    Спальни 4
    Смотреть
    Ипотека и
    рассрочка
    Каркасный дом по проекту «Торонто»
    Стоимость от:
    6 896 400
    Проект от: 51 750
    Этажей 2
    Санузлы 2
    Спальни 4
    Смотреть
    Ипотека и
    рассрочка
    Проект Лоренц -140
    Стоимость от:
    8 498 700
    Проект от: 63 900
    Этажей 2
    Санузлы 2
    Спальни 4
    Смотреть

    Как узнать стоимость дома

    back
    Оставляете заявку
    Вы заполняете форму на сайте или звоните нам. Менеджер Лайвкрафт связывается с вами для уточнения деталей: тип дома, площадь, материалы, участок строительства.
    back
    Консультация и подбор решения
    Наш специалист помогает выбрать оптимальный тип дома и конструкцию с учётом бюджета, сроков и целей — будь то дом для постоянного проживания или дача.
    back
    Расчёт предварительной стоимости
    Инженер делает первичный расчёт стоимости строительства по вашим параметрам: фундамент, коробка, кровля, отделка. Вы получаете смету с разбивкой по этапам.
    back
    Корректировка и утверждение сметы
    При необходимости вносим изменения — например, замену материалов или сокращение этапов. После согласования формируется окончательная фиксированная смета.
    back
    Заключение договора и старт работ
    После утверждения сметы заключаем официальный договор с гарантией. Вы получаете прозрачный график и точную стоимость — без скрытых расходов.

    Заказать конусльтацию по:Каркасный дом Елагино 21НШ08.00

    Фото 1 Каркасный дом Елагино 21НШ08.00


      Наши
      контакты

      Дмитров
      Опорный проезд 28Б
      (индустриальный парк Ниагара)
      9:00 до 18:00

      Корзина