4.9
Рейтинг на основании 120 отзывов
Дмитров
Опорный проезд 28Б
(индустриальный парк Ниагара)
Бренд "Дмитров-Дело" c 2008 года на рынке строительства в Дмитрове
Звоните 9:00 до 18:00 8 (915) 055-33-61
Бренд "Дмитров-Дело" c 2008 года на рынке строительства в Дмитрове

Каркасный Дом «Финский-1»

Стоимость проекта от:
52 650 ₽
БЕСПЛАТНО! ПРИ ЗАКАЗЕ СТРОИТЕЛЬСТВА
Стоимость строительства от:
6 782 490 ₽
Артикул ART-18302
Дата 26.12.2025
Архитектурный стиль Классический
Количество надземных этажей 1
Круглогодичное проживание Да
Площадь дома 117 м2
Санузлы 2
Спальни 3

Описание

Дом «Финский-1» – это настоящее воплощение классической красоты и практичности в деревянном каркасе. Он рассчитан на один надземный этаж, но при этом полностью обеспечивает комфорт круглогодичного проживания. Просторные комнаты обрамлены большими окнами, пропускающими мягкий свет, а строгий, но благородный архитектурный стиль придает дому уют и элегантность. Крыша в два ската укладывается над высокими деревянными стенами, создавая приятную атмосферу в каждом уголке. На крыше находится терраса, где можно наслаждаться свежим воздухом, рассветами и закатами, а также просторному чердачному помещению, которое легко преобразовать в дополнительное зонирование – гостиную, игровую комнату или просто кладовой. Несмотря на отсутствие гаража и веранд, дом предлагает безмятежность и уют, которые заставят почувствовать себя дома с первых мгновений. «Финский-1» – это выбор тех, кто ценит сочетание функциональности и эстетики, а также готов наслаждаться простотой и теплом собственного дома в любое время года. Погрузитесь в атмосферу уюта, где каждый элемент продуман до мелочей, и сделайте свой дом настоящей крепостью спокойствия и комфорта.

Характеристики дома

Архитектурный стиль
Автоматизированное регулирование параметров теплоносителя
Да
Балконы/лоджии
Отсутствуют
Чердачное помещение
Да
Датчики протечки воды
Нет
Эксплуатируемая или зеленая кровля
Нет
Электроснабжение
Центральное
Газоснабжение
Центральное
Изоляция воздушного шума
Нет
Камин
Нет
Класс энергоэффективности
-
Класс энергосбережения
-
Количество надземных этажей
1
Круглогодичное проживание
Да
Материал кровли
Металлочерепица
Материал перекрытий
Деревянные
Материал внешних стен
Материал внутренних перегородок
Деревянные
Модульное строительство с конструкциями заводского изготовления
Нет
Объем надземной части
429 м3
Основной материал фасадов
Дерево
Отопление
Индивидуальное
Площадь дома
117 м2
Площадь застройки
132 м2
Подвальное помещение
Нет
Показатель компактности здания
-
Приборы учета тепловой энергии
Да
Пристроенный гараж/крытая автостоянка
Нет
Противопожарная система
Нет
Санузлы
2
Совмещенная кухня-гостиная
Да
Спальни
3
Терраса
Да
Тип фундамента
Свайный
Тип кровли
Толщина внешних стен
240 мм
Толщина внутренних перегородок
190 мм
Улучшенные шумовые характеристики
Нет
Вентиляция
Естественная
Веранда
Нет
Водоотведение
Локальные очистные сооружения
Водоснабжение
Индивидуальное
Высота дома
5.12 м
Высота потолков
2.8 м

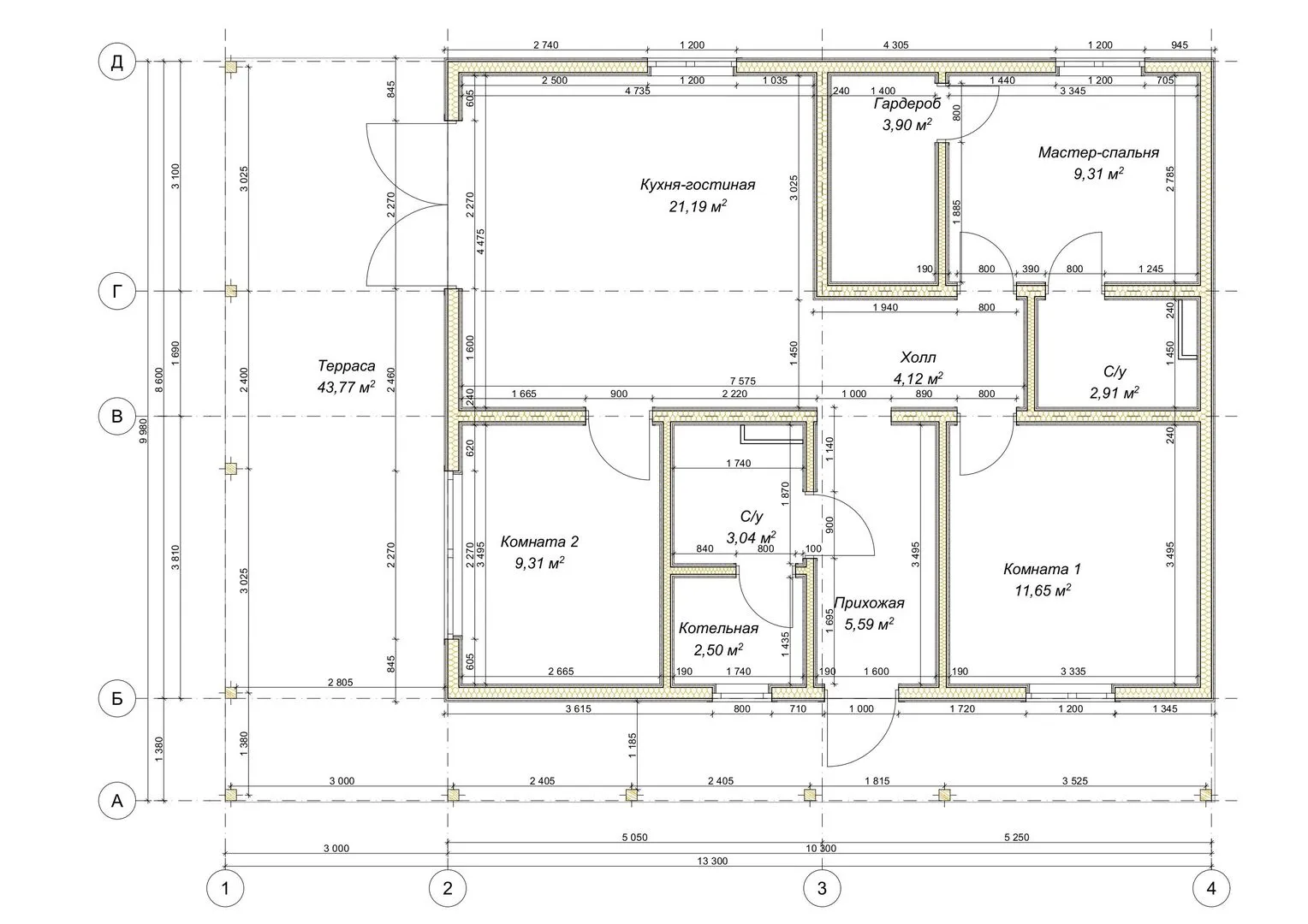
Планировка

Фасад дома

Александр

Закажите выезд инженера

Александр

Выездной инженер
Закажите выезд инженера для точной диагностики и профессиональной консультации по инженерным системам. Специалист приедет в удобное время, проведёт осмотр, рассчитает стоимость работ и подберёт оптимальные решения для вашего дома.


    Похожие проекты

    Ипотека и
    рассрочка
    Классик 126
    Стоимость от:
    8 799 840
    Проект от: 56 700
    Этажей 2
    Санузлы 2
    Спальни 4
    Смотреть
    Ипотека и
    рассрочка
    Одноэтажный дом FIXPLANS — 1970
    Стоимость от:
    10 536 680
    Проект от: 69 300
    Этажей 1
    Санузлы 3
    Спальни 4
    Смотреть
    Ипотека и
    рассрочка
    Одноэтажный дом Grand-129
    Стоимость от:
    17 342 820
    Проект от: 103 950
    Этажей 1
    Санузлы 2
    Спальни 3
    Смотреть
    Ипотека и
    рассрочка
    Ле-Друат
    Стоимость от:
    8 278 820
    Проект от: 54 450
    Этажей 1
    Санузлы 2
    Спальни 3
    Смотреть
    Ипотека и
    рассрочка
    Двухэтажный дом 133
    Стоимость от:
    15 364 800
    Проект от: 99 000
    Этажей 2
    Санузлы 2
    Спальни 3
    Смотреть
    Ипотека и
    рассрочка
    «Классика»
    Стоимость от:
    7 665 240
    Проект от: 45 900
    Этажей 1
    Санузлы 1
    Спальни 3
    Смотреть

    Как узнать стоимость дома

    back
    Оставляете заявку
    Вы заполняете форму на сайте или звоните нам. Менеджер Лайвкрафт связывается с вами для уточнения деталей: тип дома, площадь, материалы, участок строительства.
    back
    Консультация и подбор решения
    Наш специалист помогает выбрать оптимальный тип дома и конструкцию с учётом бюджета, сроков и целей — будь то дом для постоянного проживания или дача.
    back
    Расчёт предварительной стоимости
    Инженер делает первичный расчёт стоимости строительства по вашим параметрам: фундамент, коробка, кровля, отделка. Вы получаете смету с разбивкой по этапам.
    back
    Корректировка и утверждение сметы
    При необходимости вносим изменения — например, замену материалов или сокращение этапов. После согласования формируется окончательная фиксированная смета.
    back
    Заключение договора и старт работ
    После утверждения сметы заключаем официальный договор с гарантией. Вы получаете прозрачный график и точную стоимость — без скрытых расходов.

    Заказать конусльтацию по:Каркасный Дом «Финский-1»

    Фото 1 Каркасный Дом «Финский-1»


      Наши
      контакты

      Дмитров
      Опорный проезд 28Б
      (индустриальный парк Ниагара)
      9:00 до 18:00

      Корзина