4.9
Рейтинг на основании 120 отзывов
Дмитров
Опорный проезд 28Б
(индустриальный парк Ниагара)
Бренд "Дмитров-Дело" c 2008 года на рынке строительства в Дмитрове
Звоните 9:00 до 18:00 8 (915) 055-33-61
Бренд "Дмитров-Дело" c 2008 года на рынке строительства в Дмитрове

Каркасный дом КД-24 8 х 10,5 метров

Стоимость проекта от:
66 600 ₽
Стоимость строительства от:
8 871 120 ₽
Артикул ART-14624
Дата 25.12.2025
Архитектурный стиль Классический
Количество надземных этажей 2
Круглогодичное проживание Да
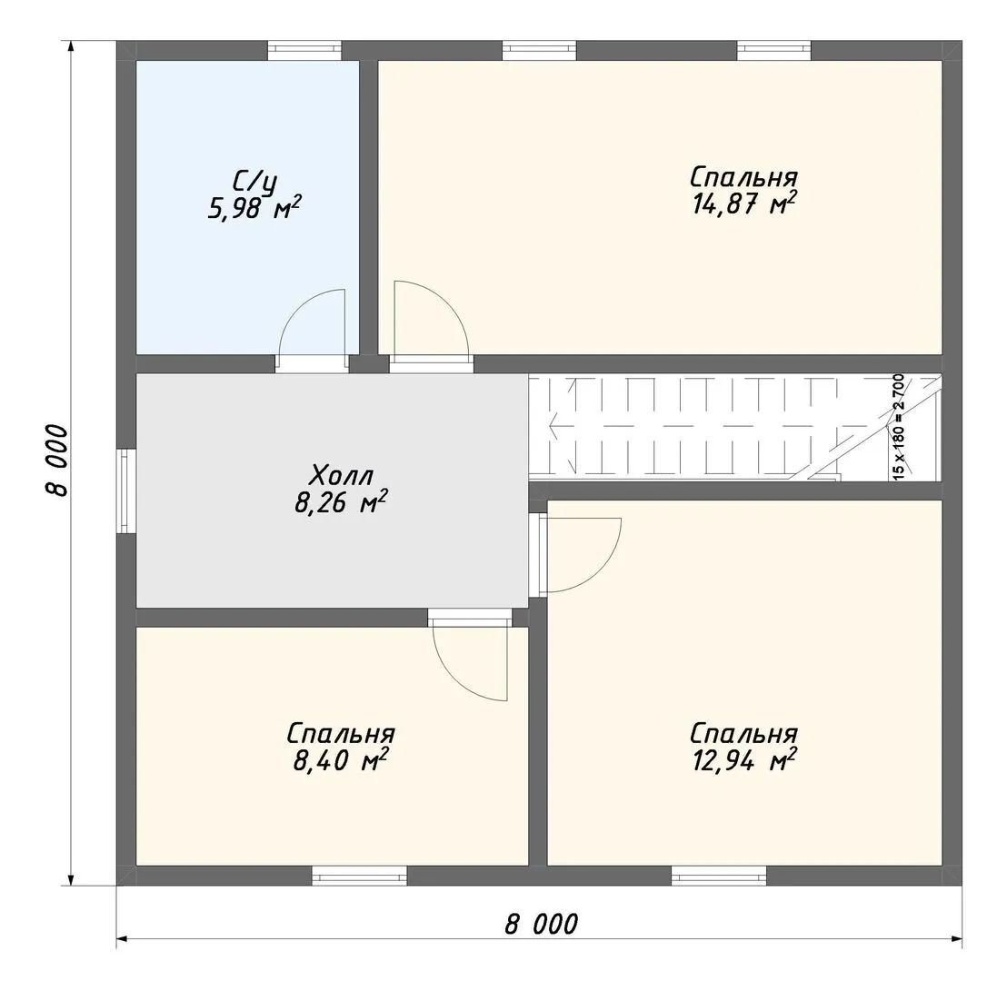
Площадь дома 148 м2
Санузлы 2
Спальни 4

Описание

Откройте двери в уютный уголок, где классика встречает современную функциональность. Каркасный дом КД‑24 площадью 8 × 10,5 м, распределённый по двум надземным этажам, создан для вашего круглогодичного комфорта. Приходя сюда, вы сразу ощущаете тепло, которое проникает сквозь деревянную конструкцию, сохраняя тепло в холодные дни и прохладу в летний зной. Простор и уют сливаются в гармоничную симфонию, а классический стиль придаёт дому неповторимый шарм, который будет ценен не только сейчас, но и в годы, которые еще ждут. Вы будете любить каждую деталь: тихие, светлые комнаты, пропитанные природным светом, идеальны для семейного отдыха и творческих вдохновений. Отсутствие балконов и веранды не помешает создать уют в каждой зоне – ведь для этого наш дом предлагает просторную террасу, где можно насладиться свежим воздухом, уютным ужином на открытом воздухе или тихим чтением под звёздами. Прямо за вашими дверями – тихая улица, где каждый уголок наполнен возможностями, позволяющими превратить ваш дом в оазис мира и спокойствия.

Характеристики дома

Архитектурный стиль
Классический
Автоматизированное регулирование параметров теплоносителя
Да
Балконы/лоджии
Отсутствуют
Чердачное помещение
Нет
Датчики протечки воды
Нет
Эксплуатируемая или зеленая кровля
Нет
Электроснабжение
Центральное
Газоснабжение
Центральное
Изоляция воздушного шума
Да
Камин
Нет
Класс энергоэффективности
A+
Класс энергосбережения
A+
Количество надземных этажей
2
Круглогодичное проживание
Да
Материал кровли
Металлочерепица
Материал перекрытий
Деревянные
Материал внешних стен
Деревянные каркасные
Материал внутренних перегородок
Деревянные
Модульное строительство с конструкциями заводского изготовления
Нет
Объем надземной части
420 м3
Основной материал фасадов
Фасадная плитка
Отопление
Индивидуальное
Площадь дома
148 м2
Площадь застройки
87 м2
Подвальное помещение
Нет
Показатель компактности здания
0.9
Приборы учета тепловой энергии
Да
Пристроенный гараж/крытая автостоянка
Нет
Противопожарная система
Нет
Санузлы
2
Совмещенная кухня-гостиная
Да
Спальни
4
Терраса
Да
Тип фундамента
Свайный
Тип кровли
Двускатная
Толщина внешних стен
270 мм
Толщина внутренних перегородок
170 мм
Улучшенные шумовые характеристики
Да
Вентиляция
Естественная
Веранда
Нет
Водоотведение
Локальные очистные сооружения
Водоснабжение
Индивидуальное
Высота дома
8.5 м
Высота потолков
2.6 м

Планировка

Фасад дома

Александр

Закажите выезд инженера

Александр

Выездной инженер
Закажите выезд инженера для точной диагностики и профессиональной консультации по инженерным системам. Специалист приедет в удобное время, проведёт осмотр, рассчитает стоимость работ и подберёт оптимальные решения для вашего дома.


    Похожие проекты

    Ипотека и
    рассрочка
    Дом Люкс 160 м2
    Стоимость от:
    10 975 920
    Проект от: 74 700
    Этажей 2
    Санузлы 2
    Спальни 3
    Смотреть
    Ипотека и
    рассрочка
    Двухэтажный дом В180
    Стоимость от:
    12 710 880
    Проект от: 81 900
    Этажей 2
    Санузлы 3
    Спальни 3
    Смотреть
    Ипотека и
    рассрочка
    Современный дом комфорт-класса «VALO NEO 90»
    Стоимость от:
    5 712 300
    Проект от: 40 500
    Этажей 1
    Санузлы 2
    Спальни 3
    Смотреть
    Ипотека и
    рассрочка
    Двухэтажный деревянный дом «Д-9»
    Стоимость от:
    14 214 480
    Проект от: 93 150
    Этажей 2
    Санузлы 2
    Спальни 2
    Смотреть
    Ипотека и
    рассрочка
    Двухэтажный загородный дом Д-142
    Стоимость от:
    9 917 280
    Проект от: 63 900
    Этажей 2
    Санузлы 3
    Спальни 4
    Смотреть
    Ипотека и
    рассрочка
    ДСС-2212
    Стоимость от:
    4 855 620
    Проект от: 37 800
    Этажей 1
    Санузлы 2
    Спальни 3
    Смотреть

    Как узнать стоимость дома

    back
    Оставляете заявку
    Вы заполняете форму на сайте или звоните нам. Менеджер Лайвкрафт связывается с вами для уточнения деталей: тип дома, площадь, материалы, участок строительства.
    back
    Консультация и подбор решения
    Наш специалист помогает выбрать оптимальный тип дома и конструкцию с учётом бюджета, сроков и целей — будь то дом для постоянного проживания или дача.
    back
    Расчёт предварительной стоимости
    Инженер делает первичный расчёт стоимости строительства по вашим параметрам: фундамент, коробка, кровля, отделка. Вы получаете смету с разбивкой по этапам.
    back
    Корректировка и утверждение сметы
    При необходимости вносим изменения — например, замену материалов или сокращение этапов. После согласования формируется окончательная фиксированная смета.
    back
    Заключение договора и старт работ
    После утверждения сметы заключаем официальный договор с гарантией. Вы получаете прозрачный график и точную стоимость — без скрытых расходов.

    Заказать конусльтацию по:Каркасный дом КД-24 8 х 10,5 метров

    Фото 1 Каркасный дом КД-24 8 х 10,5 метров


      Наши
      контакты

      Дмитров
      Опорный проезд 28Б
      (индустриальный парк Ниагара)
      9:00 до 18:00