4.9
Рейтинг на основании 120 отзывов
Дмитров
Опорный проезд 28Б
(индустриальный парк Ниагара)
Бренд "Дмитров-Дело" c 2008 года на рынке строительства в Дмитрове
Звоните 9:00 до 18:00 8 (915) 055-33-61
Бренд "Дмитров-Дело" c 2008 года на рынке строительства в Дмитрове

Каркасный дом Керимар 76

Стоимость проекта от:
38 250 ₽
БЕСПЛАТНО! ПРИ ЗАКАЗЕ СТРОИТЕЛЬСТВА
Стоимость строительства от:
5 090 460 ₽
Артикул ART-18222
Дата 26.12.2025
Архитектурный стиль Европейский
Количество надземных этажей 2
Круглогодичное проживание Да
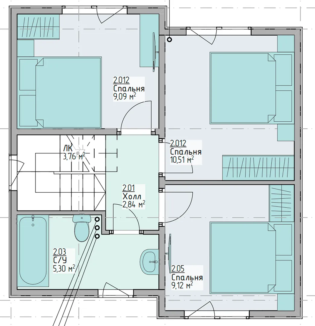
Площадь дома 85 м2
Санузлы 2
Спальни 4

Описание

Наслаждайтесь уютом европейского дизайна в сердце природы с каркасным домом «Керимар 76». Этот двухэтажный дом сочетает в себе эстетику классического европейского стиля с современными инженерными решениями, которые делают его идеальным для круглогодичного проживания. Красивая дубовая панель, обработанная в теплом тонированном покрытии, придаёт фасаду нотки благородства, а двускатная крыша добавляет ощущение традиционной уютности, сохраняя при этом простоту и аккуратность линий. Вы сможете полностью раскрыть потенциал каждой комнаты, наслаждаясь просторными световыми проёмами и плавной планировкой, которая подчёркивает связь дома и природного окружения. Просторная терраса приглашаёт к спокойным вечерам и к встречам с близкими, создавая идеальное место для летнего барбекю, а также для того, чтобы утонуть в тишине закатного солнца. Внутри дом наполнен естественным светом, а материал каркаса обеспечивает отличную тепло- и шумоизоляцию, гарантируя комфорт даже в самые холодные зимы. В «Керимар 76» вы почувствуете гармонию между функциональностью и стилем: каждая деталь продумана, чтобы сделать ваш дом местом, куда хочется возвращаться вновь и вновь. Это ваш шанс воплотить мечту о спокойном и элегантном жилье, без компромиссов в дизайне и качестве жизни.

Характеристики дома

Архитектурный стиль
Автоматизированное регулирование параметров теплоносителя
Нет
Балконы/лоджии
Отсутствуют
Чердачное помещение
Нет
Датчики протечки воды
Нет
Эксплуатируемая или зеленая кровля
Нет
Электроснабжение
Не предусмотрено
Газоснабжение
Не предусмотрено
Изоляция воздушного шума
Нет
Камин
Нет
Класс энергоэффективности
-
Класс энергосбережения
-
Количество надземных этажей
2
Круглогодичное проживание
Да
Материал кровли
Металлочерепица
Материал перекрытий
Деревянные
Материал внешних стен
Материал внутренних перегородок
Деревянные
Модульное строительство с конструкциями заводского изготовления
Нет
Объем надземной части
281 м3
Основной материал фасадов
Дерево
Отопление
Не предусмотрено
Площадь дома
85 м2
Площадь застройки
50 м2
Подвальное помещение
Нет
Показатель компактности здания
-
Приборы учета тепловой энергии
Нет
Пристроенный гараж/крытая автостоянка
Нет
Противопожарная система
Нет
Санузлы
2
Совмещенная кухня-гостиная
Да
Спальни
4
Терраса
Да
Тип фундамента
Свайно-винтовой
Тип кровли
Толщина внешних стен
195 мм
Толщина внутренних перегородок
145 мм
Улучшенные шумовые характеристики
Да
Вентиляция
Естественная
Веранда
Нет
Водоотведение
Не предусмотрено
Водоснабжение
Не предусмотрено
Высота дома
7.2 м
Высота потолков
2.7 м

Планировка

Фасад дома

Александр

Закажите выезд инженера

Александр

Выездной инженер
Закажите выезд инженера для точной диагностики и профессиональной консультации по инженерным системам. Специалист приедет в удобное время, проведёт осмотр, рассчитает стоимость работ и подберёт оптимальные решения для вашего дома.


    Похожие проекты

    Ипотека и
    рассрочка
    Дом из клееного бруса AVI
    Стоимость от:
    24 102 000
    Проект от: 155 250
    Этажей 2
    Санузлы 4
    Спальни 6
    Смотреть
    Ипотека и
    рассрочка
    Вереск-4
    Стоимость от:
    5 966 180
    Проект от: 42 300
    Этажей 1
    Санузлы 2
    Спальни 2
    Смотреть
    Ипотека и
    рассрочка
    Альпийская Панорама
    Стоимость от:
    17 342 820
    Проект от: 103 950
    Этажей 1
    Санузлы 2
    Спальни 5
    Смотреть
    Ипотека и
    рассрочка
    Жилой одноэтажный дом с тремя спальнями
    Стоимость от:
    5 394 950
    Проект от: 38 250
    Этажей 1
    Санузлы 1
    Спальни 3
    Смотреть
    Ипотека и
    рассрочка
    Одноэтажный дом Электра 108
    Стоимость от:
    7 485 720
    Проект от: 47 700
    Этажей 1
    Санузлы 2
    Спальни 3
    Смотреть
    Ипотека и
    рассрочка
    Грата 2-100-М
    Стоимость от:
    7 320 240
    Проект от: 45 450
    Этажей 2
    Санузлы 2
    Спальни 4
    Смотреть

    Как узнать стоимость дома

    back
    Оставляете заявку
    Вы заполняете форму на сайте или звоните нам. Менеджер Лайвкрафт связывается с вами для уточнения деталей: тип дома, площадь, материалы, участок строительства.
    back
    Консультация и подбор решения
    Наш специалист помогает выбрать оптимальный тип дома и конструкцию с учётом бюджета, сроков и целей — будь то дом для постоянного проживания или дача.
    back
    Расчёт предварительной стоимости
    Инженер делает первичный расчёт стоимости строительства по вашим параметрам: фундамент, коробка, кровля, отделка. Вы получаете смету с разбивкой по этапам.
    back
    Корректировка и утверждение сметы
    При необходимости вносим изменения — например, замену материалов или сокращение этапов. После согласования формируется окончательная фиксированная смета.
    back
    Заключение договора и старт работ
    После утверждения сметы заключаем официальный договор с гарантией. Вы получаете прозрачный график и точную стоимость — без скрытых расходов.

    Заказать конусльтацию по:Каркасный дом Керимар 76

    Фото 1 Каркасный дом Керимар 76


      Наши
      контакты

      Дмитров
      Опорный проезд 28Б
      (индустриальный парк Ниагара)
      9:00 до 18:00

      Корзина