4.9
Рейтинг на основании 120 отзывов
Дмитров
Опорный проезд 28Б
(индустриальный парк Ниагара)
Бренд "Дмитров-Дело" c 2008 года на рынке строительства в Дмитрове
Звоните 9:00 до 18:00 8 (915) 055-33-61
Бренд "Дмитров-Дело" c 2008 года на рынке строительства в Дмитрове

КД-904

Стоимость проекта от:
64 800 ₽
Стоимость строительства от:
10 345 280 ₽
Артикул ART-14464
Дата 25.12.2025
Архитектурный стиль Барнхаус
Количество надземных этажей 1
Круглогодичное проживание Да
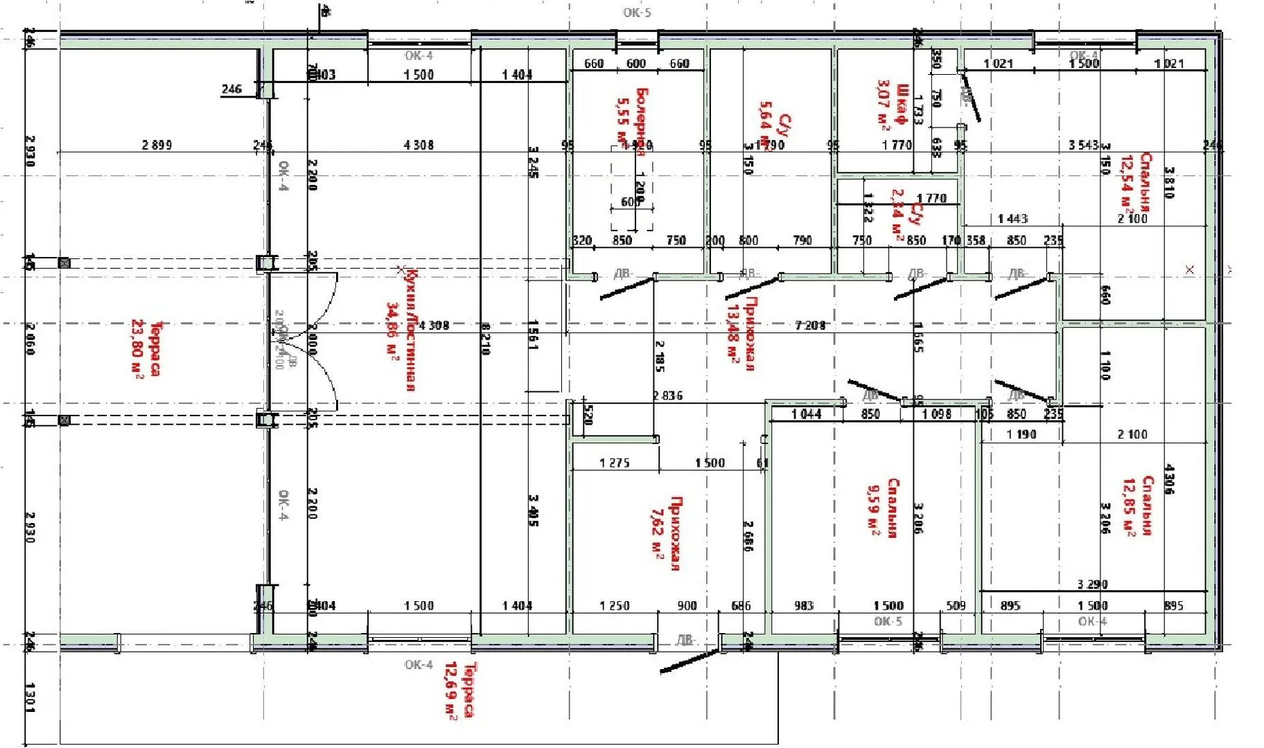
Площадь дома 144 м2
Санузлы 2
Спальни 3

Описание

Код KД‑904 – это настоящий шедевр в стиле барнхаус, который объединяет в себе элегантность классической фермерской архитектуры и современные удобства. Дом выполнен только одним надземным этажом, что делает его доступным и удобным для людей всех возрастов. Внутреннее пространство обогащено продуманными деталями: свето‑проницаемый деревянный каркас, теплые стенки и естественные оттенки древесины создают ощущение уюта, а большая, просторная терраса приглашает к вечерам у костра или ярким рассветам. Через окна в доме открывается великолепный вид на прилегающую зелёную территорию. Двускатная крыша, покрытая долговечными материалами, гармонично сочетается с натуральным материалом стен, подчёркивая rustic‑шарм. Годовое проживание обеспечено: изоляция и качественная вентиляция позволяют дышать свежим воздухом в любой сезон, а отсутствие лишних балконов и веран позволяет сосредоточиться на внутреннем уюте и больших окнах, через которые свет проникает в пространство так, как будто он живёт там. Никаких лишних конструкций, как прикованные гаражи и чердачные помещения, — всё просто и чисто. В доме ощущается гармония формы и функции, а отсутствие лишних отделок только подчеркивает естественность и простоту. Это место, где каждый сможет ощутить себя дома, наслаждаясь свободой открытого пространства и простыми, но приятными удовольствиями жизни.

Характеристики дома

Архитектурный стиль
Барнхаус
Автоматизированное регулирование параметров теплоносителя
Нет
Балконы/лоджии
Отсутствуют
Чердачное помещение
Нет
Датчики протечки воды
Нет
Эксплуатируемая или зеленая кровля
Нет
Электроснабжение
Не предусмотрено
Газоснабжение
Не предусмотрено
Изоляция воздушного шума
Нет
Камин
Нет
Класс энергоэффективности
A
Класс энергосбережения
A
Количество надземных этажей
1
Круглогодичное проживание
Да
Материал кровли
Фальцевая кровля Кликфальц
Материал перекрытий
Деревянные
Материал внешних стен
Деревянные каркасные
Материал внутренних перегородок
Деревянные
Модульное строительство с конструкциями заводского изготовления
Нет
Объем надземной части
269 м3
Основной материал фасадов
Фальцевая кровля кликфальц
Отопление
Не предусмотрено
Площадь дома
144 м2
Площадь застройки
161 м2
Подвальное помещение
Нет
Показатель компактности здания
1.1
Приборы учета тепловой энергии
Нет
Пристроенный гараж/крытая автостоянка
Нет
Противопожарная система
Нет
Санузлы
2
Совмещенная кухня-гостиная
Да
Спальни
3
Терраса
Да
Тип фундамента
Ленточный
Тип кровли
Двускатная
Толщина внешних стен
150 мм
Толщина внутренних перегородок
100 мм
Улучшенные шумовые характеристики
Нет
Вентиляция
Естественная
Веранда
Нет
Водоотведение
Не предусмотрено
Водоснабжение
Не предусмотрено
Высота дома
5 м
Высота потолков
2.6 м

Планировка

Фасад дома

Александр

Закажите выезд инженера

Александр

Выездной инженер
Закажите выезд инженера для точной диагностики и профессиональной консультации по инженерным системам. Специалист приедет в удобное время, проведёт осмотр, рассчитает стоимость работ и подберёт оптимальные решения для вашего дома.


    Похожие проекты

    Ипотека и
    рассрочка
    D-157
    Стоимость от:
    11 799 120
    Проект от: 73 350
    Этажей 2
    Санузлы 2
    Спальни 3
    Смотреть
    Ипотека и
    рассрочка
    Много света ПФ-78
    Стоимость от:
    7 290 140
    Проект от: 43 650
    Этажей 1
    Санузлы 2
    Спальни 3
    Смотреть
    Ипотека и
    рассрочка
    Одноэтажный жилой дом «Рай 120»
    Стоимость от:
    8 474 400
    Проект от: 54 000
    Этажей 1
    Санузлы 2
    Спальни 3
    Смотреть
    Ипотека и
    рассрочка
    Семейный дом Тим-1
    Стоимость от:
    10 442 300
    Проект от: 60 750
    Этажей 1
    Санузлы 2
    Спальни 3
    Смотреть
    Ипотека и
    рассрочка
    П1-240-сп5
    Стоимость от:
    17 932 800
    Проект от: 108 000
    Этажей 2
    Санузлы 2
    Спальни 5
    Смотреть
    Ипотека и
    рассрочка
    Форест 138
    Стоимость от:
    9 043 320
    Проект от: 70 200
    Этажей 1
    Санузлы 2
    Спальни 4
    Смотреть

    Как узнать стоимость дома

    back
    Оставляете заявку
    Вы заполняете форму на сайте или звоните нам. Менеджер Лайвкрафт связывается с вами для уточнения деталей: тип дома, площадь, материалы, участок строительства.
    back
    Консультация и подбор решения
    Наш специалист помогает выбрать оптимальный тип дома и конструкцию с учётом бюджета, сроков и целей — будь то дом для постоянного проживания или дача.
    back
    Расчёт предварительной стоимости
    Инженер делает первичный расчёт стоимости строительства по вашим параметрам: фундамент, коробка, кровля, отделка. Вы получаете смету с разбивкой по этапам.
    back
    Корректировка и утверждение сметы
    При необходимости вносим изменения — например, замену материалов или сокращение этапов. После согласования формируется окончательная фиксированная смета.
    back
    Заключение договора и старт работ
    После утверждения сметы заключаем официальный договор с гарантией. Вы получаете прозрачный график и точную стоимость — без скрытых расходов.

    Заказать конусльтацию по:КД-904

    Фото 1 КД-904


      Наши
      контакты

      Дмитров
      Опорный проезд 28Б
      (индустриальный парк Ниагара)
      9:00 до 18:00