4.9
Рейтинг на основании 120 отзывов
Дмитров
Опорный проезд 28Б
(индустриальный парк Ниагара)
Бренд "Дмитров-Дело" c 2008 года на рынке строительства в Дмитрове
Звоните 9:00 до 18:00 8 (915) 055-33-61
Бренд "Дмитров-Дело" c 2008 года на рынке строительства в Дмитрове

«Хатико» 100-1

Стоимость проекта от:
45 000 ₽
Стоимость строительства от:
5 797 000 ₽
Артикул ART-10040
Дата 25.12.2025
Архитектурный стиль Скандинавский
Количество надземных этажей 1
Круглогодичное проживание Да
Площадь дома 100 м2
Санузлы 2
Спальни 3

Описание

В «Хатико 100‑1» вы найдёте уют и надёжность, объединённые в одном неприхотливом, но в то же время элегантном доме. Один надземный этаж позволяет легко организовать пространство для всей семьи, а строгий шведский стиль с его чистыми линиями и гармонией с природой делает интерьер простым, но в то же время вдохновляющим. Деревянный каркас и двускатная крыша создают тепло и природную изоляцию, благодаря чему «Хатико» удобно обитает круглый год. Отсутствие балконов и веранд не мешает почувствовать связь с природой—потому что здесь каждый уголок задуман так, чтобы напоминать гармоничный уют скандинавского дома. Внутри открытое и светлое пространство, что легко трансформируется под ваши потребности: будь то рабочий кабинет, детская комната или место для йоги. Вокруг дома ровные, ухоженные участки, где легко расположить небольшую огородную грядку или мини-сауну на летний вечер. Особое внимание стоит уделить чердачу – свободному пространству, которое можно превратить в дополнительную спальню, студию или уютный уголок для чтения. Это даёт гибкость и функциональность, которую ценят современные семьи и креативные души. Если вы ищете дом, где тепло дерева сочетается с практичностью и элегантностью, «Хатико 100‑1» станет вашим идеальным выбором.

Характеристики дома

Архитектурный стиль
Скандинавский
Автоматизированное регулирование параметров теплоносителя
Да
Балконы/лоджии
Отсутствуют
Чердачное помещение
Да
Датчики протечки воды
Да
Эксплуатируемая или зеленая кровля
Да
Электроснабжение
Индивидуальное
Газоснабжение
Не предусмотрено
Изоляция воздушного шума
Да
Камин
Нет
Класс энергоэффективности
-
Класс энергосбережения
-
Количество надземных этажей
1
Круглогодичное проживание
Да
Материал кровли
Металлочерепица
Материал перекрытий
Деревянные
Материал внешних стен
Деревянные каркасные
Материал внутренних перегородок
Деревянные
Модульное строительство с конструкциями заводского изготовления
Нет
Объем надземной части
590 м3
Основной материал фасадов
Дерево
Отопление
Индивидуальное
Площадь дома
100 м2
Площадь застройки
112 м2
Подвальное помещение
Нет
Показатель компактности здания
-
Приборы учета тепловой энергии
Да
Пристроенный гараж/крытая автостоянка
Нет
Противопожарная система
Нет
Санузлы
2
Совмещенная кухня-гостиная
Да
Спальни
3
Терраса
Нет
Тип фундамента
Свайный
Тип кровли
Двускатная
Толщина внешних стен
245 мм
Толщина внутренних перегородок
145 мм
Улучшенные шумовые характеристики
Да
Вентиляция
Естественная
Веранда
Нет
Водоотведение
Локальные очистные сооружения
Водоснабжение
Индивидуальное
Высота дома
5.26 м
Высота потолков
2.8 м

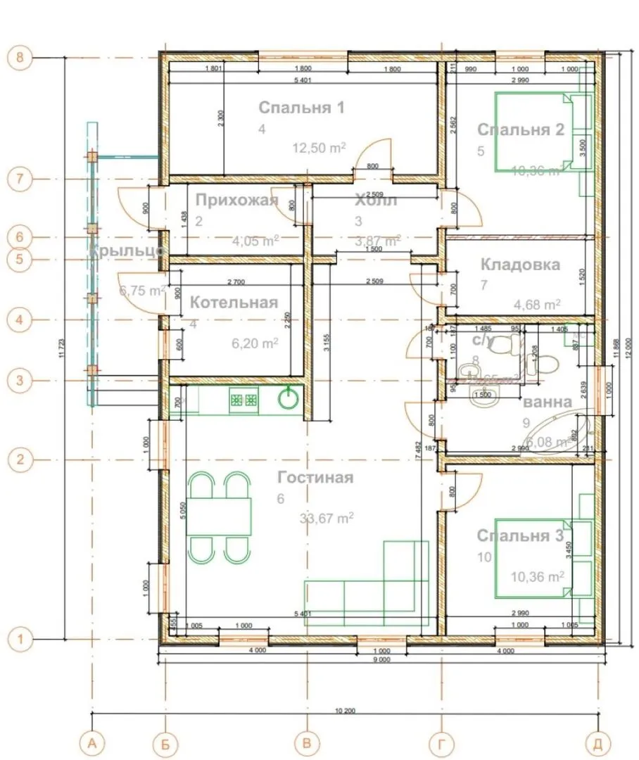
Планировка

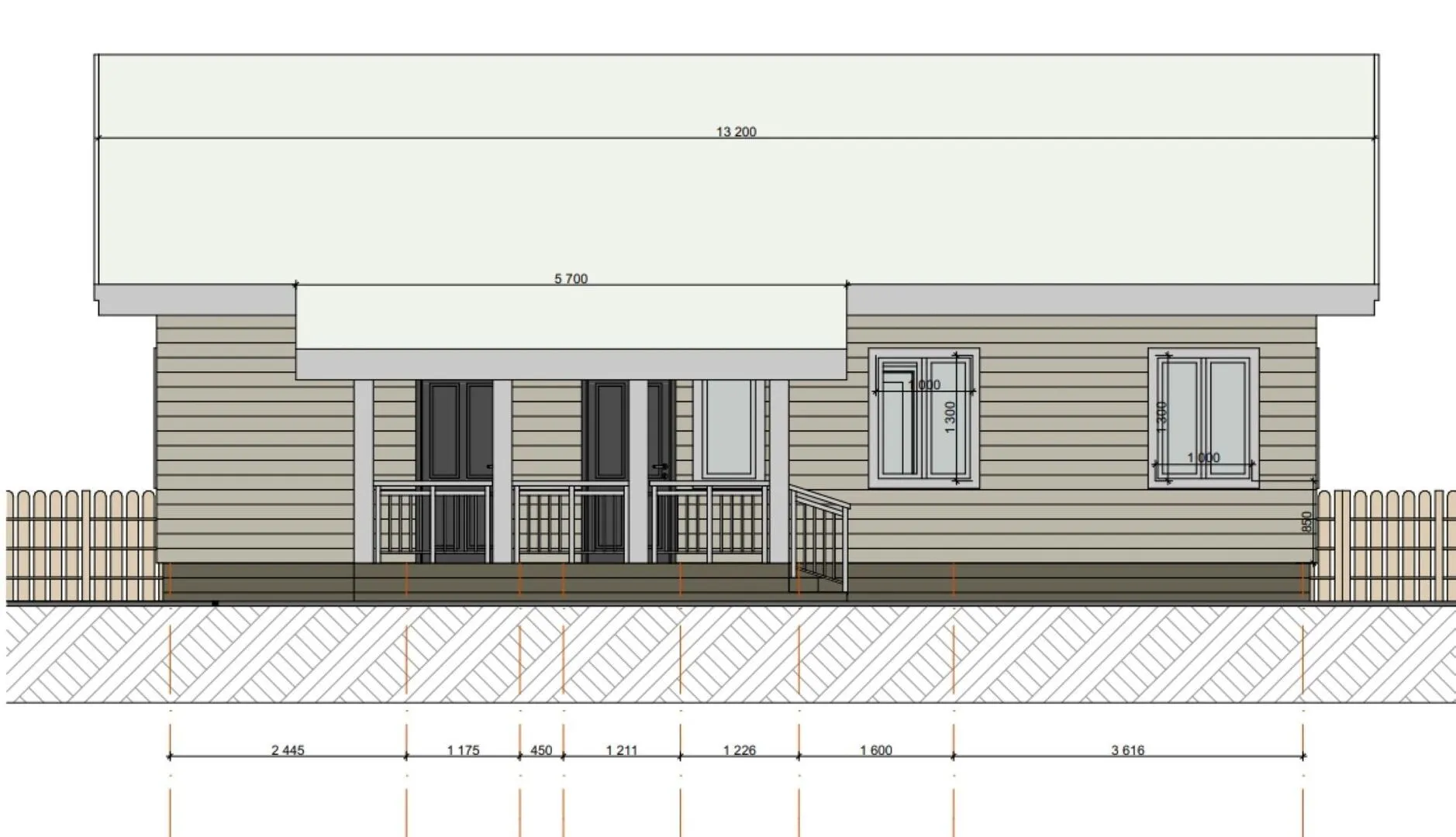
Фасад дома

Александр

Закажите выезд инженера

Александр

Выездной инженер
Закажите выезд инженера для точной диагностики и профессиональной консультации по инженерным системам. Специалист приедет в удобное время, проведёт осмотр, рассчитает стоимость работ и подберёт оптимальные решения для вашего дома.


    Похожие проекты

    Ипотека и
    рассрочка
    Проект дома из СИП панелей с мансардой «Села»
    Стоимость от:
    7 454 520
    Проект от: 50 850
    Этажей 2
    Санузлы 2
    Спальни 4
    Смотреть
    Ипотека и
    рассрочка
    Одноэтажный дом СД-107
    Стоимость от:
    9 099 860
    Проект от: 59 850
    Этажей 1
    Санузлы 2
    Спальни 3
    Смотреть
    Ипотека и
    рассрочка
    Небольшой двухэтажный дом с уютной перголой S3-97-2 (Z489)
    Стоимость от:
    7 271 280
    Проект от: 43 650
    Этажей 2
    Санузлы 2
    Спальни 3
    Смотреть
    Ипотека и
    рассрочка
    Аннушка 2+
    Стоимость от:
    6 073 320
    Проект от: 38 700
    Этажей 1
    Санузлы 1
    Спальни 2
    Смотреть
    Ипотека и
    рассрочка
    Загородный дом ВС-124
    Стоимость от:
    7 495 800
    Проект от: 56 250
    Этажей 2
    Санузлы 3
    Спальни 3
    Смотреть
    Ипотека и
    рассрочка
    S146.2
    Стоимость от:
    10 196 640
    Проект от: 65 700
    Этажей 2
    Санузлы 2
    Спальни 5
    Смотреть

    Как узнать стоимость дома

    back
    Оставляете заявку
    Вы заполняете форму на сайте или звоните нам. Менеджер Лайвкрафт связывается с вами для уточнения деталей: тип дома, площадь, материалы, участок строительства.
    back
    Консультация и подбор решения
    Наш специалист помогает выбрать оптимальный тип дома и конструкцию с учётом бюджета, сроков и целей — будь то дом для постоянного проживания или дача.
    back
    Расчёт предварительной стоимости
    Инженер делает первичный расчёт стоимости строительства по вашим параметрам: фундамент, коробка, кровля, отделка. Вы получаете смету с разбивкой по этапам.
    back
    Корректировка и утверждение сметы
    При необходимости вносим изменения — например, замену материалов или сокращение этапов. После согласования формируется окончательная фиксированная смета.
    back
    Заключение договора и старт работ
    После утверждения сметы заключаем официальный договор с гарантией. Вы получаете прозрачный график и точную стоимость — без скрытых расходов.

    Заказать конусльтацию по:«Хатико» 100-1

    Фото 1 «Хатико» 100-1


      Наши
      контакты

      Дмитров
      Опорный проезд 28Б
      (индустриальный парк Ниагара)
      9:00 до 18:00

      Корзина