4.9
Рейтинг на основании 120 отзывов
Дмитров
Опорный проезд 28Б
(индустриальный парк Ниагара)
Бренд "Дмитров-Дело" c 2008 года на рынке строительства в Дмитрове
Звоните 9:00 до 18:00 8 (915) 055-33-61
Бренд "Дмитров-Дело" c 2008 года на рынке строительства в Дмитрове

Коттедж С141 (Барн)

Стоимость проекта от:
63 450 ₽
БЕСПЛАТНО! ПРИ ЗАКАЗЕ СТРОИТЕЛЬСТВА
Стоимость строительства от:
10 385 040 ₽
Артикул ART-19815
Дата 26.12.2025
Архитектурный стиль Барнхаус
Количество надземных этажей 2
Круглогодичное проживание Да
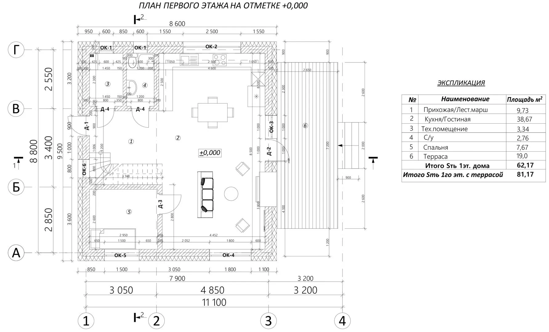
Площадь дома 141 м2
Санузлы 3
Спальни 4

Описание

Представляем вам уникальный коттедж С141 «Барн» – настоящий оазис уюта и гармонии. Созданный в современном стиле барнхаус, он прост и одновременно насыщен тёплым, семейным характером: два надземных этажа позволят удобно разместить всех членов семьи, а круглогодичная пригодность крыши и утепленные пеноблоки гарантируют комфорт даже в самые холодные времена. Здесь каждый сантиметр пропитан духом простоты и естественности, от обширных дверей, раскрывающихся наружу, до тщательно продуманной изоляции и высококачественных материалов. Дом не останавливается на внешнем виде: его внутреннее пространство открыто, светлое и полное возможностей для творчества. Тёплый деревянный бархатный интерьер, открытая кухня‑обеденная зона, просторные спальни и уютные места для чтения создают идеальное сочетание функциональности и эстетики. Встроенные световые решения подчёркивают характерный барнхаус-стиль, а большие окна наполняют дом естественным светом и дарят волшебный вид на окрестности. И, конечно, важнейший момент – это просторная терраса, где можно провести вечер за чашкой ароматного кофе, устроить барбекю или просто наслаждаться закатами вокруг. При этом отсутствие балконов, веранд и прикрепленных гаражей позволяет вам в полной мере погрузиться в атмосферу спокойствия, создавая индивидуальное пространство для отдыха и вдохновения. Если вы ищете коттедж, где современность встречается с традицией, а уют – с функциональностью, откроете для себя именно этот дом. 🚪🌿

Характеристики дома

Архитектурный стиль
Автоматизированное регулирование параметров теплоносителя
Да
Балконы/лоджии
Отсутствуют
Чердачное помещение
Нет
Датчики протечки воды
Нет
Эксплуатируемая или зеленая кровля
Нет
Электроснабжение
Центральное
Газоснабжение
Центральное
Изоляция воздушного шума
Да
Камин
Нет
Класс энергоэффективности
-
Класс энергосбережения
-
Количество надземных этажей
2
Круглогодичное проживание
Да
Материал кровли
Фальцевая кровля Кликфальц
Материал перекрытий
Монолитные железобетонные
Материал внешних стен
Материал внутренних перегородок
Пенобетонные
Модульное строительство с конструкциями заводского изготовления
Нет
Объем надземной части
688 м3
Основной материал фасадов
Фасадная плитка
Отопление
Индивидуальное
Площадь дома
141 м2
Площадь застройки
105 м2
Подвальное помещение
Нет
Показатель компактности здания
-
Приборы учета тепловой энергии
Да
Пристроенный гараж/крытая автостоянка
Нет
Противопожарная система
Да
Санузлы
3
Совмещенная кухня-гостиная
Да
Спальни
4
Терраса
Да
Тип фундамента
Ленточный
Тип кровли
Толщина внешних стен
300 мм
Толщина внутренних перегородок
200 мм
Улучшенные шумовые характеристики
Да
Вентиляция
Естественная
Веранда
Нет
Водоотведение
Локальные очистные сооружения
Водоснабжение
Индивидуальное
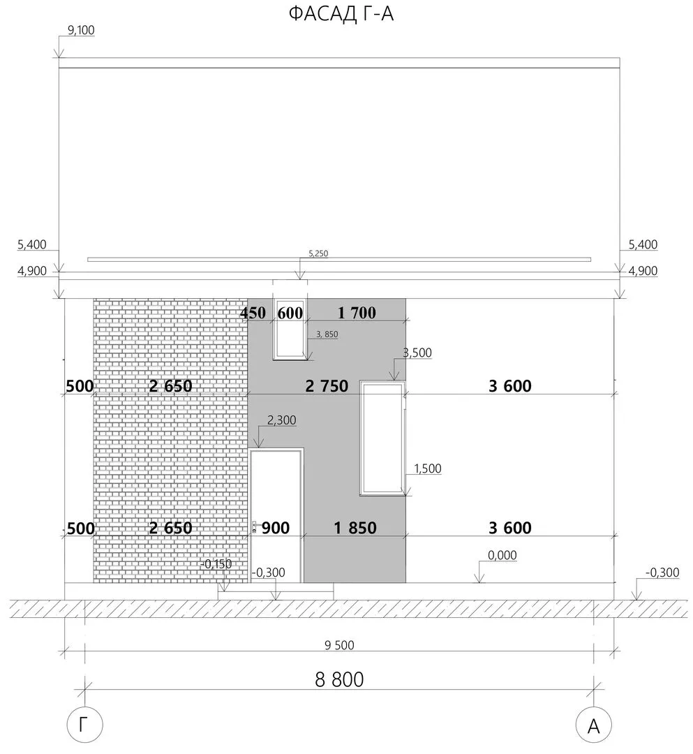
Высота дома
9.1 м
Высота потолков
3 м

Планировка

Фасад дома

Александр

Закажите выезд инженера

Александр

Выездной инженер
Закажите выезд инженера для точной диагностики и профессиональной консультации по инженерным системам. Специалист приедет в удобное время, проведёт осмотр, рассчитает стоимость работ и подберёт оптимальные решения для вашего дома.


    Похожие проекты

    Ипотека и
    рассрочка
    Дом из CLT «Пятигорск»
    Стоимость от:
    843 720
    Проект от: 80 100
    Этажей 2
    Санузлы 2
    Спальни 4
    Смотреть
    Ипотека и
    рассрочка
    Д-140
    Стоимость от:
    8 099 520
    Проект от: 53 100
    Этажей 2
    Санузлы 2
    Спальни 4
    Смотреть
    Ипотека и
    рассрочка
    ИНДИВИДУАЛЬНЫЙ ЖИЛОЙ ДОМ F056
    Стоимость от:
    7 244 820
    Проект от: 40 950
    Этажей 1
    Санузлы 2
    Спальни 3
    Смотреть
    Ипотека и
    рассрочка
    Комарова
    Стоимость от:
    3 921 280
    Проект от: 28 800
    Этажей 1
    Санузлы 2
    Спальни 2
    Смотреть
    Ипотека и
    рассрочка
    Одноэтажный дом Fixplans-8099
    Стоимость от:
    7 320 940
    Проект от: 48 150
    Этажей 1
    Санузлы 1
    Спальни 3
    Смотреть
    Ипотека и
    рассрочка
    Проект дома Угол
    Стоимость от:
    12 794 540
    Проект от: 84 150
    Этажей 1
    Санузлы 3
    Спальни 3
    Смотреть

    Как узнать стоимость дома

    back
    Оставляете заявку
    Вы заполняете форму на сайте или звоните нам. Менеджер Лайвкрафт связывается с вами для уточнения деталей: тип дома, площадь, материалы, участок строительства.
    back
    Консультация и подбор решения
    Наш специалист помогает выбрать оптимальный тип дома и конструкцию с учётом бюджета, сроков и целей — будь то дом для постоянного проживания или дача.
    back
    Расчёт предварительной стоимости
    Инженер делает первичный расчёт стоимости строительства по вашим параметрам: фундамент, коробка, кровля, отделка. Вы получаете смету с разбивкой по этапам.
    back
    Корректировка и утверждение сметы
    При необходимости вносим изменения — например, замену материалов или сокращение этапов. После согласования формируется окончательная фиксированная смета.
    back
    Заключение договора и старт работ
    После утверждения сметы заключаем официальный договор с гарантией. Вы получаете прозрачный график и точную стоимость — без скрытых расходов.

    Заказать конусльтацию по:Коттедж С141 (Барн)

    Фото 1 Коттедж С141 (Барн)


      Наши
      контакты

      Дмитров
      Опорный проезд 28Б
      (индустриальный парк Ниагара)
      9:00 до 18:00

      Корзина